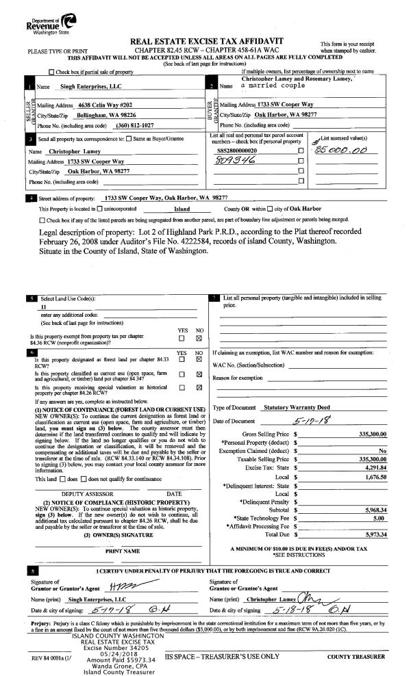
Property
Account |
| Property ID: | 23842 | Abbreviated Legal Description: | 70 - E/2 OF GL 6 & 7 LY N OF LN PAR/TO & 347'S PERP TO CLN ALLYSON ST RH#1 PROD ELY TGW & SUB TO EZ |
| Geographic ID: | R13221-408-1170 | Agent Code: | |
| Type: | Real | | |
| Tax Area: | 112 - APPRAISER-OH Schl Dist, outside OH, improved, greater than 1 acre | Land Use Code | 11 |
| Open Space: | N | DFL | N |
| Historic Property: | N | Remodel Property: | N |
| Multi-Family Redevelopment: | N | | |
| Township: | 32 | Section: | 21 |
| Range: | R1 |
Location |
| Address: | 1115 CUSTER ST OAK HARBOR, WA 98277 | Mapsco: | |
| Neighborhood: | Cycle 2 | Map ID: | 151 |
| Neighborhood CD: | 2 |
Owner |
| Name: | HARDESTY, BRANDON WAYNE | Owner ID: | 310616 |
| Mailing Address: | CATHERINE JEAN HARDESTY 1115 CUSTER ST OAK HARBOR, WA 98277 | % Ownership: | 100.0000000000% |
| | | Exemptions: | |
Taxes and Assessment Details
Values
| (+) Improvement Homesite Value: | + | $0 | |
| (+) Improvement Non-Homesite Value: | + | $400,004 | |
| (+) Land Homesite Value: | + | $0 | |
| (+) Land Non-Homesite Value: | + | $313,483 | |
| (+) Curr Use (HS): | + | $0 | $0 |
| (+) Curr Use (NHS): | + | $0 | $0 |
| | | -------------------------- | |
| (=) Market Value: | = | $713,487 | |
| (–) Productivity Loss: | – | $0 | |
| | | -------------------------- | |
| (=) Subtotal: | = | $713,487 | |
| (+) Senior Appraised Value: | + | $0 | |
| (+) Non-Senior Appraised Value: | + | $713,487 | |
| | | -------------------------- | |
| (=) Total Appraised Value: | = | $713,487 | |
| (–) Senior Exemption Loss: | – | $0 | |
| (–) Exemption Loss: | – | $0 | |
| | | -------------------------- | |
| (=) Taxable Value: | = | $713,487 | |
Taxing Jurisdiction
| Owner: | HARDESTY, BRANDON WAYNE | | |
| % Ownership: | 100.0000000000% | | |
| Total Value: | $713,487 | | |
| Tax Area: | 112 - APPRAISER-OH Schl Dist, outside OH, improved, greater than 1 acre |
| CF | Conservation Futures | 0.0316035091 | $713,487 | $713,487 | $22.55 | | |
| CEM1 | Cemetery #1 | 0.0040320932 | $713,487 | $713,487 | $2.88 | | |
| FIRE2 | Fire & Rescue Dist #2 N Whidbey GEN | 0.5475949600 | $713,487 | $713,487 | $390.70 | | |
| HOBOND | Hospital BOND | 0.1910887512 | $713,487 | $713,487 | $136.34 | | |
| HOGEN | Hospital GEN | 0.3902502903 | $713,487 | $713,487 | $278.44 | | |
| CE | County Current Expense | 0.3708482477 | $713,487 | $713,487 | $264.60 | | |
| CR | County Roads | 0.4584763726 | $713,487 | $713,487 | $327.12 | | |
| ISLANDEMS | Hospital GEN (EMS) | 0.5000000000 | $713,487 | $713,487 | $356.74 | | |
| LIB | Library Sno-Isle GEN | 0.3153421757 | $713,487 | $713,487 | $224.99 | | |
| NWHIDPRMT | P & R N Whidbey GEN | 0.2004466701 | $713,487 | $713,487 | $143.02 | | |
| SCH201MO | School 201 Enrichment | 1.8559231640 | $713,487 | $713,487 | $1,324.18 | | |
| ST | State School | 1.3035497053 | $713,487 | $713,487 | $930.07 | | |
| ST2 | State School Part 2 | 0.8169543533 | $713,487 | $713,487 | $582.89 | | |
| | Total Tax Rate: | 6.9861102925 | | | | | |
| | | | | Taxes w/Current Exemptions: | $4,984.52 | | |
| | | | | Taxes w/o Exemptions: | $4,984.52 | | |
Improvement / Building
| Improvement #1: | RESIDENTIAL | State Code: | Y | 2078.2 sqft | Value: | $400,004 |
| Bathrooms: | 2 | Bedrooms: | 2 | | Ceiling: | DRY WALL SPRAYED | Exterior Wall/Cover: | PLY/HARDBOARD T-111 | | Floor Covering: | CARPET/VINYL 80-20 | Floor Structure: | WOOD W/SUBFLOOR | | Foundation: | CONCRETE | Heating: | FHA ELECTRIC | | Interior Finish: | DRYWALL PAINT | Plumbing Fixture Cnt: | 13 | | Roof Slope: | 4" IN 12" | Roof Structure/Cover: | CJ ALUMINIUM HEAVY |
|
| | Type | Description | Class CD | Sub Class CD | Year Built | Area |
| | BAS | BASE/MAIN FLOOR | 3 | 0 | 1979 | 854.2 |
| | UB8 | BASEMENT UNFINISHED 8" | 3 | 0 | 1979 | 240.0 |
| | AGR | ATTACHED GARAGE | 3 | 0 | 1979 | 710.1 |
| | UPS | UPPER STORY | 3 | 0 | 1979 | 864.0 |
| | OWP | OPEN WOOD PORCH W/STEPS | 3 | 0 | 1979 | 288.0 |
| | OWR | OPEN WOOD PORCH W/STEPS/ROOF | 3 | 0 | 1979 | 288.0 |
| | DGR | DETACHED GARAGE | 3 | 0 | 1979 | 720.0 |
| | UTY | STORAGE/UTILITY | 3 | 0 | 1979 | 120.0 |
| | DGR | DETACHED GARAGE | 3 | 0 | 1979 | 1622.0 |
| | UTY | STORAGE/UTILITY | 3 | 0 | 1979 | 600.0 |
| | CPD | OPEN CARPORT DIRT FLOOR | 3 | 0 | 1979 | 132.0 |
| | DWN | DOWNSTAIRS LIVING AREA | 3 | 0 | 1979 | 360.0 |
Sketch
| No sketches available for this property. |
Property Image
Land
| 1 | HS | HOMESITE | 1.0000 | 43560.00 | 0.00 | 0.00 | 1.00 | $220,000 | $0 |
| 2 | 91 | UNDEVELOPED LAND-METES AND BOUNDS | 1.7900 | 77972.40 | 0.00 | 0.00 | 1.00 | $93,483 | $0 |
Roll Value History
| 2026 | N/A | N/A | N/A | N/A | N/A |
| 2025 | $400,004 | $313,483 | $0 | $713,487 | $713,487 |
| 2024 | $394,388 | $300,000 | $0 | $694,388 | $694,388 |
| 2023 | $341,510 | $270,000 | $0 | $611,510 | $611,510 |
| 2022 | $313,835 | $250,000 | $0 | $563,835 | $563,835 |
| 2021 | $276,901 | $170,000 | $0 | $446,901 | $446,901 |
| 2020 | $270,798 | $150,000 | $0 | $420,798 | $420,798 |
| 2019 | $202,480 | $180,000 | $0 | $382,480 | $382,480 |
| 2018 | $192,031 | $160,000 | $0 | $352,031 | $352,031 |
| 2017 | $193,109 | $150,000 | $0 | $343,109 | $343,109 |
| 2016 | $195,385 | $120,000 | $0 | $315,385 | $315,385 |
| 2015 | $197,664 | $90,000 | $0 | $287,664 | $287,664 |
| 2014 | $199,941 | $90,000 | $0 | $289,941 | $289,941 |
| 2013 | $202,217 | $91,800 | $0 | $294,017 | $294,017 |
| 2012 | $228,287 | $91,800 | $0 | $320,087 | $320,087 |
| 2011 | $230,563 | $108,000 | $0 | $338,563 | $338,563 |
| 2010 | $235,603 | $108,000 | $0 | $343,603 | $343,603 |
| 2009 | $244,316 | $94,500 | $0 | $338,816 | $338,816 |
| 2008 | $254,501 | $103,680 | $0 | $358,181 | $358,181 |
| 2007 | $258,476 | $103,680 | $0 | $362,156 | $362,156 |
Deed and Sales History
| 1 | 11/07/2023 | WD | Warranty Deed | WIHLBORG, JAMES H | HARDESTY, BRANDON WAYNE | | | $675,000.00 | 58462 | 4566553 |
| 2 | 08/02/2018 | QCD | Quit Claim Deed | WIHLBORG TRUSTEE, JAMES H | WIHLBORG, JAMES H | | | $0.00 | 35364 | 4449530 |
| 3 | 05/05/2005 | 5 | DNU - Marriage License/Name Change | WIHLBORG, JAMES H | WIHLBORG TRUSTEE, JAMES H | | | $0.00 | 52151 | 4134387 |
| 4 | 05/05/2005 | 5 | DNU - Marriage License/Name Change | WIHLBORG, JAMES H | WIHLBORG, JAMES H | | | $0.00 | 52150 | 4134385 |
| 5 | 04/05/2001 | QCD | Quit Claim Deed | WIHLBORG, JAMES H | WIHLBORG, JAMES H | | | $0.00 | 11127 | 20029111 |
| 6 | 04/01/1987 | WD | Warranty Deed | BEARDSLEE, DANIEL E | WIHLBORG, JAMES H | | | $86,500.00 | 71051 | 87005304 |
| 7 | 01/01/1900 | OTHER | Other - Misc. Documents | Unknown | BEARDSLEE, DANIEL E | | | $0.00 | 0 | 0 |
Payout Agreement
| No payout information available.. |