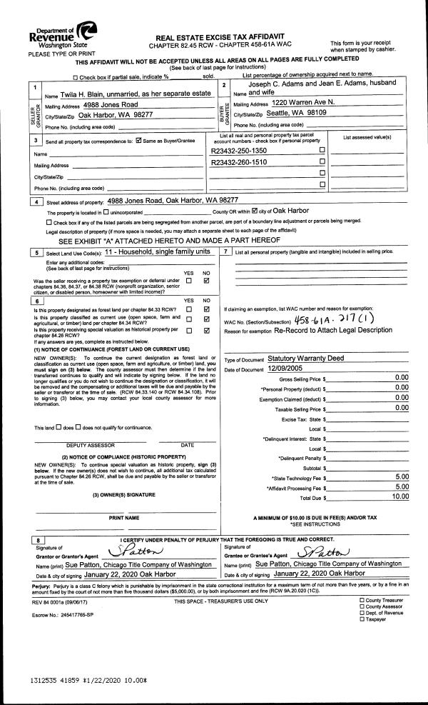
Property
Account |
| Property ID: | 238594 | Abbreviated Legal Description: | CROCKETT LK EST LOT 22 TGW WLY PT VAC EGGERMAN CT AF#89007660 |
| Geographic ID: | S6435-00-00022-0 | Agent Code: | |
| Type: | Real | | |
| Tax Area: | 382 - APPRAISER-Cpvl Schl Dist, Special Dist, improved, greater than 1 acre | Land Use Code | 11 |
| Open Space: | N | DFL | N |
| Historic Property: | N | Remodel Property: | N |
| Multi-Family Redevelopment: | N | | |
| Township: | | Section: | |
| Range: | |
Location |
| Address: | 618 OLYMPIC VIEW DR COUPEVILLE, WA 98239 | Mapsco: | |
| Neighborhood: | Cycle 2 | Map ID: | 64 |
| Neighborhood CD: | 2 |
Owner |
| Name: | DEMING, JONATHAN C | Owner ID: | 291682 |
| Mailing Address: | PATRICIA J DEMING 17835 146TH AVE SE RENTON, WA 98058 | % Ownership: | 100.0000000000% |
| | | Exemptions: | |
Taxes and Assessment Details
Values
| (+) Improvement Homesite Value: | + | $0 | |
| (+) Improvement Non-Homesite Value: | + | $226,283 | |
| (+) Land Homesite Value: | + | $0 | |
| (+) Land Non-Homesite Value: | + | $270,000 | |
| (+) Curr Use (HS): | + | $0 | $0 |
| (+) Curr Use (NHS): | + | $0 | $0 |
| | | -------------------------- | |
| (=) Market Value: | = | $496,283 | |
| (–) Productivity Loss: | – | $0 | |
| | | -------------------------- | |
| (=) Subtotal: | = | $496,283 | |
| (+) Senior Appraised Value: | + | $0 | |
| (+) Non-Senior Appraised Value: | + | $496,283 | |
| | | -------------------------- | |
| (=) Total Appraised Value: | = | $496,283 | |
| (–) Senior Exemption Loss: | – | $0 | |
| (–) Exemption Loss: | – | $0 | |
| | | -------------------------- | |
| (=) Taxable Value: | = | $496,283 | |
Taxing Jurisdiction
| Owner: | DEMING, JONATHAN C | | |
| % Ownership: | 100.0000000000% | | |
| Total Value: | $496,283 | | |
| Tax Area: | 382 - APPRAISER-Cpvl Schl Dist, Special Dist, improved, greater than 1 acre |
| CF | Conservation Futures | 0.0316035091 | $496,283 | $496,283 | $15.68 | | |
| CEM2 | Cemetery #2 | 0.0095056933 | $496,283 | $496,283 | $4.72 | | |
| FIRE5 | Fire & Rescue Dist #5 C Whidbey GEN | 1.2008080668 | $496,283 | $496,283 | $595.94 | | |
| FIRE5BOND | Fire & Rescue Dist #5 C Whidbey BOND | 0.1400090713 | $496,283 | $496,283 | $69.48 | | |
| HOBOND | Hospital BOND | 0.1910887512 | $496,283 | $496,283 | $94.83 | | |
| HOGEN | Hospital GEN | 0.3902502903 | $496,283 | $496,283 | $193.67 | | |
| CE | County Current Expense | 0.3708482477 | $496,283 | $496,283 | $184.05 | | |
| CR | County Roads | 0.4584763726 | $496,283 | $496,283 | $227.53 | | |
| ISLANDEMS | Hospital GEN (EMS) | 0.5000000000 | $496,283 | $496,283 | $248.14 | | |
| LIB | Library Sno-Isle GEN | 0.3153421757 | $496,283 | $496,283 | $156.50 | | |
| LIBCAP | Library Sno-Isle BOND (Cap Fac Imp Area) | 0.0543427938 | $496,283 | $496,283 | $26.97 | | |
| POCOUP | Port of Coupeville GEN | 0.1093371703 | $496,283 | $496,283 | $54.26 | | |
| POCOUPIDD | Port of Coupeville IDD | 0.3409740022 | $496,283 | $496,283 | $169.22 | | |
| COUPSDTECH | School 204 CP (TECH) | 0.7545480007 | $496,283 | $496,283 | $374.47 | | |
| SCH204MO | School 204 Enrichment | 0.6716186034 | $496,283 | $496,283 | $333.31 | | |
| ST | State School | 1.3035497053 | $496,283 | $496,283 | $646.93 | | |
| ST2 | State School Part 2 | 0.8169543533 | $496,283 | $496,283 | $405.44 | | |
| | Total Tax Rate: | 7.6592568070 | | | | | |
| | | | | Taxes w/Current Exemptions: | $3,801.14 | | |
| | | | | Taxes w/o Exemptions: | $3,801.14 | | |
Improvement / Building
| Improvement #1: | RESIDENTIAL | State Code: | Y | 1300.0 sqft | Value: | $226,283 |
| Bathrooms: | 2 | Bedrooms: | 2 | | Ceiling: | DRYWALL PAINTED | Exterior Wall/Cover: | WOOD SIDING | | Floor Covering: | HARDWOOD/CARP 60-40 | Floor Structure: | WOOD W/SUBFLOOR | | Foundation: | CONCRETE | Heating: | WALL HEAT ELECTRIC | | Interior Finish: | DRYWALL PAINT | Plumbing Fixture Cnt: | 9 | | Roof Slope: | 6" IN 12" | Roof Structure/Cover: | CJ ALUMINIUM HEAVY |
|
| | Type | Description | Class CD | Sub Class CD | Year Built | Area |
| | BAS | BASE/MAIN FLOOR | 3 | 0 | 1990 | 676.0 |
| | UB8 | BASEMENT UNFINISHED 8" | 3 | 0 | 1990 | 676.0 |
| | UPS | UPPER STORY | 3 | 0 | 1990 | 624.0 |
| | OWP | OPEN WOOD PORCH W/STEPS | 3 | 0 | 1990 | 308.0 |
| | OWP | OPEN WOOD PORCH W/STEPS | 3 | 0 | 1990 | 43.0 |
| | ENP | ENCLOSED PORCH | 3 | 0 | 1990 | 100.0 |
Sketch
Property Image
Land
| 1 | 17 | AC (01.01-02.00) | 1.8700 | 81457.20 | 0.00 | 0.00 | 1.00 | $270,000 | $0 |
Roll Value History
| 2026 | N/A | N/A | N/A | N/A | N/A |
| 2025 | $226,283 | $270,000 | $0 | $496,283 | $496,283 |
| 2024 | $227,846 | $250,000 | $0 | $477,846 | $477,846 |
| 2023 | $230,998 | $220,000 | $0 | $450,998 | $450,998 |
| 2022 | $212,024 | $210,000 | $0 | $422,024 | $422,024 |
| 2021 | $186,848 | $140,000 | $0 | $326,848 | $326,848 |
| 2020 | $182,212 | $110,000 | $0 | $292,212 | $292,212 |
| 2019 | $131,110 | $150,000 | $0 | $281,110 | $281,110 |
| 2018 | $133,447 | $140,000 | $0 | $273,447 | $273,447 |
| 2017 | $134,308 | $120,000 | $0 | $254,308 | $254,308 |
| 2016 | $136,031 | $100,000 | $0 | $236,031 | $236,031 |
| 2015 | $137,753 | $75,000 | $0 | $212,753 | $212,753 |
| 2014 | $139,473 | $75,000 | $0 | $214,473 | $214,473 |
| 2013 | $141,196 | $75,000 | $0 | $216,196 | $216,196 |
| 2012 | $138,452 | $68,000 | $0 | $206,452 | $206,452 |
| 2011 | $140,226 | $80,000 | $0 | $220,226 | $220,226 |
| 2010 | $149,434 | $80,000 | $0 | $229,434 | $229,434 |
| 2009 | $155,797 | $80,000 | $0 | $235,797 | $235,797 |
| 2008 | $157,621 | $80,000 | $0 | $237,621 | $237,621 |
| 2007 | $159,445 | $80,000 | $0 | $239,445 | $239,445 |
Deed and Sales History
| 1 | 08/09/2019 | PRD | Personal Representatives Deed | DEMING, CLIFFORD M | DEMING, JONATHAN C | | | $0.00 | 40169 | 4470973 |
| 2 | 06/01/1988 | WD | Warranty Deed | DEWAR, DOREL J | DEMING, CLIFFORD M | | | $30,000.00 | 81920 | 88007082 |
| 3 | 01/01/1900 | OTHER | Other - Misc. Documents | Unknown | DEWAR, DOREL J | | | $0.00 | 0 | 0 |
Payout Agreement
| No payout information available.. |