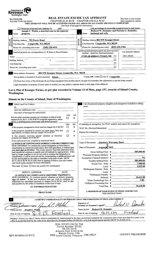
Property
Account |
| Property ID: | 238772 | Abbreviated Legal Description: | CROCKETT LK EST LOT 28 SL 4C: BG NECR LOT 28 S1*W157.11' TPB S1*W157 .10' W154.61' N1*E159.71' E154.53' TPB TGW & SUB TO EZ |
| Geographic ID: | S6435-00-00028-4 | Agent Code: | |
| Type: | Real | | |
| Tax Area: | 380 - APPRAISER-Cpvl Schl Dist, Special Dist, improved & less than 1 acre | Land Use Code | 11 |
| Open Space: | N | DFL | N |
| Historic Property: | N | Remodel Property: | N |
| Multi-Family Redevelopment: | N | | |
| Township: | | Section: | |
| Range: | |
Location |
| Address: | 813 HAZZLE CT COUPEVILLE, WA 98239 | Mapsco: | |
| Neighborhood: | Cycle 2 | Map ID: | 65 |
| Neighborhood CD: | 2 |
Owner |
| Name: | DOMINGUEZ, MICHAEL R | Owner ID: | 291514 |
| Mailing Address: | AMY L DOMINGUEZ 813 HAZZLE CT COUPEVILLE, WA 98239 | % Ownership: | 100.0000000000% |
| | | Exemptions: | |
Taxes and Assessment Details
Values
| (+) Improvement Homesite Value: | + | $0 | |
| (+) Improvement Non-Homesite Value: | + | $312,256 | |
| (+) Land Homesite Value: | + | $0 | |
| (+) Land Non-Homesite Value: | + | $230,000 | |
| (+) Curr Use (HS): | + | $0 | $0 |
| (+) Curr Use (NHS): | + | $0 | $0 |
| | | -------------------------- | |
| (=) Market Value: | = | $542,256 | |
| (–) Productivity Loss: | – | $0 | |
| | | -------------------------- | |
| (=) Subtotal: | = | $542,256 | |
| (+) Senior Appraised Value: | + | $0 | |
| (+) Non-Senior Appraised Value: | + | $542,256 | |
| | | -------------------------- | |
| (=) Total Appraised Value: | = | $542,256 | |
| (–) Senior Exemption Loss: | – | $0 | |
| (–) Exemption Loss: | – | $0 | |
| | | -------------------------- | |
| (=) Taxable Value: | = | $542,256 | |
Taxing Jurisdiction
| Owner: | DOMINGUEZ, MICHAEL R | | |
| % Ownership: | 100.0000000000% | | |
| Total Value: | $542,256 | | |
| Tax Area: | 380 - APPRAISER-Cpvl Schl Dist, Special Dist, improved & less than 1 acre |
| CF | Conservation Futures | 0.0316035091 | $542,256 | $542,256 | $17.14 | | |
| CEM2 | Cemetery #2 | 0.0095056933 | $542,256 | $542,256 | $5.15 | | |
| FIRE5 | Fire & Rescue Dist #5 C Whidbey GEN | 1.2008080668 | $542,256 | $542,256 | $651.15 | | |
| FIRE5BOND | Fire & Rescue Dist #5 C Whidbey BOND | 0.1400090713 | $542,256 | $542,256 | $75.92 | | |
| HOBOND | Hospital BOND | 0.1910887512 | $542,256 | $542,256 | $103.62 | | |
| HOGEN | Hospital GEN | 0.3902502903 | $542,256 | $542,256 | $211.62 | | |
| CE | County Current Expense | 0.3708482477 | $542,256 | $542,256 | $201.09 | | |
| CR | County Roads | 0.4584763726 | $542,256 | $542,256 | $248.61 | | |
| ISLANDEMS | Hospital GEN (EMS) | 0.5000000000 | $542,256 | $542,256 | $271.13 | | |
| LIB | Library Sno-Isle GEN | 0.3153421757 | $542,256 | $542,256 | $171.00 | | |
| LIBCAP | Library Sno-Isle BOND (Cap Fac Imp Area) | 0.0543427938 | $542,256 | $542,256 | $29.47 | | |
| POCOUP | Port of Coupeville GEN | 0.1093371703 | $542,256 | $542,256 | $59.29 | | |
| POCOUPIDD | Port of Coupeville IDD | 0.3409740022 | $542,256 | $542,256 | $184.90 | | |
| COUPSDTECH | School 204 CP (TECH) | 0.7545480007 | $542,256 | $542,256 | $409.16 | | |
| SCH204MO | School 204 Enrichment | 0.6716186034 | $542,256 | $542,256 | $364.19 | | |
| ST | State School | 1.3035497053 | $542,256 | $542,256 | $706.86 | | |
| ST2 | State School Part 2 | 0.8169543533 | $542,256 | $542,256 | $443.00 | | |
| | Total Tax Rate: | 7.6592568070 | | | | | |
| | | | | Taxes w/Current Exemptions: | $4,153.30 | | |
| | | | | Taxes w/o Exemptions: | $4,153.30 | | |
Improvement / Building
| Improvement #1: | RESIDENTIAL | State Code: | Y | 1966.0 sqft | Value: | $312,256 |
| Bathrooms: | 2.75 | Bedrooms: | 3 | | Ceiling: | DRY WALL SPRAYED | Exterior Wall/Cover: | WOOD SIDING | | Floor Covering: | CARPET/VINYL 80-20 | Floor Structure: | SLAB ABOVE GRADE | | Foundation: | SLAB | Heating: | BASEBOARD ELECTRIC | | Interior Finish: | DRYWALL PAINT | Plumbing Fixture Cnt: | 14 | | Roof Slope: | 4" IN 12" | Roof Structure/Cover: | BEAM ALUMINUM HEAVY |
|
| | Type | Description | Class CD | Sub Class CD | Year Built | Area |
| | BAS | BASE/MAIN FLOOR | 3 | 0 | 1979 | 962.0 |
| | CPD | OPEN CARPORT DIRT FLOOR | 3 | 0 | 1979 | 728.0 |
| | DWN | DOWNSTAIRS LIVING AREA | 3 | 0 | 1979 | 1004.0 |
| | UTY | STORAGE/UTILITY | 3 | 0 | 1979 | 1248.0 |
| | UTY | STORAGE/UTILITY | 3 | 0 | 1979 | 320.0 |
| | OWP | OPEN WOOD PORCH W/STEPS | 3 | 0 | 1979 | 159.3 |
Sketch
Property Image
Land
| 1 | 16 | AC (00.51-01.00) | 0.5100 | 22215.60 | 0.00 | 0.00 | 1.00 | $230,000 | $0 |
Roll Value History
| 2026 | N/A | N/A | N/A | N/A | N/A |
| 2025 | $312,256 | $230,000 | $0 | $542,256 | $542,256 |
| 2024 | $310,914 | $180,000 | $0 | $490,914 | $490,914 |
| 2023 | $315,216 | $180,000 | $0 | $495,216 | $495,216 |
| 2022 | $289,319 | $160,000 | $0 | $449,319 | $449,319 |
| 2021 | $254,963 | $110,000 | $0 | $364,963 | $364,963 |
| 2020 | $248,483 | $100,000 | $0 | $348,483 | $348,483 |
| 2019 | $181,849 | $120,000 | $0 | $301,849 | $301,849 |
| 2018 | $164,403 | $115,000 | $0 | $279,403 | $279,403 |
| 2017 | $165,372 | $100,000 | $0 | $265,372 | $265,372 |
| 2016 | $167,310 | $65,000 | $0 | $232,310 | $232,310 |
| 2015 | $169,249 | $65,000 | $0 | $234,249 | $234,249 |
| 2014 | $171,187 | $65,000 | $0 | $236,187 | $236,187 |
| 2013 | $173,125 | $65,000 | $0 | $238,125 | $238,125 |
| 2012 | $208,124 | $68,000 | $0 | $276,124 | $276,124 |
| 2011 | $210,198 | $80,000 | $0 | $290,198 | $290,198 |
| 2010 | $221,732 | $80,000 | $0 | $301,732 | $301,732 |
| 2009 | $228,622 | $94,400 | $0 | $323,022 | $323,022 |
| 2008 | $232,694 | $94,400 | $0 | $327,094 | $327,094 |
| 2007 | $236,775 | $80,000 | $0 | $316,775 | $316,775 |
Deed and Sales History
| 1 | 08/19/2019 | WD | Warranty Deed | HOPPOCK, JACOB A. | DOMINGUEZ, MICHAEL R | | | $356,000.00 | 39994 | 4470098 |
| 2 | 06/14/2013 | WD | Warranty Deed | BELLACERA, JOSEPH A | HOPPOCK, JACOB A. | | | $207,500.00 | 11666 | 4341900 |
| 3 | 11/01/1989 | WD | Warranty Deed | INTERWEST, SAVINGS B | BELLACERA, JOSEPH A | | | $70,000.00 | 95241 | 89016858 |
| 4 | 07/01/1989 | TRUSTEED | Trustee's Deed | HOWES, GORDON A | INTERWEST, SAVINGS B | | | $0.00 | 92793 | 89009403 |
| 5 | 09/01/1985 | WD | Warranty Deed | FRANCE, ROBERT C | HOWES, GORDON A | | | $75,000.00 | 52534 | 85009995 |
| 6 | 09/01/1979 | TRUSTEED | Trustee's Deed | MATLOCK, ALBERT | FRANCE, ROBERT C | | | $57,000.00 | 94698 | 359259 |
| 7 | 01/01/1979 | OTHER | Other - Misc. Documents | Unknown | MATLOCK, ALBERT | | | $2,400.00 | 906960 | 3475910 |
Payout Agreement
| No payout information available.. |