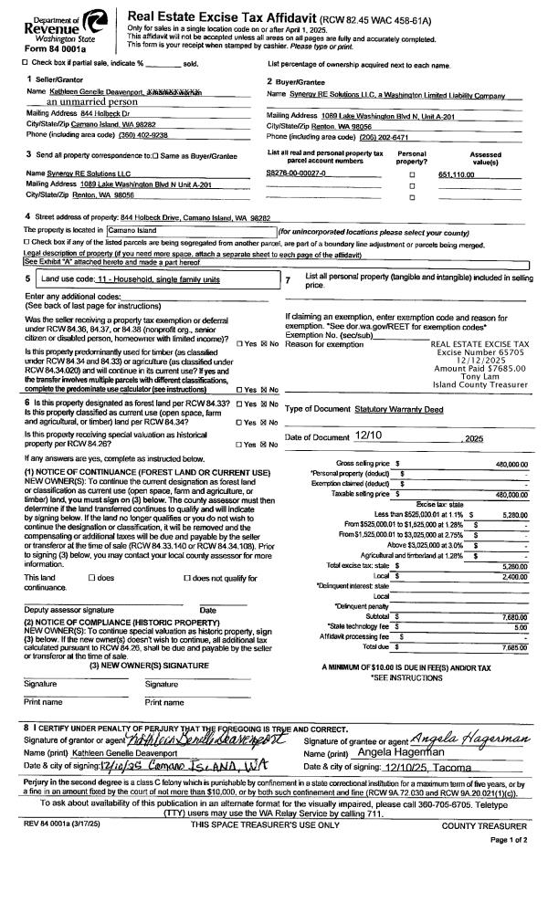
Property
Account |
| Property ID: | 238914 | Abbreviated Legal Description: | CROCKETT LK EST LOT 34 |
| Geographic ID: | S6435-00-00034-0 | Agent Code: | |
| Type: | Real | | |
| Tax Area: | 382 - APPRAISER-Cpvl Schl Dist, Special Dist, improved, greater than 1 acre | Land Use Code | 11 |
| Open Space: | N | DFL | N |
| Historic Property: | N | Remodel Property: | N |
| Multi-Family Redevelopment: | N | | |
| Township: | | Section: | |
| Range: | |
Location |
| Address: | 530 CROCKETT LAKE DR COUPEVILLE, WA 98239 | Mapsco: | |
| Neighborhood: | Cycle 2 | Map ID: | 65 |
| Neighborhood CD: | 2 |
Owner |
| Name: | KUYKENDALL, CHARLES W | Owner ID: | 86365 |
| Mailing Address: | SANDRA B KUYKENDALL 530 CROCKETT LAKE DR COUPEVILLE, WA 98239-9547 | % Ownership: | 100.0000000000% |
| | | Exemptions: | |
Taxes and Assessment Details
Values
| (+) Improvement Homesite Value: | + | $0 | |
| (+) Improvement Non-Homesite Value: | + | $313,877 | |
| (+) Land Homesite Value: | + | $0 | |
| (+) Land Non-Homesite Value: | + | $230,000 | |
| (+) Curr Use (HS): | + | $0 | $0 |
| (+) Curr Use (NHS): | + | $0 | $0 |
| | | -------------------------- | |
| (=) Market Value: | = | $543,877 | |
| (–) Productivity Loss: | – | $0 | |
| | | -------------------------- | |
| (=) Subtotal: | = | $543,877 | |
| (+) Senior Appraised Value: | + | $0 | |
| (+) Non-Senior Appraised Value: | + | $543,877 | |
| | | -------------------------- | |
| (=) Total Appraised Value: | = | $543,877 | |
| (–) Senior Exemption Loss: | – | $0 | |
| (–) Exemption Loss: | – | $0 | |
| | | -------------------------- | |
| (=) Taxable Value: | = | $543,877 | |
Taxing Jurisdiction
| Owner: | KUYKENDALL, CHARLES W | | |
| % Ownership: | 100.0000000000% | | |
| Total Value: | $543,877 | | |
| Tax Area: | 382 - APPRAISER-Cpvl Schl Dist, Special Dist, improved, greater than 1 acre |
| CF | Conservation Futures | 0.0316035091 | $543,877 | $543,877 | $17.19 | | |
| CEM2 | Cemetery #2 | 0.0095056933 | $543,877 | $543,877 | $5.17 | | |
| FIRE5 | Fire & Rescue Dist #5 C Whidbey GEN | 1.2008080668 | $543,877 | $543,877 | $653.09 | | |
| FIRE5BOND | Fire & Rescue Dist #5 C Whidbey BOND | 0.1400090713 | $543,877 | $543,877 | $76.15 | | |
| HOBOND | Hospital BOND | 0.1910887512 | $543,877 | $543,877 | $103.93 | | |
| HOGEN | Hospital GEN | 0.3902502903 | $543,877 | $543,877 | $212.25 | | |
| CE | County Current Expense | 0.3708482477 | $543,877 | $543,877 | $201.70 | | |
| CR | County Roads | 0.4584763726 | $543,877 | $543,877 | $249.35 | | |
| ISLANDEMS | Hospital GEN (EMS) | 0.5000000000 | $543,877 | $543,877 | $271.94 | | |
| LIB | Library Sno-Isle GEN | 0.3153421757 | $543,877 | $543,877 | $171.51 | | |
| LIBCAP | Library Sno-Isle BOND (Cap Fac Imp Area) | 0.0543427938 | $543,877 | $543,877 | $29.56 | | |
| POCOUP | Port of Coupeville GEN | 0.1093371703 | $543,877 | $543,877 | $59.47 | | |
| POCOUPIDD | Port of Coupeville IDD | 0.3409740022 | $543,877 | $543,877 | $185.45 | | |
| COUPSDTECH | School 204 CP (TECH) | 0.7545480007 | $543,877 | $543,877 | $410.38 | | |
| SCH204MO | School 204 Enrichment | 0.6716186034 | $543,877 | $543,877 | $365.28 | | |
| ST | State School | 1.3035497053 | $543,877 | $543,877 | $708.97 | | |
| ST2 | State School Part 2 | 0.8169543533 | $543,877 | $543,877 | $444.32 | | |
| | Total Tax Rate: | 7.6592568070 | | | | | |
| | | | | Taxes w/Current Exemptions: | $4,165.71 | | |
| | | | | Taxes w/o Exemptions: | $4,165.71 | | |
Improvement / Building
| Improvement #1: | RESIDENTIAL | State Code: | Y | 1130.0 sqft | Value: | $313,877 |
| Bathrooms: | 2 | Bedrooms: | 2 | | Ceiling: | DRYWALL PAINTED | Exterior Wall/Cover: | SHINGLE | | Floor Covering: | CERAMIC TILE/CPT 40-60 | Floor Structure: | WOOD W/SUBFLOOR | | Foundation: | CONCRETE | Heating: | FHA GAS | | Interior Finish: | DRYWALL PAINT | Plumbing Fixture Cnt: | 9 | | Roof Slope: | 8" IN 12" | Roof Structure/Cover: | CJ ASPHALT |
|
| | Type | Description | Class CD | Sub Class CD | Year Built | Area |
| | BAS | BASE/MAIN FLOOR | 3 | 0 | 1994 | 714.0 |
| | DGR | DETACHED GARAGE | 3 | 0 | 1994 | 720.0 |
| | UPS | UPPER STORY | 3 | 0 | 1994 | 416.0 |
| | OWP | OPEN WOOD PORCH W/STEPS | 3 | 0 | 1994 | 444.0 |
| | OP4 | OPEN PORCH W/CEILING-ROOF | 3 | 0 | 1994 | 96.0 |
| | UTY | STORAGE/UTILITY | 3 | 0 | 1994 | 192.0 |
| | OWC | OPEN WOOD PORCH W/STEPS/ROOF/C | 3 | 0 | 1994 | 27.0 |
| | OWC | OPEN WOOD PORCH W/STEPS/ROOF/C | 3 | 0 | 1994 | 112.0 |
| | CPD | OPEN CARPORT DIRT FLOOR | 3 | 0 | 1994 | 287.7 |
| | OWP | OPEN WOOD PORCH W/STEPS | 3 | 0 | 1994 | 52.0 |
Sketch
Property Image
Land
| 1 | 18 | AC (02.01-03.00) | 2.3900 | 104108.40 | 0.00 | 0.00 | 1.00 | $230,000 | $0 |
Roll Value History
| 2026 | N/A | N/A | N/A | N/A | N/A |
| 2025 | $313,877 | $230,000 | $0 | $543,877 | $543,877 |
| 2024 | $302,832 | $250,000 | $0 | $552,832 | $552,832 |
| 2023 | $306,514 | $220,000 | $0 | $526,514 | $526,514 |
| 2022 | $281,296 | $210,000 | $0 | $491,296 | $491,296 |
| 2021 | $247,513 | $140,000 | $0 | $387,513 | $387,513 |
| 2020 | $240,715 | $110,000 | $0 | $350,715 | $350,715 |
| 2019 | $171,048 | $150,000 | $0 | $321,048 | $321,048 |
| 2018 | $165,657 | $140,000 | $0 | $305,657 | $305,657 |
| 2017 | $166,636 | $120,000 | $0 | $286,636 | $286,636 |
| 2016 | $168,598 | $150,000 | $0 | $318,598 | $318,598 |
| 2015 | $170,558 | $100,000 | $0 | $270,558 | $270,558 |
| 2014 | $172,519 | $100,000 | $0 | $272,519 | $272,519 |
| 2013 | $174,480 | $100,000 | $0 | $274,480 | $274,480 |
| 2012 | $144,729 | $76,500 | $0 | $221,229 | $221,229 |
| 2011 | $146,518 | $90,000 | $0 | $236,518 | $236,518 |
| 2010 | $151,476 | $90,000 | $0 | $241,476 | $241,476 |
| 2009 | $157,971 | $191,200 | $0 | $349,171 | $349,171 |
| 2008 | $159,828 | $191,200 | $0 | $351,028 | $351,028 |
| 2007 | $161,712 | $191,200 | $0 | $352,912 | $352,912 |
Deed and Sales History
| 1 | 03/01/1994 | WD | Warranty Deed | HORVATH, FRANK | KUYKENDALL, CHARLES W | | | $62,500.00 | 40958 | 94006231 |
| 2 | 01/01/1984 | QCD | Quit Claim Deed | HORVATH, FRANK | HORVATH, FRANK | | | $0.00 | 40323 | 420769 |
| 3 | 06/01/1973 | EXECUTORD | Executor Deed | CROCKETT, LAKE C | HORVATH, FRANK | | | $9,200.00 | 47508 | 0 |
| 4 | 01/01/1900 | OTHER | Other - Misc. Documents | Unknown | CROCKETT, LAKE C | | | $0.00 | 0 | 0 |
Payout Agreement
| No payout information available.. |