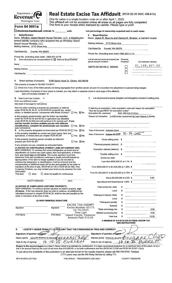
Property
Account |
| Property ID: | 238923 | Abbreviated Legal Description: | CROCKETT LK EST LOT 35 |
| Geographic ID: | S6435-00-00035-0 | Agent Code: | |
| Type: | Real | | |
| Tax Area: | 382 - APPRAISER-Cpvl Schl Dist, Special Dist, improved, greater than 1 acre | Land Use Code | 11 |
| Open Space: | N | DFL | N |
| Historic Property: | N | Remodel Property: | N |
| Multi-Family Redevelopment: | N | | |
| Township: | | Section: | |
| Range: | |
Location |
| Address: | 544 CROCKETT LAKE DR COUPEVILLE, WA 98239 | Mapsco: | |
| Neighborhood: | Cycle 2 | Map ID: | 65 |
| Neighborhood CD: | 2 |
Owner |
| Name: | PIPER, KENNETH J | Owner ID: | 268263 |
| Mailing Address: | ANASTASIA L PIPER 544 CROCKETT LAKE DR COUPEVILLE, WA 98239 | % Ownership: | 100.0000000000% |
| | | Exemptions: | |
Taxes and Assessment Details
Values
| (+) Improvement Homesite Value: | + | $0 | |
| (+) Improvement Non-Homesite Value: | + | $334,491 | |
| (+) Land Homesite Value: | + | $0 | |
| (+) Land Non-Homesite Value: | + | $270,000 | |
| (+) Curr Use (HS): | + | $0 | $0 |
| (+) Curr Use (NHS): | + | $0 | $0 |
| | | -------------------------- | |
| (=) Market Value: | = | $604,491 | |
| (–) Productivity Loss: | – | $0 | |
| | | -------------------------- | |
| (=) Subtotal: | = | $604,491 | |
| (+) Senior Appraised Value: | + | $0 | |
| (+) Non-Senior Appraised Value: | + | $604,491 | |
| | | -------------------------- | |
| (=) Total Appraised Value: | = | $604,491 | |
| (–) Senior Exemption Loss: | – | $0 | |
| (–) Exemption Loss: | – | $0 | |
| | | -------------------------- | |
| (=) Taxable Value: | = | $604,491 | |
Taxing Jurisdiction
| Owner: | PIPER, KENNETH J | | |
| % Ownership: | 100.0000000000% | | |
| Total Value: | $604,491 | | |
| Tax Area: | 382 - APPRAISER-Cpvl Schl Dist, Special Dist, improved, greater than 1 acre |
| CF | Conservation Futures | 0.0316035091 | $604,491 | $604,491 | $19.10 | | |
| CEM2 | Cemetery #2 | 0.0095056933 | $604,491 | $604,491 | $5.75 | | |
| FIRE5 | Fire & Rescue Dist #5 C Whidbey GEN | 1.2008080668 | $604,491 | $604,491 | $725.88 | | |
| FIRE5BOND | Fire & Rescue Dist #5 C Whidbey BOND | 0.1400090713 | $604,491 | $604,491 | $84.63 | | |
| HOBOND | Hospital BOND | 0.1910887512 | $604,491 | $604,491 | $115.51 | | |
| HOGEN | Hospital GEN | 0.3902502903 | $604,491 | $604,491 | $235.90 | | |
| CE | County Current Expense | 0.3708482477 | $604,491 | $604,491 | $224.17 | | |
| CR | County Roads | 0.4584763726 | $604,491 | $604,491 | $277.14 | | |
| ISLANDEMS | Hospital GEN (EMS) | 0.5000000000 | $604,491 | $604,491 | $302.25 | | |
| LIB | Library Sno-Isle GEN | 0.3153421757 | $604,491 | $604,491 | $190.62 | | |
| LIBCAP | Library Sno-Isle BOND (Cap Fac Imp Area) | 0.0543427938 | $604,491 | $604,491 | $32.85 | | |
| POCOUP | Port of Coupeville GEN | 0.1093371703 | $604,491 | $604,491 | $66.09 | | |
| POCOUPIDD | Port of Coupeville IDD | 0.3409740022 | $604,491 | $604,491 | $206.12 | | |
| COUPSDTECH | School 204 CP (TECH) | 0.7545480007 | $604,491 | $604,491 | $456.12 | | |
| SCH204MO | School 204 Enrichment | 0.6716186034 | $604,491 | $604,491 | $405.99 | | |
| ST | State School | 1.3035497053 | $604,491 | $604,491 | $787.98 | | |
| ST2 | State School Part 2 | 0.8169543533 | $604,491 | $604,491 | $493.84 | | |
| | Total Tax Rate: | 7.6592568070 | | | | | |
| | | | | Taxes w/Current Exemptions: | $4,629.94 | | |
| | | | | Taxes w/o Exemptions: | $4,629.94 | | |
Improvement / Building
| Improvement #1: | RESIDENTIAL | State Code: | Y | 1578.0 sqft | Value: | $334,491 |
| Bathrooms: | 1 | Bedrooms: | 1 | | Ceiling: | DRYWALL PAINTED | Exterior Wall/Cover: | CEMENT FIBER | | Floor Covering: | HARDWOOD/CARP 20-80 | Floor Structure: | WOOD ON WOOD JOIST | | Foundation: | CONCRETE | Heating: | WALL HEAT ELECTRIC | | Interior Finish: | DRYWALL PAINT | Plumbing Fixture Cnt: | 8 | | Roof Slope: | 10" IN 12" | Roof Structure/Cover: | CJ ASPHALT |
|
| | Type | Description | Class CD | Sub Class CD | Year Built | Area |
| | BAS | BASE/MAIN FLOOR | 3 | 0 | 2017 | 840.0 |
| | UPS | UPPER STORY | 3 | 0 | 2017 | 738.0 |
| | OWR | OPEN WOOD PORCH W/STEPS/ROOF | 3 | 0 | 2017 | 816.0 |
| | DGR | DETACHED GARAGE | 3 | 0 | 2017 | 704.0 |
Sketch
Property Image
Land
| 1 | 18 | AC (02.01-03.00) | 2.3600 | 102801.60 | 0.00 | 0.00 | 1.00 | $270,000 | $0 |
Roll Value History
| 2026 | N/A | N/A | N/A | N/A | N/A |
| 2025 | $334,491 | $270,000 | $0 | $604,491 | $604,491 |
| 2024 | $326,589 | $250,000 | $0 | $576,589 | $576,589 |
| 2023 | $329,223 | $220,000 | $0 | $549,223 | $549,223 |
| 2022 | $300,486 | $210,000 | $0 | $510,486 | $510,486 |
| 2021 | $263,353 | $140,000 | $0 | $403,353 | $403,353 |
| 2020 | $256,297 | $110,000 | $0 | $366,297 | $366,297 |
| 2019 | $190,897 | $150,000 | $0 | $340,897 | $340,897 |
| 2018 | $188,174 | $160,000 | $0 | $348,174 | $348,174 |
| 2017 | $155,281 | $150,000 | $0 | $305,281 | $305,281 |
| 2016 | $15,001 | $135,000 | $0 | $150,001 | $150,001 |
| 2015 | $15,001 | $150,000 | $0 | $165,001 | $165,001 |
| 2014 | $38,022 | $150,000 | $0 | $188,022 | $188,022 |
| 2013 | $39,507 | $150,000 | $0 | $189,507 | $189,507 |
| 2012 | $54,496 | $76,500 | $0 | $130,996 | $130,996 |
| 2011 | $56,639 | $90,000 | $0 | $146,639 | $146,639 |
| 2010 | $58,959 | $90,000 | $0 | $148,959 | $148,959 |
| 2009 | $61,348 | $188,800 | $0 | $250,148 | $250,148 |
| 2008 | $62,762 | $188,800 | $0 | $251,562 | $251,562 |
| 2007 | $65,060 | $188,800 | $0 | $253,860 | $253,860 |
Deed and Sales History
| 1 | 08/08/2025 | QCD | Quit Claim Deed | PIPER, ANASTASIA | PIPER, KENNETH JAY | | | $0.00 | 64611 | 4590156 |
| 2 | 10/27/2014 | WD | Warranty Deed | PIPER, KENNETH J | PIPER, KENNETH J | | | $0.00 | 17920 | 4370259 |
| 3 | 10/27/2014 | WD | Warranty Deed | FULBRIGHT TRUSTEE, ALFRED E | PIPER, KENNETH J | | | $170,000.00 | 17398 | 4367809 |
| 4 | 09/06/2005 | WD | Warranty Deed | SWENSEN, DWAYNE M | FULBRIGHT TRUSTEE, ALFRED E | | | $219,500.00 | 54527 | 414177 |
| 5 | 01/01/1900 | OTHER | Other - Misc. Documents | Unknown | SWENSEN, DWAYNE M | | | $0.00 | 0 | 0 |
Payout Agreement
| No payout information available.. |