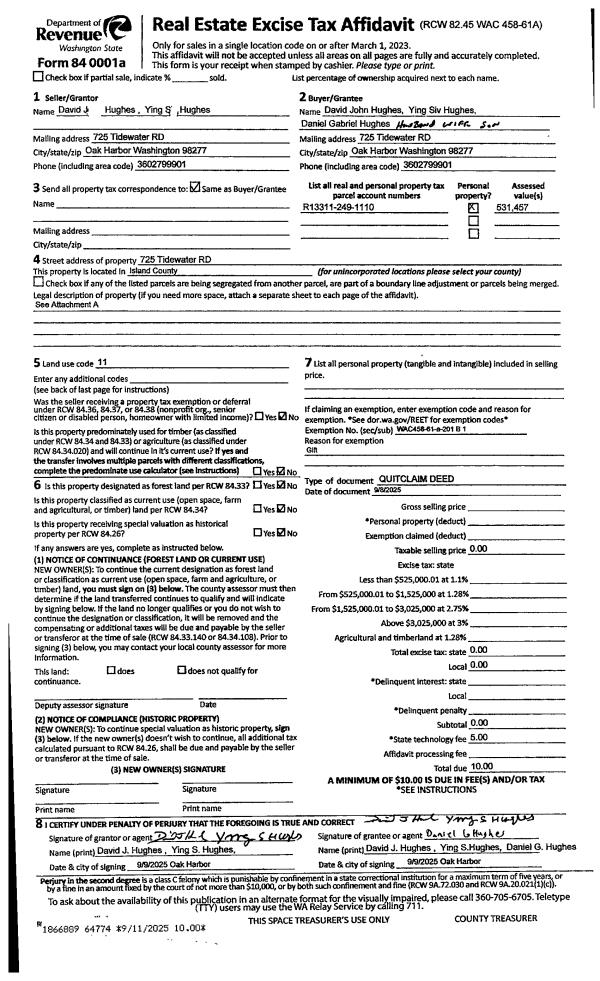
Property
Account |
| Property ID: | 238941 | Abbreviated Legal Description: | CROCKETT LAKE EST #1 LOT 36 SL2A: W/2 OF PT LOT 36 LY NW OF LN: BG SLY CR LOT 36 N17*W141.075' TPB OF SD LN NELY TP ON NE LN LOT 36 EQUID BETW NE & SE CRS SD LOT & TERM OF LN TGW & SUB EZ |
| Geographic ID: | S6435-00-00036-2 | Agent Code: | |
| Type: | Real | | |
| Tax Area: | 380 - APPRAISER-Cpvl Schl Dist, Special Dist, improved & less than 1 acre | Land Use Code | 11 |
| Open Space: | N | DFL | N |
| Historic Property: | N | Remodel Property: | N |
| Multi-Family Redevelopment: | N | | |
| Township: | | Section: | |
| Range: | |
Location |
| Address: | 929 S UTOPIA LN COUPEVILLE, WA 98239 | Mapsco: | |
| Neighborhood: | Cycle 2 | Map ID: | 65 |
| Neighborhood CD: | 2 |
Owner |
| Name: | FISH, MICHELLE | Owner ID: | 281531 |
| Mailing Address: | MARK S WHITMER 929 UTOPIA LN COUPEVILLE, WA 98239 | % Ownership: | 100.0000000000% |
| | | Exemptions: | |
Taxes and Assessment Details
Values
| (+) Improvement Homesite Value: | + | $0 | |
| (+) Improvement Non-Homesite Value: | + | $118,971 | |
| (+) Land Homesite Value: | + | $0 | |
| (+) Land Non-Homesite Value: | + | $270,000 | |
| (+) Curr Use (HS): | + | $0 | $0 |
| (+) Curr Use (NHS): | + | $0 | $0 |
| | | -------------------------- | |
| (=) Market Value: | = | $388,971 | |
| (–) Productivity Loss: | – | $0 | |
| | | -------------------------- | |
| (=) Subtotal: | = | $388,971 | |
| (+) Senior Appraised Value: | + | $0 | |
| (+) Non-Senior Appraised Value: | + | $388,971 | |
| | | -------------------------- | |
| (=) Total Appraised Value: | = | $388,971 | |
| (–) Senior Exemption Loss: | – | $0 | |
| (–) Exemption Loss: | – | $0 | |
| | | -------------------------- | |
| (=) Taxable Value: | = | $388,971 | |
Taxing Jurisdiction
| Owner: | FISH, MICHELLE | | |
| % Ownership: | 100.0000000000% | | |
| Total Value: | $388,971 | | |
| Tax Area: | 380 - APPRAISER-Cpvl Schl Dist, Special Dist, improved & less than 1 acre |
| CF | Conservation Futures | 0.0316035091 | $388,971 | $388,971 | $12.29 | | |
| CEM2 | Cemetery #2 | 0.0095056933 | $388,971 | $388,971 | $3.70 | | |
| FIRE5 | Fire & Rescue Dist #5 C Whidbey GEN | 1.2008080668 | $388,971 | $388,971 | $467.08 | | |
| FIRE5BOND | Fire & Rescue Dist #5 C Whidbey BOND | 0.1400090713 | $388,971 | $388,971 | $54.46 | | |
| HOBOND | Hospital BOND | 0.1910887512 | $388,971 | $388,971 | $74.33 | | |
| HOGEN | Hospital GEN | 0.3902502903 | $388,971 | $388,971 | $151.80 | | |
| CE | County Current Expense | 0.3708482477 | $388,971 | $388,971 | $144.25 | | |
| CR | County Roads | 0.4584763726 | $388,971 | $388,971 | $178.33 | | |
| ISLANDEMS | Hospital GEN (EMS) | 0.5000000000 | $388,971 | $388,971 | $194.49 | | |
| LIB | Library Sno-Isle GEN | 0.3153421757 | $388,971 | $388,971 | $122.66 | | |
| LIBCAP | Library Sno-Isle BOND (Cap Fac Imp Area) | 0.0543427938 | $388,971 | $388,971 | $21.14 | | |
| POCOUP | Port of Coupeville GEN | 0.1093371703 | $388,971 | $388,971 | $42.53 | | |
| POCOUPIDD | Port of Coupeville IDD | 0.3409740022 | $388,971 | $388,971 | $132.63 | | |
| COUPSDTECH | School 204 CP (TECH) | 0.7545480007 | $388,971 | $388,971 | $293.50 | | |
| SCH204MO | School 204 Enrichment | 0.6716186034 | $388,971 | $388,971 | $261.24 | | |
| ST | State School | 1.3035497053 | $388,971 | $388,971 | $507.04 | | |
| ST2 | State School Part 2 | 0.8169543533 | $388,971 | $388,971 | $317.77 | | |
| | Total Tax Rate: | 7.6592568070 | | | | | |
| | | | | Taxes w/Current Exemptions: | $2,979.24 | | |
| | | | | Taxes w/o Exemptions: | $2,979.24 | | |
Improvement / Building
| Improvement #1: | MANUFACTURED HOME | State Code: | Y | 1766.1 sqft | Value: | $118,971 |
| Bathrooms: | 0 | Bedrooms: | 0 | | Ceiling: | PLASTER PAINTED | Cooling: | EVAP NO DUCT | | Exterior Wall/Cover: | VINYL | Floor Covering: | CARPET 100% | | Floor Structure: | SLAB ON GRADE | Foundation: | SLAB | | Heating: | FHA ELECTRIC | Interior Finish: | PLASTER | | Plumbing Fixture Cnt: | 1 | Roof Slope: | FLAT | | Roof Structure/Cover: | CJ ALUMINIUM HEAVY |   |   |
|
| | Type | Description | Class CD | Sub Class CD | Year Built | Area |
| | BAS | BASE/MAIN FLOOR | 3 | 0 | 1992 | 1766.1 |
| | OWP | OPEN WOOD PORCH W/STEPS | 3 | 0 | 1992 | 695.9 |
| | UTY | STORAGE/UTILITY | 3 | 0 | 1992 | 624.0 |
Sketch
Property Image
Land
| 1 | 15 | SQ (12001-21780) | 0.5161 | 22481.32 | 0.00 | 0.00 | 1.00 | $270,000 | $0 |
Roll Value History
| 2026 | N/A | N/A | N/A | N/A | N/A |
| 2025 | $118,971 | $270,000 | $0 | $388,971 | $388,971 |
| 2024 | $112,706 | $250,000 | $0 | $362,706 | $362,706 |
| 2023 | $115,839 | $220,000 | $0 | $335,839 | $335,839 |
| 2022 | $109,206 | $210,000 | $0 | $319,206 | $319,206 |
| 2021 | $99,466 | $140,000 | $0 | $239,466 | $239,466 |
| 2020 | $99,409 | $110,000 | $0 | $209,409 | $209,409 |
| 2019 | $83,504 | $150,000 | $0 | $233,504 | $233,504 |
| 2018 | $81,018 | $160,000 | $0 | $241,018 | $241,018 |
| 2017 | $82,983 | $150,000 | $0 | $232,983 | $232,983 |
| 2016 | $83,926 | $135,000 | $0 | $218,926 | $218,926 |
| 2015 | $85,816 | $85,000 | $0 | $170,816 | $170,816 |
| 2014 | $87,704 | $85,000 | $0 | $172,704 | $172,704 |
| 2013 | $89,592 | $85,000 | $0 | $174,592 | $113,485 |
| 2012 | $89,049 | $85,000 | $0 | $174,049 | $113,132 |
| 2011 | $90,852 | $100,000 | $0 | $190,852 | $124,054 |
| 2010 | $87,014 | $100,000 | $0 | $187,014 | $121,559 |
| 2009 | $91,618 | $130,000 | $0 | $221,618 | $212,776 |
| 2008 | $94,208 | $130,097 | $0 | $224,305 | $142,775 |
| 2007 | $94,555 | $130,576 | $0 | $225,131 | $225,131 |
Deed and Sales History
| 1 | 08/08/2017 | QCD | Quit Claim Deed | WHITMER, MARK S | FISH, MICHELLE | | | $0.00 | 30729 | 4428588 |
| 2 | 03/26/2015 | WD | Warranty Deed | ALLEN, BEVERLY E | WHITMER, MARK S | | | $191,250.00 | 19046 | 4376134 |
| 3 | 09/22/2005 | 5 | DNU - Marriage License/Name Change | ALLEN, G M | ALLEN, BEVERLY E | | | $0.00 | 70643 | 0 |
| 4 | 05/01/1991 | OTHER | Other - Misc. Documents | ALLEN, GEORGE M | ALLEN, G M | | | $55,127.00 | 11111111 | 0 |
| 5 | 10/01/1989 | WD | Warranty Deed | SCRUPPS, WILLIAM F | ALLEN, GEORGE M | | | $27,500.00 | 94406 | 89014443 |
| 6 | 07/01/1982 | TRUSTEED | Trustee's Deed | PYVIS, GORDON J | SCRUPPS, WILLIAM F | | | $22,000.00 | 21787 | 398816 |
| 7 | 01/01/1900 | OTHER | Other - Misc. Documents | Unknown | PYVIS, GORDON J | | | $0.00 | 0 | 0 |
Payout Agreement
| No payout information available.. |