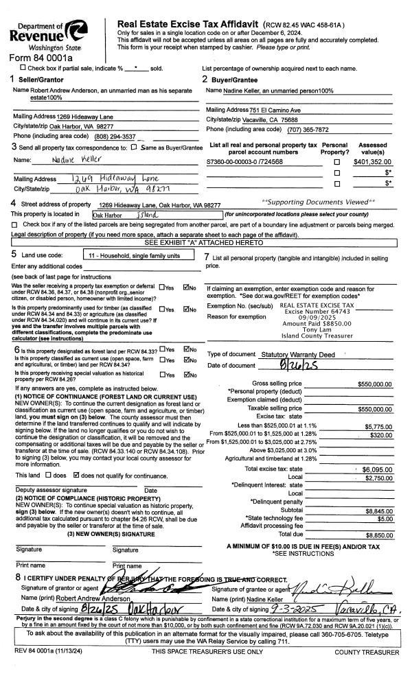
Property
Account |
| Property ID: | 238978 | Abbreviated Legal Description: | CROCKETT LK EST LOT 37 EX: BG MST SLY CR LOT 37 N17*W ALG SWLY LN SD LOT 260' N58*E238.69' TO NELY LN SD LOT S29*E ALG SD NELY LN 252.23' S58*W ALG SELY LN SD LOT 292.19' TPB (AKA LOT 37-A SP 73-036) |
| Geographic ID: | S6435-00-00037-1 | Agent Code: | |
| Type: | Real | | |
| Tax Area: | 380 - APPRAISER-Cpvl Schl Dist, Special Dist, improved & less than 1 acre | Land Use Code | 11 |
| Open Space: | N | DFL | N |
| Historic Property: | N | Remodel Property: | N |
| Multi-Family Redevelopment: | N | | |
| Township: | | Section: | |
| Range: | |
Location |
| Address: | 903 CASEY AVE COUPEVILLE, WA 98239 | Mapsco: | |
| Neighborhood: | Cycle 2 | Map ID: | 65 |
| Neighborhood CD: | 2 |
Owner |
| Name: | BALL CO-TRUSTEE, EARL L | Owner ID: | 282419 |
| Mailing Address: | LINDA D BALL CO-TRUSTEE 903 CASEY AVENUE COUPEVILLE, WA 98239 | % Ownership: | 100.0000000000% |
| | | Exemptions: | |
Taxes and Assessment Details
Values
| (+) Improvement Homesite Value: | + | $0 | |
| (+) Improvement Non-Homesite Value: | + | $173,533 | |
| (+) Land Homesite Value: | + | $0 | |
| (+) Land Non-Homesite Value: | + | $270,000 | |
| (+) Curr Use (HS): | + | $0 | $0 |
| (+) Curr Use (NHS): | + | $0 | $0 |
| | | -------------------------- | |
| (=) Market Value: | = | $443,533 | |
| (–) Productivity Loss: | – | $0 | |
| | | -------------------------- | |
| (=) Subtotal: | = | $443,533 | |
| (+) Senior Appraised Value: | + | $0 | |
| (+) Non-Senior Appraised Value: | + | $443,533 | |
| | | -------------------------- | |
| (=) Total Appraised Value: | = | $443,533 | |
| (–) Senior Exemption Loss: | – | $0 | |
| (–) Exemption Loss: | – | $0 | |
| | | -------------------------- | |
| (=) Taxable Value: | = | $443,533 | |
Taxing Jurisdiction
| Owner: | BALL CO-TRUSTEE, EARL L | | |
| % Ownership: | 100.0000000000% | | |
| Total Value: | $443,533 | | |
| Tax Area: | 380 - APPRAISER-Cpvl Schl Dist, Special Dist, improved & less than 1 acre |
| CF | Conservation Futures | 0.0316035091 | $443,533 | $443,533 | $14.02 | | |
| CEM2 | Cemetery #2 | 0.0095056933 | $443,533 | $443,533 | $4.22 | | |
| FIRE5 | Fire & Rescue Dist #5 C Whidbey GEN | 1.2008080668 | $443,533 | $443,533 | $532.60 | | |
| FIRE5BOND | Fire & Rescue Dist #5 C Whidbey BOND | 0.1400090713 | $443,533 | $443,533 | $62.10 | | |
| HOBOND | Hospital BOND | 0.1910887512 | $443,533 | $443,533 | $84.75 | | |
| HOGEN | Hospital GEN | 0.3902502903 | $443,533 | $443,533 | $173.09 | | |
| CE | County Current Expense | 0.3708482477 | $443,533 | $443,533 | $164.48 | | |
| CR | County Roads | 0.4584763726 | $443,533 | $443,533 | $203.35 | | |
| ISLANDEMS | Hospital GEN (EMS) | 0.5000000000 | $443,533 | $443,533 | $221.77 | | |
| LIB | Library Sno-Isle GEN | 0.3153421757 | $443,533 | $443,533 | $139.86 | | |
| LIBCAP | Library Sno-Isle BOND (Cap Fac Imp Area) | 0.0543427938 | $443,533 | $443,533 | $24.10 | | |
| POCOUP | Port of Coupeville GEN | 0.1093371703 | $443,533 | $443,533 | $48.49 | | |
| POCOUPIDD | Port of Coupeville IDD | 0.3409740022 | $443,533 | $443,533 | $151.23 | | |
| COUPSDTECH | School 204 CP (TECH) | 0.7545480007 | $443,533 | $443,533 | $334.67 | | |
| SCH204MO | School 204 Enrichment | 0.6716186034 | $443,533 | $443,533 | $297.89 | | |
| ST | State School | 1.3035497053 | $443,533 | $443,533 | $578.17 | | |
| ST2 | State School Part 2 | 0.8169543533 | $443,533 | $443,533 | $362.35 | | |
| | Total Tax Rate: | 7.6592568070 | | | | | |
| | | | | Taxes w/Current Exemptions: | $3,397.14 | | |
| | | | | Taxes w/o Exemptions: | $3,397.14 | | |
Improvement / Building
| Improvement #1: | MANUFACTURED HOME | State Code: | Y | 1680.0 sqft | Value: | $173,533 |
| Bathrooms: | 0 | Bedrooms: | 0 | | Ceiling: | PLASTER PAINTED | Cooling: | EVAP NO DUCT | | Exterior Wall/Cover: | VINYL | Floor Covering: | CARPET 100% | | Floor Structure: | SLAB ON GRADE | Foundation: | SLAB | | Heating: | FHA ELECTRIC | Interior Finish: | PLASTER | | Plumbing Fixture Cnt: | 1 | Roof Slope: | FLAT | | Roof Structure/Cover: | CJ ALUMINIUM HEAVY |   |   |
|
| | Type | Description | Class CD | Sub Class CD | Year Built | Area |
| | BAS | BASE/MAIN FLOOR | 4 | 0 | 2003 | 1680.0 |
| | OWP | OPEN WOOD PORCH W/STEPS | 4 | 0 | 2003 | 251.5 |
| | OWC | OPEN WOOD PORCH W/STEPS/ROOF/C | 4 | 0 | 2003 | 226.3 |
| | UTY | STORAGE/UTILITY | 4 | 0 | 2003 | 280.0 |
| | DGR | DETACHED GARAGE | 4 | 0 | 2003 | 480.0 |
Sketch
Property Image
Land
| 1 | 16 | AC (00.51-01.00) | 0.5400 | 23522.40 | 0.00 | 0.00 | 1.00 | $270,000 | $0 |
Roll Value History
| 2026 | N/A | N/A | N/A | N/A | N/A |
| 2025 | $173,533 | $270,000 | $0 | $443,533 | $443,533 |
| 2024 | $164,883 | $250,000 | $0 | $414,883 | $414,883 |
| 2023 | $148,056 | $220,000 | $0 | $368,056 | $368,056 |
| 2022 | $138,137 | $210,000 | $0 | $348,137 | $348,137 |
| 2021 | $123,997 | $140,000 | $0 | $263,997 | $263,997 |
| 2020 | $122,156 | $110,000 | $0 | $232,156 | $232,156 |
| 2019 | $101,343 | $150,000 | $0 | $251,343 | $251,343 |
| 2018 | $99,485 | $160,000 | $0 | $259,485 | $259,485 |
| 2017 | $100,480 | $150,000 | $0 | $250,480 | $250,480 |
| 2016 | $101,473 | $135,000 | $0 | $236,473 | $236,473 |
| 2015 | $103,462 | $85,000 | $0 | $188,462 | $188,462 |
| 2014 | $104,456 | $85,000 | $0 | $189,456 | $189,456 |
| 2013 | $106,444 | $85,000 | $0 | $191,444 | $191,444 |
| 2012 | $116,043 | $85,000 | $0 | $201,043 | $201,043 |
| 2011 | $116,986 | $100,000 | $0 | $216,986 | $216,986 |
| 2010 | $122,844 | $100,000 | $0 | $222,844 | $222,844 |
| 2009 | $127,243 | $130,000 | $0 | $257,243 | $257,243 |
| 2008 | $129,408 | $129,408 | $0 | $258,816 | $258,816 |
| 2007 | $107,467 | $130,000 | $0 | $237,467 | $237,467 |
Deed and Sales History
| 1 | 10/12/2017 | WD | Warranty Deed | FABERSKI, PETER F | BALL CO-TRUSTEE, EARL L | | | $305,000.00 | 31504 | 4432034 |
| 2 | 01/19/2007 | WD | Warranty Deed | MUNRO, DENIS/KAREN L | FABERSKI, PETER F | | | $282,000.00 | 70196 | 4192136 |
| 3 | 02/01/1998 | WD | Warranty Deed | BURNETT, RONALD W | MUNRO, DENIS / | | | $27,000.00 | 80699 | 0 |
| 4 | 02/01/1998 | WD | Warranty Deed | MUNRO, DENIS / | MUNRO, DENIS/KAREN L | | | $60,500.00 | 80698 | 98003827 |
| 5 | 10/01/1995 | OTHER | Other - Misc. Documents | BURNETT, RONALD E | BURNETT, RONALD W | | | $0.00 | 53467 | 0 |
| 6 | 08/01/1995 | OTHER | Other - Misc. Documents | BURNETT, RICHARD L | BURNETT, RONALD E | | | $0.00 | 66612 | 0 |
| 7 | 01/01/1900 | OTHER | Other - Misc. Documents | Unknown | BURNETT, RICHARD L | | | $0.00 | 0 | 0 |
Payout Agreement
| No payout information available.. |