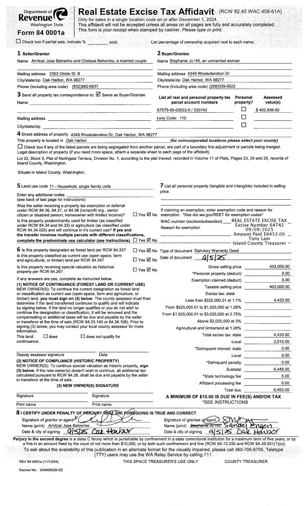
Property
Account |
| Property ID: | 239085 | Abbreviated Legal Description: | CROCKETT LAKE EST LOT 39 SL4A BG S CR L39 N42 *W111.33' N53*E198.6' S24* E92.47' S65*W ALG CUR/R 34. 22' S53*W142.63' TPB |
| Geographic ID: | S6435-00-00039-4 | Agent Code: | |
| Type: | Real | | |
| Tax Area: | 380 - APPRAISER-Cpvl Schl Dist, Special Dist, improved & less than 1 acre | Land Use Code | 11 |
| Open Space: | N | DFL | N |
| Historic Property: | N | Remodel Property: | N |
| Multi-Family Redevelopment: | N | | |
| Township: | | Section: | |
| Range: | |
Location |
| Address: | 884 CASEY AVE COUPEVILLE, WA 98239 | Mapsco: | |
| Neighborhood: | Cycle 2 | Map ID: | 65 |
| Neighborhood CD: | 2 |
Owner |
| Name: | MILLER, WAYNE B | Owner ID: | 256022 |
| Mailing Address: | MARJORY L MILLER 884 CASEY AVE COUPEVILLE, WA 98239 | % Ownership: | 100.0000000000% |
| | | Exemptions: | |
Taxes and Assessment Details
Values
| (+) Improvement Homesite Value: | + | $0 | |
| (+) Improvement Non-Homesite Value: | + | $279,815 | |
| (+) Land Homesite Value: | + | $0 | |
| (+) Land Non-Homesite Value: | + | $270,000 | |
| (+) Curr Use (HS): | + | $0 | $0 |
| (+) Curr Use (NHS): | + | $0 | $0 |
| | | -------------------------- | |
| (=) Market Value: | = | $549,815 | |
| (–) Productivity Loss: | – | $0 | |
| | | -------------------------- | |
| (=) Subtotal: | = | $549,815 | |
| (+) Senior Appraised Value: | + | $0 | |
| (+) Non-Senior Appraised Value: | + | $549,815 | |
| | | -------------------------- | |
| (=) Total Appraised Value: | = | $549,815 | |
| (–) Senior Exemption Loss: | – | $0 | |
| (–) Exemption Loss: | – | $0 | |
| | | -------------------------- | |
| (=) Taxable Value: | = | $549,815 | |
Taxing Jurisdiction
| Owner: | MILLER, WAYNE B | | |
| % Ownership: | 100.0000000000% | | |
| Total Value: | $549,815 | | |
| Tax Area: | 380 - APPRAISER-Cpvl Schl Dist, Special Dist, improved & less than 1 acre |
| CF | Conservation Futures | 0.0316035091 | $549,815 | $549,815 | $17.38 | | |
| CEM2 | Cemetery #2 | 0.0095056933 | $549,815 | $549,815 | $5.23 | | |
| FIRE5 | Fire & Rescue Dist #5 C Whidbey GEN | 1.2008080668 | $549,815 | $549,815 | $660.22 | | |
| FIRE5BOND | Fire & Rescue Dist #5 C Whidbey BOND | 0.1400090713 | $549,815 | $549,815 | $76.98 | | |
| HOBOND | Hospital BOND | 0.1910887512 | $549,815 | $549,815 | $105.06 | | |
| HOGEN | Hospital GEN | 0.3902502903 | $549,815 | $549,815 | $214.57 | | |
| CE | County Current Expense | 0.3708482477 | $549,815 | $549,815 | $203.90 | | |
| CR | County Roads | 0.4584763726 | $549,815 | $549,815 | $252.08 | | |
| ISLANDEMS | Hospital GEN (EMS) | 0.5000000000 | $549,815 | $549,815 | $274.91 | | |
| LIB | Library Sno-Isle GEN | 0.3153421757 | $549,815 | $549,815 | $173.38 | | |
| LIBCAP | Library Sno-Isle BOND (Cap Fac Imp Area) | 0.0543427938 | $549,815 | $549,815 | $29.88 | | |
| POCOUP | Port of Coupeville GEN | 0.1093371703 | $549,815 | $549,815 | $60.12 | | |
| POCOUPIDD | Port of Coupeville IDD | 0.3409740022 | $549,815 | $549,815 | $187.47 | | |
| COUPSDTECH | School 204 CP (TECH) | 0.7545480007 | $549,815 | $549,815 | $414.86 | | |
| SCH204MO | School 204 Enrichment | 0.6716186034 | $549,815 | $549,815 | $369.27 | | |
| ST | State School | 1.3035497053 | $549,815 | $549,815 | $716.71 | | |
| ST2 | State School Part 2 | 0.8169543533 | $549,815 | $549,815 | $449.17 | | |
| | Total Tax Rate: | 7.6592568070 | | | | | |
| | | | | Taxes w/Current Exemptions: | $4,211.19 | | |
| | | | | Taxes w/o Exemptions: | $4,211.19 | | |
Improvement / Building
| Improvement #1: | MANUFACTURED HOME | State Code: | Y | 2779.2 sqft | Value: | $279,815 |
| Bathrooms: | 0 | Bedrooms: | 0 | | Ceiling: | PLASTER PAINTED | Cooling: | EVAP NO DUCT | | Exterior Wall/Cover: | VINYL | Floor Covering: | CARPET 100% | | Floor Structure: | SLAB ON GRADE | Foundation: | SLAB | | Heating: | FHA ELECTRIC | Interior Finish: | PLASTER | | Plumbing Fixture Cnt: | 1 | Roof Slope: | FLAT | | Roof Structure/Cover: | CJ ALUMINIUM HEAVY |   |   |
|
| | Type | Description | Class CD | Sub Class CD | Year Built | Area |
| | BAS | BASE/MAIN FLOOR | 5 | 0 | 2012 | 2779.2 |
| | OWP | OPEN WOOD PORCH W/STEPS | 5 | 0 | 2012 | 979.5 |
| | UB8 | BASEMENT UNFINISHED 8" | 5 | 0 | 2012 | 1716.0 |
| | BGR | BASEMENT GARAGE | 5 | 0 | 2012 | 858.0 |
| | OCP | OPEN CARPORT | 5 | 0 | 2012 | 480.0 |
Sketch
Property Image
Land
| 1 | 16 | AC (00.51-01.00) | 0.4600 | 20037.60 | 0.00 | 0.00 | 1.00 | $270,000 | $0 |
Roll Value History
| 2026 | N/A | N/A | N/A | N/A | N/A |
| 2025 | $279,815 | $270,000 | $0 | $549,815 | $549,815 |
| 2024 | $276,562 | $250,000 | $0 | $526,562 | $526,562 |
| 2023 | $243,332 | $220,000 | $0 | $463,332 | $463,332 |
| 2022 | $222,905 | $210,000 | $0 | $432,905 | $432,905 |
| 2021 | $198,279 | $140,000 | $0 | $338,279 | $338,279 |
| 2020 | $194,659 | $110,000 | $0 | $304,659 | $304,659 |
| 2019 | $156,734 | $150,000 | $0 | $306,734 | $306,734 |
| 2018 | $158,751 | $160,000 | $0 | $318,751 | $318,751 |
| 2017 | $170,599 | $150,000 | $0 | $320,599 | $320,599 |
| 2016 | $170,632 | $135,000 | $0 | $305,632 | $305,632 |
| 2015 | $170,648 | $85,000 | $0 | $255,648 | $255,648 |
| 2014 | $170,666 | $85,000 | $0 | $255,666 | $255,666 |
| 2013 | $170,682 | $85,000 | $0 | $255,682 | $255,682 |
| 2012 | $145,044 | $85,000 | $0 | $230,044 | $230,044 |
| 2011 | $104,558 | $100,000 | $0 | $204,558 | $204,558 |
| 2010 | $117,343 | $100,000 | $0 | $217,343 | $217,343 |
| 2009 | $120,861 | $130,000 | $0 | $250,861 | $250,861 |
| 2008 | $122,328 | $130,000 | $0 | $252,328 | $252,328 |
| 2007 | $124,742 | $130,000 | $0 | $254,742 | $254,742 |
Deed and Sales History
| 1 | 10/28/2011 | QCD | Quit Claim Deed | MILLER, WAYNE B | MILLER, WAYNE B | | | $0.00 | 6037 | 4304134 |
| 2 | 03/04/2011 | QCD | Quit Claim Deed | WARREN B MILLER | MILLER, WAYNE B | | | $0.00 | 3818 | 4292073 |
| 3 | 10/20/2010 | PRD | Personal Representatives Deed | MILLER, WARREN B | WARREN B MILLER | | | $0.00 | 2779 | 4284224 |
| 4 | 07/05/2005 | 5 | DNU - Marriage License/Name Change | MILLER, WARREN B | MILLER, WARREN B | | | $0.00 | 53208 | 4139849 |
| 5 | 07/01/1991 | OTHER | Other - Misc. Documents | Unknown | MILLER, WARREN B | | | $0.00 | 12473 | 0 |
| 6 | 07/01/1991 | QCD | Quit Claim Deed | MILLER, WARREN B | MILLER, WARREN B | | | $0.00 | 12474 | 91010581 |
| 7 | 01/01/1900 | OTHER | Other - Misc. Documents | Unknown | MILLER, WARREN B | | | $0.00 | 0 | 0 |
Payout Agreement
| No payout information available.. |