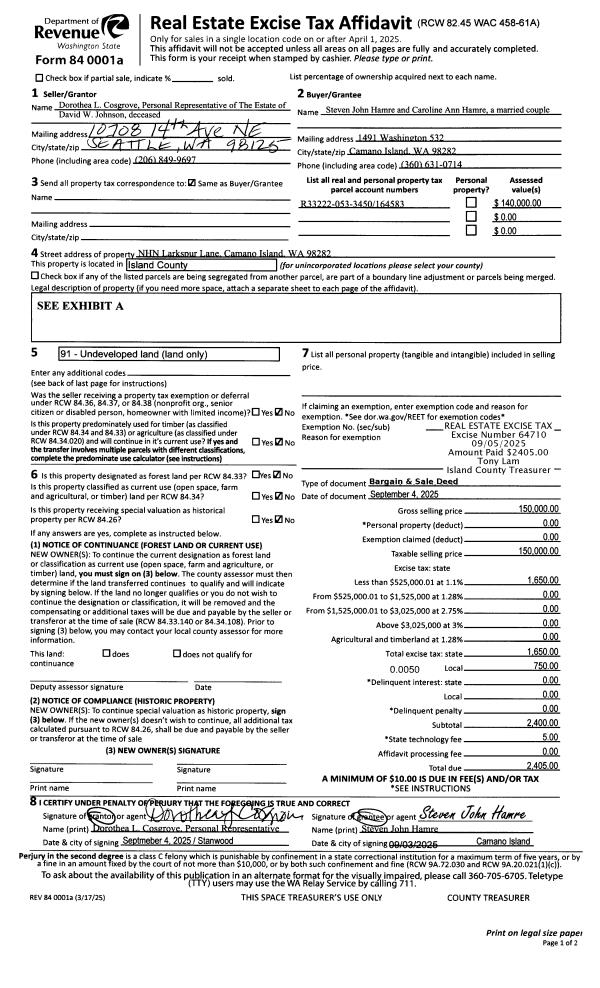
Property
Account |
| Property ID: | 239487 | Abbreviated Legal Description: | CROCKETT LK EST LOT 50 SL-4C E142.82' OF S135' LOT 50 |
| Geographic ID: | S6435-00-00050-4 | Agent Code: | |
| Type: | Real | | |
| Tax Area: | 380 - APPRAISER-Cpvl Schl Dist, Special Dist, improved & less than 1 acre | Land Use Code | 11 |
| Open Space: | N | DFL | N |
| Historic Property: | N | Remodel Property: | N |
| Multi-Family Redevelopment: | N | | |
| Township: | | Section: | |
| Range: | |
Location |
| Address: | 650 CROCKETT LAKE DR COUPEVILLE, WA 98239 | Mapsco: | |
| Neighborhood: | Cycle 2 | Map ID: | 64 |
| Neighborhood CD: | 2 |
Owner |
| Name: | ASNJORNSEN, JERRY G | Owner ID: | 200100 |
| Mailing Address: | KELLY M ASBJORNSEN 3201 304TH ST E GRAHAM, WA 98338-9707 | % Ownership: | 100.0000000000% |
| | | Exemptions: | |
Taxes and Assessment Details
Values
| (+) Improvement Homesite Value: | + | $0 | |
| (+) Improvement Non-Homesite Value: | + | $150,468 | |
| (+) Land Homesite Value: | + | $0 | |
| (+) Land Non-Homesite Value: | + | $270,000 | |
| (+) Curr Use (HS): | + | $0 | $0 |
| (+) Curr Use (NHS): | + | $0 | $0 |
| | | -------------------------- | |
| (=) Market Value: | = | $420,468 | |
| (–) Productivity Loss: | – | $0 | |
| | | -------------------------- | |
| (=) Subtotal: | = | $420,468 | |
| (+) Senior Appraised Value: | + | $0 | |
| (+) Non-Senior Appraised Value: | + | $420,468 | |
| | | -------------------------- | |
| (=) Total Appraised Value: | = | $420,468 | |
| (–) Senior Exemption Loss: | – | $0 | |
| (–) Exemption Loss: | – | $0 | |
| | | -------------------------- | |
| (=) Taxable Value: | = | $420,468 | |
Taxing Jurisdiction
| Owner: | ASNJORNSEN, JERRY G | | |
| % Ownership: | 100.0000000000% | | |
| Total Value: | $420,468 | | |
| Tax Area: | 380 - APPRAISER-Cpvl Schl Dist, Special Dist, improved & less than 1 acre |
| CF | Conservation Futures | 0.0316035091 | $420,468 | $420,468 | $13.29 | | |
| CEM2 | Cemetery #2 | 0.0095056933 | $420,468 | $420,468 | $4.00 | | |
| FIRE5 | Fire & Rescue Dist #5 C Whidbey GEN | 1.2008080668 | $420,468 | $420,468 | $504.90 | | |
| FIRE5BOND | Fire & Rescue Dist #5 C Whidbey BOND | 0.1400090713 | $420,468 | $420,468 | $58.87 | | |
| HOBOND | Hospital BOND | 0.1910887512 | $420,468 | $420,468 | $80.35 | | |
| HOGEN | Hospital GEN | 0.3902502903 | $420,468 | $420,468 | $164.09 | | |
| CE | County Current Expense | 0.3708482477 | $420,468 | $420,468 | $155.93 | | |
| CR | County Roads | 0.4584763726 | $420,468 | $420,468 | $192.77 | | |
| ISLANDEMS | Hospital GEN (EMS) | 0.5000000000 | $420,468 | $420,468 | $210.23 | | |
| LIB | Library Sno-Isle GEN | 0.3153421757 | $420,468 | $420,468 | $132.59 | | |
| LIBCAP | Library Sno-Isle BOND (Cap Fac Imp Area) | 0.0543427938 | $420,468 | $420,468 | $22.85 | | |
| POCOUP | Port of Coupeville GEN | 0.1093371703 | $420,468 | $420,468 | $45.97 | | |
| POCOUPIDD | Port of Coupeville IDD | 0.3409740022 | $420,468 | $420,468 | $143.37 | | |
| COUPSDTECH | School 204 CP (TECH) | 0.7545480007 | $420,468 | $420,468 | $317.26 | | |
| SCH204MO | School 204 Enrichment | 0.6716186034 | $420,468 | $420,468 | $282.39 | | |
| ST | State School | 1.3035497053 | $420,468 | $420,468 | $548.10 | | |
| ST2 | State School Part 2 | 0.8169543533 | $420,468 | $420,468 | $343.50 | | |
| | Total Tax Rate: | 7.6592568070 | | | | | |
| | | | | Taxes w/Current Exemptions: | $3,220.46 | | |
| | | | | Taxes w/o Exemptions: | $3,220.46 | | |
Improvement / Building
| Improvement #1: | RESIDENTIAL | State Code: | Y | 1300.0 sqft | Value: | $150,468 |
| Bathrooms: | 2 | Bedrooms: | 3 | | Ceiling: | DRYWALL PAINTED | Exterior Wall/Cover: | PLY/HARDBOARD T-111 | | Floor Covering: | CARPET/VINYL 80-20 | Floor Structure: | WOOD W/SUBFLOOR | | Foundation: | CONCRETE | Heating: | B/B HOT WATER-OIL | | Interior Finish: | DRYWALL PAINT | Plumbing Fixture Cnt: | 8 | | Roof Slope: | FLAT | Roof Structure/Cover: | CJ ALUMINIUM HEAVY |
|
| | Type | Description | Class CD | Sub Class CD | Year Built | Area |
| | BAS | BASE/MAIN FLOOR | 3 | 0 | 1972 | 1300.0 |
| | OWP | OPEN WOOD PORCH W/STEPS | 3 | 0 | 1972 | 500.0 |
Sketch
Property Image
Land
| 1 | 15 | SQ (12001-21780) | 0.4400 | 19166.40 | 0.00 | 0.00 | 1.00 | $270,000 | $0 |
Roll Value History
| 2026 | N/A | N/A | N/A | N/A | N/A |
| 2025 | $150,468 | $270,000 | $0 | $420,468 | $420,468 |
| 2024 | $153,191 | $250,000 | $0 | $403,191 | $403,191 |
| 2023 | $155,915 | $220,000 | $0 | $375,915 | $375,915 |
| 2022 | $143,650 | $210,000 | $0 | $353,650 | $353,650 |
| 2021 | $127,050 | $140,000 | $0 | $267,050 | $267,050 |
| 2020 | $124,426 | $110,000 | $0 | $234,426 | $234,426 |
| 2019 | $89,347 | $150,000 | $0 | $239,347 | $239,347 |
| 2018 | $74,294 | $140,000 | $0 | $214,294 | $214,294 |
| 2017 | $74,964 | $120,000 | $0 | $194,964 | $194,964 |
| 2016 | $76,303 | $100,000 | $0 | $176,303 | $176,303 |
| 2015 | $77,641 | $75,000 | $0 | $152,641 | $152,641 |
| 2014 | $78,980 | $75,000 | $0 | $153,980 | $153,980 |
| 2013 | $80,318 | $75,000 | $0 | $155,318 | $155,318 |
| 2012 | $84,094 | $68,000 | $0 | $152,094 | $152,094 |
| 2011 | $85,458 | $80,000 | $0 | $165,458 | $165,458 |
| 2010 | $93,615 | $80,000 | $0 | $173,615 | $173,615 |
| 2009 | $97,890 | $80,000 | $0 | $177,890 | $177,890 |
| 2008 | $97,890 | $80,000 | $0 | $177,890 | $177,890 |
| 2007 | $99,296 | $80,000 | $0 | $179,296 | $179,296 |
Deed and Sales History
| 1 | 06/26/2008 | WD | Warranty Deed | HENDERSON, JAMES G | ASNJORNSEN, JERRY G | | | $200,000.00 | 81827 | 4232718 |
| 2 | 02/01/1984 | WD | Warranty Deed | EMBRY, RONALD G | HENDERSON, JAMES G | | | $34,000.00 | 40772 | 422515 |
| 3 | 05/01/1983 | EXECUTORD | Executor Deed | EMBRY, WILEY B | EMBRY, RONALD G | | | $0.00 | 31282 | 409655 |
| 4 | 01/01/1900 | OTHER | Other - Misc. Documents | Unknown | EMBRY, WILEY B | | | $0.00 | 0 | 0 |
Payout Agreement
| No payout information available.. |