Property
Account |
| Property ID: | 23959 | Abbreviated Legal Description: | 62 - N/2 W/2 SW NE NW SUB TO EZ |
| Geographic ID: | R13221-446-1520 | Agent Code: | |
| Type: | Real | | |
| Tax Area: | 112 - APPRAISER-OH Schl Dist, outside OH, improved, greater than 1 acre | Land Use Code | 11 |
| Open Space: | N | DFL | N |
| Historic Property: | N | Remodel Property: | N |
| Multi-Family Redevelopment: | N | | |
| Township: | 32 | Section: | 21 |
| Range: | R1 |
Location |
| Address: | 1487 OLDTIMER ST OAK HARBOR, WA 98277 | Mapsco: | |
| Neighborhood: | Cycle 2 | Map ID: | 151 |
| Neighborhood CD: | 2 |
Owner |
| Name: | OLINGER TTEE, KAREN JANE | Owner ID: | 285103 |
| Mailing Address: | 103 ROSEDALE DR INDEPENDENCE, CA 93526 | % Ownership: | 100.0000000000% |
| | | Exemptions: | |
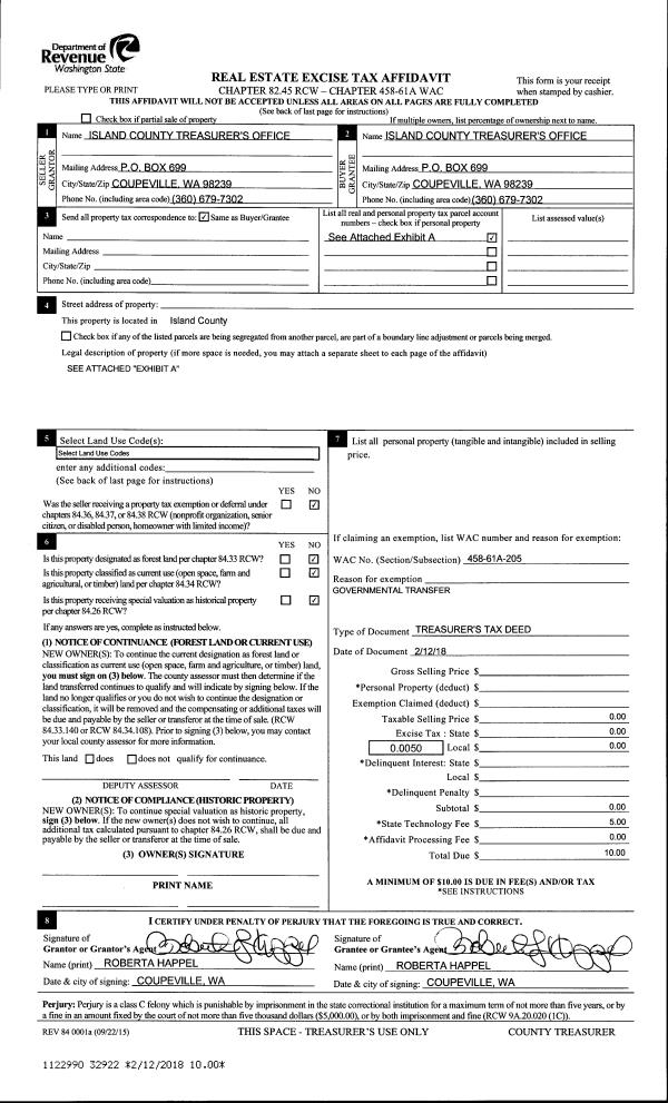
Taxes and Assessment Details
Values
| (+) Improvement Homesite Value: | + | $0 | |
| (+) Improvement Non-Homesite Value: | + | $263,065 | |
| (+) Land Homesite Value: | + | $0 | |
| (+) Land Non-Homesite Value: | + | $308,125 | |
| (+) Curr Use (HS): | + | $0 | $0 |
| (+) Curr Use (NHS): | + | $0 | $0 |
| | | -------------------------- | |
| (=) Market Value: | = | $571,190 | |
| (–) Productivity Loss: | – | $0 | |
| | | -------------------------- | |
| (=) Subtotal: | = | $571,190 | |
| (+) Senior Appraised Value: | + | $0 | |
| (+) Non-Senior Appraised Value: | + | $571,190 | |
| | | -------------------------- | |
| (=) Total Appraised Value: | = | $571,190 | |
| (–) Senior Exemption Loss: | – | $0 | |
| (–) Exemption Loss: | – | $0 | |
| | | -------------------------- | |
| (=) Taxable Value: | = | $571,190 | |
Taxing Jurisdiction
| Owner: | OLINGER TTEE, KAREN JANE | | |
| % Ownership: | 100.0000000000% | | |
| Total Value: | $571,190 | | |
| Tax Area: | 112 - APPRAISER-OH Schl Dist, outside OH, improved, greater than 1 acre |
| CF | Conservation Futures | 0.0316035091 | $571,190 | $571,190 | $18.05 | | |
| CEM1 | Cemetery #1 | 0.0040320932 | $571,190 | $571,190 | $2.30 | | |
| FIRE2 | Fire & Rescue Dist #2 N Whidbey GEN | 0.5475949600 | $571,190 | $571,190 | $312.78 | | |
| HOBOND | Hospital BOND | 0.1910887512 | $571,190 | $571,190 | $109.15 | | |
| HOGEN | Hospital GEN | 0.3902502903 | $571,190 | $571,190 | $222.91 | | |
| CE | County Current Expense | 0.3708482477 | $571,190 | $571,190 | $211.82 | | |
| CR | County Roads | 0.4584763726 | $571,190 | $571,190 | $261.88 | | |
| ISLANDEMS | Hospital GEN (EMS) | 0.5000000000 | $571,190 | $571,190 | $285.60 | | |
| LIB | Library Sno-Isle GEN | 0.3153421757 | $571,190 | $571,190 | $180.12 | | |
| NWHIDPRMT | P & R N Whidbey GEN | 0.2004466701 | $571,190 | $571,190 | $114.49 | | |
| SCH201MO | School 201 Enrichment | 1.8559231640 | $571,190 | $571,190 | $1,060.08 | | |
| ST | State School | 1.3035497053 | $571,190 | $571,190 | $744.57 | | |
| ST2 | State School Part 2 | 0.8169543533 | $571,190 | $571,190 | $466.64 | | |
| | Total Tax Rate: | 6.9861102925 | | | | | |
| | | | | Taxes w/Current Exemptions: | $3,990.39 | | |
| | | | | Taxes w/o Exemptions: | $3,990.39 | | |
Improvement / Building
| Improvement #1: | RESIDENTIAL | State Code: | Y | 1900.0 sqft | Value: | $263,065 |
| Bathrooms: | 2 | Bedrooms: | 3 | | Ceiling: | DRY WALL SPRAYED | Cooling: | HEAT PUMP/CONV/V | | Exterior Wall/Cover: | WOOD SIDING | Floor Covering: | CARPET/VINYL 80-20 | | Floor Structure: | WOOD W/SUBFLOOR | Foundation: | CONCRETE | | Interior Finish: | DRYWALL PAINT | Plumbing Fixture Cnt: | 9 | | Roof Slope: | 4" IN 12" | Roof Structure/Cover: | CJ ASPHALT |
|
| | Type | Description | Class CD | Sub Class CD | Year Built | Area |
| | BAS | BASE/MAIN FLOOR | 3 | 0 | 1973 | 1900.0 |
| | OCP | OPEN CARPORT | 3 | 0 | 1973 | 288.0 |
| | OWP | OPEN WOOD PORCH W/STEPS | 3 | 0 | 1973 | 46.1 |
| | DGR | DETACHED GARAGE | 3 | 0 | 1973 | 864.0 |
| | UTY | STORAGE/UTILITY | 3 | 0 | 1973 | 384.0 |
| | OCP | OPEN CARPORT | 3 | 0 | 1973 | 432.0 |
Sketch
Property Image
Land
| 1 | HS | HOMESITE | 1.0000 | 43560.00 | 0.00 | 0.00 | 1.00 | $220,000 | $0 |
| 2 | 91 | UNDEVELOPED LAND-METES AND BOUNDS | 1.5000 | 65340.00 | 0.00 | 0.00 | 1.00 | $88,125 | $0 |
Roll Value History
| 2026 | N/A | N/A | N/A | N/A | N/A |
| 2025 | $263,065 | $308,125 | $0 | $571,190 | $571,190 |
| 2024 | $251,670 | $300,000 | $0 | $551,670 | $551,670 |
| 2023 | $255,467 | $270,000 | $0 | $525,467 | $525,467 |
| 2022 | $234,766 | $250,000 | $0 | $484,766 | $484,766 |
| 2021 | $207,138 | $170,000 | $0 | $377,138 | $377,138 |
| 2020 | $202,627 | $150,000 | $0 | $352,627 | $352,627 |
| 2019 | $152,113 | $180,000 | $0 | $332,113 | $332,113 |
| 2018 | $140,334 | $160,000 | $0 | $300,334 | $300,334 |
| 2017 | $141,251 | $150,000 | $0 | $291,251 | $291,251 |
| 2016 | $143,103 | $120,000 | $0 | $263,103 | $263,103 |
| 2015 | $144,957 | $90,000 | $0 | $234,957 | $234,957 |
| 2014 | $146,808 | $90,000 | $0 | $236,808 | $236,808 |
| 2013 | $148,663 | $102,000 | $0 | $250,663 | $250,663 |
| 2012 | $151,509 | $102,000 | $0 | $253,509 | $253,509 |
| 2011 | $153,361 | $120,000 | $0 | $273,361 | $273,361 |
| 2010 | $158,692 | $120,000 | $0 | $278,692 | $278,692 |
| 2009 | $165,556 | $105,000 | $0 | $270,556 | $270,556 |
| 2008 | $174,249 | $115,200 | $0 | $289,449 | $289,449 |
| 2007 | $177,395 | $115,200 | $0 | $292,595 | $292,595 |
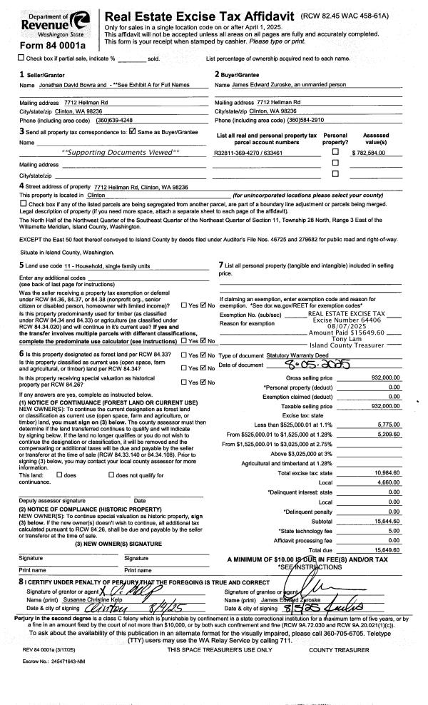
Deed and Sales History
| 1 | 05/14/2018 | QCD | Quit Claim Deed | OLINGER, DAVID E / KAREN JANE | OLINGER TTEE, KAREN JANE | | | $0.00 | 34174 | 4444779 |
| 2 | 03/01/1992 | WD | Warranty Deed | PARBS, BRADLEY N | OLINGER, DAVID E | | | $135,000.00 | 21005 | 92005044 |
| 3 | 01/01/1900 | OTHER | Other - Misc. Documents | Unknown | PARBS, BRADLEY N | | | $0.00 | 0 | 0 |
Payout Agreement
| No payout information available.. |