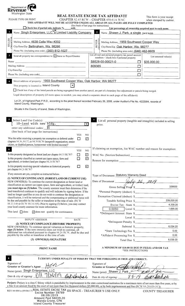
Property
Account |
| Property ID: | 239619 | Abbreviated Legal Description: | CROSSWOODS 1 LOT 12 |
| Geographic ID: | S6440-00-00012-0 | Agent Code: | |
| Type: | Real | | |
| Tax Area: | 110 - APPRAISER-OH Schl Dist, outside OH, improved & 1 acre or less | Land Use Code | 11 |
| Open Space: | N | DFL | N |
| Historic Property: | N | Remodel Property: | N |
| Multi-Family Redevelopment: | N | | |
| Township: | | Section: | |
| Range: | |
Location |
| Address: | 2118 CROSSWOODS CIR OAK HARBOR, WA 98277 | Mapsco: | |
| Neighborhood: | Cycle 1 | Map ID: | 90 |
| Neighborhood CD: | 1 |
Owner |
| Name: | DURAN, FERNANDO | Owner ID: | 291289 |
| Mailing Address: | 2118 CROSSWOODS CIR OAK HARBOR, WA 98277 | % Ownership: | 100.0000000000% |
| | | Exemptions: | |
Taxes and Assessment Details
Values
| (+) Improvement Homesite Value: | + | $0 | |
| (+) Improvement Non-Homesite Value: | + | $197,516 | |
| (+) Land Homesite Value: | + | $0 | |
| (+) Land Non-Homesite Value: | + | $220,000 | |
| (+) Curr Use (HS): | + | $0 | $0 |
| (+) Curr Use (NHS): | + | $0 | $0 |
| | | -------------------------- | |
| (=) Market Value: | = | $417,516 | |
| (–) Productivity Loss: | – | $0 | |
| | | -------------------------- | |
| (=) Subtotal: | = | $417,516 | |
| (+) Senior Appraised Value: | + | $0 | |
| (+) Non-Senior Appraised Value: | + | $417,516 | |
| | | -------------------------- | |
| (=) Total Appraised Value: | = | $417,516 | |
| (–) Senior Exemption Loss: | – | $0 | |
| (–) Exemption Loss: | – | $0 | |
| | | -------------------------- | |
| (=) Taxable Value: | = | $417,516 | |
Taxing Jurisdiction
| Owner: | DURAN, FERNANDO | | |
| % Ownership: | 100.0000000000% | | |
| Total Value: | $417,516 | | |
| Tax Area: | 110 - APPRAISER-OH Schl Dist, outside OH, improved & 1 acre or less |
| CF | Conservation Futures | 0.0316035091 | $417,516 | $417,516 | $13.19 | | |
| CEM1 | Cemetery #1 | 0.0040320932 | $417,516 | $417,516 | $1.68 | | |
| FIRE2 | Fire & Rescue Dist #2 N Whidbey GEN | 0.5475949600 | $417,516 | $417,516 | $228.63 | | |
| HOBOND | Hospital BOND | 0.1910887512 | $417,516 | $417,516 | $79.78 | | |
| HOGEN | Hospital GEN | 0.3902502903 | $417,516 | $417,516 | $162.94 | | |
| CE | County Current Expense | 0.3708482477 | $417,516 | $417,516 | $154.84 | | |
| CR | County Roads | 0.4584763726 | $417,516 | $417,516 | $191.42 | | |
| ISLANDEMS | Hospital GEN (EMS) | 0.5000000000 | $417,516 | $417,516 | $208.76 | | |
| LIB | Library Sno-Isle GEN | 0.3153421757 | $417,516 | $417,516 | $131.66 | | |
| NWHIDPRMT | P & R N Whidbey GEN | 0.2004466701 | $417,516 | $417,516 | $83.69 | | |
| SCH201MO | School 201 Enrichment | 1.8559231640 | $417,516 | $417,516 | $774.88 | | |
| ST | State School | 1.3035497053 | $417,516 | $417,516 | $544.25 | | |
| ST2 | State School Part 2 | 0.8169543533 | $417,516 | $417,516 | $341.09 | | |
| | Total Tax Rate: | 6.9861102925 | | | | | |
| | | | | Taxes w/Current Exemptions: | $2,916.81 | | |
| | | | | Taxes w/o Exemptions: | $2,916.81 | | |
Improvement / Building
| Improvement #1: | RESIDENTIAL | State Code: | Y | 1284.0 sqft | Value: | $197,516 |
| Bathrooms: | 2 | Bedrooms: | 3 | | Ceiling: | DRY WALL SPRAYED | Exterior Wall/Cover: | PLY/HARDBOARD T-111 | | Floor Covering: | CARPET/VINYL 80-20 | Floor Structure: | WOOD W/SUBFLOOR | | Foundation: | CONCRETE | Heating: | FHA GAS | | Interior Finish: | DRYWALL PAINT | Plumbing Fixture Cnt: | 9 | | Roof Slope: | 4" IN 12" | Roof Structure/Cover: | CJ ASPHALT |
|
| | Type | Description | Class CD | Sub Class CD | Year Built | Area |
| | BAS | BASE/MAIN FLOOR | 3 | 0 | 1974 | 1284.0 |
| | OP4 | OPEN PORCH W/CEILING-ROOF | 3 | 0 | 1974 | 60.0 |
| | AGR | ATTACHED GARAGE | 3 | 0 | 1974 | 576.0 |
Sketch
Property Image
Land
| 1 | 14 | SQ (08001-12000) | 0.0000 | 0.00 | 0.00 | 0.00 | 1.00 | $220,000 | $0 |
Roll Value History
| 2026 | N/A | N/A | N/A | N/A | N/A |
| 2025 | $197,516 | $220,000 | $0 | $417,516 | $417,516 |
| 2024 | $200,497 | $190,000 | $0 | $390,497 | $390,497 |
| 2023 | $200,497 | $200,000 | $0 | $400,497 | $400,497 |
| 2022 | $184,255 | $180,000 | $0 | $364,255 | $364,255 |
| 2021 | $162,567 | $125,000 | $0 | $287,567 | $287,567 |
| 2020 | $158,545 | $100,000 | $0 | $258,545 | $258,545 |
| 2019 | $107,071 | $150,000 | $0 | $257,071 | $257,071 |
| 2018 | $107,447 | $130,000 | $0 | $237,447 | $237,447 |
| 2017 | $99,692 | $120,000 | $0 | $219,692 | $219,692 |
| 2016 | $101,248 | $90,000 | $0 | $191,248 | $191,248 |
| 2015 | $102,803 | $70,000 | $0 | $172,803 | $172,803 |
| 2014 | $104,358 | $55,000 | $0 | $159,358 | $159,358 |
| 2013 | $105,913 | $55,000 | $0 | $160,913 | $160,913 |
| 2012 | $107,468 | $65,000 | $0 | $172,468 | $172,468 |
| 2011 | $110,784 | $50,000 | $0 | $160,784 | $160,784 |
| 2010 | $119,542 | $50,000 | $0 | $169,542 | $169,542 |
| 2009 | $124,933 | $75,000 | $0 | $199,933 | $199,933 |
| 2008 | $126,711 | $100,000 | $0 | $226,711 | $226,711 |
| 2007 | $128,489 | $100,000 | $0 | $228,489 | $228,489 |
Deed and Sales History
| 1 | 08/05/2019 | WD | Warranty Deed | DOYLE, JAMIE D | DURAN, FERNANDO | | | $290,000.00 | 39796 | 4469041 |
| 2 | 03/27/2006 | WD | Warranty Deed | THOMPSON, MATTHEW A | DOYLE, JAMIE D | | | $235,000.00 | 61342 | 4166286 |
| 3 | 03/21/2003 | WD | Warranty Deed | PULLEN, JOHN T | THOMPSON, MATTHEW A | | | $152,950.00 | 31186 | 4052193 |
| 4 | 11/01/1994 | WD | Warranty Deed | HARR, CARL D | PULLEN, JOHN T | | | $125,000.00 | 44840 | 94024667 |
| 5 | 02/01/1990 | WD | Warranty Deed | , | HARR, CARL D | | | $96,000.00 | 10441 | 91002015 |
| 6 | 01/01/1900 | OTHER | Other - Misc. Documents | Unknown | , | | | $0.00 | 0 | 0 |
Payout Agreement
| No payout information available.. |