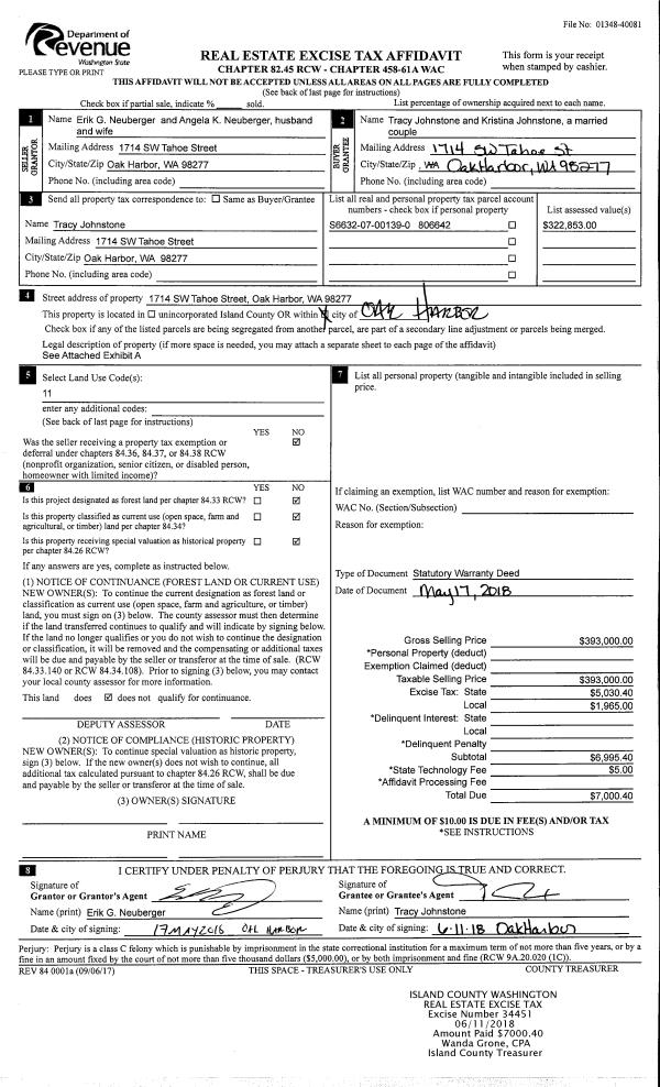
Property
Account |
| Property ID: | 239673 | Abbreviated Legal Description: | CROSSWOODS 1 LOT 18 |
| Geographic ID: | S6440-00-00018-0 | Agent Code: | |
| Type: | Real | | |
| Tax Area: | 110 - APPRAISER-OH Schl Dist, outside OH, improved & 1 acre or less | Land Use Code | 11 |
| Open Space: | N | DFL | N |
| Historic Property: | N | Remodel Property: | N |
| Multi-Family Redevelopment: | N | | |
| Township: | | Section: | |
| Range: | |
Location |
| Address: | 2107 CROSSWOODS CIR OAK HARBOR, WA 98277 | Mapsco: | |
| Neighborhood: | Cycle 1 | Map ID: | 90 |
| Neighborhood CD: | 1 |
Owner |
| Name: | CARBONEAU, WILLIAM R | Owner ID: | 285373 |
| Mailing Address: | VIVIAN L CARBONEAU 2107 CROSSWOODS CIR OAK HARBOR, WA 98277 | % Ownership: | 100.0000000000% |
| | | Exemptions: | |
Taxes and Assessment Details
Values
| (+) Improvement Homesite Value: | + | $0 | |
| (+) Improvement Non-Homesite Value: | + | $236,561 | |
| (+) Land Homesite Value: | + | $0 | |
| (+) Land Non-Homesite Value: | + | $220,000 | |
| (+) Curr Use (HS): | + | $0 | $0 |
| (+) Curr Use (NHS): | + | $0 | $0 |
| | | -------------------------- | |
| (=) Market Value: | = | $456,561 | |
| (–) Productivity Loss: | – | $0 | |
| | | -------------------------- | |
| (=) Subtotal: | = | $456,561 | |
| (+) Senior Appraised Value: | + | $0 | |
| (+) Non-Senior Appraised Value: | + | $456,561 | |
| | | -------------------------- | |
| (=) Total Appraised Value: | = | $456,561 | |
| (–) Senior Exemption Loss: | – | $0 | |
| (–) Exemption Loss: | – | $0 | |
| | | -------------------------- | |
| (=) Taxable Value: | = | $456,561 | |
Taxing Jurisdiction
| Owner: | CARBONEAU, WILLIAM R | | |
| % Ownership: | 100.0000000000% | | |
| Total Value: | $456,561 | | |
| Tax Area: | 110 - APPRAISER-OH Schl Dist, outside OH, improved & 1 acre or less |
| CF | Conservation Futures | 0.0316035091 | $456,561 | $456,561 | $14.43 | | |
| CEM1 | Cemetery #1 | 0.0040320932 | $456,561 | $456,561 | $1.84 | | |
| FIRE2 | Fire & Rescue Dist #2 N Whidbey GEN | 0.5475949600 | $456,561 | $456,561 | $250.01 | | |
| HOBOND | Hospital BOND | 0.1910887512 | $456,561 | $456,561 | $87.24 | | |
| HOGEN | Hospital GEN | 0.3902502903 | $456,561 | $456,561 | $178.17 | | |
| CE | County Current Expense | 0.3708482477 | $456,561 | $456,561 | $169.31 | | |
| CR | County Roads | 0.4584763726 | $456,561 | $456,561 | $209.32 | | |
| ISLANDEMS | Hospital GEN (EMS) | 0.5000000000 | $456,561 | $456,561 | $228.28 | | |
| LIB | Library Sno-Isle GEN | 0.3153421757 | $456,561 | $456,561 | $143.97 | | |
| NWHIDPRMT | P & R N Whidbey GEN | 0.2004466701 | $456,561 | $456,561 | $91.52 | | |
| SCH201MO | School 201 Enrichment | 1.8559231640 | $456,561 | $456,561 | $847.34 | | |
| ST | State School | 1.3035497053 | $456,561 | $456,561 | $595.15 | | |
| ST2 | State School Part 2 | 0.8169543533 | $456,561 | $456,561 | $372.99 | | |
| | Total Tax Rate: | 6.9861102925 | | | | | |
| | | | | Taxes w/Current Exemptions: | $3,189.57 | | |
| | | | | Taxes w/o Exemptions: | $3,189.57 | | |
Improvement / Building
| Improvement #1: | RESIDENTIAL | State Code: | Y | 1376.0 sqft | Value: | $236,561 |
| Bathrooms: | 2 | Bedrooms: | 3 | | Ceiling: | DRYWALL PAINTED | Exterior Wall/Cover: | PLY/HARDBOARD T-111 | | Floor Covering: | HARDWOOD/CARP 60-40 | Floor Structure: | WOOD W/SUBFLOOR | | Foundation: | CONCRETE | Heating: | FHA ELECTRIC | | Interior Finish: | DRYWALL PAINT | Plumbing Fixture Cnt: | 9 | | Roof Slope: | 4" IN 12" | Roof Structure/Cover: | CJ ASPHALT |
|
| | Type | Description | Class CD | Sub Class CD | Year Built | Area |
| | BAS | BASE/MAIN FLOOR | 3 | 0 | 1974 | 1376.0 |
| | OP3 | OPEN PORCH W/ROOF | 3 | 0 | 1974 | 80.0 |
| | AGR | ATTACHED GARAGE | 3 | 0 | 1974 | 440.0 |
Sketch
Property Image
Land
| 1 | 14 | SQ (08001-12000) | 0.0000 | 0.00 | 0.00 | 0.00 | 1.00 | $220,000 | $0 |
Roll Value History
| 2026 | N/A | N/A | N/A | N/A | N/A |
| 2025 | $236,561 | $220,000 | $0 | $456,561 | $456,561 |
| 2024 | $239,704 | $190,000 | $0 | $429,704 | $429,704 |
| 2023 | $242,847 | $200,000 | $0 | $442,847 | $442,847 |
| 2022 | $222,752 | $180,000 | $0 | $402,752 | $402,752 |
| 2021 | $196,171 | $125,000 | $0 | $321,171 | $321,171 |
| 2020 | $191,171 | $100,000 | $0 | $291,171 | $291,171 |
| 2019 | $138,085 | $150,000 | $0 | $288,085 | $288,085 |
| 2018 | $123,318 | $130,000 | $0 | $253,318 | $253,318 |
| 2017 | $123,418 | $120,000 | $0 | $243,418 | $243,418 |
| 2016 | $125,183 | $90,000 | $0 | $215,183 | $215,183 |
| 2015 | $126,944 | $70,000 | $0 | $196,944 | $196,944 |
| 2014 | $128,707 | $55,000 | $0 | $183,707 | $183,707 |
| 2013 | $130,472 | $55,000 | $0 | $185,472 | $185,472 |
| 2012 | $132,234 | $65,000 | $0 | $197,234 | $197,234 |
| 2011 | $133,385 | $50,000 | $0 | $183,385 | $183,385 |
| 2010 | $142,211 | $50,000 | $0 | $192,211 | $192,211 |
| 2009 | $158,159 | $75,000 | $0 | $233,159 | $233,159 |
| 2008 | $160,114 | $100,000 | $0 | $260,114 | $260,114 |
| 2007 | $162,069 | $100,000 | $0 | $262,069 | $262,069 |
Deed and Sales History
| 1 | 06/06/2018 | WD | Warranty Deed | NATIONAL RESIDENTIAL NOMINEE SERVICES, INC | CARBONEAU, WILLIAM R | | | $296,000.00 | 34460 | 4445919 |
| 2 | 05/23/2018 | WD | Warranty Deed | INGRAM JR, WILLIAM F | NATIONAL RESIDENTIAL NOMINEE SERVICES, INC | | | $296,000.00 | 34459 | 4445918 |
| 3 | 07/18/2012 | WD | Warranty Deed | PEOPLES BANK | INGRAM JR, WILLIAM F | | | $193,500.00 | 8269 | 4319481 |
| 4 | 03/30/2012 | TRUSTEED | Trustee's Deed | GARIBALDI, JOHN | PEOPLES BANK | | | $0.00 | 7276 | 4312899 |
| 5 | 09/21/2009 | WD | Warranty Deed | PRICE, JULIA C | GARIBALDI, JOHN | | | $245,000.00 | 92268 | 4260790 |
| 6 | 08/21/2001 | WD | Warranty Deed | GARDNER, TERI S | PRICE, JULIA C | | | $149,900.00 | 13322 | 20041668 |
| 7 | 09/07/1999 | DECREE | Divorce Decree/Legal Separation | GARDNER, ROBERT P | GARDNER, TERI S | | | $0.00 | 68426 | 0 |
| 8 | 12/01/1985 | WD | Warranty Deed | HENDERSON, ROBERT G | GARDNER, ROBERT P | | | $66,900.00 | 53577 | 85014275 |
| 9 | 01/01/1900 | OTHER | Other - Misc. Documents | Unknown | HENDERSON, ROBERT G | | | $0.00 | 0 | 0 |
Payout Agreement
| No payout information available.. |