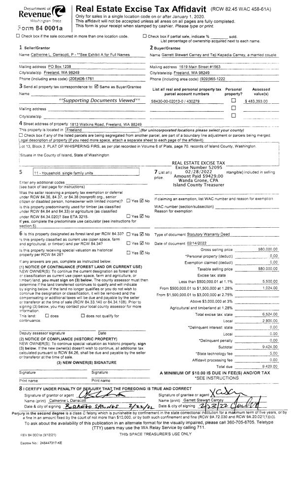
Property
Account |
| Property ID: | 239682 | Abbreviated Legal Description: | CROSSWOODS 1 LOT 19 |
| Geographic ID: | S6440-00-00019-0 | Agent Code: | |
| Type: | Real | | |
| Tax Area: | 110 - APPRAISER-OH Schl Dist, outside OH, improved & 1 acre or less | Land Use Code | 11 |
| Open Space: | N | DFL | N |
| Historic Property: | N | Remodel Property: | N |
| Multi-Family Redevelopment: | N | | |
| Township: | | Section: | |
| Range: | |
Location |
| Address: | 1159 TULIP LN OAK HARBOR, WA 98277 | Mapsco: | |
| Neighborhood: | Cycle 1 | Map ID: | 90 |
| Neighborhood CD: | 1 |
Owner |
| Name: | TWICHELL, DAVID W | Owner ID: | 302289 |
| Mailing Address: | DANA M TWICHELL 1159 TULIP LANE OAK HARBOR, WA 98277 | % Ownership: | 100.0000000000% |
| | | Exemptions: | |
Taxes and Assessment Details
Values
| (+) Improvement Homesite Value: | + | $0 | |
| (+) Improvement Non-Homesite Value: | + | $247,382 | |
| (+) Land Homesite Value: | + | $0 | |
| (+) Land Non-Homesite Value: | + | $220,000 | |
| (+) Curr Use (HS): | + | $0 | $0 |
| (+) Curr Use (NHS): | + | $0 | $0 |
| | | -------------------------- | |
| (=) Market Value: | = | $467,382 | |
| (–) Productivity Loss: | – | $0 | |
| | | -------------------------- | |
| (=) Subtotal: | = | $467,382 | |
| (+) Senior Appraised Value: | + | $0 | |
| (+) Non-Senior Appraised Value: | + | $467,382 | |
| | | -------------------------- | |
| (=) Total Appraised Value: | = | $467,382 | |
| (–) Senior Exemption Loss: | – | $0 | |
| (–) Exemption Loss: | – | $0 | |
| | | -------------------------- | |
| (=) Taxable Value: | = | $467,382 | |
Taxing Jurisdiction
| Owner: | TWICHELL, DAVID W | | |
| % Ownership: | 100.0000000000% | | |
| Total Value: | $467,382 | | |
| Tax Area: | 110 - APPRAISER-OH Schl Dist, outside OH, improved & 1 acre or less |
| CF | Conservation Futures | 0.0316035091 | $467,382 | $467,382 | $14.77 | | |
| CEM1 | Cemetery #1 | 0.0040320932 | $467,382 | $467,382 | $1.88 | | |
| FIRE2 | Fire & Rescue Dist #2 N Whidbey GEN | 0.5475949600 | $467,382 | $467,382 | $255.94 | | |
| HOBOND | Hospital BOND | 0.1910887512 | $467,382 | $467,382 | $89.31 | | |
| HOGEN | Hospital GEN | 0.3902502903 | $467,382 | $467,382 | $182.40 | | |
| CE | County Current Expense | 0.3708482477 | $467,382 | $467,382 | $173.33 | | |
| CR | County Roads | 0.4584763726 | $467,382 | $467,382 | $214.28 | | |
| ISLANDEMS | Hospital GEN (EMS) | 0.5000000000 | $467,382 | $467,382 | $233.69 | | |
| LIB | Library Sno-Isle GEN | 0.3153421757 | $467,382 | $467,382 | $147.39 | | |
| NWHIDPRMT | P & R N Whidbey GEN | 0.2004466701 | $467,382 | $467,382 | $93.69 | | |
| SCH201MO | School 201 Enrichment | 1.8559231640 | $467,382 | $467,382 | $867.43 | | |
| ST | State School | 1.3035497053 | $467,382 | $467,382 | $609.26 | | |
| ST2 | State School Part 2 | 0.8169543533 | $467,382 | $467,382 | $381.83 | | |
| | Total Tax Rate: | 6.9861102925 | | | | | |
| | | | | Taxes w/Current Exemptions: | $3,265.20 | | |
| | | | | Taxes w/o Exemptions: | $3,265.20 | | |
Improvement / Building
| Improvement #1: | RESIDENTIAL | State Code: | Y | 1470.0 sqft | Value: | $247,382 |
| Bathrooms: | 2 | Bedrooms: | 3 | | Ceiling: | DRY WALL SPRAYED | Exterior Wall/Cover: | PLY/HARDBOARD T-111 | | Floor Covering: | CARPET/VINYL 80-20 | Floor Structure: | WOOD W/SUBFLOOR | | Foundation: | CONCRETE | Heating: | FHA ELECTRIC | | Interior Finish: | DRYWALL PAINT | Plumbing Fixture Cnt: | 10 | | Roof Slope: | 4" IN 12" | Roof Structure/Cover: | CJ ASPHALT |
|
| | Type | Description | Class CD | Sub Class CD | Year Built | Area |
| | BAS | BASE/MAIN FLOOR | 3 | 0 | 1974 | 1470.0 |
| | OP4 | OPEN PORCH W/CEILING-ROOF | 3 | 0 | 1974 | 154.0 |
| | AGR | ATTACHED GARAGE | 3 | 0 | 1974 | 484.0 |
| | OWP | OPEN WOOD PORCH W/STEPS | 3 | 0 | 1974 | 560.0 |
Sketch
Property Image
Land
| 1 | 14 | SQ (08001-12000) | 0.0000 | 0.00 | 0.00 | 0.00 | 1.00 | $220,000 | $0 |
Roll Value History
| 2026 | N/A | N/A | N/A | N/A | N/A |
| 2025 | $247,382 | $220,000 | $0 | $467,382 | $467,382 |
| 2024 | $250,806 | $190,000 | $0 | $440,806 | $440,806 |
| 2023 | $243,958 | $200,000 | $0 | $443,958 | $443,958 |
| 2022 | $224,000 | $180,000 | $0 | $404,000 | $404,000 |
| 2021 | $197,479 | $125,000 | $0 | $322,479 | $322,479 |
| 2020 | $192,505 | $100,000 | $0 | $292,505 | $292,505 |
| 2019 | $138,991 | $150,000 | $0 | $288,991 | $288,991 |
| 2018 | $139,453 | $130,000 | $0 | $269,453 | $269,453 |
| 2017 | $120,630 | $120,000 | $0 | $240,630 | $240,630 |
| 2016 | $122,430 | $90,000 | $0 | $212,430 | $212,430 |
| 2015 | $124,231 | $70,000 | $0 | $194,231 | $194,231 |
| 2014 | $126,032 | $55,000 | $0 | $181,032 | $181,032 |
| 2013 | $127,832 | $55,000 | $0 | $182,832 | $182,832 |
| 2012 | $129,632 | $65,000 | $0 | $194,632 | $194,632 |
| 2011 | $132,500 | $50,000 | $0 | $182,500 | $182,500 |
| 2010 | $144,312 | $50,000 | $0 | $194,312 | $194,312 |
| 2009 | $148,655 | $75,000 | $0 | $223,655 | $223,655 |
| 2008 | $150,564 | $100,000 | $0 | $250,564 | $250,564 |
| 2007 | $152,474 | $100,000 | $0 | $252,474 | $252,474 |
Deed and Sales History
| 1 | 11/11/2021 | WD | Warranty Deed | BOER, GEORGE | TWICHELL, DAVID W | | | $453,000.00 | 51251 | 4535539 |
| 2 | 10/05/2018 | WD | Warranty Deed | KAMMERAAD UNDIV 50% INT, ALICE | BOER, GEORGE | | | $161,500.00 | 36229 | 4453151 |
| 3 | 11/01/2011 | WD | Warranty Deed | RONHAAR, ALICE KAMMERAAD | KAMMERAAD UNDIV 50% INT, ALICE | | | $115,900.00 | 6233 | 4305456 |
| 4 | 02/16/2007 | OTHER | Other - Misc. Documents | RONHAAR, DANIEL E | RONHAAR, ALICE KAMMERAAD | | | $0.00 | 80118 | 0 |
| 5 | 01/04/2006 | 5 | DNU - Marriage License/Name Change | RONHAAR, DANIEL E | RONHAAR, DANIEL E | | | $0.00 | 60170 | 4159675 |
| 6 | 03/17/2005 | PRD | Personal Representatives Deed | RONHAAR, DANIEL E | RONHAAR, DANIEL E | | | $0.00 | 51123 | 4128945 |
| 7 | 01/01/1900 | OTHER | Other - Misc. Documents | Unknown | RONHAAR, DANIEL E | | | $0.00 | 0 | 0 |
Payout Agreement
| No payout information available.. |