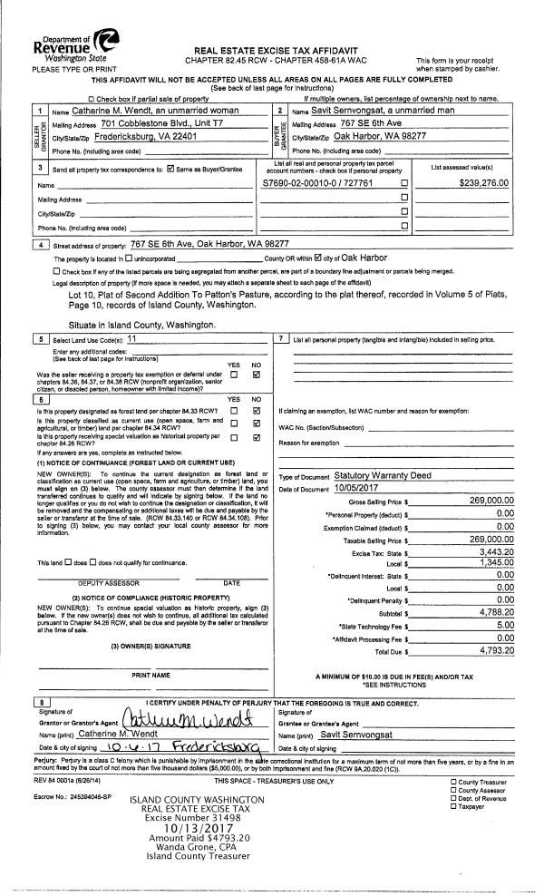
Property
Account |
| Property ID: | 239851 | Abbreviated Legal Description: | CROSSWOODS 2 LOT 9 |
| Geographic ID: | S6440-02-00009-0 | Agent Code: | |
| Type: | Real | | |
| Tax Area: | 110 - APPRAISER-OH Schl Dist, outside OH, improved & 1 acre or less | Land Use Code | 11 |
| Open Space: | N | DFL | N |
| Historic Property: | N | Remodel Property: | N |
| Multi-Family Redevelopment: | N | | |
| Township: | | Section: | |
| Range: | |
Location |
| Address: | 2187 CROSSWOODS CIR OAK HARBOR, WA 98277 | Mapsco: | |
| Neighborhood: | Cycle 1 | Map ID: | 90 |
| Neighborhood CD: | 1 |
Owner |
| Name: | DANDO, JOSEPH | Owner ID: | 282098 |
| Mailing Address: | DARLENE E DANDO 18050 W BIG LAKE BLVD MOUNT VERNON, WA 98274 | % Ownership: | 100.0000000000% |
| | | Exemptions: | |
Taxes and Assessment Details
Values
| (+) Improvement Homesite Value: | + | $0 | |
| (+) Improvement Non-Homesite Value: | + | $233,058 | |
| (+) Land Homesite Value: | + | $0 | |
| (+) Land Non-Homesite Value: | + | $220,000 | |
| (+) Curr Use (HS): | + | $0 | $0 |
| (+) Curr Use (NHS): | + | $0 | $0 |
| | | -------------------------- | |
| (=) Market Value: | = | $453,058 | |
| (–) Productivity Loss: | – | $0 | |
| | | -------------------------- | |
| (=) Subtotal: | = | $453,058 | |
| (+) Senior Appraised Value: | + | $0 | |
| (+) Non-Senior Appraised Value: | + | $453,058 | |
| | | -------------------------- | |
| (=) Total Appraised Value: | = | $453,058 | |
| (–) Senior Exemption Loss: | – | $0 | |
| (–) Exemption Loss: | – | $0 | |
| | | -------------------------- | |
| (=) Taxable Value: | = | $453,058 | |
Taxing Jurisdiction
| Owner: | DANDO, JOSEPH | | |
| % Ownership: | 100.0000000000% | | |
| Total Value: | $453,058 | | |
| Tax Area: | 110 - APPRAISER-OH Schl Dist, outside OH, improved & 1 acre or less |
| CF | Conservation Futures | 0.0316035091 | $453,058 | $453,058 | $14.32 | | |
| CEM1 | Cemetery #1 | 0.0040320932 | $453,058 | $453,058 | $1.83 | | |
| FIRE2 | Fire & Rescue Dist #2 N Whidbey GEN | 0.5475949600 | $453,058 | $453,058 | $248.09 | | |
| HOBOND | Hospital BOND | 0.1910887512 | $453,058 | $453,058 | $86.57 | | |
| HOGEN | Hospital GEN | 0.3902502903 | $453,058 | $453,058 | $176.81 | | |
| CE | County Current Expense | 0.3708482477 | $453,058 | $453,058 | $168.02 | | |
| CR | County Roads | 0.4584763726 | $453,058 | $453,058 | $207.72 | | |
| ISLANDEMS | Hospital GEN (EMS) | 0.5000000000 | $453,058 | $453,058 | $226.53 | | |
| LIB | Library Sno-Isle GEN | 0.3153421757 | $453,058 | $453,058 | $142.87 | | |
| NWHIDPRMT | P & R N Whidbey GEN | 0.2004466701 | $453,058 | $453,058 | $90.81 | | |
| SCH201MO | School 201 Enrichment | 1.8559231640 | $453,058 | $453,058 | $840.84 | | |
| ST | State School | 1.3035497053 | $453,058 | $453,058 | $590.58 | | |
| ST2 | State School Part 2 | 0.8169543533 | $453,058 | $453,058 | $370.13 | | |
| | Total Tax Rate: | 6.9861102925 | | | | | |
| | | | | Taxes w/Current Exemptions: | $3,165.12 | | |
| | | | | Taxes w/o Exemptions: | $3,165.12 | | |
Improvement / Building
| Improvement #1: | RESIDENTIAL | State Code: | Y | 2014.5 sqft | Value: | $233,058 |
| Bathrooms: | 2.5 | Bedrooms: | 4 | | Ceiling: | DRY WALL SPRAYED | Exterior Wall/Cover: | PLY/HARDBOARD T-111 | | Floor Covering: | CARPET/VINYL 80-20 | Floor Structure: | WOOD W/SUBFLOOR | | Foundation: | CONCRETE | Heating: | FHA GAS | | Interior Finish: | DRYWALL PAINT | Plumbing Fixture Cnt: | 11 | | Roof Slope: | 4" IN 12" | Roof Structure/Cover: | CJ ASPHALT |
|
| | Type | Description | Class CD | Sub Class CD | Year Built | Area |
| | BAS | BASE/MAIN FLOOR | 3 | 0 | 1974 | 1134.5 |
| | OP4 | OPEN PORCH W/CEILING-ROOF | 3 | 0 | 1974 | 102.0 |
| | AGR | ATTACHED GARAGE | 3 | 0 | 1974 | 440.0 |
| | UPS | UPPER STORY | 3 | 0 | 1974 | 880.0 |
Sketch
Property Image
Land
| 1 | 14 | SQ (08001-12000) | 0.0000 | 0.00 | 0.00 | 0.00 | 1.00 | $220,000 | $0 |
Roll Value History
| 2026 | N/A | N/A | N/A | N/A | N/A |
| 2025 | $233,058 | $220,000 | $0 | $453,058 | $453,058 |
| 2024 | $236,473 | $190,000 | $0 | $426,473 | $426,473 |
| 2023 | $229,643 | $200,000 | $0 | $429,643 | $429,643 |
| 2022 | $211,041 | $180,000 | $0 | $391,041 | $391,041 |
| 2021 | $186,191 | $125,000 | $0 | $311,191 | $311,191 |
| 2020 | $181,935 | $100,000 | $0 | $281,935 | $281,935 |
| 2019 | $137,277 | $150,000 | $0 | $287,277 | $287,277 |
| 2018 | $137,760 | $130,000 | $0 | $267,760 | $267,760 |
| 2017 | $132,433 | $120,000 | $0 | $252,433 | $252,433 |
| 2016 | $134,439 | $90,000 | $0 | $224,439 | $224,439 |
| 2015 | $136,445 | $70,000 | $0 | $206,445 | $206,445 |
| 2014 | $138,453 | $55,000 | $0 | $193,453 | $193,453 |
| 2013 | $140,459 | $55,000 | $0 | $195,459 | $195,459 |
| 2012 | $142,466 | $65,000 | $0 | $207,466 | $207,466 |
| 2011 | $139,623 | $50,000 | $0 | $189,623 | $189,623 |
| 2010 | $150,715 | $50,000 | $0 | $200,715 | $200,715 |
| 2009 | $157,315 | $75,000 | $0 | $232,315 | $232,315 |
| 2008 | $159,388 | $100,000 | $0 | $259,388 | $259,388 |
| 2007 | $161,460 | $100,000 | $0 | $261,460 | $261,460 |
Deed and Sales History
| 1 | 09/22/2017 | WD | Warranty Deed | NICKERSON, STEVEN M | DANDO, JOSEPH | | | $251,000.00 | 31220 | 4430810 |
| 2 | 08/13/2002 | WD | Warranty Deed | VANDENBOS, BRUCE A | VANDENBOS, BRUCE A/RACHEL | | | $169,900.00 | 23393 | 4029541 |
| 3 | 12/01/1990 | WD | Warranty Deed | STANFIELD, DAVID M | VANDENBOS, BRUCE A | | | $110,900.00 | 6792 | 90023699 |
| 4 | 08/01/1984 | WD | Warranty Deed | MITCHELL, WILLIAM J | STANFIELD, DAVID M | | | $87,500.00 | 42636 | 84002916 |
| 5 | 01/01/1900 | OTHER | Other - Misc. Documents | Unknown | MITCHELL, WILLIAM J | | | $0.00 | 0 | 0 |
Payout Agreement
| No payout information available.. |