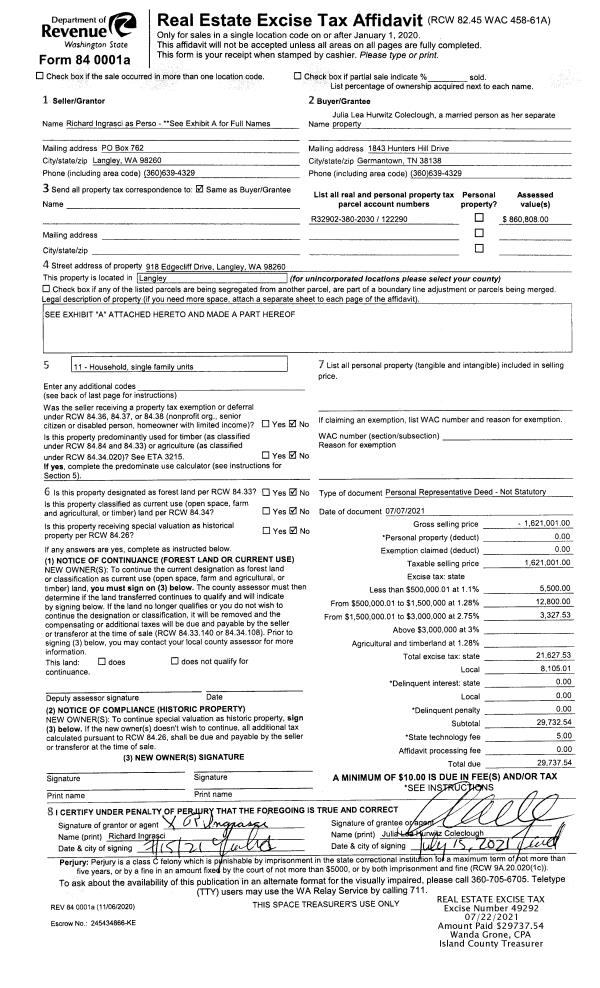
Property
Account |
| Property ID: | 239879 | Abbreviated Legal Description: | CROSSWOODS 2 LOT 11 |
| Geographic ID: | S6440-02-00011-0 | Agent Code: | |
| Type: | Real | | |
| Tax Area: | 110 - APPRAISER-OH Schl Dist, outside OH, improved & 1 acre or less | Land Use Code | 11 |
| Open Space: | N | DFL | N |
| Historic Property: | N | Remodel Property: | N |
| Multi-Family Redevelopment: | N | | |
| Township: | | Section: | |
| Range: | |
Location |
| Address: | 2195 CROSSWOODS CIR OAK HARBOR, WA 98277 | Mapsco: | |
| Neighborhood: | Cycle 1 | Map ID: | 90 |
| Neighborhood CD: | 1 |
Owner |
| Name: | CLARKSON, JOSEPH | Owner ID: | 307260 |
| Mailing Address: | 1145 SE 6TH AVE #202 OAK HARBOR, WA 98277 | % Ownership: | 100.0000000000% |
| | | Exemptions: | |
Taxes and Assessment Details
Values
| (+) Improvement Homesite Value: | + | $177,961 | |
| (+) Improvement Non-Homesite Value: | + | $0 | |
| (+) Land Homesite Value: | + | $220,000 | |
| (+) Land Non-Homesite Value: | + | $0 | |
| (+) Curr Use (HS): | + | $0 | $0 |
| (+) Curr Use (NHS): | + | $0 | $0 |
| | | -------------------------- | |
| (=) Market Value: | = | $397,961 | |
| (–) Productivity Loss: | – | $0 | |
| | | -------------------------- | |
| (=) Subtotal: | = | $397,961 | |
| (+) Senior Appraised Value: | + | $0 | |
| (+) Non-Senior Appraised Value: | + | $397,961 | |
| | | -------------------------- | |
| (=) Total Appraised Value: | = | $397,961 | |
| (–) Senior Exemption Loss: | – | $0 | |
| (–) Exemption Loss: | – | $0 | |
| | | -------------------------- | |
| (=) Taxable Value: | = | $397,961 | |
Taxing Jurisdiction
| Owner: | CLARKSON, JOSEPH | | |
| % Ownership: | 100.0000000000% | | |
| Total Value: | $397,961 | | |
| Tax Area: | 110 - APPRAISER-OH Schl Dist, outside OH, improved & 1 acre or less |
| CF | Conservation Futures | 0.0316035091 | $397,961 | $397,961 | $12.58 | | |
| CEM1 | Cemetery #1 | 0.0040320932 | $397,961 | $397,961 | $1.60 | | |
| FIRE2 | Fire & Rescue Dist #2 N Whidbey GEN | 0.5475949600 | $397,961 | $397,961 | $217.92 | | |
| HOBOND | Hospital BOND | 0.1910887512 | $397,961 | $397,961 | $76.05 | | |
| HOGEN | Hospital GEN | 0.3902502903 | $397,961 | $397,961 | $155.30 | | |
| CE | County Current Expense | 0.3708482477 | $397,961 | $397,961 | $147.58 | | |
| CR | County Roads | 0.4584763726 | $397,961 | $397,961 | $182.46 | | |
| ISLANDEMS | Hospital GEN (EMS) | 0.5000000000 | $397,961 | $397,961 | $198.98 | | |
| LIB | Library Sno-Isle GEN | 0.3153421757 | $397,961 | $397,961 | $125.49 | | |
| NWHIDPRMT | P & R N Whidbey GEN | 0.2004466701 | $397,961 | $397,961 | $79.77 | | |
| SCH201MO | School 201 Enrichment | 1.8559231640 | $397,961 | $397,961 | $738.59 | | |
| ST | State School | 1.3035497053 | $397,961 | $397,961 | $518.76 | | |
| ST2 | State School Part 2 | 0.8169543533 | $397,961 | $397,961 | $325.12 | | |
| | Total Tax Rate: | 6.9861102925 | | | | | |
| | | | | Taxes w/Current Exemptions: | $2,780.20 | | |
| | | | | Taxes w/o Exemptions: | $2,780.20 | | |
Improvement / Building
| Improvement #1: | RESIDENTIAL | State Code: | Y | 1272.0 sqft | Value: | $177,961 |
| Bathrooms: | 1.5 | Bedrooms: | 3 | | Ceiling: | DRY WALL SPRAYED | Exterior Wall/Cover: | PLY/HARDBOARD T-111 | | Floor Covering: | CARPET/VINYL 80-20 | Floor Structure: | WOOD W/SUBFLOOR | | Foundation: | CONCRETE | Heating: | FHA GAS | | Interior Finish: | DRYWALL PAINT | Plumbing Fixture Cnt: | 8 | | Roof Slope: | 4" IN 12" | Roof Structure/Cover: | CJ ASPHALT |
|
| | Type | Description | Class CD | Sub Class CD | Year Built | Area |
| | BAS | BASE/MAIN FLOOR | 3 | 0 | 1974 | 1272.0 |
| | OP3 | OPEN PORCH W/ROOF | 3 | 0 | 1974 | 24.0 |
| | AGR | ATTACHED GARAGE | 3 | 0 | 1974 | 360.0 |
Sketch
Property Image
Land
| 1 | 14 | SQ (08001-12000) | 0.0000 | 0.00 | 0.00 | 0.00 | 1.00 | $220,000 | $0 |
Roll Value History
| 2026 | N/A | N/A | N/A | N/A | N/A |
| 2025 | $177,961 | $220,000 | $0 | $397,961 | $397,961 |
| 2024 | $180,608 | $190,000 | $0 | $370,608 | $370,608 |
| 2023 | $167,376 | $200,000 | $0 | $367,376 | $367,376 |
| 2022 | $153,960 | $180,000 | $0 | $333,960 | $333,960 |
| 2021 | $135,962 | $125,000 | $0 | $260,962 | $260,962 |
| 2020 | $132,822 | $100,000 | $0 | $232,822 | $232,822 |
| 2019 | $94,657 | $150,000 | $0 | $244,657 | $225,009 |
| 2018 | $95,009 | $130,000 | $0 | $225,009 | $225,009 |
| 2017 | $93,730 | $120,000 | $0 | $213,730 | $213,730 |
| 2016 | $95,196 | $90,000 | $0 | $185,196 | $185,196 |
| 2015 | $96,660 | $70,000 | $0 | $166,660 | $166,660 |
| 2014 | $98,123 | $55,000 | $0 | $153,123 | $153,123 |
| 2013 | $99,589 | $55,000 | $0 | $154,589 | $154,589 |
| 2012 | $101,052 | $65,000 | $0 | $166,052 | $166,052 |
| 2011 | $101,107 | $50,000 | $0 | $151,107 | $151,107 |
| 2010 | $108,185 | $50,000 | $0 | $158,185 | $158,185 |
| 2009 | $112,997 | $75,000 | $0 | $187,997 | $187,997 |
| 2008 | $114,506 | $100,000 | $0 | $214,506 | $214,506 |
| 2007 | $116,015 | $100,000 | $0 | $216,015 | $216,015 |
Deed and Sales History
| 1 | 01/26/2021 | WD | Warranty Deed | UTOPIA HOMES LLC | CLARKSON, JOSEPH | | | $395,000.00 | 46789 | 4509772 |
| 2 | 11/06/2020 | WD | Warranty Deed | PARDY JR, ARMAND W | UTOPIA HOMES LLC | | | $270,000.00 | 45652 | 4502153 |
| 3 | 01/01/1986 | WD | Warranty Deed | WITT, ROBERT F | PARDY, ARMAND W | | | $68,500.00 | 60143 | 86000714 |
| 4 | 02/01/1979 | WD | Warranty Deed | , | WITT, ROBERT F | | | $51,000.00 | 90913 | 348314 |
| 5 | 07/01/1978 | OTHER | Other - Misc. Documents | Unknown | , | | | $45,500.00 | 832370 | 3358710 |
Payout Agreement
| No payout information available.. |