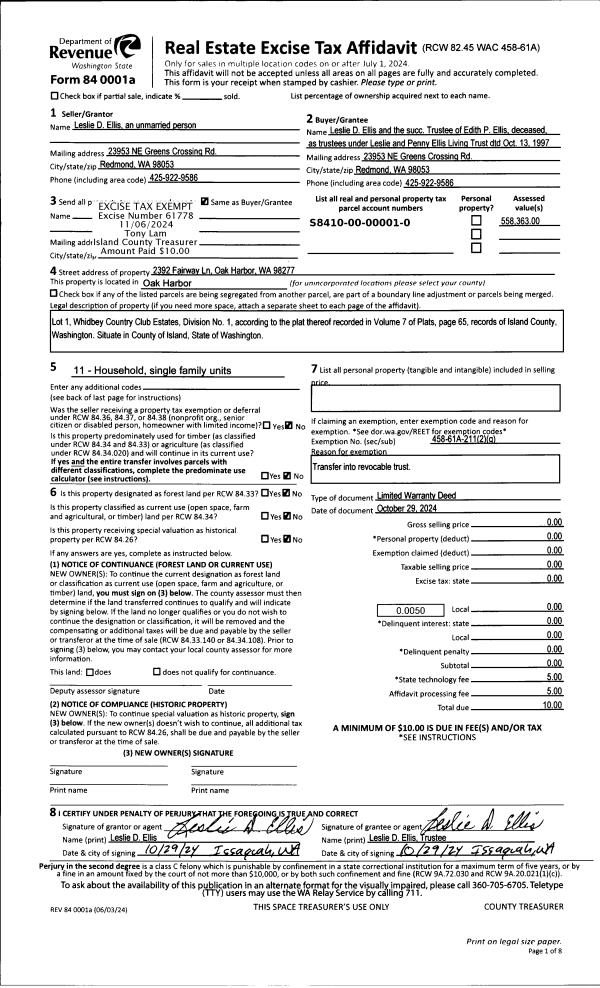
Property
Account |
| Property ID: | 239913 | Abbreviated Legal Description: | CROSSWOODS 3 LOT 1 |
| Geographic ID: | S6440-03-00001-0 | Agent Code: | |
| Type: | Real | | |
| Tax Area: | 110 - APPRAISER-OH Schl Dist, outside OH, improved & 1 acre or less | Land Use Code | 11 |
| Open Space: | N | DFL | N |
| Historic Property: | N | Remodel Property: | N |
| Multi-Family Redevelopment: | N | | |
| Township: | | Section: | |
| Range: | |
Location |
| Address: | 2146 CROSSWOODS CIR OAK HARBOR, WA 98277 | Mapsco: | |
| Neighborhood: | Cycle 1 | Map ID: | 90 |
| Neighborhood CD: | 1 |
Owner |
| Name: | EVENSON, GRANT | Owner ID: | 306030 |
| Mailing Address: | ELIZA EVENSON 2146 CROSSWODS CIRCLE OAK HARBOR, WA 98277 | % Ownership: | 100.0000000000% |
| | | Exemptions: | |
Taxes and Assessment Details
Values
| (+) Improvement Homesite Value: | + | $0 | |
| (+) Improvement Non-Homesite Value: | + | $228,920 | |
| (+) Land Homesite Value: | + | $0 | |
| (+) Land Non-Homesite Value: | + | $220,000 | |
| (+) Curr Use (HS): | + | $0 | $0 |
| (+) Curr Use (NHS): | + | $0 | $0 |
| | | -------------------------- | |
| (=) Market Value: | = | $448,920 | |
| (–) Productivity Loss: | – | $0 | |
| | | -------------------------- | |
| (=) Subtotal: | = | $448,920 | |
| (+) Senior Appraised Value: | + | $0 | |
| (+) Non-Senior Appraised Value: | + | $448,920 | |
| | | -------------------------- | |
| (=) Total Appraised Value: | = | $448,920 | |
| (–) Senior Exemption Loss: | – | $0 | |
| (–) Exemption Loss: | – | $0 | |
| | | -------------------------- | |
| (=) Taxable Value: | = | $448,920 | |
Taxing Jurisdiction
| Owner: | EVENSON, GRANT | | |
| % Ownership: | 100.0000000000% | | |
| Total Value: | $448,920 | | |
| Tax Area: | 110 - APPRAISER-OH Schl Dist, outside OH, improved & 1 acre or less |
| CF | Conservation Futures | 0.0316035091 | $448,920 | $448,920 | $14.19 | | |
| CEM1 | Cemetery #1 | 0.0040320932 | $448,920 | $448,920 | $1.81 | | |
| FIRE2 | Fire & Rescue Dist #2 N Whidbey GEN | 0.5475949600 | $448,920 | $448,920 | $245.83 | | |
| HOBOND | Hospital BOND | 0.1910887512 | $448,920 | $448,920 | $85.78 | | |
| HOGEN | Hospital GEN | 0.3902502903 | $448,920 | $448,920 | $175.19 | | |
| CE | County Current Expense | 0.3708482477 | $448,920 | $448,920 | $166.48 | | |
| CR | County Roads | 0.4584763726 | $448,920 | $448,920 | $205.82 | | |
| ISLANDEMS | Hospital GEN (EMS) | 0.5000000000 | $448,920 | $448,920 | $224.46 | | |
| LIB | Library Sno-Isle GEN | 0.3153421757 | $448,920 | $448,920 | $141.56 | | |
| NWHIDPRMT | P & R N Whidbey GEN | 0.2004466701 | $448,920 | $448,920 | $89.98 | | |
| SCH201MO | School 201 Enrichment | 1.8559231640 | $448,920 | $448,920 | $833.16 | | |
| ST | State School | 1.3035497053 | $448,920 | $448,920 | $585.19 | | |
| ST2 | State School Part 2 | 0.8169543533 | $448,920 | $448,920 | $366.75 | | |
| | Total Tax Rate: | 6.9861102925 | | | | | |
| | | | | Taxes w/Current Exemptions: | $3,136.20 | | |
| | | | | Taxes w/o Exemptions: | $3,136.20 | | |
Improvement / Building
| Improvement #1: | RESIDENTIAL | State Code: | Y | 1599.0 sqft | Value: | $228,920 |
| Bathrooms: | 1.75 | Bedrooms: | 3 | | Ceiling: | DRY WALL SPRAYED | Exterior Wall/Cover: | VINYL | | Floor Covering: | CARPET/VINYL 80-20 | Floor Structure: | WOOD W/SUBFLOOR | | Foundation: | CONCRETE | Heating: | BASEBOARD ELECTRIC | | Interior Finish: | DRYWALL PAINT | Plumbing Fixture Cnt: | 9 | | Roof Slope: | 4" IN 12" | Roof Structure/Cover: | CJ ASPHALT |
|
| | Type | Description | Class CD | Sub Class CD | Year Built | Area |
| | BAS | BASE/MAIN FLOOR | 3 | 0 | 1975 | 1599.0 |
| | OP4 | OPEN PORCH W/CEILING-ROOF | 3 | 0 | 1975 | 16.0 |
| | AGR | ATTACHED GARAGE | 3 | 0 | 1975 | 552.0 |
| | OWP | OPEN WOOD PORCH W/STEPS | 3 | 0 | 1975 | 88.0 |
Sketch
Property Image
Land
| 1 | 14 | SQ (08001-12000) | 0.0000 | 0.00 | 0.00 | 0.00 | 1.00 | $220,000 | $0 |
Roll Value History
| 2026 | N/A | N/A | N/A | N/A | N/A |
| 2025 | $228,920 | $220,000 | $0 | $448,920 | $448,920 |
| 2024 | $237,151 | $190,000 | $0 | $427,151 | $427,151 |
| 2023 | $227,022 | $200,000 | $0 | $427,022 | $427,022 |
| 2022 | $208,628 | $180,000 | $0 | $388,628 | $388,628 |
| 2021 | $184,082 | $125,000 | $0 | $309,082 | $309,082 |
| 2020 | $179,871 | $100,000 | $0 | $279,871 | $279,871 |
| 2019 | $131,879 | $150,000 | $0 | $281,879 | $281,879 |
| 2018 | $132,342 | $130,000 | $0 | $262,342 | $262,342 |
| 2017 | $123,485 | $120,000 | $0 | $243,485 | $243,485 |
| 2016 | $125,357 | $90,000 | $0 | $215,357 | $215,357 |
| 2015 | $127,226 | $70,000 | $0 | $197,226 | $197,226 |
| 2014 | $129,099 | $55,000 | $0 | $184,099 | $184,099 |
| 2013 | $130,970 | $55,000 | $0 | $185,970 | $185,970 |
| 2012 | $132,841 | $65,000 | $0 | $197,841 | $197,841 |
| 2011 | $135,381 | $50,000 | $0 | $185,381 | $185,381 |
| 2010 | $147,450 | $50,000 | $0 | $197,450 | $197,450 |
| 2009 | $153,937 | $75,000 | $0 | $228,937 | $228,937 |
| 2008 | $155,989 | $100,000 | $0 | $255,989 | $255,989 |
| 2007 | $158,041 | $100,000 | $0 | $258,041 | $258,041 |
Deed and Sales History
| 1 | 08/31/2022 | WD | Warranty Deed | BERNETHY, SHARON L | EVENSON, GRANT | | | $435,000.00 | 54557 | 4551293 |
Payout Agreement
| No payout information available.. |