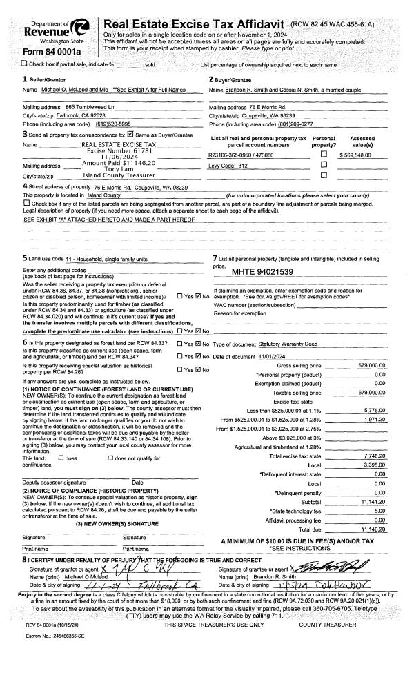
Property
Account |
| Property ID: | 239968 | Abbreviated Legal Description: | CROSSWOODS 3 LOT 6 INCL TRS D & L CROSSWOODS #4 |
| Geographic ID: | S6440-03-00006-0 | Agent Code: | |
| Type: | Real | | |
| Tax Area: | 110 - APPRAISER-OH Schl Dist, outside OH, improved & 1 acre or less | Land Use Code | 11 |
| Open Space: | N | DFL | N |
| Historic Property: | N | Remodel Property: | N |
| Multi-Family Redevelopment: | N | | |
| Township: | | Section: | |
| Range: | |
Location |
| Address: | 2166 CROSSWOODS CIR OAK HARBOR, WA 98277 | Mapsco: | |
| Neighborhood: | Cycle 1 | Map ID: | 90 |
| Neighborhood CD: | 1 |
Owner |
| Name: | CLEVERDON, THOMAS F | Owner ID: | 105653 |
| Mailing Address: | 2166 CROSSWOODS CIRCLE OAK HARBOR, WA 98277-8862 | % Ownership: | 100.0000000000% |
| | | Exemptions: | |
Taxes and Assessment Details
Values
| (+) Improvement Homesite Value: | + | $0 | |
| (+) Improvement Non-Homesite Value: | + | $276,226 | |
| (+) Land Homesite Value: | + | $0 | |
| (+) Land Non-Homesite Value: | + | $220,000 | |
| (+) Curr Use (HS): | + | $0 | $0 |
| (+) Curr Use (NHS): | + | $0 | $0 |
| | | -------------------------- | |
| (=) Market Value: | = | $496,226 | |
| (–) Productivity Loss: | – | $0 | |
| | | -------------------------- | |
| (=) Subtotal: | = | $496,226 | |
| (+) Senior Appraised Value: | + | $0 | |
| (+) Non-Senior Appraised Value: | + | $496,226 | |
| | | -------------------------- | |
| (=) Total Appraised Value: | = | $496,226 | |
| (–) Senior Exemption Loss: | – | $0 | |
| (–) Exemption Loss: | – | $0 | |
| | | -------------------------- | |
| (=) Taxable Value: | = | $496,226 | |
Taxing Jurisdiction
| Owner: | CLEVERDON, THOMAS F | | |
| % Ownership: | 100.0000000000% | | |
| Total Value: | $496,226 | | |
| Tax Area: | 110 - APPRAISER-OH Schl Dist, outside OH, improved & 1 acre or less |
| CF | Conservation Futures | 0.0316035091 | $496,226 | $496,226 | $15.68 | | |
| CEM1 | Cemetery #1 | 0.0040320932 | $496,226 | $496,226 | $2.00 | | |
| FIRE2 | Fire & Rescue Dist #2 N Whidbey GEN | 0.5475949600 | $496,226 | $496,226 | $271.73 | | |
| HOBOND | Hospital BOND | 0.1910887512 | $496,226 | $496,226 | $94.82 | | |
| HOGEN | Hospital GEN | 0.3902502903 | $496,226 | $496,226 | $193.65 | | |
| CE | County Current Expense | 0.3708482477 | $496,226 | $496,226 | $184.02 | | |
| CR | County Roads | 0.4584763726 | $496,226 | $496,226 | $227.51 | | |
| ISLANDEMS | Hospital GEN (EMS) | 0.5000000000 | $496,226 | $496,226 | $248.11 | | |
| LIB | Library Sno-Isle GEN | 0.3153421757 | $496,226 | $496,226 | $156.48 | | |
| NWHIDPRMT | P & R N Whidbey GEN | 0.2004466701 | $496,226 | $496,226 | $99.47 | | |
| SCH201MO | School 201 Enrichment | 1.8559231640 | $496,226 | $496,226 | $920.96 | | |
| ST | State School | 1.3035497053 | $496,226 | $496,226 | $646.86 | | |
| ST2 | State School Part 2 | 0.8169543533 | $496,226 | $496,226 | $405.39 | | |
| | Total Tax Rate: | 6.9861102925 | | | | | |
| | | | | Taxes w/Current Exemptions: | $3,466.68 | | |
| | | | | Taxes w/o Exemptions: | $3,466.68 | | |
Improvement / Building
| Improvement #1: | RESIDENTIAL | State Code: | Y | 1960.0 sqft | Value: | $276,226 |
| Bathrooms: | 3 | Bedrooms: | 4 | | Ceiling: | DRYWALL PAINTED | Exterior Wall/Cover: | WOOD SIDING | | Floor Covering: | CARPET/VINYL 80-20 | Floor Structure: | WOOD W/SUBFLOOR | | Foundation: | CONCRETE | Heating: | FHA GAS | | Interior Finish: | DRYWALL PAINT | Plumbing Fixture Cnt: | 11 | | Roof Slope: | 4" IN 12" | Roof Structure/Cover: | CJ ASPHALT |
|
| | Type | Description | Class CD | Sub Class CD | Year Built | Area |
| | BAS | BASE/MAIN FLOOR | 3 | 0 | 1975 | 1240.0 |
| | OWP | OPEN WOOD PORCH W/STEPS | 3 | 0 | 1975 | 152.0 |
| | AGR | ATTACHED GARAGE | 3 | 0 | 1975 | 480.0 |
| | UPS | UPPER STORY | 3 | 0 | 1975 | 720.0 |
| | OWP | OPEN WOOD PORCH W/STEPS | 3 | 0 | 1975 | 307.3 |
Sketch
Property Image
Land
| 1 | 14 | SQ (08001-12000) | 0.0000 | 0.00 | 0.00 | 0.00 | 1.00 | $220,000 | $0 |
Roll Value History
| 2026 | N/A | N/A | N/A | N/A | N/A |
| 2025 | $276,226 | $220,000 | $0 | $496,226 | $496,226 |
| 2024 | $279,998 | $190,000 | $0 | $469,998 | $469,998 |
| 2023 | $279,406 | $200,000 | $0 | $479,406 | $479,406 |
| 2022 | $256,457 | $180,000 | $0 | $436,457 | $436,457 |
| 2021 | $226,069 | $125,000 | $0 | $351,069 | $351,069 |
| 2020 | $220,682 | $100,000 | $0 | $320,682 | $320,682 |
| 2019 | $167,213 | $150,000 | $0 | $317,213 | $317,213 |
| 2018 | $167,754 | $130,000 | $0 | $297,754 | $297,754 |
| 2017 | $148,448 | $120,000 | $0 | $268,448 | $268,448 |
| 2016 | $150,600 | $90,000 | $0 | $240,600 | $240,600 |
| 2015 | $152,752 | $70,000 | $0 | $222,752 | $222,752 |
| 2014 | $154,903 | $55,000 | $0 | $209,903 | $209,903 |
| 2013 | $157,054 | $55,000 | $0 | $212,054 | $212,054 |
| 2012 | $159,206 | $65,000 | $0 | $224,206 | $224,206 |
| 2011 | $164,509 | $50,000 | $0 | $214,509 | $214,509 |
| 2010 | $173,845 | $50,000 | $0 | $223,845 | $223,845 |
| 2009 | $179,305 | $75,000 | $0 | $254,305 | $254,305 |
| 2008 | $181,739 | $100,000 | $0 | $281,739 | $281,739 |
| 2007 | $184,178 | $100,000 | $0 | $284,178 | $284,178 |
Deed and Sales History
| 1 | 06/01/1980 | WD | Warranty Deed | OCONNELL, MICHAEL K | CLEVERDON, THOMAS F | | | $81,500.00 | 2020 | 370006 |
| 2 | 01/01/1900 | OTHER | Other - Misc. Documents | Unknown | OCONNELL, MICHAEL K | | | $0.00 | 0 | 0 |
Payout Agreement
| No payout information available.. |