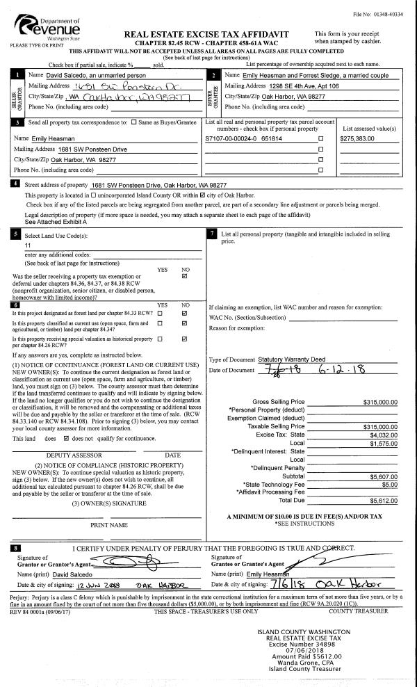
Property
Account |
| Property ID: | 240055 | Abbreviated Legal Description: | CROSSWOODS 4 LOT 1 |
| Geographic ID: | S6440-04-00001-0 | Agent Code: | |
| Type: | Real | | |
| Tax Area: | 110 - APPRAISER-OH Schl Dist, outside OH, improved & 1 acre or less | Land Use Code | 11 |
| Open Space: | N | DFL | N |
| Historic Property: | N | Remodel Property: | N |
| Multi-Family Redevelopment: | N | | |
| Township: | | Section: | |
| Range: | |
Location |
| Address: | 1209 LIBERTY LN OAK HARBOR, WA 98277 | Mapsco: | |
| Neighborhood: | Cycle 1 | Map ID: | 95 |
| Neighborhood CD: | 1 |
Owner |
| Name: | SANZONE, BRODY | Owner ID: | 303949 |
| Mailing Address: | 1209 LIBERTY LN OAK HARBOR, WA 98277 | % Ownership: | 100.0000000000% |
| | | Exemptions: | |
Taxes and Assessment Details
Values
| (+) Improvement Homesite Value: | + | $0 | |
| (+) Improvement Non-Homesite Value: | + | $257,112 | |
| (+) Land Homesite Value: | + | $0 | |
| (+) Land Non-Homesite Value: | + | $220,000 | |
| (+) Curr Use (HS): | + | $0 | $0 |
| (+) Curr Use (NHS): | + | $0 | $0 |
| | | -------------------------- | |
| (=) Market Value: | = | $477,112 | |
| (–) Productivity Loss: | – | $0 | |
| | | -------------------------- | |
| (=) Subtotal: | = | $477,112 | |
| (+) Senior Appraised Value: | + | $0 | |
| (+) Non-Senior Appraised Value: | + | $477,112 | |
| | | -------------------------- | |
| (=) Total Appraised Value: | = | $477,112 | |
| (–) Senior Exemption Loss: | – | $0 | |
| (–) Exemption Loss: | – | $0 | |
| | | -------------------------- | |
| (=) Taxable Value: | = | $477,112 | |
Taxing Jurisdiction
| Owner: | SANZONE, BRODY | | |
| % Ownership: | 100.0000000000% | | |
| Total Value: | $477,112 | | |
| Tax Area: | 110 - APPRAISER-OH Schl Dist, outside OH, improved & 1 acre or less |
| CF | Conservation Futures | 0.0316035091 | $477,112 | $477,112 | $15.08 | | |
| CEM1 | Cemetery #1 | 0.0040320932 | $477,112 | $477,112 | $1.92 | | |
| FIRE2 | Fire & Rescue Dist #2 N Whidbey GEN | 0.5475949600 | $477,112 | $477,112 | $261.26 | | |
| HOBOND | Hospital BOND | 0.1910887512 | $477,112 | $477,112 | $91.17 | | |
| HOGEN | Hospital GEN | 0.3902502903 | $477,112 | $477,112 | $186.19 | | |
| CE | County Current Expense | 0.3708482477 | $477,112 | $477,112 | $176.94 | | |
| CR | County Roads | 0.4584763726 | $477,112 | $477,112 | $218.74 | | |
| ISLANDEMS | Hospital GEN (EMS) | 0.5000000000 | $477,112 | $477,112 | $238.56 | | |
| LIB | Library Sno-Isle GEN | 0.3153421757 | $477,112 | $477,112 | $150.45 | | |
| NWHIDPRMT | P & R N Whidbey GEN | 0.2004466701 | $477,112 | $477,112 | $95.64 | | |
| SCH201MO | School 201 Enrichment | 1.8559231640 | $477,112 | $477,112 | $885.48 | | |
| ST | State School | 1.3035497053 | $477,112 | $477,112 | $621.94 | | |
| ST2 | State School Part 2 | 0.8169543533 | $477,112 | $477,112 | $389.78 | | |
| | Total Tax Rate: | 6.9861102925 | | | | | |
| | | | | Taxes w/Current Exemptions: | $3,333.15 | | |
| | | | | Taxes w/o Exemptions: | $3,333.15 | | |
Improvement / Building
| Improvement #1: | RESIDENTIAL | State Code: | Y | 1396.0 sqft | Value: | $257,112 |
| Bathrooms: | 2 | Bedrooms: | 3 | | Ceiling: | DRY WALL SPRAYED | Exterior Wall/Cover: | WOOD SIDING | | Floor Covering: | CARPET/VINYL 80-20 | Floor Structure: | WOOD W/SUBFLOOR | | Foundation: | CONCRETE | Heating: | BASEBOARD ELECTRIC | | Interior Finish: | DRYWALL PAINT | Plumbing Fixture Cnt: | 9 | | Roof Slope: | 4" IN 12" | Roof Structure/Cover: | CJ ALUMINIUM HEAVY |
|
| | Type | Description | Class CD | Sub Class CD | Year Built | Area |
| | BAS | BASE/MAIN FLOOR | 3 | 0 | 1978 | 1396.0 |
| | OP4 | OPEN PORCH W/CEILING-ROOF | 3 | 0 | 1978 | 8.0 |
| | AGR | ATTACHED GARAGE | 3 | 0 | 1978 | 528.0 |
Sketch
Property Image
Land
| 1 | 15 | SQ (12001-21780) | 0.0000 | 0.00 | 0.00 | 0.00 | 1.00 | $220,000 | $0 |
Roll Value History
| 2026 | N/A | N/A | N/A | N/A | N/A |
| 2025 | $257,112 | $220,000 | $0 | $477,112 | $477,112 |
| 2024 | $265,559 | $190,000 | $0 | $455,559 | $455,559 |
| 2023 | $252,485 | $200,000 | $0 | $452,485 | $452,485 |
| 2022 | $231,589 | $180,000 | $0 | $411,589 | $411,589 |
| 2021 | $203,954 | $125,000 | $0 | $328,954 | $328,954 |
| 2020 | $198,812 | $100,000 | $0 | $298,812 | $298,812 |
| 2019 | $143,870 | $150,000 | $0 | $293,870 | $293,870 |
| 2018 | $144,313 | $130,000 | $0 | $274,313 | $274,313 |
| 2017 | $114,120 | $120,000 | $0 | $234,120 | $234,120 |
| 2016 | $115,849 | $90,000 | $0 | $205,849 | $205,849 |
| 2015 | $117,577 | $70,000 | $0 | $187,577 | $187,577 |
| 2014 | $119,307 | $55,000 | $0 | $174,307 | $174,307 |
| 2013 | $121,036 | $55,000 | $0 | $176,036 | $176,036 |
| 2012 | $122,764 | $65,000 | $0 | $187,764 | $187,764 |
| 2011 | $122,405 | $50,000 | $0 | $172,405 | $172,405 |
| 2010 | $133,861 | $50,000 | $0 | $183,861 | $183,861 |
| 2009 | $139,664 | $75,000 | $0 | $214,664 | $214,664 |
| 2008 | $141,452 | $100,000 | $0 | $241,452 | $241,452 |
| 2007 | $143,240 | $100,000 | $0 | $243,240 | $243,240 |
Deed and Sales History
| 1 | 04/20/2022 | WD | Warranty Deed | MEDINA, HEIDI ANNE | SANZONE, BRODY | | | $504,000.00 | 52831 | 4543918 |
| 2 | 03/30/2018 | WD | Warranty Deed | GRISWOLD, CHERYL A | MEDINA, HEIDI ANNE | | | $305,000.00 | 33599 | 4442189 |
| 3 | 02/27/2018 | DECREE | Divorce Decree/Legal Separation | RONAN, PATRICK H | GRISWOLD, CHERYL A | | | | 87737 | |
| 4 | 11/10/2014 | WD | Warranty Deed | JENSEN, BENT L | RONAN, PATRICK H | | | $217,750.00 | 17656 | 4368917 |
| 5 | 08/01/1978 | OTHER | Other - Misc. Documents | Unknown | JENSEN, BENT L | | | $57,000.00 | 84044 | 338333 |
Payout Agreement
| No payout information available.. |