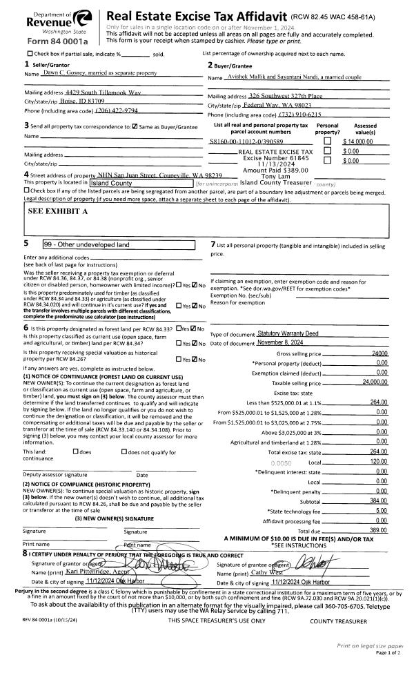
Property
Account |
| Property ID: | 240162 | Abbreviated Legal Description: | CROSSWOODS 4 LOT 12 |
| Geographic ID: | S6440-04-00012-0 | Agent Code: | |
| Type: | Real | | |
| Tax Area: | 110 - APPRAISER-OH Schl Dist, outside OH, improved & 1 acre or less | Land Use Code | 11 |
| Open Space: | N | DFL | N |
| Historic Property: | N | Remodel Property: | N |
| Multi-Family Redevelopment: | N | | |
| Township: | | Section: | |
| Range: | |
Location |
| Address: | 2136 COLONIAL WAY OAK HARBOR, WA 98277 | Mapsco: | |
| Neighborhood: | Cycle 1 | Map ID: | 95 |
| Neighborhood CD: | 1 |
Owner |
| Name: | ESPERUM SR, DALE A | Owner ID: | 44053 |
| Mailing Address: | CONSTANCE E ESPERUM PO BOX 896 OAK HARBOR, WA 98277-0896 | % Ownership: | 100.0000000000% |
| | | Exemptions: | |
Taxes and Assessment Details
Values
| (+) Improvement Homesite Value: | + | $0 | |
| (+) Improvement Non-Homesite Value: | + | $364,737 | |
| (+) Land Homesite Value: | + | $0 | |
| (+) Land Non-Homesite Value: | + | $220,000 | |
| (+) Curr Use (HS): | + | $0 | $0 |
| (+) Curr Use (NHS): | + | $0 | $0 |
| | | -------------------------- | |
| (=) Market Value: | = | $584,737 | |
| (–) Productivity Loss: | – | $0 | |
| | | -------------------------- | |
| (=) Subtotal: | = | $584,737 | |
| (+) Senior Appraised Value: | + | $0 | |
| (+) Non-Senior Appraised Value: | + | $584,737 | |
| | | -------------------------- | |
| (=) Total Appraised Value: | = | $584,737 | |
| (–) Senior Exemption Loss: | – | $0 | |
| (–) Exemption Loss: | – | $0 | |
| | | -------------------------- | |
| (=) Taxable Value: | = | $584,737 | |
Taxing Jurisdiction
| Owner: | ESPERUM SR, DALE A | | |
| % Ownership: | 100.0000000000% | | |
| Total Value: | $584,737 | | |
| Tax Area: | 110 - APPRAISER-OH Schl Dist, outside OH, improved & 1 acre or less |
| CF | Conservation Futures | 0.0316035091 | $584,737 | $584,737 | $18.48 | | |
| CEM1 | Cemetery #1 | 0.0040320932 | $584,737 | $584,737 | $2.36 | | |
| FIRE2 | Fire & Rescue Dist #2 N Whidbey GEN | 0.5475949600 | $584,737 | $584,737 | $320.20 | | |
| HOBOND | Hospital BOND | 0.1910887512 | $584,737 | $584,737 | $111.74 | | |
| HOGEN | Hospital GEN | 0.3902502903 | $584,737 | $584,737 | $228.19 | | |
| CE | County Current Expense | 0.3708482477 | $584,737 | $584,737 | $216.85 | | |
| CR | County Roads | 0.4584763726 | $584,737 | $584,737 | $268.09 | | |
| ISLANDEMS | Hospital GEN (EMS) | 0.5000000000 | $584,737 | $584,737 | $292.37 | | |
| LIB | Library Sno-Isle GEN | 0.3153421757 | $584,737 | $584,737 | $184.39 | | |
| NWHIDPRMT | P & R N Whidbey GEN | 0.2004466701 | $584,737 | $584,737 | $117.21 | | |
| SCH201MO | School 201 Enrichment | 1.8559231640 | $584,737 | $584,737 | $1,085.23 | | |
| ST | State School | 1.3035497053 | $584,737 | $584,737 | $762.23 | | |
| ST2 | State School Part 2 | 0.8169543533 | $584,737 | $584,737 | $477.70 | | |
| | Total Tax Rate: | 6.9861102925 | | | | | |
| | | | | Taxes w/Current Exemptions: | $4,085.04 | | |
| | | | | Taxes w/o Exemptions: | $4,085.04 | | |
Improvement / Building
| Improvement #1: | RESIDENTIAL | State Code: | Y | 2694.0 sqft | Value: | $364,737 |
| Bathrooms: | 3.5 | Bedrooms: | 4 | | Ceiling: | DRY WALL SPRAYED | Cooling: | HEAT PUMP/CONV/V | | Exterior Wall/Cover: | WOOD SIDING | Floor Covering: | HARDWOOD/CARP 20-80 | | Floor Structure: | WOOD W/SUBFLOOR | Foundation: | CONCRETE | | Interior Finish: | DRYWALL PAINT | Plumbing Fixture Cnt: | 14 | | Roof Slope: | 4" IN 12" | Roof Structure/Cover: | CJ ASPHALT |
|
| | Type | Description | Class CD | Sub Class CD | Year Built | Area |
| | BAS | BASE/MAIN FLOOR | 3 | 0 | 1978 | 1669.0 |
| | OP4 | OPEN PORCH W/CEILING-ROOF | 3 | 0 | 1978 | 44.0 |
| | AGR | ATTACHED GARAGE | 3 | 0 | 1978 | 420.0 |
| | UPS | UPPER STORY | 3 | 0 | 1978 | 1025.0 |
| | ENP | ENCLOSED PORCH | 3 | 0 | 1978 | 492.0 |
Sketch
Property Image
Land
| 1 | 15 | SQ (12001-21780) | 0.0000 | 0.00 | 0.00 | 0.00 | 1.00 | $220,000 | $0 |
Roll Value History
| 2026 | N/A | N/A | N/A | N/A | N/A |
| 2025 | $364,737 | $220,000 | $0 | $584,737 | $584,737 |
| 2024 | $369,786 | $190,000 | $0 | $559,786 | $559,786 |
| 2023 | $359,690 | $200,000 | $0 | $559,690 | $559,690 |
| 2022 | $330,272 | $180,000 | $0 | $510,272 | $510,272 |
| 2021 | $291,163 | $125,000 | $0 | $416,163 | $416,163 |
| 2020 | $279,493 | $100,000 | $0 | $379,493 | $379,493 |
| 2019 | $218,683 | $150,000 | $0 | $368,683 | $368,683 |
| 2018 | $219,410 | $130,000 | $0 | $349,410 | $349,410 |
| 2017 | $195,297 | $120,000 | $0 | $315,297 | $315,297 |
| 2016 | $198,209 | $90,000 | $0 | $288,209 | $288,209 |
| 2015 | $201,124 | $70,000 | $0 | $271,124 | $271,124 |
| 2014 | $204,040 | $55,000 | $0 | $259,040 | $259,040 |
| 2013 | $206,956 | $55,000 | $0 | $261,956 | $261,956 |
| 2012 | $209,870 | $65,000 | $0 | $274,870 | $274,870 |
| 2011 | $204,208 | $50,000 | $0 | $254,208 | $254,208 |
| 2010 | $215,637 | $50,000 | $0 | $265,637 | $265,637 |
| 2009 | $222,141 | $75,000 | $0 | $297,141 | $297,141 |
| 2008 | $224,929 | $100,000 | $0 | $324,929 | $324,929 |
| 2007 | $227,717 | $100,000 | $0 | $327,717 | $327,717 |
Deed and Sales History
| 1 | 05/03/2006 | WD | Warranty Deed | SHORES, LEONARD M | ESPERUM SR, DALE A | | | $325,300.00 | 62071 | 4170120 |
| 2 | 09/01/1978 | OTHER | Other - Misc. Documents | Unknown | SHORES, LEONARD M | | | $73,500.00 | 84527 | 339774 |
Payout Agreement
| No payout information available.. |