Property
Account |
| Property ID: | 240368 | Abbreviated Legal Description: | CROSSWOODS 4 LOT 32 |
| Geographic ID: | S6440-04-00032-0 | Agent Code: | |
| Type: | Real | | |
| Tax Area: | 110 - APPRAISER-OH Schl Dist, outside OH, improved & 1 acre or less | Land Use Code | 11 |
| Open Space: | N | DFL | N |
| Historic Property: | N | Remodel Property: | N |
| Multi-Family Redevelopment: | N | | |
| Township: | | Section: | |
| Range: | |
Location |
| Address: | 2179 COLONIAL WAY OAK HARBOR, WA 98277 | Mapsco: | |
| Neighborhood: | Cycle 1 | Map ID: | 95 |
| Neighborhood CD: | 1 |
Owner |
| Name: | NEWSTROM, KATRINA B | Owner ID: | 313270 |
| Mailing Address: | 2179 COLONIAL WAY OAK HARBOR, WA 98277 | % Ownership: | 100.0000000000% |
| | | Exemptions: | |
Taxes and Assessment Details
Values
| (+) Improvement Homesite Value: | + | $0 | |
| (+) Improvement Non-Homesite Value: | + | $281,113 | |
| (+) Land Homesite Value: | + | $0 | |
| (+) Land Non-Homesite Value: | + | $220,000 | |
| (+) Curr Use (HS): | + | $0 | $0 |
| (+) Curr Use (NHS): | + | $0 | $0 |
| | | -------------------------- | |
| (=) Market Value: | = | $501,113 | |
| (–) Productivity Loss: | – | $0 | |
| | | -------------------------- | |
| (=) Subtotal: | = | $501,113 | |
| (+) Senior Appraised Value: | + | $0 | |
| (+) Non-Senior Appraised Value: | + | $501,113 | |
| | | -------------------------- | |
| (=) Total Appraised Value: | = | $501,113 | |
| (–) Senior Exemption Loss: | – | $0 | |
| (–) Exemption Loss: | – | $0 | |
| | | -------------------------- | |
| (=) Taxable Value: | = | $501,113 | |
Taxing Jurisdiction
| Owner: | NEWSTROM, KATRINA B | | |
| % Ownership: | 100.0000000000% | | |
| Total Value: | $501,113 | | |
| Tax Area: | 110 - APPRAISER-OH Schl Dist, outside OH, improved & 1 acre or less |
| CF | Conservation Futures | 0.0316035091 | $501,113 | $501,113 | $15.84 | | |
| CEM1 | Cemetery #1 | 0.0040320932 | $501,113 | $501,113 | $2.02 | | |
| FIRE2 | Fire & Rescue Dist #2 N Whidbey GEN | 0.5475949600 | $501,113 | $501,113 | $274.41 | | |
| HOBOND | Hospital BOND | 0.1910887512 | $501,113 | $501,113 | $95.76 | | |
| HOGEN | Hospital GEN | 0.3902502903 | $501,113 | $501,113 | $195.56 | | |
| CE | County Current Expense | 0.3708482477 | $501,113 | $501,113 | $185.84 | | |
| CR | County Roads | 0.4584763726 | $501,113 | $501,113 | $229.75 | | |
| ISLANDEMS | Hospital GEN (EMS) | 0.5000000000 | $501,113 | $501,113 | $250.56 | | |
| LIB | Library Sno-Isle GEN | 0.3153421757 | $501,113 | $501,113 | $158.02 | | |
| NWHIDPRMT | P & R N Whidbey GEN | 0.2004466701 | $501,113 | $501,113 | $100.45 | | |
| SCH201MO | School 201 Enrichment | 1.8559231640 | $501,113 | $501,113 | $930.03 | | |
| ST | State School | 1.3035497053 | $501,113 | $501,113 | $653.23 | | |
| ST2 | State School Part 2 | 0.8169543533 | $501,113 | $501,113 | $409.39 | | |
| | Total Tax Rate: | 6.9861102925 | | | | | |
| | | | | Taxes w/Current Exemptions: | $3,500.86 | | |
| | | | | Taxes w/o Exemptions: | $3,500.86 | | |
Improvement / Building
| Improvement #1: | RESIDENTIAL | State Code: | Y | 1555.5 sqft | Value: | $281,113 |
| Bathrooms: | 2 | Bedrooms: | 3 | | Ceiling: | DRY WALL SPRAYED | Exterior Wall/Cover: | WOOD SIDING | | Floor Covering: | CARPET/VINYL 60-40 | Floor Structure: | WOOD W/SUBFLOOR | | Foundation: | CONCRETE | Heating: | FHA GAS | | Interior Finish: | DRYWALL PAINT | Plumbing Fixture Cnt: | 9 | | Roof Slope: | 4" IN 12" | Roof Structure/Cover: | CJ ASPHALT |
|
| | Type | Description | Class CD | Sub Class CD | Year Built | Area |
| | BAS | BASE/MAIN FLOOR | 3 | 0 | 1978 | 1555.5 |
| | AGR | ATTACHED GARAGE | 3 | 0 | 1978 | 493.5 |
| | OWP | OPEN WOOD PORCH W/STEPS | 3 | 0 | 1978 | 963.9 |
Sketch
| No sketches available for this property. |
Property Image
Land
| 1 | 15 | SQ (12001-21780) | 0.0000 | 0.00 | 0.00 | 0.00 | 1.00 | $220,000 | $0 |
Roll Value History
| 2026 | N/A | N/A | N/A | N/A | N/A |
| 2025 | $281,113 | $220,000 | $0 | $501,113 | $501,113 |
| 2024 | $256,938 | $190,000 | $0 | $446,938 | $446,938 |
| 2023 | $247,087 | $200,000 | $0 | $447,087 | $447,087 |
| 2022 | $226,714 | $180,000 | $0 | $406,714 | $406,714 |
| 2021 | $199,719 | $125,000 | $0 | $324,719 | $324,719 |
| 2020 | $194,795 | $100,000 | $0 | $294,795 | $294,795 |
| 2019 | $140,490 | $150,000 | $0 | $290,490 | $290,490 |
| 2018 | $140,933 | $130,000 | $0 | $270,933 | $270,933 |
| 2017 | $136,908 | $120,000 | $0 | $256,908 | $256,908 |
| 2016 | $120,027 | $90,000 | $0 | $210,027 | $210,027 |
| 2015 | $121,791 | $70,000 | $0 | $191,791 | $191,791 |
| 2014 | $123,557 | $55,000 | $0 | $178,557 | $178,557 |
| 2013 | $125,321 | $55,000 | $0 | $180,321 | $180,321 |
| 2012 | $127,087 | $65,000 | $0 | $192,087 | $192,087 |
| 2011 | $130,266 | $50,000 | $0 | $180,266 | $180,266 |
| 2010 | $140,740 | $50,000 | $0 | $190,740 | $190,740 |
| 2009 | $144,953 | $75,000 | $0 | $219,953 | $219,953 |
| 2008 | $146,757 | $100,000 | $0 | $246,757 | $246,757 |
| 2007 | $148,560 | $100,000 | $0 | $248,560 | $248,560 |
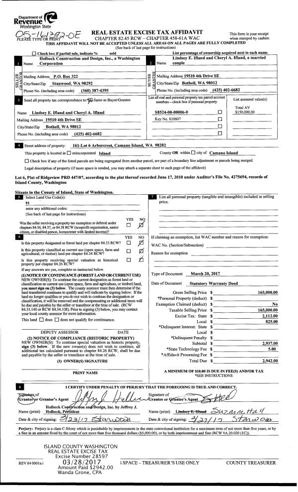
Deed and Sales History
| 1 | 06/27/2024 | WD | Warranty Deed | THOMPSON, BRANDON MICHAEL | NEWSTROM, KATRINA B | | | $516,250.00 | 60585 | 4574376 |
| 2 | 04/06/2020 | QCD | Quit Claim Deed | THOMPSON, BRANDON MICHAEL | THOMPSON, BRANDON MICHAEL | | | $0.00 | 42620 | 4484559 |
| 3 | 03/03/2017 | WD | Warranty Deed | BEHNE, BRANDEN | THOMPSON, BRANDON MICHAEL | | | $273,000.00 | 28326 | 4418382 |
| 4 | 10/24/2013 | WD | Warranty Deed | HIBLAR, ANDREW F | BEHNE, BRANDEN | | | $208,000.00 | 13293 | 4350732 |
Payout Agreement
| No payout information available.. |