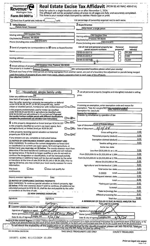
Property
Account |
| Property ID: | 240457 | Abbreviated Legal Description: | CROSSWOODS 4 LOT 41 |
| Geographic ID: | S6440-04-00041-0 | Agent Code: | |
| Type: | Real | | |
| Tax Area: | 110 - APPRAISER-OH Schl Dist, outside OH, improved & 1 acre or less | Land Use Code | 11 |
| Open Space: | N | DFL | N |
| Historic Property: | N | Remodel Property: | N |
| Multi-Family Redevelopment: | N | | |
| Township: | | Section: | |
| Range: | |
Location |
| Address: | 2136 HERITAGE WAY OAK HARBOR, WA 98277 | Mapsco: | |
| Neighborhood: | Cycle 1 | Map ID: | 95 |
| Neighborhood CD: | 1 |
Owner |
| Name: | MEBANE. WILLIAM DUAN | Owner ID: | 265803 |
| Mailing Address: | TERRI ANNE FROSTAD-MEBANE 2136 HERITAGE WAY OAK HARBOR, WA 98277 | % Ownership: | 100.0000000000% |
| | | Exemptions: | |
Taxes and Assessment Details
Values
| (+) Improvement Homesite Value: | + | $0 | |
| (+) Improvement Non-Homesite Value: | + | $248,742 | |
| (+) Land Homesite Value: | + | $0 | |
| (+) Land Non-Homesite Value: | + | $220,000 | |
| (+) Curr Use (HS): | + | $0 | $0 |
| (+) Curr Use (NHS): | + | $0 | $0 |
| | | -------------------------- | |
| (=) Market Value: | = | $468,742 | |
| (–) Productivity Loss: | – | $0 | |
| | | -------------------------- | |
| (=) Subtotal: | = | $468,742 | |
| (+) Senior Appraised Value: | + | $0 | |
| (+) Non-Senior Appraised Value: | + | $468,742 | |
| | | -------------------------- | |
| (=) Total Appraised Value: | = | $468,742 | |
| (–) Senior Exemption Loss: | – | $0 | |
| (–) Exemption Loss: | – | $0 | |
| | | -------------------------- | |
| (=) Taxable Value: | = | $468,742 | |
Taxing Jurisdiction
| Owner: | MEBANE. WILLIAM DUAN | | |
| % Ownership: | 100.0000000000% | | |
| Total Value: | $468,742 | | |
| Tax Area: | 110 - APPRAISER-OH Schl Dist, outside OH, improved & 1 acre or less |
| CF | Conservation Futures | 0.0316035091 | $468,742 | $468,742 | $14.81 | | |
| CEM1 | Cemetery #1 | 0.0040320932 | $468,742 | $468,742 | $1.89 | | |
| FIRE2 | Fire & Rescue Dist #2 N Whidbey GEN | 0.5475949600 | $468,742 | $468,742 | $256.68 | | |
| HOBOND | Hospital BOND | 0.1910887512 | $468,742 | $468,742 | $89.57 | | |
| HOGEN | Hospital GEN | 0.3902502903 | $468,742 | $468,742 | $182.93 | | |
| CE | County Current Expense | 0.3708482477 | $468,742 | $468,742 | $173.83 | | |
| CR | County Roads | 0.4584763726 | $468,742 | $468,742 | $214.91 | | |
| ISLANDEMS | Hospital GEN (EMS) | 0.5000000000 | $468,742 | $468,742 | $234.37 | | |
| LIB | Library Sno-Isle GEN | 0.3153421757 | $468,742 | $468,742 | $147.81 | | |
| NWHIDPRMT | P & R N Whidbey GEN | 0.2004466701 | $468,742 | $468,742 | $93.96 | | |
| SCH201MO | School 201 Enrichment | 1.8559231640 | $468,742 | $468,742 | $869.95 | | |
| ST | State School | 1.3035497053 | $468,742 | $468,742 | $611.03 | | |
| ST2 | State School Part 2 | 0.8169543533 | $468,742 | $468,742 | $382.94 | | |
| | Total Tax Rate: | 6.9861102925 | | | | | |
| | | | | Taxes w/Current Exemptions: | $3,274.68 | | |
| | | | | Taxes w/o Exemptions: | $3,274.68 | | |
Improvement / Building
| Improvement #1: | RESIDENTIAL | State Code: | Y | 1632.0 sqft | Value: | $248,742 |
| Bathrooms: | 2 | Bedrooms: | 3 | | Ceiling: | DRY WALL SPRAYED | Exterior Wall/Cover: | WOOD SIDING | | Floor Covering: | CARPET/VINYL 80-20 | Floor Structure: | WOOD W/SUBFLOOR | | Foundation: | CONCRETE | Heating: | FHA GAS | | Interior Finish: | DRYWALL PAINT | Plumbing Fixture Cnt: | 9 | | Roof Slope: | 4" IN 12" | Roof Structure/Cover: | CJ ASPHALT |
|
| | Type | Description | Class CD | Sub Class CD | Year Built | Area |
| | BAS | BASE/MAIN FLOOR | 3 | 0 | 1978 | 1632.0 |
| | OP4 | OPEN PORCH W/CEILING-ROOF | 3 | 0 | 1978 | 16.0 |
| | AGR | ATTACHED GARAGE | 3 | 0 | 1978 | 480.0 |
| | OWP | OPEN WOOD PORCH W/STEPS | 3 | 0 | 1978 | 140.0 |
Sketch
Property Image
Land
| 1 | 14 | SQ (08001-12000) | 0.0000 | 0.00 | 0.00 | 0.00 | 1.00 | $220,000 | $0 |
Roll Value History
| 2026 | N/A | N/A | N/A | N/A | N/A |
| 2025 | $248,742 | $220,000 | $0 | $468,742 | $468,742 |
| 2024 | $252,185 | $190,000 | $0 | $442,185 | $442,185 |
| 2023 | $252,185 | $200,000 | $0 | $452,185 | $452,185 |
| 2022 | $231,465 | $180,000 | $0 | $411,465 | $411,465 |
| 2021 | $203,995 | $125,000 | $0 | $328,995 | $328,995 |
| 2020 | $199,109 | $100,000 | $0 | $299,109 | $299,109 |
| 2019 | $146,119 | $150,000 | $0 | $296,119 | $296,119 |
| 2018 | $146,594 | $130,000 | $0 | $276,594 | $276,594 |
| 2017 | $141,980 | $120,000 | $0 | $261,980 | $261,980 |
| 2016 | $143,872 | $90,000 | $0 | $233,872 | $233,872 |
| 2015 | $145,766 | $70,000 | $0 | $215,766 | $215,766 |
| 2014 | $147,659 | $55,000 | $0 | $202,659 | $202,659 |
| 2013 | $140,086 | $55,000 | $0 | $195,086 | $195,086 |
| 2012 | $141,980 | $65,000 | $0 | $206,980 | $206,980 |
| 2011 | $141,742 | $50,000 | $0 | $191,742 | $191,742 |
| 2010 | $152,105 | $50,000 | $0 | $202,105 | $202,105 |
| 2009 | $156,725 | $75,000 | $0 | $231,725 | $231,725 |
| 2008 | $158,745 | $100,000 | $0 | $258,745 | $258,745 |
| 2007 | $160,762 | $100,000 | $0 | $260,762 | $260,762 |
Deed and Sales History
| 1 | 04/25/2014 | WD | Warranty Deed | FARLER, NEIL F | MEBANE. WILLIAM DUAN | | | $210,000.00 | 15084 | 4358658 |
| 2 | 06/01/2010 | WD | Warranty Deed | GUNDERSON, ROBERT A | FARLER, NEIL F | | | $236,500.00 | 1479 | 4275727 |
| 3 | 04/21/2003 | WD | Warranty Deed | THAVES, DELWYN L | GUNDERSON, ROBERT A | | | $169,000.00 | 31743 | 4056654 |
| 4 | 11/01/1994 | WD | Warranty Deed | BOLSTER, RONALD E | THAVES, DELWYN L | | | $137,000.00 | 44731 | 94024176 |
| 5 | 06/01/1990 | WD | Warranty Deed | ANDERSON, ROBERT C | BOLSTER, RONALD E | | | $95,900.00 | 3723 | 90012104 |
| 6 | 03/01/1980 | WD | Warranty Deed | RESING, DAVID C | ANDERSON, ROBERT C | | | $68,000.00 | 1091 | 367122 |
| 7 | 01/01/1900 | OTHER | Other - Misc. Documents | Unknown | RESING, DAVID C | | | $0.00 | 0 | 0 |
Payout Agreement
| No payout information available.. |