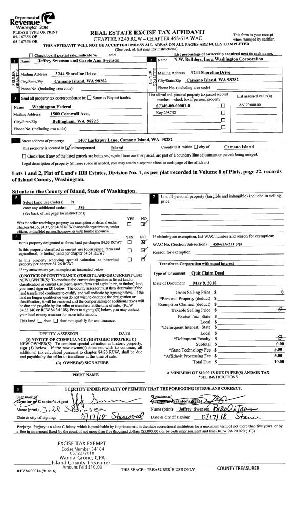
Property
Account |
| Property ID: | 240670 | Abbreviated Legal Description: | DANIELS ADD LOT 2 W/2 BLK 3 LESS W130' OF N56' EX TR BG E LN W/2 BLK 3 & SLN HWY S150' W75' N TO SLN HWY ELY ALG SLN HWY TPB EX CC 4229 & EX RD INCL EZ TGW & SUB EZ AF#89003042 |
| Geographic ID: | S6445-00-03002-0 | Agent Code: | |
| Type: | Real | | |
| Tax Area: | 762 - APPRAISER-S Whid Schl Dist, Special District, improved, greater than 1 acre | Land Use Code | 66 |
| Open Space: | N | DFL | N |
| Historic Property: | N | Remodel Property: | N |
| Multi-Family Redevelopment: | N | | |
| Township: | | Section: | |
| Range: | |
Location |
| Address: | 18181 SR525 FREELAND, WA 98249 | Mapsco: | |
| Neighborhood: | 34cFR-highway 525 | Map ID: | 310 |
| Neighborhood CD: | 34cFRhw525 |
Owner |
| Name: | B & W PUMP COMPANY | Owner ID: | 286259 |
| Mailing Address: | PO BOX 55 FREELAND, WA 98249 | % Ownership: | 100.0000000000% |
| | | Exemptions: | |
Taxes and Assessment Details
Values
| (+) Improvement Homesite Value: | + | $0 | |
| (+) Improvement Non-Homesite Value: | + | $143,806 | |
| (+) Land Homesite Value: | + | $0 | |
| (+) Land Non-Homesite Value: | + | $435,600 | |
| (+) Curr Use (HS): | + | $0 | $0 |
| (+) Curr Use (NHS): | + | $0 | $0 |
| | | -------------------------- | |
| (=) Market Value: | = | $579,406 | |
| (–) Productivity Loss: | – | $0 | |
| | | -------------------------- | |
| (=) Subtotal: | = | $579,406 | |
| (+) Senior Appraised Value: | + | $0 | |
| (+) Non-Senior Appraised Value: | + | $579,406 | |
| | | -------------------------- | |
| (=) Total Appraised Value: | = | $579,406 | |
| (–) Senior Exemption Loss: | – | $0 | |
| (–) Exemption Loss: | – | $0 | |
| | | -------------------------- | |
| (=) Taxable Value: | = | $579,406 | |
Taxing Jurisdiction
| Owner: | B & W PUMP COMPANY | | |
| % Ownership: | 100.0000000000% | | |
| Total Value: | $579,406 | | |
| Tax Area: | 762 - APPRAISER-S Whid Schl Dist, Special District, improved, greater than 1 acre |
| CF | Conservation Futures | 0.0316035091 | $579,406 | $579,406 | $18.31 | | |
| FIRE3 | Fire & Rescue Dist #3 S Whidbey GEN | 1.2004855531 | $579,406 | $579,406 | $695.57 | | |
| HOBOND | Hospital BOND | 0.1910887512 | $579,406 | $579,406 | $110.72 | | |
| HOGEN | Hospital GEN | 0.3902502903 | $579,406 | $579,406 | $226.11 | | |
| CE | County Current Expense | 0.3708482477 | $579,406 | $579,406 | $214.87 | | |
| CR | County Roads | 0.4584763726 | $579,406 | $579,406 | $265.64 | | |
| ISLANDEMS | Hospital GEN (EMS) | 0.5000000000 | $579,406 | $579,406 | $289.70 | | |
| LIB | Library Sno-Isle GEN | 0.3153421757 | $579,406 | $579,406 | $182.71 | | |
| PORTWHID | Port of S Whidbey GEN | 0.1094540357 | $579,406 | $579,406 | $63.42 | | |
| SCH206BOND | School 206 BOND | 0.3161759235 | $579,406 | $579,406 | $183.19 | | |
| SCH206MO | School 206 Enrichment | 0.4547169547 | $579,406 | $579,406 | $263.47 | | |
| ST | State School | 1.3035497053 | $579,406 | $579,406 | $755.28 | | |
| ST2 | State School Part 2 | 0.8169543533 | $579,406 | $579,406 | $473.35 | | |
| SWHIDPRBD | P & R S Whidbey BOND | 0.0152817568 | $579,406 | $579,406 | $8.85 | | |
| SWHIDPRBD2 | P & R S Whidbey BOND2 | 0.0138911264 | $579,406 | $579,406 | $8.05 | | |
| SWHIDPRMT | P & R S Whidbey GEN | 0.2053334452 | $579,406 | $579,406 | $118.97 | | |
| | Total Tax Rate: | 6.6934522006 | | | | | |
| | | | | Taxes w/Current Exemptions: | $3,878.21 | | |
| | | | | Taxes w/o Exemptions: | $3,878.21 | | |
Improvement / Building
| Improvement #1: | COMMERCIAL | State Code: | F1 | 1344.0 sqft | Value: | $143,806 |
| Bathrooms: | 0 | Bedrooms: | 0 | | Ceiling: | DRYWALL PAINTED | Exterior Wall/Cover: | PLYWD/WD OR ST STUDS | | Floor Covering: | CARPET 100% | Floor Structure: | WOOD ON WOOD JOIST | | Heating: | WALL HEAT ELECTRIC | Interior Finish: | OFFICE | | Plumbing Fixture Cnt: | 1 | Roof Structure/Cover: | BEAM BUILT-UP ROCK |
|
| | Type | Description | Class CD | Sub Class CD | Year Built | Area |
| | BAS | BASE/MAIN FLOOR | 1 | 0 | 1958 | 480.0 |
| | oPOL | POLE BARN | 2 | 0 | 1958 | 1320.0 |
| | oPOL | POLE BARN | 2 | 0 | 1958 | 2352.0 |
| | OCP | OPEN CARPORT | 1 | 0 | 1958 | 880.0 |
| | STG | STORAGE | 1 | 0 | 1958 | 864.0 |
| | UTY | STORAGE/UTILITY | 1 | 0 | 1958 | 258.0 |
Sketch
Property Image
Land
| 1 | 64 | PERSONAL BUSINESS | 0.7920 | 174240.00 | 0.00 | 0.00 | 1.00 | $435,600 | $0 |
Roll Value History
| 2026 | N/A | N/A | N/A | N/A | N/A |
| 2025 | $143,806 | $435,600 | $0 | $579,406 | $579,406 |
| 2024 | $129,423 | $435,600 | $0 | $565,023 | $565,023 |
| 2023 | $131,255 | $435,600 | $0 | $566,855 | $566,855 |
| 2022 | $123,010 | $435,600 | $0 | $558,610 | $558,610 |
| 2021 | $111,845 | $435,600 | $0 | $547,445 | $547,445 |
| 2020 | $110,770 | $435,600 | $0 | $546,370 | $546,370 |
| 2019 | $69,390 | $435,600 | $0 | $504,990 | $504,990 |
| 2018 | $69,633 | $435,600 | $0 | $505,233 | $505,233 |
| 2017 | $70,119 | $368,136 | $0 | $438,255 | $438,255 |
| 2016 | $71,090 | $368,136 | $0 | $439,226 | $439,226 |
| 2015 | $72,061 | $368,136 | $0 | $440,197 | $440,197 |
| 2014 | $73,034 | $368,136 | $0 | $441,170 | $441,170 |
| 2013 | $64,904 | $219,540 | $0 | $284,444 | $284,444 |
| 2012 | $64,904 | $219,540 | $0 | $284,444 | $284,444 |
| 2011 | $64,904 | $219,540 | $0 | $284,444 | $284,444 |
| 2010 | $70,895 | $219,540 | $0 | $290,435 | $290,435 |
| 2009 | $73,521 | $241,253 | $0 | $314,774 | $314,774 |
| 2008 | $76,992 | $241,253 | $0 | $318,245 | $318,245 |
| 2007 | $80,955 | $241,253 | $0 | $322,208 | $322,208 |
Deed and Sales History
| 1 | 09/14/1982 | QCD | Quit Claim Deed | B & W PUMP COMPANY | B & W PUMP COMPANY | | | $0.00 | 35275 | 4449131 |
| 2 | 10/23/1978 | QCD | Quit Claim Deed | LEHMAN, TERRY E | B & W PUMP COMPANY | | | $0.00 | 35274 | 4449130 |
| 3 | 09/01/1982 | QCD | Quit Claim Deed | LEHMAN, JOSEPH H | LEHMAN, TERRY E | | | $19,689.00 | 22177 | 400492 |
| 4 | 10/01/1978 | OTHER | Other - Misc. Documents | Unknown | LEHMAN, JOSEPH H | | | $0.00 | 85265 | 341961 |
Payout Agreement
| No payout information available.. |