Property
Account |
| Property ID: | 24137 | Abbreviated Legal Description: | 27 - E365.60'OF N330.78'OF GL6 TGW SUB EZ SUB EZ AUD F# 367200 AF#92022710 |
| Geographic ID: | R13221-511-1150 | Agent Code: | |
| Type: | Real | | |
| Tax Area: | 112 - APPRAISER-OH Schl Dist, outside OH, improved, greater than 1 acre | Land Use Code | 11 |
| Open Space: | N | DFL | N |
| Historic Property: | N | Remodel Property: | N |
| Multi-Family Redevelopment: | N | | |
| Township: | 32 | Section: | 21 |
| Range: | R1 |
Location |
| Address: | 1195 CUSTER ST OAK HARBOR, WA 98277 | Mapsco: | |
| Neighborhood: | Cycle 2 | Map ID: | 151 |
| Neighborhood CD: | 2 |
Owner |
| Name: | MCNAMARA, COLLIN MATTHEW | Owner ID: | 293768 |
| Mailing Address: | HANNAH LOUISE JOYCE ELLIOTT 1195 CUSTER ST OAK HARBOR, WA 98277 | % Ownership: | 100.0000000000% |
| | | Exemptions: | |
Taxes and Assessment Details
Values
| (+) Improvement Homesite Value: | + | $0 | |
| (+) Improvement Non-Homesite Value: | + | $349,120 | |
| (+) Land Homesite Value: | + | $0 | |
| (+) Land Non-Homesite Value: | + | $313,361 | |
| (+) Curr Use (HS): | + | $0 | $0 |
| (+) Curr Use (NHS): | + | $0 | $0 |
| | | -------------------------- | |
| (=) Market Value: | = | $662,481 | |
| (–) Productivity Loss: | – | $0 | |
| | | -------------------------- | |
| (=) Subtotal: | = | $662,481 | |
| (+) Senior Appraised Value: | + | $0 | |
| (+) Non-Senior Appraised Value: | + | $662,481 | |
| | | -------------------------- | |
| (=) Total Appraised Value: | = | $662,481 | |
| (–) Senior Exemption Loss: | – | $0 | |
| (–) Exemption Loss: | – | $0 | |
| | | -------------------------- | |
| (=) Taxable Value: | = | $662,481 | |
Taxing Jurisdiction
| Owner: | MCNAMARA, COLLIN MATTHEW | | |
| % Ownership: | 100.0000000000% | | |
| Total Value: | $662,481 | | |
| Tax Area: | 112 - APPRAISER-OH Schl Dist, outside OH, improved, greater than 1 acre |
| CF | Conservation Futures | 0.0316035091 | $662,481 | $662,481 | $20.94 | | |
| CEM1 | Cemetery #1 | 0.0040320932 | $662,481 | $662,481 | $2.67 | | |
| FIRE2 | Fire & Rescue Dist #2 N Whidbey GEN | 0.5475949600 | $662,481 | $662,481 | $362.77 | | |
| HOBOND | Hospital BOND | 0.1910887512 | $662,481 | $662,481 | $126.59 | | |
| HOGEN | Hospital GEN | 0.3902502903 | $662,481 | $662,481 | $258.53 | | |
| CE | County Current Expense | 0.3708482477 | $662,481 | $662,481 | $245.68 | | |
| CR | County Roads | 0.4584763726 | $662,481 | $662,481 | $303.73 | | |
| ISLANDEMS | Hospital GEN (EMS) | 0.5000000000 | $662,481 | $662,481 | $331.24 | | |
| LIB | Library Sno-Isle GEN | 0.3153421757 | $662,481 | $662,481 | $208.91 | | |
| NWHIDPRMT | P & R N Whidbey GEN | 0.2004466701 | $662,481 | $662,481 | $132.79 | | |
| SCH201MO | School 201 Enrichment | 1.8559231640 | $662,481 | $662,481 | $1,229.51 | | |
| ST | State School | 1.3035497053 | $662,481 | $662,481 | $863.58 | | |
| ST2 | State School Part 2 | 0.8169543533 | $662,481 | $662,481 | $541.22 | | |
| | Total Tax Rate: | 6.9861102925 | | | | | |
| | | | | Taxes w/Current Exemptions: | $4,628.16 | | |
| | | | | Taxes w/o Exemptions: | $4,628.16 | | |
Improvement / Building
| Improvement #1: | RESIDENTIAL | State Code: | Y | 1764.0 sqft | Value: | $349,120 |
| Bathrooms: | 2 | Bedrooms: | 3 | | Ceiling: | DRYWALL PAINTED | Cooling: | HEAT PUMP/CONV/V | | Exterior Wall/Cover: | CEMENT FIBER | Floor Covering: | CARPET/VINYL 80-20 | | Floor Structure: | WOOD W/SUBFLOOR | Foundation: | CONCRETE | | Interior Finish: | DRYWALL PAINT | Plumbing Fixture Cnt: | 10 | | Roof Slope: | 6" IN 12" | Roof Structure/Cover: | CJ ASPHALT |
|
| | Type | Description | Class CD | Sub Class CD | Year Built | Area |
| | BAS | BASE/MAIN FLOOR | 3 | 0 | 2019 | 1764.0 |
| | AGR | ATTACHED GARAGE | 3 | 0 | 2019 | 816.0 |
| | OWP | OPEN WOOD PORCH W/STEPS | 3 | 0 | 2019 | 120.0 |
| | OWP | OPEN WOOD PORCH W/STEPS | 3 | 0 | 2019 | 64.0 |
Sketch
Property Image
Land
| 1 | HS | HOMESITE | 1.0000 | 43560.00 | 0.00 | 0.00 | 1.00 | $220,000 | $0 |
| 2 | 91 | UNDEVELOPED LAND-METES AND BOUNDS | 1.7800 | 77536.80 | 0.00 | 0.00 | 1.00 | $93,361 | $0 |
Roll Value History
| 2026 | N/A | N/A | N/A | N/A | N/A |
| 2025 | $349,120 | $313,361 | $0 | $662,481 | $662,481 |
| 2024 | $351,937 | $300,000 | $0 | $651,937 | $651,937 |
| 2023 | $354,753 | $270,000 | $0 | $624,753 | $624,753 |
| 2022 | $323,775 | $250,000 | $0 | $573,775 | $573,775 |
| 2021 | $284,502 | $170,000 | $0 | $454,502 | $454,502 |
| 2020 | $279,013 | $150,000 | $0 | $429,013 | $429,013 |
| 2019 | $0 | $110,000 | $0 | $110,000 | $110,000 |
| 2018 | $0 | $120,000 | $0 | $120,000 | $120,000 |
| 2017 | $0 | $75,000 | $0 | $75,000 | $75,000 |
| 2016 | $0 | $75,000 | $0 | $75,000 | $75,000 |
| 2015 | $0 | $60,000 | $0 | $60,000 | $60,000 |
| 2014 | $0 | $60,000 | $0 | $60,000 | $60,000 |
| 2013 | $0 | $52,500 | $0 | $52,500 | $52,500 |
| 2012 | $0 | $52,500 | $0 | $52,500 | $52,500 |
| 2011 | $0 | $52,500 | $0 | $52,500 | $52,500 |
| 2010 | $0 | $52,500 | $0 | $52,500 | $52,500 |
| 2009 | $0 | $75,600 | $0 | $75,600 | $75,600 |
| 2008 | $0 | $80,640 | $0 | $80,640 | $80,640 |
| 2007 | $0 | $80,640 | $0 | $80,640 | $80,640 |
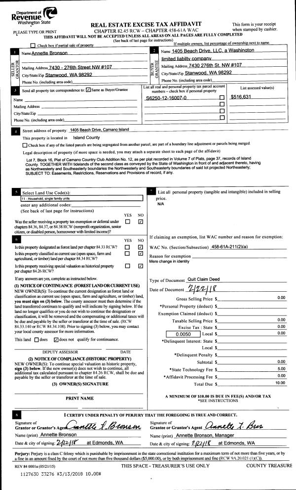
Deed and Sales History
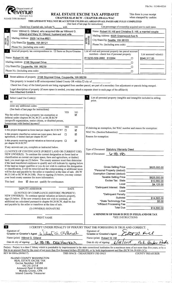
| 1 | 03/10/2020 | WD | Warranty Deed | VANDERSTOEP, SHERRI L | MCNAMARA, COLLIN MATTHEW | | | $459,000.00 | 42367 | 4482941 |
| 2 | 06/21/2018 | WD | Warranty Deed | TERPENING, TODD E | VANDERSTOEP, SHERRI L | | | $70,000.00 | 34628 | 4446630 |
| 3 | 03/05/2018 | QCD | Quit Claim Deed | TERPENING, TODD E | TERPENING, TODD E | | | $0.00 | 34132 | 4444561 |
| 4 | 08/31/2016 | WD | Warranty Deed | SMITH, KONNI R | TERPENING, TODD E | | | $55,000.00 | 26044 | 4406854 |
| 5 | 11/13/2013 | ESTSEPPROP | Establish Separate Property | SMITH, KONNI R | SMITH, KONNI R | | | | 13361 | 4350964 |
| 6 | 11/08/2013 | WD | Warranty Deed | HOSKINS, STEPHEN D | SMITH, KONNI R | | | $235,000.00 | 13360 | 4350963 |
|   | |
| 7 | 07/13/2009 | WD | Warranty Deed | WALDEN, STEPHEN M | HOSKINS, STEPHEN D | | | $44,250.00 | 91565 | 4256034 |
Payout Agreement
| No payout information available.. |