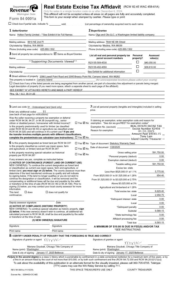
Property
Account |
| Property ID: | 241875 | Abbreviated Legal Description: | DEC PK VU 1 LOT 69 |
| Geographic ID: | S6455-00-00069-0 | Agent Code: | |
| Type: | Real | | |
| Tax Area: | 110 - APPRAISER-OH Schl Dist, outside OH, improved & 1 acre or less | Land Use Code | 11 |
| Open Space: | N | DFL | N |
| Historic Property: | N | Remodel Property: | N |
| Multi-Family Redevelopment: | N | | |
| Township: | | Section: | |
| Range: | |
Location |
| Address: | 4916 DECEPTION CIR OAK HARBOR, WA 98277 | Mapsco: | |
| Neighborhood: | Cycle 6 | Map ID: | 273 |
| Neighborhood CD: | 6 |
Owner |
| Name: | TUNO, REBEKAH LYNN | Owner ID: | 313582 |
| Mailing Address: | 4916 DECEPTION CIR OAK HARBOR, WA 98277 | % Ownership: | 100.0000000000% |
| | | Exemptions: | |
Taxes and Assessment Details
Values
| (+) Improvement Homesite Value: | + | $0 | |
| (+) Improvement Non-Homesite Value: | + | $253,879 | |
| (+) Land Homesite Value: | + | $0 | |
| (+) Land Non-Homesite Value: | + | $200,000 | |
| (+) Curr Use (HS): | + | $0 | $0 |
| (+) Curr Use (NHS): | + | $0 | $0 |
| | | -------------------------- | |
| (=) Market Value: | = | $453,879 | |
| (–) Productivity Loss: | – | $0 | |
| | | -------------------------- | |
| (=) Subtotal: | = | $453,879 | |
| (+) Senior Appraised Value: | + | $0 | |
| (+) Non-Senior Appraised Value: | + | $453,879 | |
| | | -------------------------- | |
| (=) Total Appraised Value: | = | $453,879 | |
| (–) Senior Exemption Loss: | – | $0 | |
| (–) Exemption Loss: | – | $0 | |
| | | -------------------------- | |
| (=) Taxable Value: | = | $453,879 | |
Taxing Jurisdiction
| Owner: | TUNO, REBEKAH LYNN | | |
| % Ownership: | 100.0000000000% | | |
| Total Value: | $453,879 | | |
| Tax Area: | 110 - APPRAISER-OH Schl Dist, outside OH, improved & 1 acre or less |
| CF | Conservation Futures | 0.0316035091 | $453,879 | $453,879 | $14.34 | | |
| CEM1 | Cemetery #1 | 0.0040320932 | $453,879 | $453,879 | $1.83 | | |
| FIRE2 | Fire & Rescue Dist #2 N Whidbey GEN | 0.5475949600 | $453,879 | $453,879 | $248.54 | | |
| HOBOND | Hospital BOND | 0.1910887512 | $453,879 | $453,879 | $86.73 | | |
| HOGEN | Hospital GEN | 0.3902502903 | $453,879 | $453,879 | $177.13 | | |
| CE | County Current Expense | 0.3708482477 | $453,879 | $453,879 | $168.32 | | |
| CR | County Roads | 0.4584763726 | $453,879 | $453,879 | $208.09 | | |
| ISLANDEMS | Hospital GEN (EMS) | 0.5000000000 | $453,879 | $453,879 | $226.94 | | |
| LIB | Library Sno-Isle GEN | 0.3153421757 | $453,879 | $453,879 | $143.13 | | |
| NWHIDPRMT | P & R N Whidbey GEN | 0.2004466701 | $453,879 | $453,879 | $90.98 | | |
| SCH201MO | School 201 Enrichment | 1.8559231640 | $453,879 | $453,879 | $842.36 | | |
| ST | State School | 1.3035497053 | $453,879 | $453,879 | $591.65 | | |
| ST2 | State School Part 2 | 0.8169543533 | $453,879 | $453,879 | $370.80 | | |
| | Total Tax Rate: | 6.9861102925 | | | | | |
| | | | | Taxes w/Current Exemptions: | $3,170.84 | | |
| | | | | Taxes w/o Exemptions: | $3,170.84 | | |
Improvement / Building
| Improvement #1: | RESIDENTIAL | State Code: | Y | 1448.8 sqft | Value: | $253,879 |
| Bathrooms: | 2.5 | Bedrooms: | 3 | | Ceiling: | DRYWALL PAINTED | Exterior Wall/Cover: | PLY/HARDBOARD T-111 | | Floor Covering: | VINYL 100% | Floor Structure: | WOOD W/SUBFLOOR | | Foundation: | CONCRETE | Heating: | FHA GAS | | Interior Finish: | DRYWALL PAINT | Plumbing Fixture Cnt: | 12 | | Roof Slope: | 6" IN 12" | Roof Structure/Cover: | CJ ASPHALT |
|
| | Type | Description | Class CD | Sub Class CD | Year Built | Area |
| | BAS | BASE/MAIN FLOOR | 3 | 0 | 1995 | 815.9 |
| | BIG | BUILT IN GARAGE | 3 | 0 | 1995 | 444.0 |
| | UPS | UPPER STORY | 3 | 0 | 1995 | 632.9 |
| | OWC | OPEN WOOD PORCH W/STEPS/ROOF/C | 3 | 0 | 1995 | 92.8 |
Sketch
Property Image
Land
| 1 | 14 | SQ (08001-12000) | 0.0000 | 0.00 | 0.00 | 0.00 | 1.00 | $200,000 | $0 |
Roll Value History
| 2026 | N/A | N/A | N/A | N/A | N/A |
| 2025 | $253,879 | $200,000 | $0 | $453,879 | $453,879 |
| 2024 | $257,082 | $180,000 | $0 | $437,082 | $437,082 |
| 2023 | $260,286 | $180,000 | $0 | $440,286 | $440,286 |
| 2022 | $235,579 | $150,000 | $0 | $385,579 | $385,579 |
| 2021 | $194,195 | $100,000 | $0 | $294,195 | $294,195 |
| 2020 | $188,869 | $75,000 | $0 | $263,869 | $263,869 |
| 2019 | $134,784 | $140,000 | $0 | $274,784 | $274,784 |
| 2018 | $135,208 | $130,000 | $0 | $265,208 | $265,208 |
| 2017 | $136,059 | $110,000 | $0 | $246,059 | $246,059 |
| 2016 | $135,965 | $85,000 | $0 | $220,965 | $220,965 |
| 2015 | $137,687 | $50,000 | $0 | $187,687 | $187,687 |
| 2014 | $139,408 | $45,000 | $0 | $184,408 | $184,408 |
| 2013 | $141,128 | $45,000 | $0 | $186,128 | $186,128 |
| 2012 | $142,850 | $55,250 | $0 | $198,100 | $198,100 |
| 2011 | $144,572 | $65,000 | $0 | $209,572 | $209,572 |
| 2010 | $151,765 | $65,000 | $0 | $216,765 | $216,765 |
| 2009 | $158,440 | $80,000 | $0 | $238,440 | $238,440 |
| 2008 | $160,504 | $87,000 | $0 | $247,504 | $247,504 |
| 2007 | $144,749 | $104,819 | $0 | $249,568 | $249,568 |
Deed and Sales History
| 1 | 08/16/2024 | WD | Warranty Deed | MAJOVSKY, JURAJ | TUNO, REBEKAH LYNN | | | $499,500.00 | 61011 | 4576045 |
| 2 | 03/12/2024 | WD | Warranty Deed | POLITO, ERIK | MAJOVSKY, JURAJ | | | $282,037.00 | 59402 | 4570283 |
| 3 | 06/29/2021 | WD | Warranty Deed | EISLER, ARIANA | POLITO, ERIK | | | $389,000.00 | 49184 | 4524556 |
| 4 | 11/28/2017 | WD | Warranty Deed | WHITACRE, KIERSTEN | EISLER, ARIANA | | | $259,950.00 | 32080 | 4434900 |
| 5 | 10/11/2005 | WD | Warranty Deed | ASHTARI, KEVIN L | WHITACRE, KIERSTEN | | | $234,500.00 | 55364 | 4151844 |
| 6 | 08/23/2002 | WD | Warranty Deed | MANDELLA JR, LAURENCE M | ASHTARI, KEVIN L | | | $157,500.00 | 23453 | 4029875 |
| 7 | 07/16/1999 | WD | Warranty Deed | MORGAN, GUY A | MANDELLA JR, LAURENCE M | | | $133,370.00 | 93116 | 99018111 |
| 8 | 10/01/1994 | WD | Warranty Deed | KING'S, MEN C | MORGAN, GUY A | | | $137,900.00 | 44246 | 94021902 |
| 9 | 04/01/1994 | WD | Warranty Deed | FAKKEMA, ROBERT P | KING'S, MEN C | | | $15,000.00 | 41339 | 94008274 |
| 10 | 12/01/1982 | QCD | Quit Claim Deed | FAKKEMA, JOAN M | FAKKEMA, ROBERT P | | | $0.00 | 23099 | 404066 |
| 11 | 12/01/1982 | WD | Warranty Deed | FAKKEMA, R P | FAKKEMA, JOAN M | | | $0.00 | 30011 | 404373 |
| 12 | 01/01/1900 | OTHER | Other - Misc. Documents | Unknown | FAKKEMA, R P | | | $0.00 | 0 | 0 |
Payout Agreement
| No payout information available.. |