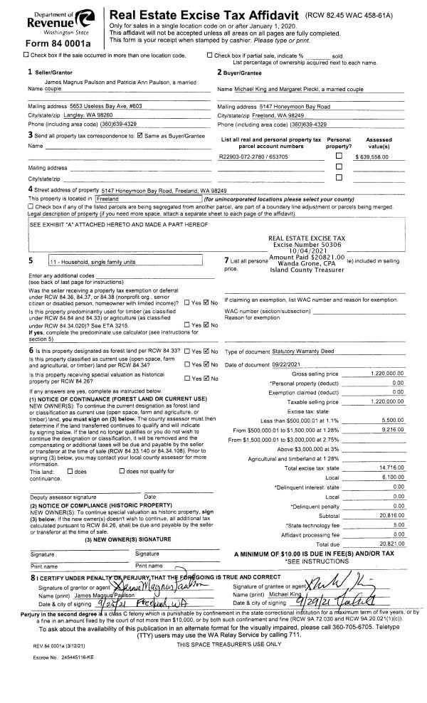
Property
Account |
| Property ID: | 242240 | Abbreviated Legal Description: | DEC PK VU 2 LOT 14 BLK 2 |
| Geographic ID: | S6455-02-02014-0 | Agent Code: | |
| Type: | Real | | |
| Tax Area: | 110 - APPRAISER-OH Schl Dist, outside OH, improved & 1 acre or less | Land Use Code | 11 |
| Open Space: | N | DFL | N |
| Historic Property: | N | Remodel Property: | N |
| Multi-Family Redevelopment: | N | | |
| Township: | | Section: | |
| Range: | |
Location |
| Address: | 661 CRANBERRY DR OAK HARBOR, WA 98277 | Mapsco: | |
| Neighborhood: | Cycle 6 | Map ID: | 273 |
| Neighborhood CD: | 6 |
Owner |
| Name: | WILKOWSKI, ZACHARY | Owner ID: | 298185 |
| Mailing Address: | REBECCA A WILKOWSKI 661 CRANBERRY DR OAK HARBOR, WA 98277 | % Ownership: | 100.0000000000% |
| | | Exemptions: | |
Taxes and Assessment Details
Values
| (+) Improvement Homesite Value: | + | $0 | |
| (+) Improvement Non-Homesite Value: | + | $241,837 | |
| (+) Land Homesite Value: | + | $0 | |
| (+) Land Non-Homesite Value: | + | $200,000 | |
| (+) Curr Use (HS): | + | $0 | $0 |
| (+) Curr Use (NHS): | + | $0 | $0 |
| | | -------------------------- | |
| (=) Market Value: | = | $441,837 | |
| (–) Productivity Loss: | – | $0 | |
| | | -------------------------- | |
| (=) Subtotal: | = | $441,837 | |
| (+) Senior Appraised Value: | + | $0 | |
| (+) Non-Senior Appraised Value: | + | $441,837 | |
| | | -------------------------- | |
| (=) Total Appraised Value: | = | $441,837 | |
| (–) Senior Exemption Loss: | – | $0 | |
| (–) Exemption Loss: | – | $0 | |
| | | -------------------------- | |
| (=) Taxable Value: | = | $441,837 | |
Taxing Jurisdiction
| Owner: | WILKOWSKI, ZACHARY | | |
| % Ownership: | 100.0000000000% | | |
| Total Value: | $441,837 | | |
| Tax Area: | 110 - APPRAISER-OH Schl Dist, outside OH, improved & 1 acre or less |
| CF | Conservation Futures | 0.0316035091 | $441,837 | $441,837 | $13.96 | | |
| CEM1 | Cemetery #1 | 0.0040320932 | $441,837 | $441,837 | $1.78 | | |
| FIRE2 | Fire & Rescue Dist #2 N Whidbey GEN | 0.5475949600 | $441,837 | $441,837 | $241.95 | | |
| HOBOND | Hospital BOND | 0.1910887512 | $441,837 | $441,837 | $84.43 | | |
| HOGEN | Hospital GEN | 0.3902502903 | $441,837 | $441,837 | $172.43 | | |
| CE | County Current Expense | 0.3708482477 | $441,837 | $441,837 | $163.85 | | |
| CR | County Roads | 0.4584763726 | $441,837 | $441,837 | $202.57 | | |
| ISLANDEMS | Hospital GEN (EMS) | 0.5000000000 | $441,837 | $441,837 | $220.92 | | |
| LIB | Library Sno-Isle GEN | 0.3153421757 | $441,837 | $441,837 | $139.33 | | |
| NWHIDPRMT | P & R N Whidbey GEN | 0.2004466701 | $441,837 | $441,837 | $88.56 | | |
| SCH201MO | School 201 Enrichment | 1.8559231640 | $441,837 | $441,837 | $820.02 | | |
| ST | State School | 1.3035497053 | $441,837 | $441,837 | $575.96 | | |
| ST2 | State School Part 2 | 0.8169543533 | $441,837 | $441,837 | $360.96 | | |
| | Total Tax Rate: | 6.9861102925 | | | | | |
| | | | | Taxes w/Current Exemptions: | $3,086.72 | | |
| | | | | Taxes w/o Exemptions: | $3,086.72 | | |
Improvement / Building
| Improvement #1: | RESIDENTIAL | State Code: | Y | 1580.0 sqft | Value: | $241,837 |
| Bathrooms: | 2 | Bedrooms: | 3 | | Ceiling: | DRYWALL PAINTED | Exterior Wall/Cover: | PLY/HARDBOARD T-111 | | Floor Covering: | VINYL TILE | Floor Structure: | WOOD W/SUBFLOOR | | Foundation: | CONCRETE | Heating: | BASEBOARD ELECTRIC | | Interior Finish: | DRYWALL PAINT | Plumbing Fixture Cnt: | 9 | | Roof Slope: | 4" IN 12" | Roof Structure/Cover: | CJ ASPHALT |
|
| | Type | Description | Class CD | Sub Class CD | Year Built | Area |
| | BAS | BASE/MAIN FLOOR | 3 | 0 | 1979 | 884.0 |
| | AGR | ATTACHED GARAGE | 3 | 0 | 1979 | 120.0 |
| | BIG | BUILT IN GARAGE | 3 | 0 | 1979 | 120.0 |
| | OWP | OPEN WOOD PORCH W/STEPS | 3 | 0 | 1979 | 24.0 |
| | OWP | OPEN WOOD PORCH W/STEPS | 3 | 0 | 1979 | 144.0 |
| | DWN | DOWNSTAIRS LIVING AREA | 3 | 0 | 1979 | 696.0 |
Sketch
Property Image
Land
| 1 | 14 | SQ (08001-12000) | 0.0000 | 0.00 | 0.00 | 0.00 | 1.00 | $200,000 | $0 |
Roll Value History
| 2026 | N/A | N/A | N/A | N/A | N/A |
| 2025 | $241,837 | $200,000 | $0 | $441,837 | $441,837 |
| 2024 | $249,879 | $180,000 | $0 | $429,879 | $429,879 |
| 2023 | $252,777 | $180,000 | $0 | $432,777 | $432,777 |
| 2022 | $231,527 | $150,000 | $0 | $381,527 | $381,527 |
| 2021 | $192,195 | $100,000 | $0 | $292,195 | $292,195 |
| 2020 | $187,291 | $75,000 | $0 | $262,291 | $262,291 |
| 2019 | $136,816 | $140,000 | $0 | $276,816 | $276,816 |
| 2018 | $137,214 | $130,000 | $0 | $267,214 | $267,214 |
| 2017 | $138,007 | $110,000 | $0 | $248,007 | $248,007 |
| 2016 | $119,417 | $85,000 | $0 | $204,417 | $204,417 |
| 2015 | $104,830 | $50,000 | $0 | $154,830 | $154,830 |
| 2014 | $106,419 | $45,000 | $0 | $151,419 | $151,419 |
| 2013 | $108,008 | $45,000 | $0 | $153,008 | $153,008 |
| 2012 | $109,596 | $55,250 | $0 | $164,846 | $164,846 |
| 2011 | $111,186 | $65,000 | $0 | $176,186 | $176,186 |
| 2010 | $120,262 | $65,000 | $0 | $185,262 | $185,262 |
| 2009 | $125,502 | $80,000 | $0 | $205,502 | $205,502 |
| 2008 | $127,128 | $87,000 | $0 | $214,128 | $214,128 |
| 2007 | $112,192 | $103,562 | $0 | $215,754 | $215,754 |
Deed and Sales History
| 1 | 02/12/2021 | QCD | Quit Claim Deed | WILKOWSKI, ZACHARY | WILKOWSKI, ZACHARY | | | $0.00 | 47009 | 4511398 |
| 2 | 02/23/2017 | WD | Warranty Deed | COFFIN, AMBERLY | WILKOWSKI, ZACHARY | | | $265,000.00 | 28279 | 4418123 |
| 3 | 08/19/2015 | WD | Warranty Deed | LANGERMAN, KYLE ROBERT | COFFIN, AMBERLY | | | $225,000.00 | 21034 | 4384585 |
| 4 | 09/20/2013 | SPWARDEED | Special Warranty Deed | SECRETARY OF VETERAN AFFAIRS | LANGERMAN, KYLE ROBERT | | | $129,300.00 | 12939 | 4348711 |
| 5 | 02/12/2013 | WD | Warranty Deed | ALASKA USA FEDERAL CREDIT UNION | SECRETARY OF VETERAN AFFAIRS | | | $118,976.00 | 10497 | 4334316 |
| 6 | 12/24/2012 | TRUSTEED | Trustee's Deed | MONSCHAU, MIKE A | ALASKA USA FEDERAL CREDIT UNION | | | $118,976.00 | 9948 | 4330231 |
| 7 | 10/28/2002 | ESTSEPPROP | Establish Separate Property | MONSCHAU, MIKE A | MONSCHAU, MIKE A | | | $0.00 | 24282 | 4035540 |
| 8 | 09/30/2002 | DECREE | Divorce Decree/Legal Separation | MONSCHAU, MIKE A | MONSCHAU, MIKE A | | | $0.00 | 24132 | 4034423 |
| 9 | 10/01/1997 | WD | Warranty Deed | THOMAS, HOWARD G | MONSCHAU, MIKE A | | | $131,000.00 | 73826 | 97018286 |
| 10 | 06/01/1992 | WD | Warranty Deed | MORAN, LARRY L | THOMAS, HOWARD G | | | $102,500.00 | 22470 | 92011950 |
| 11 | 10/01/1982 | WD | Warranty Deed | VANDENBERGH, P., B | MORAN, LARRY L | | | $73,500.00 | 22594 | 402184 |
| 12 | 05/01/1979 | WD | Warranty Deed | GARRON, DALE G | VANDENBERGH, P., B | | | $59,000.00 | 92667 | 353366 |
| 13 | 11/01/1978 | OTHER | Other - Misc. Documents | Unknown | GARRON, DALE G | | | $8,500.00 | 858380 | 3438500 |
Payout Agreement
| No payout information available.. |