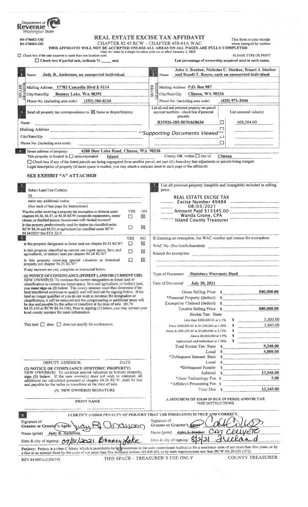
Property
Account |
| Property ID: | 242320 | Abbreviated Legal Description: | DEER LK EST 1 TRACT B TGW EZ AF#91010816-17 |
| Geographic ID: | S6460-00-0000B-0 | Agent Code: | |
| Type: | Real | | |
| Tax Area: | 710 - APPRAISER-S Whid Schl Dist, outside Langley, improved & 1 acre or less | Land Use Code | 11 |
| Open Space: | N | DFL | N |
| Historic Property: | N | Remodel Property: | N |
| Multi-Family Redevelopment: | N | | |
| Township: | | Section: | |
| Range: | |
Location |
| Address: | 6362 CEDAR COVE LN CLINTON, WA 98236 | Mapsco: | |
| Neighborhood: | Cycle 4 | Map ID: | 804 |
| Neighborhood CD: | 4 |
Owner |
| Name: | DEER LAKE ESTATES OWNERS | Owner ID: | 21182 |
| Mailing Address: | ASSOCIATION 6380 CEDAR COVE LN CLINTON, WA 98236-8407 | % Ownership: | 100.0000000000% |
| | | Exemptions: | |
Taxes and Assessment Details
Values
| (+) Improvement Homesite Value: | + | $0 | |
| (+) Improvement Non-Homesite Value: | + | $15,304 | |
| (+) Land Homesite Value: | + | $0 | |
| (+) Land Non-Homesite Value: | + | $80,000 | |
| (+) Curr Use (HS): | + | $0 | $0 |
| (+) Curr Use (NHS): | + | $0 | $0 |
| | | -------------------------- | |
| (=) Market Value: | = | $95,304 | |
| (–) Productivity Loss: | – | $0 | |
| | | -------------------------- | |
| (=) Subtotal: | = | $95,304 | |
| (+) Senior Appraised Value: | + | $0 | |
| (+) Non-Senior Appraised Value: | + | $95,304 | |
| | | -------------------------- | |
| (=) Total Appraised Value: | = | $95,304 | |
| (–) Senior Exemption Loss: | – | $0 | |
| (–) Exemption Loss: | – | $0 | |
| | | -------------------------- | |
| (=) Taxable Value: | = | $95,304 | |
Taxing Jurisdiction
| Owner: | DEER LAKE ESTATES OWNERS | | |
| % Ownership: | 100.0000000000% | | |
| Total Value: | $95,304 | | |
| Tax Area: | 710 - APPRAISER-S Whid Schl Dist, outside Langley, improved & 1 acre or less |
| CF | Conservation Futures | 0.0316035091 | $95,304 | $95,304 | $3.01 | | |
| FIRE3 | Fire & Rescue Dist #3 S Whidbey GEN | 1.2004855531 | $95,304 | $95,304 | $114.41 | | |
| HOBOND | Hospital BOND | 0.1910887512 | $95,304 | $95,304 | $18.21 | | |
| HOGEN | Hospital GEN | 0.3902502903 | $95,304 | $95,304 | $37.19 | | |
| CE | County Current Expense | 0.3708482477 | $95,304 | $95,304 | $35.34 | | |
| CR | County Roads | 0.4584763726 | $95,304 | $95,304 | $43.69 | | |
| ISLANDEMS | Hospital GEN (EMS) | 0.5000000000 | $95,304 | $95,304 | $47.65 | | |
| LIB | Library Sno-Isle GEN | 0.3153421757 | $95,304 | $95,304 | $30.05 | | |
| PORTWHID | Port of S Whidbey GEN | 0.1094540357 | $95,304 | $95,304 | $10.43 | | |
| SCH206BOND | School 206 BOND | 0.3161759235 | $95,304 | $95,304 | $30.13 | | |
| SCH206MO | School 206 Enrichment | 0.4547169547 | $95,304 | $95,304 | $43.34 | | |
| ST | State School | 1.3035497053 | $95,304 | $95,304 | $124.23 | | |
| ST2 | State School Part 2 | 0.8169543533 | $95,304 | $95,304 | $77.86 | | |
| SWHIDPRBD | P & R S Whidbey BOND | 0.0152817568 | $95,304 | $95,304 | $1.46 | | |
| SWHIDPRBD2 | P & R S Whidbey BOND2 | 0.0138911264 | $95,304 | $95,304 | $1.32 | | |
| SWHIDPRMT | P & R S Whidbey GEN | 0.2053334452 | $95,304 | $95,304 | $19.57 | | |
| | Total Tax Rate: | 6.6934522006 | | | | | |
| | | | | Taxes w/Current Exemptions: | $637.89 | | |
| | | | | Taxes w/o Exemptions: | $637.89 | | |
Improvement / Building
| Improvement #1: | RESIDENTIAL | State Code: | Y | 0.0 sqft | Value: | $15,304 |
| | Type | Description | Class CD | Sub Class CD | Year Built | Area |
| | oPUM | PUMP HOUSE | 1 | 0 | 1900 | 0.0 |
| | oWT2 | 20K GALLON TANK | 1 | 0 | 1900 | 0.0 |
Sketch
| No sketches available for this property. |
Property Image
Land
| 1 | 15 | SQ (12001-21780) | 0.0000 | 0.00 | 0.00 | 0.00 | 1.00 | $80,000 | $0 |
Roll Value History
| 2026 | N/A | N/A | N/A | N/A | N/A |
| 2025 | $15,304 | $80,000 | $0 | $95,304 | $95,304 |
| 2024 | $15,304 | $70,000 | $0 | $85,304 | $85,304 |
| 2023 | $15,304 | $70,000 | $0 | $85,304 | $85,304 |
| 2022 | $15,304 | $70,000 | $0 | $85,304 | $85,304 |
| 2021 | $15,304 | $30,000 | $0 | $45,304 | $45,304 |
| 2020 | $15,304 | $30,000 | $0 | $45,304 | $45,304 |
| 2019 | $15,304 | $30,000 | $0 | $45,304 | $45,304 |
| 2018 | $15,304 | $15,000 | $0 | $30,304 | $30,304 |
| 2017 | $15,304 | $15,000 | $0 | $30,304 | $30,304 |
| 2016 | $15,304 | $15,000 | $0 | $30,304 | $30,304 |
| 2015 | $15,304 | $15,000 | $0 | $30,304 | $30,304 |
| 2014 | $15,304 | $15,000 | $0 | $30,304 | $30,304 |
| 2013 | $15,304 | $16,200 | $0 | $31,504 | $31,504 |
| 2012 | $15,304 | $16,200 | $0 | $31,504 | $31,504 |
| 2011 | $15,304 | $18,000 | $0 | $33,304 | $33,304 |
| 2010 | $15,304 | $18,000 | $0 | $33,304 | $33,304 |
| 2009 | $15,304 | $16,000 | $0 | $31,304 | $31,304 |
| 2008 | $15,470 | $20,000 | $0 | $35,470 | $35,470 |
| 2007 | $15,470 | $20,000 | $0 | $35,470 | $35,470 |
Deed and Sales History
| 1 | 11/01/1991 | WD | Warranty Deed | LEHMAN, TERRY E | DEER, LAKE E | | | $20,220.00 | 14251 | 91018414 |
| 2 | 05/01/1990 | WD | Warranty Deed | FREDERICK, JOE R | LEHMAN, TERRY E | | | $20,000.00 | 3077 | 90010033 |
| 3 | 01/01/1900 | OTHER | Other - Misc. Documents | Unknown | FREDERICK, JOE R | | | $0.00 | 0 | 0 |
Payout Agreement
| No payout information available.. |