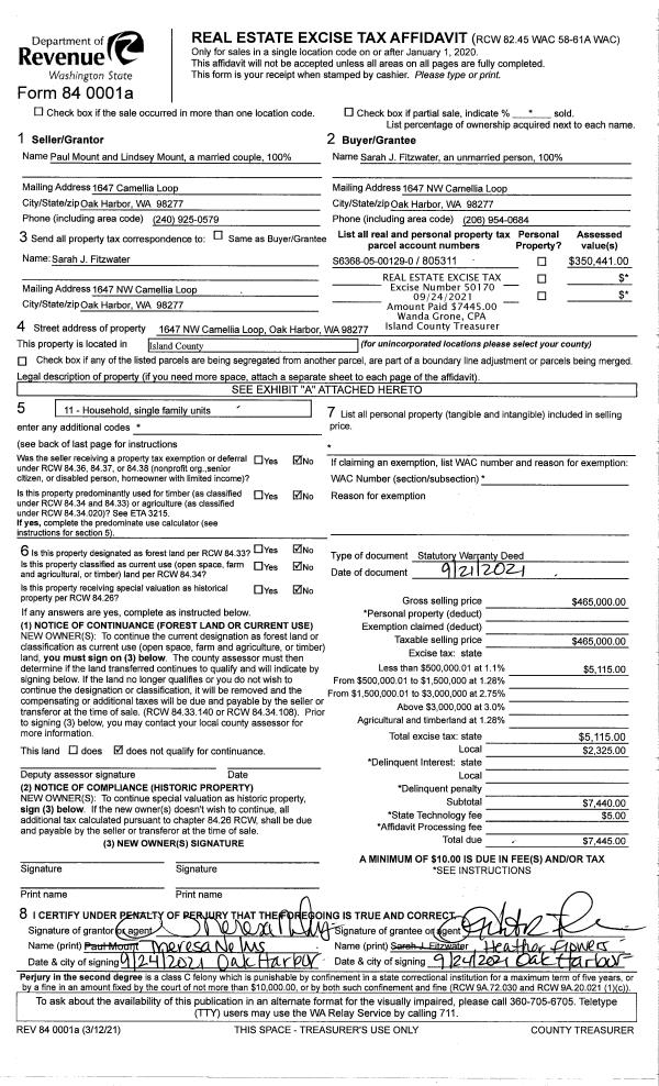
Property
Account |
| Property ID: | 242464 | Abbreviated Legal Description: | DEER LK EST 1 LOT 14 |
| Geographic ID: | S6460-00-00014-0 | Agent Code: | |
| Type: | Real | | |
| Tax Area: | 710 - APPRAISER-S Whid Schl Dist, outside Langley, improved & 1 acre or less | Land Use Code | 11 |
| Open Space: | N | DFL | N |
| Historic Property: | N | Remodel Property: | N |
| Multi-Family Redevelopment: | N | | |
| Township: | | Section: | |
| Range: | |
Location |
| Address: | 6383 CEDAR COVE LN CLINTON, WA 98236 | Mapsco: | |
| Neighborhood: | Cycle 4 | Map ID: | 804 |
| Neighborhood CD: | 4 |
Owner |
| Name: | HOUCK, KENNETH | Owner ID: | 275597 |
| Mailing Address: | DEANN L HOUCK 6383 CEDAR COVE LN CLINTON, WA 98236 | % Ownership: | 100.0000000000% |
| | | Exemptions: | |
Taxes and Assessment Details
Values
| (+) Improvement Homesite Value: | + | $0 | |
| (+) Improvement Non-Homesite Value: | + | $269,405 | |
| (+) Land Homesite Value: | + | $0 | |
| (+) Land Non-Homesite Value: | + | $250,000 | |
| (+) Curr Use (HS): | + | $0 | $0 |
| (+) Curr Use (NHS): | + | $0 | $0 |
| | | -------------------------- | |
| (=) Market Value: | = | $519,405 | |
| (–) Productivity Loss: | – | $0 | |
| | | -------------------------- | |
| (=) Subtotal: | = | $519,405 | |
| (+) Senior Appraised Value: | + | $0 | |
| (+) Non-Senior Appraised Value: | + | $519,405 | |
| | | -------------------------- | |
| (=) Total Appraised Value: | = | $519,405 | |
| (–) Senior Exemption Loss: | – | $0 | |
| (–) Exemption Loss: | – | $0 | |
| | | -------------------------- | |
| (=) Taxable Value: | = | $519,405 | |
Taxing Jurisdiction
| Owner: | HOUCK, KENNETH | | |
| % Ownership: | 100.0000000000% | | |
| Total Value: | $519,405 | | |
| Tax Area: | 710 - APPRAISER-S Whid Schl Dist, outside Langley, improved & 1 acre or less |
| CF | Conservation Futures | 0.0316035091 | $519,405 | $519,405 | $16.42 | | |
| FIRE3 | Fire & Rescue Dist #3 S Whidbey GEN | 1.2004855531 | $519,405 | $519,405 | $623.54 | | |
| HOBOND | Hospital BOND | 0.1910887512 | $519,405 | $519,405 | $99.25 | | |
| HOGEN | Hospital GEN | 0.3902502903 | $519,405 | $519,405 | $202.70 | | |
| CE | County Current Expense | 0.3708482477 | $519,405 | $519,405 | $192.62 | | |
| CR | County Roads | 0.4584763726 | $519,405 | $519,405 | $238.13 | | |
| ISLANDEMS | Hospital GEN (EMS) | 0.5000000000 | $519,405 | $519,405 | $259.70 | | |
| LIB | Library Sno-Isle GEN | 0.3153421757 | $519,405 | $519,405 | $163.79 | | |
| PORTWHID | Port of S Whidbey GEN | 0.1094540357 | $519,405 | $519,405 | $56.85 | | |
| SCH206BOND | School 206 BOND | 0.3161759235 | $519,405 | $519,405 | $164.22 | | |
| SCH206MO | School 206 Enrichment | 0.4547169547 | $519,405 | $519,405 | $236.18 | | |
| ST | State School | 1.3035497053 | $519,405 | $519,405 | $677.07 | | |
| ST2 | State School Part 2 | 0.8169543533 | $519,405 | $519,405 | $424.33 | | |
| SWHIDPRBD | P & R S Whidbey BOND | 0.0152817568 | $519,405 | $519,405 | $7.94 | | |
| SWHIDPRBD2 | P & R S Whidbey BOND2 | 0.0138911264 | $519,405 | $519,405 | $7.22 | | |
| SWHIDPRMT | P & R S Whidbey GEN | 0.2053334452 | $519,405 | $519,405 | $106.65 | | |
| | Total Tax Rate: | 6.6934522006 | | | | | |
| | | | | Taxes w/Current Exemptions: | $3,476.61 | | |
| | | | | Taxes w/o Exemptions: | $3,476.61 | | |
Improvement / Building
| Improvement #1: | RESIDENTIAL | State Code: | Y | 1958.0 sqft | Value: | $269,405 |
| Bathrooms: | 2.5 | Bedrooms: | 3 | | Ceiling: | DRY WALL SPRAYED | Exterior Wall/Cover: | PLY/HARDBOARD T-111 | | Floor Covering: | CARPET/VINYL 60-40 | Floor Structure: | WOOD W/SUBFLOOR | | Foundation: | CONCRETE | Heating: | FHA ELECTRIC | | Interior Finish: | DRYWALL PAINT | Plumbing Fixture Cnt: | 11 | | Roof Slope: | 4" IN 12" | Roof Structure/Cover: | CJ ASPHALT |
|
| | Type | Description | Class CD | Sub Class CD | Year Built | Area |
| | BAS | BASE/MAIN FLOOR | 3 | 0 | 1978 | 1121.0 |
| | OP1 | OPEN PORCH SLAB | 3 | 0 | 1978 | 400.0 |
| | OP4 | OPEN PORCH W/CEILING-ROOF | 3 | 0 | 1978 | 28.0 |
| | AGR | ATTACHED GARAGE | 3 | 0 | 1978 | 147.0 |
| | BIG | BUILT IN GARAGE | 3 | 0 | 1978 | 378.0 |
| | UPS | UPPER STORY | 3 | 0 | 1978 | 837.0 |
Sketch
Property Image
Land
| 1 | 13 | SQ (06001-08000) | 0.0000 | 0.00 | 0.00 | 0.00 | 1.00 | $250,000 | $0 |
Roll Value History
| 2026 | N/A | N/A | N/A | N/A | N/A |
| 2025 | $269,405 | $250,000 | $0 | $519,405 | $519,405 |
| 2024 | $272,986 | $230,000 | $0 | $502,986 | $502,986 |
| 2023 | $276,565 | $230,000 | $0 | $506,565 | $506,565 |
| 2022 | $253,677 | $210,000 | $0 | $463,677 | $463,677 |
| 2021 | $223,402 | $150,000 | $0 | $373,402 | $373,402 |
| 2020 | $211,080 | $130,000 | $0 | $341,080 | $341,080 |
| 2019 | $159,626 | $200,000 | $0 | $359,626 | $359,626 |
| 2018 | $160,131 | $130,000 | $0 | $290,131 | $290,131 |
| 2017 | $161,137 | $110,000 | $0 | $271,137 | $271,137 |
| 2016 | $147,036 | $65,000 | $0 | $212,036 | $212,036 |
| 2015 | $149,051 | $55,000 | $0 | $204,051 | $204,051 |
| 2014 | $147,134 | $65,000 | $0 | $212,134 | $212,134 |
| 2013 | $149,095 | $65,000 | $0 | $214,095 | $214,095 |
| 2012 | $152,871 | $81,000 | $0 | $233,871 | $233,871 |
| 2011 | $154,966 | $90,000 | $0 | $244,966 | $244,966 |
| 2010 | $168,021 | $90,000 | $0 | $258,021 | $258,021 |
| 2009 | $173,105 | $100,000 | $0 | $273,105 | $273,105 |
| 2008 | $172,778 | $120,000 | $0 | $292,778 | $292,778 |
| 2007 | $174,891 | $120,000 | $0 | $294,891 | $294,891 |
Deed and Sales History
| 1 | 06/03/2016 | WD | Warranty Deed | BARDSLEY, LEON J | HOUCK, KENNETH | | | $270,000.00 | 24745 | 4401121 |
| 2 | 11/30/2011 | WD | Warranty Deed | VEATCH, ERNEST W | BARDSLEY, LEON J | | | $215,000.00 | 6425 | 4306478 |
| 3 | 09/22/1998 | WD | Warranty Deed | JETT, THOMAS A | VEATCH, ERNEST W | | | $165,000.00 | 84053 | 98021785 |
| 4 | 11/01/1989 | WD | Warranty Deed | JETT, THOMAS A | EATON, KENNETH R | | | $82,500.00 | 95689 | 89018272 |
| 5 | 11/01/1989 | QCD | Quit Claim Deed | EATON, KENNETH R | JETT, THOMAS A | | | $0.00 | 95688 | 89018271 |
| 6 | 10/01/1989 | QCD | Quit Claim Deed | JETT, THOMAS A | JETT, THOMAS A | | | $0.00 | 95687 | 89018270 |
| 7 | 10/01/1989 | QCD | Quit Claim Deed | JETT, THOMAS A | JETT, THOMAS A | | | $0.00 | 95686 | 89018269 |
| 8 | 10/01/1989 | QCD | Quit Claim Deed | JETT, THOMAS A | JETT, THOMAS A | | | $0.00 | 95685 | 89018268 |
| 9 | 10/01/1989 | QCD | Quit Claim Deed | JETT, THOMAS A | JETT, THOMAS A | | | $0.00 | 95684 | 89018267 |
| 10 | 11/01/1989 | QCD | Quit Claim Deed | JETT, THOMAS A | JETT, THOMAS A | | | $0.00 | 95683 | 89018266 |
| 11 | 03/01/1980 | EXECUTORD | Executor Deed | SIMMONS, M T | JETT, THOMAS A | | | $75,000.00 | 985 | 366691 |
| 12 | 01/01/1900 | OTHER | Other - Misc. Documents | Unknown | SIMMONS, M T | | | $0.00 | 0 | 0 |
Payout Agreement
| No payout information available.. |