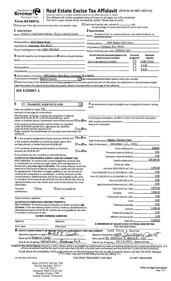
Property
Account |
| Property ID: | 242632 | Abbreviated Legal Description: | DEER LK EST 2 LOT 30 TGW: BG SECR LOT 30 S88*E100' N1*E100.17' N88*W 100' S1*W100.19' TPB |
| Geographic ID: | S6460-02-00030-0 | Agent Code: | |
| Type: | Real | | |
| Tax Area: | 710 - APPRAISER-S Whid Schl Dist, outside Langley, improved & 1 acre or less | Land Use Code | 11 |
| Open Space: | N | DFL | N |
| Historic Property: | N | Remodel Property: | N |
| Multi-Family Redevelopment: | N | | |
| Township: | | Section: | |
| Range: | |
Location |
| Address: | 6428 CEDAR COVE LN CLINTON, WA 98236 | Mapsco: | |
| Neighborhood: | Cycle 4 | Map ID: | 819 |
| Neighborhood CD: | 4 |
Owner |
| Name: | ROSTOV, HERSCHEL | Owner ID: | 279541 |
| Mailing Address: | 222 NW 14TH ST PENDLETON, OR 97801 | % Ownership: | 100.0000000000% |
| | | Exemptions: | |
Taxes and Assessment Details
Values
| (+) Improvement Homesite Value: | + | $0 | |
| (+) Improvement Non-Homesite Value: | + | $245,743 | |
| (+) Land Homesite Value: | + | $0 | |
| (+) Land Non-Homesite Value: | + | $250,000 | |
| (+) Curr Use (HS): | + | $0 | $0 |
| (+) Curr Use (NHS): | + | $0 | $0 |
| | | -------------------------- | |
| (=) Market Value: | = | $495,743 | |
| (–) Productivity Loss: | – | $0 | |
| | | -------------------------- | |
| (=) Subtotal: | = | $495,743 | |
| (+) Senior Appraised Value: | + | $0 | |
| (+) Non-Senior Appraised Value: | + | $495,743 | |
| | | -------------------------- | |
| (=) Total Appraised Value: | = | $495,743 | |
| (–) Senior Exemption Loss: | – | $0 | |
| (–) Exemption Loss: | – | $0 | |
| | | -------------------------- | |
| (=) Taxable Value: | = | $495,743 | |
Taxing Jurisdiction
| Owner: | ROSTOV, HERSCHEL | | |
| % Ownership: | 100.0000000000% | | |
| Total Value: | $495,743 | | |
| Tax Area: | 710 - APPRAISER-S Whid Schl Dist, outside Langley, improved & 1 acre or less |
| CF | Conservation Futures | 0.0316035091 | $495,743 | $495,743 | $15.67 | | |
| FIRE3 | Fire & Rescue Dist #3 S Whidbey GEN | 1.2004855531 | $495,743 | $495,743 | $595.13 | | |
| HOBOND | Hospital BOND | 0.1910887512 | $495,743 | $495,743 | $94.73 | | |
| HOGEN | Hospital GEN | 0.3902502903 | $495,743 | $495,743 | $193.46 | | |
| CE | County Current Expense | 0.3708482477 | $495,743 | $495,743 | $183.85 | | |
| CR | County Roads | 0.4584763726 | $495,743 | $495,743 | $227.29 | | |
| ISLANDEMS | Hospital GEN (EMS) | 0.5000000000 | $495,743 | $495,743 | $247.87 | | |
| LIB | Library Sno-Isle GEN | 0.3153421757 | $495,743 | $495,743 | $156.33 | | |
| PORTWHID | Port of S Whidbey GEN | 0.1094540357 | $495,743 | $495,743 | $54.26 | | |
| SCH206BOND | School 206 BOND | 0.3161759235 | $495,743 | $495,743 | $156.74 | | |
| SCH206MO | School 206 Enrichment | 0.4547169547 | $495,743 | $495,743 | $225.42 | | |
| ST | State School | 1.3035497053 | $495,743 | $495,743 | $646.23 | | |
| ST2 | State School Part 2 | 0.8169543533 | $495,743 | $495,743 | $405.00 | | |
| SWHIDPRBD | P & R S Whidbey BOND | 0.0152817568 | $495,743 | $495,743 | $7.58 | | |
| SWHIDPRBD2 | P & R S Whidbey BOND2 | 0.0138911264 | $495,743 | $495,743 | $6.89 | | |
| SWHIDPRMT | P & R S Whidbey GEN | 0.2053334452 | $495,743 | $495,743 | $101.79 | | |
| | Total Tax Rate: | 6.6934522006 | | | | | |
| | | | | Taxes w/Current Exemptions: | $3,318.24 | | |
| | | | | Taxes w/o Exemptions: | $3,318.24 | | |
Improvement / Building
| Improvement #1: | RESIDENTIAL | State Code: | Y | 1740.2 sqft | Value: | $245,743 |
| Bathrooms: | 2 | Bedrooms: | 2 | | Ceiling: | DRYWALL PAINTED | Exterior Wall/Cover: | WOOD SIDING | | Floor Covering: | SOFTWOOD 100% | Floor Structure: | WOOD W/SUBFLOOR | | Foundation: | CONCRETE | Heating: | FHA ELECTRIC | | Interior Finish: | DRYWALL PAINT | Plumbing Fixture Cnt: | 9 | | Roof Slope: | 4" IN 12" | Roof Structure/Cover: | CJ ASPHALT |
|
| | Type | Description | Class CD | Sub Class CD | Year Built | Area |
| | BAS | BASE/MAIN FLOOR | 3 | 0 | 1990 | 1236.2 |
| | BGR | BASEMENT GARAGE | 3 | 0 | 1990 | 504.0 |
| | UPS | UPPER STORY | 3 | 0 | 1990 | 504.0 |
| | OWP | OPEN WOOD PORCH W/STEPS | 3 | 0 | 1990 | 109.2 |
| | OWP | OPEN WOOD PORCH W/STEPS | 3 | 0 | 1990 | 128.0 |
| | OWC | OPEN WOOD PORCH W/STEPS/ROOF/C | 3 | 0 | 1990 | 180.0 |
Sketch
Property Image
Land
| 1 | 15 | SQ (12001-21780) | 0.0000 | 0.00 | 0.00 | 0.00 | 1.00 | $250,000 | $0 |
Roll Value History
| 2026 | N/A | N/A | N/A | N/A | N/A |
| 2025 | $245,743 | $250,000 | $0 | $495,743 | $495,743 |
| 2024 | $249,343 | $230,000 | $0 | $479,343 | $479,343 |
| 2023 | $252,945 | $230,000 | $0 | $482,945 | $482,945 |
| 2022 | $232,301 | $210,000 | $0 | $442,301 | $442,301 |
| 2021 | $204,831 | $150,000 | $0 | $354,831 | $354,831 |
| 2020 | $190,744 | $130,000 | $0 | $320,744 | $320,744 |
| 2019 | $141,456 | $200,000 | $0 | $341,456 | $341,456 |
| 2018 | $141,939 | $130,000 | $0 | $271,939 | $271,939 |
| 2017 | $142,888 | $110,000 | $0 | $252,888 | $252,888 |
| 2016 | $144,819 | $65,000 | $0 | $209,819 | $209,819 |
| 2015 | $146,749 | $55,000 | $0 | $201,749 | $201,749 |
| 2014 | $148,177 | $65,000 | $0 | $213,177 | $213,177 |
| 2013 | $150,148 | $65,000 | $0 | $215,148 | $215,148 |
| 2012 | $147,891 | $81,000 | $0 | $228,891 | $228,891 |
| 2011 | $149,809 | $90,000 | $0 | $239,809 | $239,809 |
| 2010 | $157,819 | $90,000 | $0 | $247,819 | $247,819 |
| 2009 | $164,569 | $100,000 | $0 | $264,569 | $264,569 |
| 2008 | $166,179 | $80,000 | $0 | $246,179 | $246,179 |
| 2007 | $168,156 | $80,000 | $0 | $248,156 | $248,156 |
Deed and Sales History
| 1 | 03/13/2017 | QCD | Quit Claim Deed | ROSTOV, HERSCHEL P | ROSTOV, HERSCHEL | | | $0.00 | 28687 | 4421089 |
| 2 | 08/05/2003 | WD | Warranty Deed | SIMMONS, MELVIN T | ROSTOV, HERSCHEL P | | | $163,000.00 | 33461 | 4070152 |
| 3 | 03/01/1990 | OTHER | Other - Misc. Documents | ROSTOV, AVIVA | SIMMONS, MELVIN T | | | $0.00 | 63560 | 90003739 |
| 4 | 02/01/1990 | WD | Warranty Deed | SIMMONS, MELVIN T | ROSTOV, AVIVA | | | $26,950.00 | 1471 | 90004763 |
| 5 | 07/01/1985 | WD | Warranty Deed | FREDERICK, JOE R | SIMMONS, MELVIN T | | | $15,950.00 | 52075 | 85008169 |
| 6 | 01/01/1900 | OTHER | Other - Misc. Documents | Unknown | FREDERICK, JOE R | | | $0.00 | 0 | 0 |
Payout Agreement
| No payout information available.. |