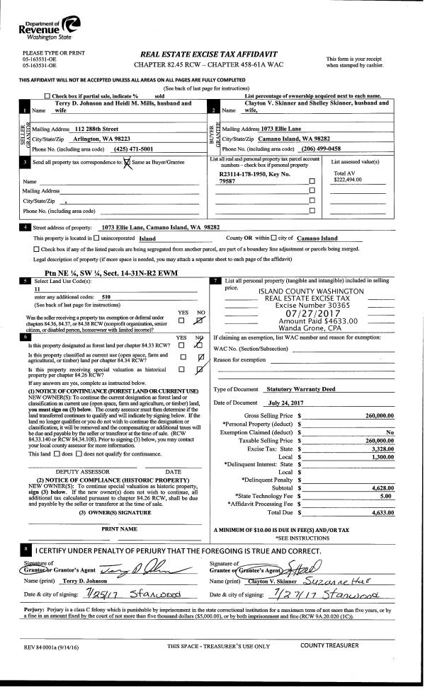
Property
Account |
| Property ID: | 242650 | Abbreviated Legal Description: | DEER LK EST 2 LOT 32 |
| Geographic ID: | S6460-02-00032-0 | Agent Code: | |
| Type: | Real | | |
| Tax Area: | 710 - APPRAISER-S Whid Schl Dist, outside Langley, improved & 1 acre or less | Land Use Code | 11 |
| Open Space: | N | DFL | N |
| Historic Property: | N | Remodel Property: | N |
| Multi-Family Redevelopment: | N | | |
| Township: | | Section: | |
| Range: | |
Location |
| Address: | 6417 CEDAR COVE RD CLINTON, WA 98236 | Mapsco: | |
| Neighborhood: | Cycle 4 | Map ID: | 819 |
| Neighborhood CD: | 4 |
Owner |
| Name: | GRANT, THOMAS R | Owner ID: | 307897 |
| Mailing Address: | ROHINI R GRANT 6417 CEDAR COVE RD CLINTON, WA 98236 | % Ownership: | 100.0000000000% |
| | | Exemptions: | |
Taxes and Assessment Details
Values
| (+) Improvement Homesite Value: | + | $0 | |
| (+) Improvement Non-Homesite Value: | + | $340,988 | |
| (+) Land Homesite Value: | + | $0 | |
| (+) Land Non-Homesite Value: | + | $250,000 | |
| (+) Curr Use (HS): | + | $0 | $0 |
| (+) Curr Use (NHS): | + | $0 | $0 |
| | | -------------------------- | |
| (=) Market Value: | = | $590,988 | |
| (–) Productivity Loss: | – | $0 | |
| | | -------------------------- | |
| (=) Subtotal: | = | $590,988 | |
| (+) Senior Appraised Value: | + | $0 | |
| (+) Non-Senior Appraised Value: | + | $590,988 | |
| | | -------------------------- | |
| (=) Total Appraised Value: | = | $590,988 | |
| (–) Senior Exemption Loss: | – | $0 | |
| (–) Exemption Loss: | – | $0 | |
| | | -------------------------- | |
| (=) Taxable Value: | = | $590,988 | |
Taxing Jurisdiction
| Owner: | GRANT, THOMAS R | | |
| % Ownership: | 100.0000000000% | | |
| Total Value: | $590,988 | | |
| Tax Area: | 710 - APPRAISER-S Whid Schl Dist, outside Langley, improved & 1 acre or less |
| CF | Conservation Futures | 0.0316035091 | $590,988 | $590,988 | $18.68 | | |
| FIRE3 | Fire & Rescue Dist #3 S Whidbey GEN | 1.2004855531 | $590,988 | $590,988 | $709.47 | | |
| HOBOND | Hospital BOND | 0.1910887512 | $590,988 | $590,988 | $112.93 | | |
| HOGEN | Hospital GEN | 0.3902502903 | $590,988 | $590,988 | $230.63 | | |
| CE | County Current Expense | 0.3708482477 | $590,988 | $590,988 | $219.17 | | |
| CR | County Roads | 0.4584763726 | $590,988 | $590,988 | $270.95 | | |
| ISLANDEMS | Hospital GEN (EMS) | 0.5000000000 | $590,988 | $590,988 | $295.49 | | |
| LIB | Library Sno-Isle GEN | 0.3153421757 | $590,988 | $590,988 | $186.36 | | |
| PORTWHID | Port of S Whidbey GEN | 0.1094540357 | $590,988 | $590,988 | $64.69 | | |
| SCH206BOND | School 206 BOND | 0.3161759235 | $590,988 | $590,988 | $186.86 | | |
| SCH206MO | School 206 Enrichment | 0.4547169547 | $590,988 | $590,988 | $268.73 | | |
| ST | State School | 1.3035497053 | $590,988 | $590,988 | $770.38 | | |
| ST2 | State School Part 2 | 0.8169543533 | $590,988 | $590,988 | $482.81 | | |
| SWHIDPRBD | P & R S Whidbey BOND | 0.0152817568 | $590,988 | $590,988 | $9.03 | | |
| SWHIDPRBD2 | P & R S Whidbey BOND2 | 0.0138911264 | $590,988 | $590,988 | $8.21 | | |
| SWHIDPRMT | P & R S Whidbey GEN | 0.2053334452 | $590,988 | $590,988 | $121.35 | | |
| | Total Tax Rate: | 6.6934522006 | | | | | |
| | | | | Taxes w/Current Exemptions: | $3,955.74 | | |
| | | | | Taxes w/o Exemptions: | $3,955.74 | | |
Improvement / Building
| Improvement #1: | RESIDENTIAL | State Code: | Y | 1594.0 sqft | Value: | $340,988 |
| Bathrooms: | 2 | Bedrooms: | 3 | | Ceiling: | DRY WALL SPRAYED | Exterior Wall/Cover: | WOOD SIDING | | Floor Covering: | VINYL 100% | Floor Structure: | WOOD W/SUBFLOOR | | Foundation: | CONCRETE | Heating: | WALL HEAT ELECTRIC | | Interior Finish: | DRYWALL PAINT | Plumbing Fixture Cnt: | 9 | | Roof Slope: | 6" IN 12" | Roof Structure/Cover: | CJ ASPHALT |
|
| | Type | Description | Class CD | Sub Class CD | Year Built | Area |
| | BAS | BASE/MAIN FLOOR | 3 | 0 | 2022 | 1594.0 |
| | AGR | ATTACHED GARAGE | 3 | 0 | 2022 | 462.0 |
| | OWP | OPEN WOOD PORCH W/STEPS | 3 | 0 | 2022 | 168.0 |
| | OWP | OPEN WOOD PORCH W/STEPS | 3 | 0 | 2022 | 240.0 |
Sketch
Property Image
Land
| 1 | 14 | SQ (08001-12000) | 0.0000 | 0.00 | 0.00 | 0.00 | 1.00 | $250,000 | $0 |
Roll Value History
| 2026 | N/A | N/A | N/A | N/A | N/A |
| 2025 | $340,988 | $250,000 | $0 | $590,988 | $590,988 |
| 2024 | $344,568 | $230,000 | $0 | $574,568 | $574,568 |
| 2023 | $350,833 | $230,000 | $0 | $580,833 | $580,833 |
| 2022 | $28,087 | $70,000 | $0 | $98,087 | $98,087 |
| 2021 | $0 | $45,000 | $0 | $45,000 | $45,000 |
| 2020 | $0 | $7,000 | $0 | $7,000 | $7,000 |
| 2019 | $0 | $5,000 | $0 | $5,000 | $5,000 |
| 2018 | $0 | $5,000 | $0 | $5,000 | $5,000 |
| 2017 | $0 | $5,000 | $0 | $5,000 | $5,000 |
| 2016 | $0 | $5,000 | $0 | $5,000 | $5,000 |
| 2015 | $0 | $5,000 | $0 | $5,000 | $5,000 |
| 2014 | $0 | $5,000 | $0 | $5,000 | $5,000 |
| 2013 | $0 | $5,000 | $0 | $5,000 | $5,000 |
| 2012 | $0 | $13,000 | $0 | $13,000 | $13,000 |
| 2011 | $0 | $13,000 | $0 | $13,000 | $13,000 |
| 2010 | $0 | $13,000 | $0 | $13,000 | $13,000 |
| 2009 | $0 | $13,000 | $0 | $13,000 | $13,000 |
| 2008 | $0 | $16,000 | $0 | $16,000 | $16,000 |
| 2007 | $0 | $24,000 | $0 | $24,000 | $24,000 |
Deed and Sales History
| 1 | 02/28/2023 | WD | Warranty Deed | NISQUALLY DEVELOPEMENT GROUP, LLC | GRANT, THOMAS R | | | $649,000.00 | 56049 | 4557468 |
| 2 | 04/27/2021 | WD | Warranty Deed | JOHNSON, BRUCE | NISQUALLY DEVELOPEMENT GROUP, LLC | | | $45,000.00 | 48015 | 4517848 |
| 3 | 06/21/2017 | WD | Warranty Deed | SIMMONS, PHILIP M | JOHNSON, BRUCE | | | $40,000.00 | 29887 | 4424906 |
| 4 | 03/08/2016 | WD | Warranty Deed | SIMMONS, PHILIP M | SIMMONS, PHILIP M | | | $0.00 | 29886 | 4424905 |
| 5 | 03/07/2006 | WD | Warranty Deed | HALVORSEN, ELE | SIMMONS, PHILIP M | | | $20,000.00 | 61092 | 4164831 |
| 6 | 10/08/2002 | QCD | Quit Claim Deed | JUOZAPAITIS, MARIA | HALVORSEN, ELE | | | $0.00 | 24136 | 4034339 |
| 7 | 01/01/1900 | OTHER | Other - Misc. Documents | Unknown | JUOZAPAITIS, MARIA | | | $0.00 | 0 | 0 |
Payout Agreement
| No payout information available.. |