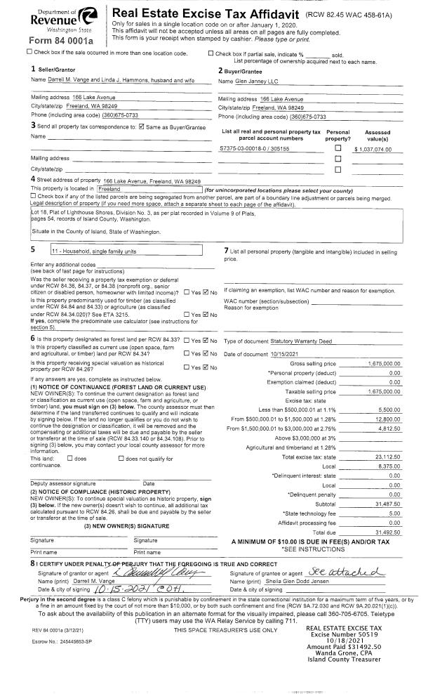
Property
Account |
| Property ID: | 242669 | Abbreviated Legal Description: | DEER LK EST 2 LOT 33 |
| Geographic ID: | S6460-02-00033-0 | Agent Code: | |
| Type: | Real | | |
| Tax Area: | 710 - APPRAISER-S Whid Schl Dist, outside Langley, improved & 1 acre or less | Land Use Code | 11 |
| Open Space: | N | DFL | N |
| Historic Property: | N | Remodel Property: | N |
| Multi-Family Redevelopment: | N | | |
| Township: | | Section: | |
| Range: | |
Location |
| Address: | 6413 CEDAR COVE LN CLINTON, WA 98236 | Mapsco: | |
| Neighborhood: | Cycle 4 | Map ID: | 819 |
| Neighborhood CD: | 4 |
Owner |
| Name: | DAFFRON, MICHAEL J | Owner ID: | 192643 |
| Mailing Address: | LEAH DAFFRON PO BOX 102 LANGLEY, WA 98260-0102 | % Ownership: | 100.0000000000% |
| | | Exemptions: | |
Taxes and Assessment Details
Values
| (+) Improvement Homesite Value: | + | $0 | |
| (+) Improvement Non-Homesite Value: | + | $35,000 | |
| (+) Land Homesite Value: | + | $0 | |
| (+) Land Non-Homesite Value: | + | $250,000 | |
| (+) Curr Use (HS): | + | $0 | $0 |
| (+) Curr Use (NHS): | + | $0 | $0 |
| | | -------------------------- | |
| (=) Market Value: | = | $285,000 | |
| (–) Productivity Loss: | – | $0 | |
| | | -------------------------- | |
| (=) Subtotal: | = | $285,000 | |
| (+) Senior Appraised Value: | + | $0 | |
| (+) Non-Senior Appraised Value: | + | $285,000 | |
| | | -------------------------- | |
| (=) Total Appraised Value: | = | $285,000 | |
| (–) Senior Exemption Loss: | – | $0 | |
| (–) Exemption Loss: | – | $0 | |
| | | -------------------------- | |
| (=) Taxable Value: | = | $285,000 | |
Taxing Jurisdiction
| Owner: | DAFFRON, MICHAEL J | | |
| % Ownership: | 100.0000000000% | | |
| Total Value: | $285,000 | | |
| Tax Area: | 710 - APPRAISER-S Whid Schl Dist, outside Langley, improved & 1 acre or less |
| CF | Conservation Futures | 0.0316035091 | $285,000 | $285,000 | $9.01 | | |
| FIRE3 | Fire & Rescue Dist #3 S Whidbey GEN | 1.2004855531 | $285,000 | $285,000 | $342.14 | | |
| HOBOND | Hospital BOND | 0.1910887512 | $285,000 | $285,000 | $54.46 | | |
| HOGEN | Hospital GEN | 0.3902502903 | $285,000 | $285,000 | $111.22 | | |
| CE | County Current Expense | 0.3708482477 | $285,000 | $285,000 | $105.69 | | |
| CR | County Roads | 0.4584763726 | $285,000 | $285,000 | $130.67 | | |
| ISLANDEMS | Hospital GEN (EMS) | 0.5000000000 | $285,000 | $285,000 | $142.50 | | |
| LIB | Library Sno-Isle GEN | 0.3153421757 | $285,000 | $285,000 | $89.87 | | |
| PORTWHID | Port of S Whidbey GEN | 0.1094540357 | $285,000 | $285,000 | $31.19 | | |
| SCH206BOND | School 206 BOND | 0.3161759235 | $285,000 | $285,000 | $90.11 | | |
| SCH206MO | School 206 Enrichment | 0.4547169547 | $285,000 | $285,000 | $129.59 | | |
| ST | State School | 1.3035497053 | $285,000 | $285,000 | $371.51 | | |
| ST2 | State School Part 2 | 0.8169543533 | $285,000 | $285,000 | $232.83 | | |
| SWHIDPRBD | P & R S Whidbey BOND | 0.0152817568 | $285,000 | $285,000 | $4.36 | | |
| SWHIDPRBD2 | P & R S Whidbey BOND2 | 0.0138911264 | $285,000 | $285,000 | $3.96 | | |
| SWHIDPRMT | P & R S Whidbey GEN | 0.2053334452 | $285,000 | $285,000 | $58.52 | | |
| | Total Tax Rate: | 6.6934522006 | | | | | |
| | | | | Taxes w/Current Exemptions: | $1,907.63 | | |
| | | | | Taxes w/o Exemptions: | $1,907.63 | | |
Improvement / Building
| Improvement #1: | RESIDENTIAL | State Code: | Y | 0.0 sqft | Value: | $35,000 |
Sketch
Property Image
Land
| 1 | 14 | SQ (08001-12000) | 0.0000 | 0.00 | 0.00 | 0.00 | 1.00 | $250,000 | $0 |
Roll Value History
| 2026 | N/A | N/A | N/A | N/A | N/A |
| 2025 | $35,000 | $250,000 | $0 | $285,000 | $285,000 |
| 2024 | $35,000 | $230,000 | $0 | $265,000 | $265,000 |
| 2023 | $35,000 | $230,000 | $0 | $265,000 | $265,000 |
| 2022 | $35,000 | $210,000 | $0 | $245,000 | $245,000 |
| 2021 | $35,000 | $150,000 | $0 | $185,000 | $185,000 |
| 2020 | $35,000 | $130,000 | $0 | $165,000 | $165,000 |
| 2019 | $35,000 | $200,000 | $0 | $235,000 | $235,000 |
| 2018 | $35,000 | $130,000 | $0 | $165,000 | $165,000 |
| 2017 | $35,000 | $110,000 | $0 | $145,000 | $145,000 |
| 2016 | $35,000 | $65,000 | $0 | $100,000 | $100,000 |
| 2015 | $35,000 | $55,000 | $0 | $90,000 | $90,000 |
| 2014 | $46,619 | $65,000 | $0 | $111,619 | $111,619 |
| 2013 | $46,619 | $65,000 | $0 | $111,619 | $111,619 |
| 2012 | $46,619 | $81,000 | $0 | $127,619 | $127,619 |
| 2011 | $46,619 | $90,000 | $0 | $136,619 | $136,619 |
| 2010 | $46,619 | $90,000 | $0 | $136,619 | $136,619 |
| 2009 | $47,327 | $100,000 | $0 | $147,327 | $147,327 |
| 2008 | $48,103 | $80,000 | $0 | $128,103 | $128,103 |
| 2007 | $48,805 | $80,000 | $0 | $128,805 | $128,805 |
Deed and Sales History
| 1 | 04/27/2004 | WD | Warranty Deed | PORTER, JAMES R | DAFFRON, MICHAEL J | | | $124,912.00 | 41971 | 4100342 |
| 2 | 01/01/1990 | WD | Warranty Deed | SIMMONS, PHILIP M | PORTER, JAMES R | | | $42,500.00 | 224 | 90000658 |
| 3 | 01/01/1900 | OTHER | Other - Misc. Documents | Unknown | SIMMONS, PHILIP M | | | $0.00 | 0 | 0 |
Payout Agreement
| No payout information available.. |