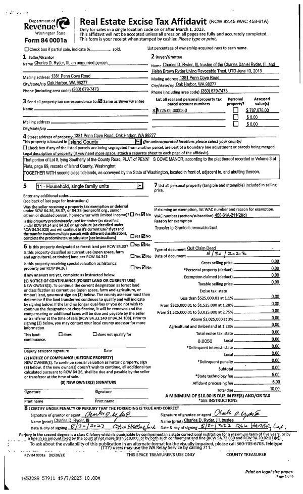
Property
Account |
| Property ID: | 243739 | Abbreviated Legal Description: | DILLARD LOT 19 |
| Geographic ID: | S6475-00-00019-0 | Agent Code: | |
| Type: | Real | | |
| Tax Area: | 100 - APPRAISER-OH Schl Dist, in OH | Land Use Code | 11 |
| Open Space: | N | DFL | N |
| Historic Property: | N | Remodel Property: | N |
| Multi-Family Redevelopment: | N | | |
| Township: | | Section: | |
| Range: | |
Location |
| Address: | 1812 SW BEEKSMA DR OAK HARBOR, WA 98277 | Mapsco: | |
| Neighborhood: | Cycle 1 | Map ID: | 86 |
| Neighborhood CD: | 1 |
Owner |
| Name: | BIDDULPH, GREGORY JOHN | Owner ID: | 307340 |
| Mailing Address: | LUANA J BIDDULPH 5221 WEST GATESHEAD DR WEST VALLEY CITY, UT 84120 | % Ownership: | 100.0000000000% |
| | | Exemptions: | |
Taxes and Assessment Details
Values
| (+) Improvement Homesite Value: | + | $0 | |
| (+) Improvement Non-Homesite Value: | + | $336,060 | |
| (+) Land Homesite Value: | + | $0 | |
| (+) Land Non-Homesite Value: | + | $210,000 | |
| (+) Curr Use (HS): | + | $0 | $0 |
| (+) Curr Use (NHS): | + | $0 | $0 |
| | | -------------------------- | |
| (=) Market Value: | = | $546,060 | |
| (–) Productivity Loss: | – | $0 | |
| | | -------------------------- | |
| (=) Subtotal: | = | $546,060 | |
| (+) Senior Appraised Value: | + | $0 | |
| (+) Non-Senior Appraised Value: | + | $546,060 | |
| | | -------------------------- | |
| (=) Total Appraised Value: | = | $546,060 | |
| (–) Senior Exemption Loss: | – | $0 | |
| (–) Exemption Loss: | – | $0 | |
| | | -------------------------- | |
| (=) Taxable Value: | = | $546,060 | |
Taxing Jurisdiction
| Owner: | BIDDULPH, GREGORY JOHN | | |
| % Ownership: | 100.0000000000% | | |
| Total Value: | $546,060 | | |
| Tax Area: | 100 - APPRAISER-OH Schl Dist, in OH |
| CF | Conservation Futures | 0.0316035091 | $546,060 | $546,060 | $17.26 | | |
| CEM1 | Cemetery #1 | 0.0040320932 | $546,060 | $546,060 | $2.20 | | |
| COH | City of Oak Harbor | 2.3001546061 | $546,060 | $546,060 | $1,256.02 | | |
| OAKBOND | City of Oak Harbor BOND | 0.1926904192 | $546,060 | $546,060 | $105.22 | | |
| HOBOND | Hospital BOND | 0.1910887512 | $546,060 | $546,060 | $104.35 | | |
| HOGEN | Hospital GEN | 0.3902502903 | $546,060 | $546,060 | $213.10 | | |
| CE | County Current Expense | 0.3708482477 | $546,060 | $546,060 | $202.51 | | |
| ISLANDEMS | Hospital GEN (EMS) | 0.5000000000 | $546,060 | $546,060 | $273.03 | | |
| LIB | Library Sno-Isle GEN | 0.3153421757 | $546,060 | $546,060 | $172.20 | | |
| NWHIDPRMT | P & R N Whidbey GEN | 0.2004466701 | $546,060 | $546,060 | $109.46 | | |
| SCH201MO | School 201 Enrichment | 1.8559231640 | $546,060 | $546,060 | $1,013.45 | | |
| ST | State School | 1.3035497053 | $546,060 | $546,060 | $711.82 | | |
| ST2 | State School Part 2 | 0.8169543533 | $546,060 | $546,060 | $446.11 | | |
| | Total Tax Rate: | 8.4728839852 | | | | | |
| | | | | Taxes w/Current Exemptions: | $4,626.73 | | |
| | | | | Taxes w/o Exemptions: | $4,626.73 | | |
Improvement / Building
| Improvement #1: | RESIDENTIAL | State Code: | Y | 1262.0 sqft | Value: | $336,060 |
| Bathrooms: | 2.5 | Bedrooms: | 3 | | Ceiling: | DRYWALL PAINTED | Exterior Wall/Cover: | CEMENT FIBER | | Floor Covering: | HARDWOOD/CARP 80-20 | Floor Structure: | SLAB ON GRADE | | Foundation: | CONCRETE | Heating: | WALL HEAT ELECTRIC | | Interior Finish: | DRYWALL PAINT | Plumbing Fixture Cnt: | 11 | | Roof Slope: | 6" IN 12" | Roof Structure/Cover: | CJ ASPHALT |
|
| | Type | Description | Class CD | Sub Class CD | Year Built | Area |
| | BAS | BASE/MAIN FLOOR | 4 | 0 | 2008 | 825.0 |
| | UTY | STORAGE/UTILITY | 4 | 0 | 2008 | 18.0 |
| | OWP | OPEN WOOD PORCH W/STEPS | 4 | 0 | 2008 | 698.0 |
| | OWC | OPEN WOOD PORCH W/STEPS/ROOF/C | 4 | 0 | 2008 | 60.0 |
| | ENP | ENCLOSED PORCH | 4 | 0 | 2008 | 96.0 |
| | UPH | HALF STORY | 4 | 0 | 2008 | 437.0 |
| | ENP | ENCLOSED PORCH | 4 | 0 | 2008 | 240.0 |
Sketch
Property Image
Land
| 1 | 13 | SQ (06001-08000) | 0.0000 | 0.00 | 0.00 | 0.00 | 1.00 | $210,000 | $0 |
Roll Value History
| 2026 | N/A | N/A | N/A | N/A | N/A |
| 2025 | $336,060 | $210,000 | $0 | $546,060 | $546,060 |
| 2024 | $340,002 | $210,000 | $0 | $550,002 | $550,002 |
| 2023 | $349,422 | $200,000 | $0 | $549,422 | $549,422 |
| 2022 | $338,984 | $200,000 | $0 | $538,984 | $538,984 |
| 2021 | $298,182 | $110,000 | $0 | $408,182 | $408,182 |
| 2020 | $288,709 | $110,000 | $0 | $398,709 | $398,709 |
| 2019 | $204,043 | $160,000 | $0 | $364,043 | $364,043 |
| 2018 | $204,615 | $160,000 | $0 | $364,615 | $364,615 |
| 2017 | $204,474 | $130,000 | $0 | $334,474 | $334,474 |
| 2016 | $206,668 | $120,000 | $0 | $326,668 | $326,668 |
| 2015 | $208,862 | $70,000 | $0 | $278,862 | $278,862 |
| 2014 | $211,056 | $60,000 | $0 | $271,056 | $271,056 |
| 2013 | $213,250 | $75,000 | $0 | $288,250 | $288,250 |
| 2012 | $215,444 | $90,000 | $0 | $305,444 | $305,444 |
| 2011 | $220,859 | $90,000 | $0 | $310,859 | $310,859 |
| 2010 | $226,561 | $90,000 | $0 | $316,561 | $316,561 |
| 2009 | $233,727 | $104,400 | $0 | $338,127 | $338,127 |
| 2008 | $236,523 | $104,400 | $0 | $340,923 | $340,923 |
| 2007 | $0 | $104,400 | $0 | $104,400 | $104,400 |
Deed and Sales History
| 1 | 01/18/2023 | WD | Warranty Deed | HERON BAY COTTAGE LLC | BIDDULPH, GREGORY JOHN | | | $560,000.00 | 55659 | 4555873 |
| 2 | 12/26/2012 | QCD | Quit Claim Deed | SKINNER, CHRISTON C | HERON BAY COTTAGE LLC | | | $0.00 | 9931 | 4330109 |
| 3 | 07/22/2002 | WD | Warranty Deed | DILLARD, DANIEL D | SKINNER, CHRISTON C | | | $120,000.00 | 22852 | 4026385 |
| 4 | 02/01/1993 | QCD | Quit Claim Deed | DILLARD, DANIEL D | DILLARD, DANIEL D | | | $0.00 | 30472 | 93002577 |
| 5 | 01/01/1993 | QCD | Quit Claim Deed | DILLARD, MARGARET F | DILLARD, DANIEL D | | | $0.00 | 30193 | 93000958 |
| 6 | 02/01/1992 | QCD | Quit Claim Deed | DILLARD, MARGARET F | DILLARD, MARGARET F | | | $0.00 | 20448 | 92002045 |
| 7 | 01/01/1991 | QCD | Quit Claim Deed | DILLARD, MARGARET F | DILLARD, MARGARET F | | | $0.00 | 10158 | 91000808 |
| 8 | 01/01/1990 | QCD | Quit Claim Deed | DILLARD, MARGARET F | DILLARD, MARGARET F | | | $0.00 | 447 | 90001365 |
| 9 | 04/01/1989 | QCD | Quit Claim Deed | DILLARD, MARGARET F | DILLARD, MARGARET F | | | $0.00 | 91461 | 89005123 |
| 10 | 08/01/1988 | OTHER | Other - Misc. Documents | DILLARD, MARGARET F | DILLARD, MARGARET F | | | $0.00 | 62832 | 87008916 |
| 11 | 08/01/1988 | QCD | Quit Claim Deed | DILLARD, DANIEL D | DILLARD, MARGARET F | | | $0.00 | 82915 | 88010885 |
| 12 | 01/01/1900 | OTHER | Other - Misc. Documents | Unknown | DILLARD, DANIEL D | | | $0.00 | 0 | 0 |
Payout Agreement
| No payout information available.. |