Property
Account |
| Property ID: | 244104 | Abbreviated Legal Description: | DOMERUDE BCH LOT 60 & E/2 LOT 59 BLK 1 |
| Geographic ID: | S6480-00-01060-0 | Agent Code: | |
| Type: | Real | | |
| Tax Area: | 580 - APPRAISER-Stan/Cam Schl Dist, Special Dist, improved & less than 1 acre | Land Use Code | 11 |
| Open Space: | N | DFL | N |
| Historic Property: | N | Remodel Property: | N |
| Multi-Family Redevelopment: | N | | |
| Township: | | Section: | |
| Range: | |
Location |
| Address: | 1375 OCEAN DR CAMANO ISLAND, WA 98282 | Mapsco: | |
| Neighborhood: | Cycle 5 | Map ID: | 980 |
| Neighborhood CD: | 5 |
Owner |
| Name: | ADAMS, NELSON DUNCAN | Owner ID: | 284974 |
| Mailing Address: | SARAH MICHELLE ADAMS 8561 HUNTS POINT LN HUNTS POINT, WA 98004 | % Ownership: | 100.0000000000% |
| | | Exemptions: | |
Taxes and Assessment Details
Values
| (+) Improvement Homesite Value: | + | $0 | |
| (+) Improvement Non-Homesite Value: | + | $181,041 | |
| (+) Land Homesite Value: | + | $0 | |
| (+) Land Non-Homesite Value: | + | $310,000 | |
| (+) Curr Use (HS): | + | $0 | $0 |
| (+) Curr Use (NHS): | + | $0 | $0 |
| | | -------------------------- | |
| (=) Market Value: | = | $491,041 | |
| (–) Productivity Loss: | – | $0 | |
| | | -------------------------- | |
| (=) Subtotal: | = | $491,041 | |
| (+) Senior Appraised Value: | + | $0 | |
| (+) Non-Senior Appraised Value: | + | $491,041 | |
| | | -------------------------- | |
| (=) Total Appraised Value: | = | $491,041 | |
| (–) Senior Exemption Loss: | – | $0 | |
| (–) Exemption Loss: | – | $0 | |
| | | -------------------------- | |
| (=) Taxable Value: | = | $491,041 | |
Taxing Jurisdiction
| Owner: | ADAMS, NELSON DUNCAN | | |
| % Ownership: | 100.0000000000% | | |
| Total Value: | $491,041 | | |
| Tax Area: | 580 - APPRAISER-Stan/Cam Schl Dist, Special Dist, improved & less than 1 acre |
| CF | Conservation Futures | 0.0316035091 | $491,041 | $491,041 | $15.52 | | |
| EMS1 | Fire & Rescue Dist #1 Camano GEN (EMS) | 0.3677864386 | $491,041 | $491,041 | $180.60 | | |
| FIRE1 | Fire & Rescue Dist #1 Camano GEN | 1.2502910536 | $491,041 | $491,041 | $613.94 | | |
| FIRE1BOND | Fire & Rescue Dist #1 Camano BOND | 0.1570001679 | $491,041 | $491,041 | $77.09 | | |
| CE | County Current Expense | 0.3708482477 | $491,041 | $491,041 | $182.10 | | |
| CR | County Roads | 0.4584763726 | $491,041 | $491,041 | $225.13 | | |
| LCIB | Library Sno-Isle BOND (Camano Island) | 0.0396325772 | $491,041 | $491,041 | $19.46 | | |
| LIB | Library Sno-Isle GEN | 0.3153421757 | $491,041 | $491,041 | $154.85 | | |
| SCH205_401 | School 205-401 Enrichment | 1.2698420524 | $491,041 | $491,041 | $623.54 | | |
| SCH205BOND | School 205-401 BOND | 0.9396497583 | $491,041 | $491,041 | $461.41 | | |
| ST | State School | 1.3035497053 | $491,041 | $491,041 | $640.10 | | |
| ST2 | State School Part 2 | 0.8169543533 | $491,041 | $491,041 | $401.16 | | |
| | Total Tax Rate: | 7.3209764117 | | | | | |
| | | | | Taxes w/Current Exemptions: | $3,594.90 | | |
| | | | | Taxes w/o Exemptions: | $3,594.90 | | |
Improvement / Building
| Improvement #1: | RESIDENTIAL | State Code: | Y | 1321.0 sqft | Value: | $181,041 |
| Bathrooms: | 2 | Bedrooms: | 1 | | Ceiling: | TONGUE & GROOVE | Exterior Wall/Cover: | PLY/HARDBOARD T-111 | | Floor Covering: | CARPET/VINYL 80-20 | Floor Structure: | WOOD W/SUBFLOOR | | Foundation: | CONCRETE | Heating: | BASEBOARD ELECTRIC | | Interior Finish: | DRYWALL PAINT | Plumbing Fixture Cnt: | 10 | | Roof Slope: | 4" IN 12" | Roof Structure/Cover: | BEAM ASPHALT |
|
| | Type | Description | Class CD | Sub Class CD | Year Built | Area |
| | BAS | BASE/MAIN FLOOR | 3 | 0 | 1922 | 917.0 |
| | DWN | DOWNSTAIRS LIVING AREA | 3 | 0 | 1922 | 404.0 |
| | OP1 | OPEN PORCH SLAB | 3 | 0 | 1922 | 116.0 |
| | UTY | STORAGE/UTILITY | 3 | 0 | 1922 | 180.0 |
| | OWP | OPEN WOOD PORCH W/STEPS | 3 | 0 | 1922 | 457.6 |
Sketch
Property Image
Land
| 1 | 12 | SQ (00000-06000) | 0.0000 | 0.00 | 0.00 | 0.00 | 1.00 | $310,000 | $0 |
Roll Value History
| 2026 | N/A | N/A | N/A | N/A | N/A |
| 2025 | $181,041 | $310,000 | $0 | $491,041 | $491,041 |
| 2024 | $187,659 | $300,000 | $0 | $487,659 | $487,659 |
| 2023 | $190,674 | $300,000 | $0 | $490,674 | $490,674 |
| 2022 | $175,380 | $260,000 | $0 | $435,380 | $435,380 |
| 2021 | $127,605 | $200,000 | $0 | $327,605 | $327,605 |
| 2020 | $124,487 | $160,000 | $0 | $284,487 | $284,487 |
| 2019 | $85,823 | $190,000 | $0 | $275,823 | $275,823 |
| 2018 | $86,206 | $150,000 | $0 | $236,206 | $236,206 |
| 2017 | $86,967 | $130,000 | $0 | $216,967 | $216,967 |
| 2016 | $88,493 | $100,000 | $0 | $188,493 | $188,493 |
| 2015 | $95,416 | $100,000 | $0 | $195,416 | $195,416 |
| 2014 | $97,034 | $100,000 | $0 | $197,034 | $197,034 |
| 2013 | $98,650 | $100,000 | $0 | $198,650 | $198,650 |
| 2012 | $100,268 | $100,000 | $0 | $200,268 | $200,268 |
| 2011 | $101,885 | $125,000 | $0 | $226,885 | $226,885 |
| 2010 | $108,308 | $125,000 | $0 | $233,308 | $233,308 |
| 2009 | $106,511 | $150,000 | $0 | $256,511 | $256,511 |
| 2008 | $108,042 | $135,000 | $0 | $243,042 | $243,042 |
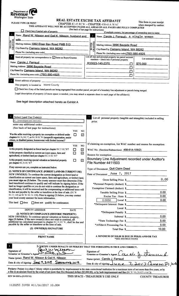
Deed and Sales History
| 1 | 04/30/2018 | BARGSLD | Bargain And Sale Deed | NATIONSTAR MORTGAGE, LLC | ADAMS, NELSON DUNCAN | | | $208,433.00 | 34043 | 4444160 |
|   | |
| 2 | 10/23/2017 | TRUSTEED | Trustee's Deed | CATON, LINDSEY MARK | NATIONSTAR MORTGAGE, LLC | | | $218,400.00 | 31760 | 4433286 |
|   | |
| 3 | 11/09/2007 | QCD | Quit Claim Deed | NORTHWEST, EXCHANGE & | CATON, LINDSEY MARK | | | $0.00 | 73808 | 4216530 |
| 4 | 01/01/1995 | WD | Warranty Deed | Unknown | NORTHWEST, EXCHANGE & | | | $123,248.00 | 50262 | 95001231 |
| 5 | 01/01/1995 | WD | Warranty Deed | CATON, GERALDINE F | NORTHWEST, EXCHANGE & | | | $130,000.00 | 50262 | 95001231 |
| 6 | 01/01/1995 | WD | Warranty Deed | JENISON, ARTHUR L | CATON, GERALDINE F | | | $0.00 | 50263 | 95001232 |
| 7 | 02/01/1990 | QCD | Quit Claim Deed | JENISON, DOROTHY J | JENISON, ARTHUR L | | | $0.00 | 627 | 90002037 |
| 8 | 01/01/1900 | OTHER | Other - Misc. Documents | NORTHWEST, EXCHANGE & | JENISON, DOROTHY J | | | $0.00 | 0 | 0 |
Payout Agreement
| No payout information available.. |