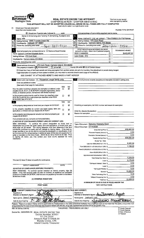
Property
Account |
| Property ID: | 245121 | Abbreviated Legal Description: | DOUBLE VU LOT 25 DRAINFIELD LOC LOT 47 AF#94006022 |
| Geographic ID: | S6495-00-00025-0 | Agent Code: | |
| Type: | Real | | |
| Tax Area: | 510 - APPRAISER-Stan/Cam Schl Dist, improved & 1 acre or less | Land Use Code | 11 |
| Open Space: | N | DFL | N |
| Historic Property: | N | Remodel Property: | N |
| Multi-Family Redevelopment: | N | | |
| Township: | | Section: | |
| Range: | |
Location |
| Address: | 36 EDGEWATER DR CAMANO ISLAND, WA 98282 | Mapsco: | |
| Neighborhood: | Cycle 5 | Map ID: | 458 |
| Neighborhood CD: | 5 |
Owner |
| Name: | HOFFMAN, MARY | Owner ID: | 294305 |
| Mailing Address: | 36 EDGEWATER DR CAMANO ISLAND, WA 98282 | % Ownership: | 100.0000000000% |
| | | Exemptions: | |
Taxes and Assessment Details
Values
| (+) Improvement Homesite Value: | + | $0 | |
| (+) Improvement Non-Homesite Value: | + | $514,433 | |
| (+) Land Homesite Value: | + | $0 | |
| (+) Land Non-Homesite Value: | + | $575,000 | |
| (+) Curr Use (HS): | + | $0 | $0 |
| (+) Curr Use (NHS): | + | $0 | $0 |
| | | -------------------------- | |
| (=) Market Value: | = | $1,089,433 | |
| (–) Productivity Loss: | – | $0 | |
| | | -------------------------- | |
| (=) Subtotal: | = | $1,089,433 | |
| (+) Senior Appraised Value: | + | $0 | |
| (+) Non-Senior Appraised Value: | + | $1,089,433 | |
| | | -------------------------- | |
| (=) Total Appraised Value: | = | $1,089,433 | |
| (–) Senior Exemption Loss: | – | $0 | |
| (–) Exemption Loss: | – | $0 | |
| | | -------------------------- | |
| (=) Taxable Value: | = | $1,089,433 | |
Taxing Jurisdiction
| Owner: | HOFFMAN, MARY | | |
| % Ownership: | 100.0000000000% | | |
| Total Value: | $1,089,433 | | |
| Tax Area: | 510 - APPRAISER-Stan/Cam Schl Dist, improved & 1 acre or less |
| CF | Conservation Futures | 0.0316035091 | $1,089,433 | $1,089,433 | $34.43 | | |
| EMS1 | Fire & Rescue Dist #1 Camano GEN (EMS) | 0.3677864386 | $1,089,433 | $1,089,433 | $400.68 | | |
| FIRE1 | Fire & Rescue Dist #1 Camano GEN | 1.2502910536 | $1,089,433 | $1,089,433 | $1,362.11 | | |
| FIRE1BOND | Fire & Rescue Dist #1 Camano BOND | 0.1570001679 | $1,089,433 | $1,089,433 | $171.04 | | |
| CE | County Current Expense | 0.3708482477 | $1,089,433 | $1,089,433 | $404.01 | | |
| CR | County Roads | 0.4584763726 | $1,089,433 | $1,089,433 | $499.48 | | |
| LCIB | Library Sno-Isle BOND (Camano Island) | 0.0396325772 | $1,089,433 | $1,089,433 | $43.18 | | |
| LIB | Library Sno-Isle GEN | 0.3153421757 | $1,089,433 | $1,089,433 | $343.54 | | |
| SCH205_401 | School 205-401 Enrichment | 1.2698420524 | $1,089,433 | $1,089,433 | $1,383.41 | | |
| SCH205BOND | School 205-401 BOND | 0.9396497583 | $1,089,433 | $1,089,433 | $1,023.69 | | |
| ST | State School | 1.3035497053 | $1,089,433 | $1,089,433 | $1,420.13 | | |
| ST2 | State School Part 2 | 0.8169543533 | $1,089,433 | $1,089,433 | $890.02 | | |
| | Total Tax Rate: | 7.3209764117 | | | | | |
| | | | | Taxes w/Current Exemptions: | $7,975.72 | | |
| | | | | Taxes w/o Exemptions: | $7,975.72 | | |
Improvement / Building
| Improvement #1: | RESIDENTIAL | State Code: | Y | 2904.8 sqft | Value: | $514,433 |
| Bathrooms: | 2.5 | Bedrooms: | 3 | | Ceiling: | DRYWALL PAINTED | Cooling: | HEAT PUMP/CONV/V | | Exterior Wall/Cover: | VINYL | Floor Covering: | HARDWOOD/CARP 60-40 | | Floor Structure: | WOOD W/SUBFLOOR | Foundation: | CONCRETE | | Interior Finish: | DRYWALL PAINT | Plumbing Fixture Cnt: | 15 | | Roof Slope: | 5" IN 12" | Roof Structure/Cover: | CJ ASPHALT |
|
| | Type | Description | Class CD | Sub Class CD | Year Built | Area |
| | BAS | BASE/MAIN FLOOR | 4 | 0 | 1994 | 1521.8 |
| | AGR | ATTACHED GARAGE | 4 | 0 | 1994 | 448.5 |
| | UPS | UPPER STORY | 4 | 0 | 1994 | 1383.0 |
| | OWP | OPEN WOOD PORCH W/STEPS | 4 | 0 | 1994 | 120.4 |
| | OWP | OPEN WOOD PORCH W/STEPS | 4 | 0 | 1994 | 569.4 |
| | OWP | OPEN WOOD PORCH W/STEPS | 4 | 0 | 1994 | 80.0 |
| | OWC | OPEN WOOD PORCH W/STEPS/ROOF/C | 4 | 0 | 1994 | 26.3 |
Sketch
Property Image
Land
| 1 | HB | HIGH BLUFF | 0.0000 | 0.00 | 62.00 | 0.00 | 1.00 | $575,000 | $0 |
Roll Value History
| 2026 | N/A | N/A | N/A | N/A | N/A |
| 2025 | $514,433 | $575,000 | $0 | $1,089,433 | $1,089,433 |
| 2024 | $520,611 | $575,000 | $0 | $1,095,611 | $1,095,611 |
| 2023 | $526,791 | $575,000 | $0 | $1,101,791 | $1,101,791 |
| 2022 | $482,638 | $500,000 | $0 | $982,638 | $982,638 |
| 2021 | $385,606 | $400,000 | $0 | $785,606 | $785,606 |
| 2020 | $371,787 | $300,000 | $0 | $671,787 | $671,787 |
| 2019 | $286,347 | $300,000 | $0 | $586,347 | $586,347 |
| 2018 | $287,229 | $300,000 | $0 | $587,229 | $587,229 |
| 2017 | $288,913 | $250,000 | $0 | $538,913 | $538,913 |
| 2016 | $292,436 | $250,000 | $0 | $542,436 | $542,436 |
| 2015 | $280,398 | $250,000 | $0 | $530,398 | $530,398 |
| 2014 | $283,880 | $250,000 | $0 | $533,880 | $533,880 |
| 2013 | $287,360 | $177,952 | $0 | $465,312 | $465,312 |
| 2012 | $290,841 | $177,952 | $0 | $468,793 | $468,793 |
| 2011 | $294,320 | $222,440 | $0 | $516,760 | $516,760 |
| 2010 | $303,745 | $271,263 | $0 | $575,008 | $575,008 |
| 2009 | $308,790 | $291,681 | $0 | $600,471 | $600,471 |
| 2008 | $312,702 | $300,014 | $0 | $612,716 | $612,716 |
| 2007 | $316,668 | $300,014 | $0 | $616,682 | $616,682 |
Deed and Sales History
| 1 | 05/22/2020 | WD | Warranty Deed | PAYNE, ELIZABETH A | HOFFMAN, MARY | | | $798,000.00 | 43119 | 4487400 |
| 2 | 12/19/2019 | QCD | Quit Claim Deed | PAYNE, DELBERT / ELIZABETH | PAYNE, ELIZABETH A | | | $0.00 | 41583 | 4478058 |
| 3 | 05/01/1994 | WD | Warranty Deed | LEWIS, LARRY C | PAYNE, DELBERT/ELIZABETH | | | $81,000.00 | 41896 | 94011138 |
| 4 | 07/01/1993 | WD | Warranty Deed | PURSELL, LYNN M | LEWIS, LARRY C | | | $28,800.00 | 32932 | 93015024 |
| 5 | 04/01/1989 | DECREE | Divorce Decree/Legal Separation | PURSELL, LYNN M | PURSELL, LYNN M | | | $0.00 | 91529 | 89005343 |
| 6 | 10/01/1977 | CD | DNU - Correction Deed | PURSELL, LYNN M | PURSELL, LYNN M | | | $0.00 | 74608 | 0 |
| 7 | 10/01/1977 | CD | DNU - Correction Deed | PURSELL, LYNN M | PURSELL, LYNN M | | | $0.00 | 74609 | 0 |
| 8 | 10/01/1977 | CD | DNU - Correction Deed | PURSELL, LYNN M | PURSELL, LYNN M | | | $0.00 | 74610 | 0 |
| 9 | 10/01/1977 | CD | DNU - Correction Deed | Unknown | PURSELL, LYNN M | | | $0.00 | 74611 | 0 |
Payout Agreement
| No payout information available.. |