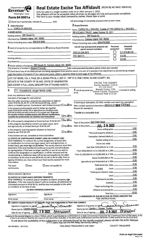
Property
Account |
| Property ID: | 245158 | Abbreviated Legal Description: | DOUBLE VU LOT 28 TGW S/2 LOT 29 COMB 6/94 |
| Geographic ID: | S6495-00-00028-0 | Agent Code: | |
| Type: | Real | | |
| Tax Area: | 510 - APPRAISER-Stan/Cam Schl Dist, improved & 1 acre or less | Land Use Code | 11 |
| Open Space: | N | DFL | N |
| Historic Property: | N | Remodel Property: | N |
| Multi-Family Redevelopment: | N | | |
| Township: | | Section: | |
| Range: | |
Location |
| Address: | 28 EDGEWATER DR CAMANO ISLAND, WA 98282 | Mapsco: | |
| Neighborhood: | Cycle 5 | Map ID: | 458 |
| Neighborhood CD: | 5 |
Owner |
| Name: | MIODONSKI, KEVIN C | Owner ID: | 295430 |
| Mailing Address: | A LUCIENNE MIODONSKI 28 EDGEWATER DR CAMANO ISLAND, WA 98282 | % Ownership: | 100.0000000000% |
| | | Exemptions: | |
Taxes and Assessment Details
Values
| (+) Improvement Homesite Value: | + | $0 | |
| (+) Improvement Non-Homesite Value: | + | $772,769 | |
| (+) Land Homesite Value: | + | $0 | |
| (+) Land Non-Homesite Value: | + | $575,000 | |
| (+) Curr Use (HS): | + | $0 | $0 |
| (+) Curr Use (NHS): | + | $0 | $0 |
| | | -------------------------- | |
| (=) Market Value: | = | $1,347,769 | |
| (–) Productivity Loss: | – | $0 | |
| | | -------------------------- | |
| (=) Subtotal: | = | $1,347,769 | |
| (+) Senior Appraised Value: | + | $0 | |
| (+) Non-Senior Appraised Value: | + | $1,347,769 | |
| | | -------------------------- | |
| (=) Total Appraised Value: | = | $1,347,769 | |
| (–) Senior Exemption Loss: | – | $0 | |
| (–) Exemption Loss: | – | $0 | |
| | | -------------------------- | |
| (=) Taxable Value: | = | $1,347,769 | |
Taxing Jurisdiction
| Owner: | MIODONSKI, KEVIN C | | |
| % Ownership: | 100.0000000000% | | |
| Total Value: | $1,347,769 | | |
| Tax Area: | 510 - APPRAISER-Stan/Cam Schl Dist, improved & 1 acre or less |
| CF | Conservation Futures | 0.0316035091 | $1,347,769 | $1,347,769 | $42.59 | | |
| EMS1 | Fire & Rescue Dist #1 Camano GEN (EMS) | 0.3677864386 | $1,347,769 | $1,347,769 | $495.69 | | |
| FIRE1 | Fire & Rescue Dist #1 Camano GEN | 1.2502910536 | $1,347,769 | $1,347,769 | $1,685.10 | | |
| FIRE1BOND | Fire & Rescue Dist #1 Camano BOND | 0.1570001679 | $1,347,769 | $1,347,769 | $211.60 | | |
| CE | County Current Expense | 0.3708482477 | $1,347,769 | $1,347,769 | $499.82 | | |
| CR | County Roads | 0.4584763726 | $1,347,769 | $1,347,769 | $617.92 | | |
| LCIB | Library Sno-Isle BOND (Camano Island) | 0.0396325772 | $1,347,769 | $1,347,769 | $53.42 | | |
| LIB | Library Sno-Isle GEN | 0.3153421757 | $1,347,769 | $1,347,769 | $425.01 | | |
| SCH205_401 | School 205-401 Enrichment | 1.2698420524 | $1,347,769 | $1,347,769 | $1,711.45 | | |
| SCH205BOND | School 205-401 BOND | 0.9396497583 | $1,347,769 | $1,347,769 | $1,266.43 | | |
| ST | State School | 1.3035497053 | $1,347,769 | $1,347,769 | $1,756.88 | | |
| ST2 | State School Part 2 | 0.8169543533 | $1,347,769 | $1,347,769 | $1,101.07 | | |
| | Total Tax Rate: | 7.3209764117 | | | | | |
| | | | | Taxes w/Current Exemptions: | $9,866.98 | | |
| | | | | Taxes w/o Exemptions: | $9,866.98 | | |
Improvement / Building
| Improvement #1: | RESIDENTIAL | State Code: | Y | 3121.0 sqft | Value: | $772,769 |
| Bathrooms: | 2.5 | Bedrooms: | 3 | | Ceiling: | DRYWALL PAINTED | Cooling: | HEAT PUMP/CONV/V | | Exterior Wall/Cover: | WOOD SIDING | Floor Covering: | HARDWOOD/CARP 80-20 | | Floor Structure: | WOOD W/SUBFLOOR | Foundation: | CONCRETE | | Interior Finish: | DRYWALL PAINT | Plumbing Fixture Cnt: | 14 | | Roof Slope: | 4" IN 12" | Roof Structure/Cover: | BEAM ASPHALT |
|
| | Type | Description | Class CD | Sub Class CD | Year Built | Area |
| | BAS | BASE/MAIN FLOOR | 5 | 0 | 1968 | 2625.0 |
| | OP4 | OPEN PORCH W/CEILING-ROOF | 5 | 0 | 1968 | 93.8 |
| | OP4 | OPEN PORCH W/CEILING-ROOF | 5 | 0 | 1968 | 105.0 |
| | OWP | OPEN WOOD PORCH W/STEPS | 5 | 0 | 1968 | 1266.0 |
| | OWC | OPEN WOOD PORCH W/STEPS/ROOF/C | 5 | 0 | 1968 | 224.0 |
| | DGR | DETACHED GARAGE | 5 | 0 | 1968 | 768.0 |
| | LOF | LOFT | 5 | 0 | 1968 | 496.0 |
| | OWP | OPEN WOOD PORCH W/STEPS | 5 | 0 | 1968 | 216.0 |
| | ENP | ENCLOSED PORCH | 4 | 0 | 1968 | 228.0 |
Sketch
Property Image
Land
| 1 | HB | HIGH BLUFF | 0.0000 | 0.00 | 90.00 | 0.00 | 1.00 | $575,000 | $0 |
Roll Value History
| 2026 | N/A | N/A | N/A | N/A | N/A |
| 2025 | $772,769 | $575,000 | $0 | $1,347,769 | $1,347,769 |
| 2024 | $781,625 | $575,000 | $0 | $1,356,625 | $1,356,625 |
| 2023 | $790,481 | $575,000 | $0 | $1,365,481 | $1,365,481 |
| 2022 | $721,794 | $500,000 | $0 | $1,221,794 | $1,221,794 |
| 2021 | $612,562 | $400,000 | $0 | $1,012,562 | $1,012,562 |
| 2020 | $532,811 | $400,000 | $0 | $932,811 | $932,811 |
| 2019 | $407,968 | $400,000 | $0 | $807,968 | $807,968 |
| 2018 | $409,111 | $400,000 | $0 | $809,111 | $809,111 |
| 2017 | $383,081 | $300,000 | $0 | $683,081 | $683,081 |
| 2016 | $387,483 | $300,000 | $0 | $687,483 | $687,483 |
| 2015 | $377,076 | $300,000 | $0 | $677,076 | $677,076 |
| 2014 | $381,113 | $300,000 | $0 | $681,113 | $681,113 |
| 2013 | $385,153 | $242,816 | $0 | $627,969 | $627,969 |
| 2012 | $389,192 | $242,816 | $0 | $632,008 | $632,008 |
| 2011 | $393,230 | $303,520 | $0 | $696,750 | $696,750 |
| 2010 | $406,421 | $370,143 | $0 | $776,564 | $776,564 |
| 2009 | $423,625 | $398,003 | $0 | $821,628 | $821,628 |
| 2008 | $427,881 | $418,084 | $0 | $845,965 | $845,965 |
| 2007 | $434,683 | $418,084 | $0 | $852,767 | $852,767 |
Deed and Sales History
| 1 | 07/28/2020 | WD | Warranty Deed | MUELLER JTWROS, CHRISTIE S | MIODONSKI, KEVIN C | | | $1,268,000.00 | 44044 | 4492697 |
| 2 | 02/01/2019 | QCD | Quit Claim Deed | MUELLER, CHRISTIE S | MUELLER JTWROS, CHRISTIE S | | | $574,754.00 | 37533 | 4458998 |
| 3 | 10/12/2017 | WD | Warranty Deed | NIVEN, BRADFORD A | MUELLER, CHRISTIE S | | | $873,600.00 | 31576 | 4432418 |
| 4 | 08/27/1999 | WD | Warranty Deed | LENZI, THOMAS W | NIVEN, BRADFORD A | | | $302,000.00 | 93595 | 99020410 |
| 5 | 06/01/1994 | OTHER | Other - Misc. Documents | LENZI, THOMAS W | LENZI, THOMAS W | | | $0.00 | 65939 | 94013320 |
| 6 | 06/01/1993 | WD | Warranty Deed | STORGAARD, RICHARD D | LENZI, THOMAS W | | | $198,000.00 | 32371 | 93012295 |
| 7 | 04/01/1987 | PRD | Personal Representatives Deed | WEST, SAMUEL F | STORGAARD, RICHARD D | | | $62,000.00 | 70857 | 87004471 |
| 8 | 01/01/1900 | OTHER | Other - Misc. Documents | Unknown | WEST, SAMUEL F | | | $0.00 | 0 | 0 |
Payout Agreement
| No payout information available.. |