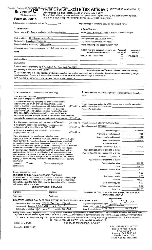
Property
Account |
| Property ID: | 245292 | Abbreviated Legal Description: | DOUBLE VU LOTS 42 & 43 |
| Geographic ID: | S6495-00-00042-0 | Agent Code: | |
| Type: | Real | | |
| Tax Area: | 510 - APPRAISER-Stan/Cam Schl Dist, improved & 1 acre or less | Land Use Code | 11 |
| Open Space: | N | DFL | N |
| Historic Property: | N | Remodel Property: | N |
| Multi-Family Redevelopment: | N | | |
| Township: | | Section: | |
| Range: | |
Location |
| Address: | 31 EDGEWATER DR CAMANO ISLAND, WA 98282 | Mapsco: | |
| Neighborhood: | Cycle 5 | Map ID: | 458 |
| Neighborhood CD: | 5 |
Owner |
| Name: | BLAKE, SUSAN | Owner ID: | 301607 |
| Mailing Address: | 31 EDGEWATER DR CAMANO ISLAND, WA 98282 | % Ownership: | 100.0000000000% |
| | | Exemptions: | |
Taxes and Assessment Details
Values
| (+) Improvement Homesite Value: | + | $0 | |
| (+) Improvement Non-Homesite Value: | + | $336,038 | |
| (+) Land Homesite Value: | + | $0 | |
| (+) Land Non-Homesite Value: | + | $230,000 | |
| (+) Curr Use (HS): | + | $0 | $0 |
| (+) Curr Use (NHS): | + | $0 | $0 |
| | | -------------------------- | |
| (=) Market Value: | = | $566,038 | |
| (–) Productivity Loss: | – | $0 | |
| | | -------------------------- | |
| (=) Subtotal: | = | $566,038 | |
| (+) Senior Appraised Value: | + | $0 | |
| (+) Non-Senior Appraised Value: | + | $566,038 | |
| | | -------------------------- | |
| (=) Total Appraised Value: | = | $566,038 | |
| (–) Senior Exemption Loss: | – | $0 | |
| (–) Exemption Loss: | – | $0 | |
| | | -------------------------- | |
| (=) Taxable Value: | = | $566,038 | |
Taxing Jurisdiction
| Owner: | BLAKE, SUSAN | | |
| % Ownership: | 100.0000000000% | | |
| Total Value: | $566,038 | | |
| Tax Area: | 510 - APPRAISER-Stan/Cam Schl Dist, improved & 1 acre or less |
| CF | Conservation Futures | 0.0316035091 | $566,038 | $566,038 | $17.89 | | |
| EMS1 | Fire & Rescue Dist #1 Camano GEN (EMS) | 0.3677864386 | $566,038 | $566,038 | $208.18 | | |
| FIRE1 | Fire & Rescue Dist #1 Camano GEN | 1.2502910536 | $566,038 | $566,038 | $707.71 | | |
| FIRE1BOND | Fire & Rescue Dist #1 Camano BOND | 0.1570001679 | $566,038 | $566,038 | $88.87 | | |
| CE | County Current Expense | 0.3708482477 | $566,038 | $566,038 | $209.91 | | |
| CR | County Roads | 0.4584763726 | $566,038 | $566,038 | $259.52 | | |
| LCIB | Library Sno-Isle BOND (Camano Island) | 0.0396325772 | $566,038 | $566,038 | $22.43 | | |
| LIB | Library Sno-Isle GEN | 0.3153421757 | $566,038 | $566,038 | $178.50 | | |
| SCH205_401 | School 205-401 Enrichment | 1.2698420524 | $566,038 | $566,038 | $718.78 | | |
| SCH205BOND | School 205-401 BOND | 0.9396497583 | $566,038 | $566,038 | $531.88 | | |
| ST | State School | 1.3035497053 | $566,038 | $566,038 | $737.86 | | |
| ST2 | State School Part 2 | 0.8169543533 | $566,038 | $566,038 | $462.43 | | |
| | Total Tax Rate: | 7.3209764117 | | | | | |
| | | | | Taxes w/Current Exemptions: | $4,143.96 | | |
| | | | | Taxes w/o Exemptions: | $4,143.96 | | |
Improvement / Building
| Improvement #1: | RESIDENTIAL | State Code: | Y | 1507.1 sqft | Value: | $336,038 |
| Bathrooms: | 2 | Bedrooms: | 2 | | Ceiling: | DRYWALL PAINTED | Exterior Wall/Cover: | CEMENT FIBER | | Floor Covering: | HARDWOOD/CARP 60-40 | Floor Structure: | WOOD W/SUBFLOOR | | Foundation: | CONCRETE | Heating: | FHA GAS | | Interior Finish: | DRYWALL PAINT | Plumbing Fixture Cnt: | 11 | | Roof Slope: | 5" IN 12" | Roof Structure/Cover: | CJ ASPHALT |
|
| | Type | Description | Class CD | Sub Class CD | Year Built | Area |
| | BAS | BASE/MAIN FLOOR | 3 | 0 | 2005 | 1507.1 |
| | AGR | ATTACHED GARAGE | 3 | 0 | 2005 | 501.3 |
| | OWC | OPEN WOOD PORCH W/STEPS/ROOF/C | 3 | 0 | 2005 | 60.0 |
| | OWC | OPEN WOOD PORCH W/STEPS/ROOF/C | 3 | 0 | 2005 | 88.7 |
Sketch
Property Image
Land
| 1 | 15 | SQ (12001-21780) | 0.4400 | 19166.40 | 0.00 | 0.00 | 1.00 | $230,000 | $0 |
Roll Value History
| 2026 | N/A | N/A | N/A | N/A | N/A |
| 2025 | $336,038 | $230,000 | $0 | $566,038 | $566,038 |
| 2024 | $339,890 | $230,000 | $0 | $569,890 | $569,890 |
| 2023 | $343,742 | $240,000 | $0 | $583,742 | $583,742 |
| 2022 | $313,871 | $220,000 | $0 | $533,871 | $533,871 |
| 2021 | $258,540 | $180,000 | $0 | $438,540 | $438,540 |
| 2020 | $231,846 | $150,000 | $0 | $381,846 | $381,846 |
| 2019 | $166,934 | $200,000 | $0 | $366,934 | $366,934 |
| 2018 | $167,412 | $200,000 | $0 | $367,412 | $367,412 |
| 2017 | $168,333 | $100,000 | $0 | $268,333 | $268,333 |
| 2016 | $170,246 | $100,000 | $0 | $270,246 | $270,246 |
| 2015 | $176,944 | $65,000 | $0 | $241,944 | $241,944 |
| 2014 | $178,893 | $65,000 | $0 | $243,893 | $243,893 |
| 2013 | $180,840 | $41,600 | $0 | $222,440 | $222,440 |
| 2012 | $182,788 | $41,600 | $0 | $224,388 | $224,388 |
| 2011 | $184,736 | $52,000 | $0 | $236,736 | $236,736 |
| 2010 | $187,452 | $52,000 | $0 | $239,452 | $95,781 |
| 2009 | $194,341 | $90,000 | $0 | $284,341 | $104,210 |
| 2008 | $196,377 | $74,400 | $0 | $270,777 | $104,210 |
| 2007 | $196,486 | $74,400 | $0 | $270,886 | $104,210 |
Deed and Sales History
| 1 | 10/13/2021 | WD | Warranty Deed | DONAHUE, TRACY | BLAKE, SUSAN | | | $650,000.00 | 50507 | 4531543 |
| 2 | 09/19/2020 | WD | Warranty Deed | MCNAUGHT, ROBERT | DONAHUE, TRACY | | | $441,000.00 | 44910 | 4497598 |
| 3 | 10/14/2016 | ESTSEPPROP | Establish Separate Property | MCNAUGHT, ROBERT | MCNAUGHT, ROBERT | | | $0.00 | 26609 | 4409720 |
| 4 | 01/23/2015 | PRD | Personal Representatives Deed | MCNAUGHT, ROBERT | MCNAUGHT, ROBERT | | | $0.00 | 19098 | 4376356 |
| 5 | 01/23/2015 | ESTSEPPROP | Establish Separate Property | MCNAUGHT, ROBERT | MCNAUGHT, ROBERT | | | $0.00 | 19097 | 4376355 |
| 6 | 07/06/2012 | PRD | Personal Representatives Deed | BRYDE, ROBERTA A | MCNAUGHT, ROBERT | | | $0.00 | 8242 | 4319400 |
| 7 | 03/15/2007 | ESTSEPPROP | Establish Separate Property | BELLEVILLE, ROBERTA A | BRYDE, ROBERTA A | | | $0.00 | 70926 | 4197136 |
| 8 | 09/21/2005 | WD | Warranty Deed | SUNDBERG HOMES, INC, | BELLEVILLE, ROBERTA A | | | $87,000.00 | 54852 | 4149088 |
| 9 | 05/17/2004 | REC | Real Estate Contract | MUELLER, ERIK P | SUNDBERG HOMES, INC, | | | $65,000.00 | 42108 | 4101160 |
| 10 | 02/18/2004 | WD | Warranty Deed | SMALL, ROBERT & | MUELLER, ERIK P | | | $49,500.00 | 40750 | 4092586 |
| 11 | 07/01/1996 | QCD | Quit Claim Deed | SHULER, JOYCE & | SMALL, ROBERT & | | | $35,000.00 | 62528 | 96016116 |
| 12 | 03/01/1995 | OTHER | Other - Misc. Documents | SHULER, JOYCE & | SHULER, JOYCE & | | | $0.00 | 66297 | 95003154 |
| 13 | 11/01/1992 | QCD | Quit Claim Deed | NORRIS, J B | SHULER, JOYCE & | | | $0.00 | 24399 | 92021502 |
| 14 | 02/01/1992 | WD | Warranty Deed | SHULER, JOYCE | NORRIS, J B | | | $28,000.00 | 20549 | 92002628 |
| 15 | 02/01/1987 | QCD | Quit Claim Deed | PARSONS, WILLIS A | SHULER, JOYCE | | | $0.00 | 70492 | 87003003 |
Payout Agreement
| No payout information available.. |