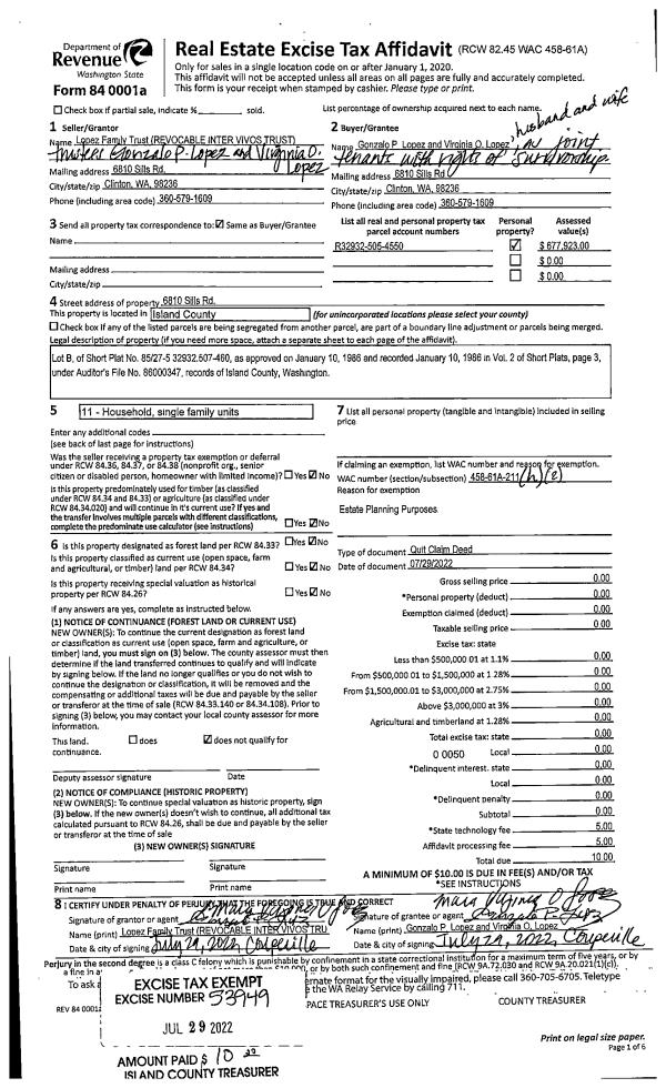
Property
Account |
| Property ID: | 245372 | Abbreviated Legal Description: | DOUBLE VU LOT 50 |
| Geographic ID: | S6495-00-00050-0 | Agent Code: | |
| Type: | Real | | |
| Tax Area: | 510 - APPRAISER-Stan/Cam Schl Dist, improved & 1 acre or less | Land Use Code | 11 |
| Open Space: | N | DFL | N |
| Historic Property: | N | Remodel Property: | N |
| Multi-Family Redevelopment: | N | | |
| Township: | | Section: | |
| Range: | |
Location |
| Address: | 962 DOUBLE VIEW DR CAMANO ISLAND, WA 98282 | Mapsco: | |
| Neighborhood: | Cycle 5 | Map ID: | 458 |
| Neighborhood CD: | 5 |
Owner |
| Name: | VEACH, ADAM | Owner ID: | 275979 |
| Mailing Address: | THERESE VEACH 962 DOUBLE VIEW DR CAMANO ISLAND, WA 98282 | % Ownership: | 100.0000000000% |
| | | Exemptions: | |
Taxes and Assessment Details
Values
| (+) Improvement Homesite Value: | + | $0 | |
| (+) Improvement Non-Homesite Value: | + | $367,904 | |
| (+) Land Homesite Value: | + | $0 | |
| (+) Land Non-Homesite Value: | + | $220,000 | |
| (+) Curr Use (HS): | + | $0 | $0 |
| (+) Curr Use (NHS): | + | $0 | $0 |
| | | -------------------------- | |
| (=) Market Value: | = | $587,904 | |
| (–) Productivity Loss: | – | $0 | |
| | | -------------------------- | |
| (=) Subtotal: | = | $587,904 | |
| (+) Senior Appraised Value: | + | $0 | |
| (+) Non-Senior Appraised Value: | + | $587,904 | |
| | | -------------------------- | |
| (=) Total Appraised Value: | = | $587,904 | |
| (–) Senior Exemption Loss: | – | $0 | |
| (–) Exemption Loss: | – | $0 | |
| | | -------------------------- | |
| (=) Taxable Value: | = | $587,904 | |
Taxing Jurisdiction
| Owner: | VEACH, ADAM | | |
| % Ownership: | 100.0000000000% | | |
| Total Value: | $587,904 | | |
| Tax Area: | 510 - APPRAISER-Stan/Cam Schl Dist, improved & 1 acre or less |
| CF | Conservation Futures | 0.0316035091 | $587,904 | $587,904 | $18.58 | | |
| EMS1 | Fire & Rescue Dist #1 Camano GEN (EMS) | 0.3677864386 | $587,904 | $587,904 | $216.22 | | |
| FIRE1 | Fire & Rescue Dist #1 Camano GEN | 1.2502910536 | $587,904 | $587,904 | $735.05 | | |
| FIRE1BOND | Fire & Rescue Dist #1 Camano BOND | 0.1570001679 | $587,904 | $587,904 | $92.30 | | |
| CE | County Current Expense | 0.3708482477 | $587,904 | $587,904 | $218.02 | | |
| CR | County Roads | 0.4584763726 | $587,904 | $587,904 | $269.54 | | |
| LCIB | Library Sno-Isle BOND (Camano Island) | 0.0396325772 | $587,904 | $587,904 | $23.30 | | |
| LIB | Library Sno-Isle GEN | 0.3153421757 | $587,904 | $587,904 | $185.39 | | |
| SCH205_401 | School 205-401 Enrichment | 1.2698420524 | $587,904 | $587,904 | $746.55 | | |
| SCH205BOND | School 205-401 BOND | 0.9396497583 | $587,904 | $587,904 | $552.42 | | |
| ST | State School | 1.3035497053 | $587,904 | $587,904 | $766.36 | | |
| ST2 | State School Part 2 | 0.8169543533 | $587,904 | $587,904 | $480.29 | | |
| | Total Tax Rate: | 7.3209764117 | | | | | |
| | | | | Taxes w/Current Exemptions: | $4,304.02 | | |
| | | | | Taxes w/o Exemptions: | $4,304.02 | | |
Improvement / Building
| Improvement #1: | RESIDENTIAL | State Code: | Y | 2122.8 sqft | Value: | $367,904 |
| Bathrooms: | 2.5 | Bedrooms: | 2 | | Ceiling: | DRYWALL PAINTED | Exterior Wall/Cover: | CEMENT FIBER | | Floor Covering: | HARDWOOD/CARP 20-80 | Floor Structure: | WOOD W/SUBFLOOR | | Foundation: | CONCRETE | Heating: | FHA GAS | | Interior Finish: | DRYWALL PAINT | Plumbing Fixture Cnt: | 14 | | Roof Slope: | 4" IN 12" | Roof Structure/Cover: | CJ ASPHALT |
|
| | Type | Description | Class CD | Sub Class CD | Year Built | Area |
| | BAS | BASE/MAIN FLOOR | 3 | 0 | 2009 | 989.0 |
| | AGR | ATTACHED GARAGE | 3 | 0 | 2009 | 517.0 |
| | BIG | BUILT IN GARAGE | 3 | 0 | 2009 | 187.0 |
| | UPS | UPPER STORY | 3 | 0 | 2009 | 1133.8 |
| | OWP | OPEN WOOD PORCH W/STEPS | 3 | 0 | 2009 | 47.2 |
| | OWC | OPEN WOOD PORCH W/STEPS/ROOF/C | 3 | 0 | 2009 | 223.0 |
Sketch
Property Image
Land
| 1 | 14 | SQ (08001-12000) | 0.0000 | 0.00 | 0.00 | 0.00 | 1.00 | $220,000 | $0 |
Roll Value History
| 2026 | N/A | N/A | N/A | N/A | N/A |
| 2025 | $367,904 | $220,000 | $0 | $587,904 | $587,904 |
| 2024 | $372,122 | $220,000 | $0 | $592,122 | $592,122 |
| 2023 | $376,338 | $230,000 | $0 | $606,338 | $606,338 |
| 2022 | $343,650 | $200,000 | $0 | $543,650 | $543,650 |
| 2021 | $296,329 | $120,000 | $0 | $416,329 | $416,329 |
| 2020 | $287,476 | $120,000 | $0 | $407,476 | $407,476 |
| 2019 | $218,135 | $180,000 | $0 | $398,135 | $398,135 |
| 2018 | $218,731 | $150,000 | $0 | $368,731 | $368,731 |
| 2017 | $219,879 | $100,000 | $0 | $319,879 | $319,879 |
| 2016 | $222,270 | $90,000 | $0 | $312,270 | $312,270 |
| 2015 | $215,874 | $65,000 | $0 | $280,874 | $280,874 |
| 2014 | $218,195 | $65,000 | $0 | $283,195 | $283,195 |
| 2013 | $220,516 | $41,600 | $0 | $262,116 | $262,116 |
| 2012 | $222,838 | $41,600 | $0 | $264,438 | $264,438 |
| 2011 | $225,161 | $52,000 | $0 | $277,161 | $277,161 |
| 2010 | $233,032 | $52,000 | $0 | $285,032 | $285,032 |
| 2009 | $233,134 | $55,000 | $0 | $288,134 | $288,134 |
| 2008 | $0 | $55,300 | $0 | $55,300 | $55,300 |
| 2007 | $0 | $59,000 | $0 | $59,000 | $59,000 |
Deed and Sales History
| 1 | 07/07/2016 | WD | Warranty Deed | MONGER, MAXINE M | VEACH, ADAM | | | $324,000.00 | 25146 | 4402697 |
| 2 | 12/01/2015 | DECREE | Divorce Decree/Legal Separation | O'KEEFE, DENNIS J | MONGER, MAXINE M | | | $0.00 | 23101 | 4393860 |
| 3 | 12/15/2011 | WD | Warranty Deed | DEPARTMENT OF VETERAN AFFAIRS | O'KEEFE, DENNIS J | | | $217,000.00 | 6458 | 4306913 |
| 4 | 01/24/2011 | TRUSTEED | Trustee's Deed | CITIMORTGAGE INC | CITIMORTGAGE INC | | | $0.00 | 3490 | 4289650 |
| 5 | 12/17/2010 | WD | Warranty Deed | CITIMORTGAGE INC | DEPARTMENT OF VETERAN AFFAIRS | | | $0.00 | 3593 | 4290437 |
| 6 | 11/19/2010 | TRUSTEED | Trustee's Deed | SCHWAB, HENRY K & KELLEY C | CITIMORTGAGE INC | | | $242,358.00 | 3106 | 4286660 |
| 7 | 04/27/2009 | WD | Warranty Deed | KOCH, CRAIG | SCHWAB, HENRY K & KELLEY C | | | $330,000.00 | 90946 | 4250244 |
| 8 | 07/06/2005 | WD | Warranty Deed | THOMPSON, RONNIE S | KOCH, CRAIG | | | $62,500.00 | 53197 | 4139820 |
| 9 | 10/01/1990 | QCD | Quit Claim Deed | IMMER, HARRY L | THOMPSON, RONNIE S | | | $0.00 | 5827 | 90019674 |
| 10 | 10/01/1990 | WD | Warranty Deed | THOMPSON, RONNIE S | IMMER, HARRY L | | | $1,500.00 | 5828 | 90019675 |
| 11 | 01/01/1900 | OTHER | Other - Misc. Documents | Unknown | THOMPSON, RONNIE S | | | $0.00 | 0 | 0 |
Payout Agreement
| No payout information available.. |