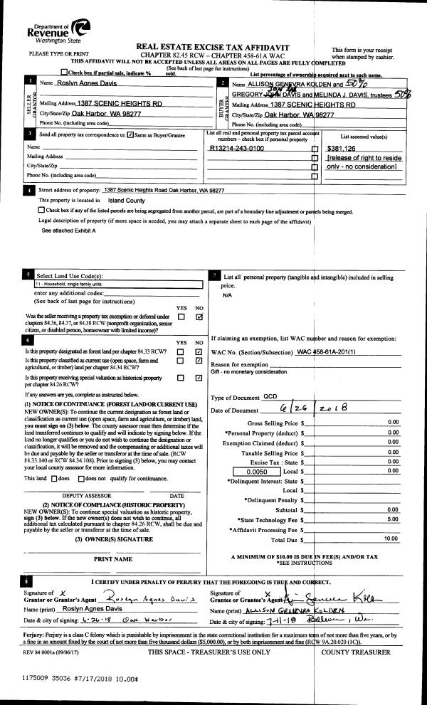
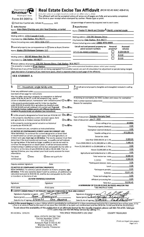
Property
Account |
| Property ID: | 245381 | Abbreviated Legal Description: | DOUBLE VU LOT 51 |
| Geographic ID: | S6495-00-00051-0 | Agent Code: | |
| Type: | Real | | |
| Tax Area: | 510 - APPRAISER-Stan/Cam Schl Dist, improved & 1 acre or less | Land Use Code | 11 |
| Open Space: | N | DFL | N |
| Historic Property: | N | Remodel Property: | N |
| Multi-Family Redevelopment: | N | | |
| Township: | | Section: | |
| Range: | |
Location |
| Address: | 956 DOUBLE VIEW DR CAMANO ISLAND, WA 98282 | Mapsco: | |
| Neighborhood: | Cycle 5 | Map ID: | 458 |
| Neighborhood CD: | 5 |
Owner |
| Name: | HILDEN, LINDA | Owner ID: | 285485 |
| Mailing Address: | 956 DOUBLE VIEW DR CAMANO ISLAND, WA 98282 | % Ownership: | 100.0000000000% |
| | | Exemptions: | SNR/DSBL |
Taxes and Assessment Details
Values
| (+) Improvement Homesite Value: | + | $362,384 | |
| (+) Improvement Non-Homesite Value: | + | $0 | |
| (+) Land Homesite Value: | + | $220,000 | |
| (+) Land Non-Homesite Value: | + | $0 | |
| (+) Curr Use (HS): | + | $0 | $0 |
| (+) Curr Use (NHS): | + | $0 | $0 |
| | | -------------------------- | |
| (=) Market Value: | = | $582,384 | |
| (–) Productivity Loss: | – | $0 | |
| | | -------------------------- | |
| (=) Subtotal: | = | $582,384 | |
| (+) Senior Appraised Value: | + | $582,384 | |
| (+) Non-Senior Appraised Value: | + | $0 | |
| | | -------------------------- | |
| (=) Total Appraised Value: | = | $582,384 | |
| (–) Senior Exemption Loss: | – | $0 | |
| (–) Exemption Loss: | – | $0 | |
| | | -------------------------- | |
| (=) Taxable Value: | = | $582,384 | |
Taxing Jurisdiction
| Owner: | HILDEN, LINDA | | |
| % Ownership: | 100.0000000000% | | |
| Total Value: | $582,384 | | |
| Tax Area: | 510 - APPRAISER-Stan/Cam Schl Dist, improved & 1 acre or less |
| CF | Conservation Futures | 0.0316035091 | $582,384 | $582,384 | $18.41 | | |
| EMS1 | Fire & Rescue Dist #1 Camano GEN (EMS) | 0.3677864386 | $582,384 | $582,384 | $214.19 | | |
| FIRE1 | Fire & Rescue Dist #1 Camano GEN | 1.2502910536 | $582,384 | $582,384 | $728.15 | | |
| FIRE1BOND | Fire & Rescue Dist #1 Camano BOND | 0.0000000000 | $582,384 | $0 | $0.00 | | |
| CE | County Current Expense | 0.3708482477 | $582,384 | $582,384 | $215.98 | | |
| CR | County Roads | 0.4584763726 | $582,384 | $582,384 | $267.01 | | |
| LCIB | Library Sno-Isle BOND (Camano Island) | 0.0000000000 | $582,384 | $0 | $0.00 | | |
| LIB | Library Sno-Isle GEN | 0.3153421757 | $582,384 | $582,384 | $183.65 | | |
| SCH205_401 | School 205-401 Enrichment | 0.0000000000 | $582,384 | $0 | $0.00 | | |
| SCH205BOND | School 205-401 BOND | 0.0000000000 | $582,384 | $0 | $0.00 | | |
| ST | State School | 1.3035497053 | $582,384 | $582,384 | $759.17 | | |
| ST2 | State School Part 2 | 0.0000000000 | $582,384 | $0 | $0.00 | | |
| | Total Tax Rate: | 4.0978975026 | | | | | |
| | | | | Taxes w/Current Exemptions: | $2,386.56 | | |
| | | | | Taxes w/o Exemptions: | $4,263.63 | | |
Improvement / Building
| Improvement #1: | RESIDENTIAL | State Code: | Y | 1736.5 sqft | Value: | $362,384 |
| Bathrooms: | 2.5 | Bedrooms: | 3 | | Ceiling: | DRYWALL PAINTED | Exterior Wall/Cover: | CEMENT FIBER | | Floor Covering: | VINYL/HARDWOOD 60-40 | Floor Structure: | WOOD W/SUBFLOOR | | Foundation: | CONCRETE | Heating: | FHA GAS | | Interior Finish: | DRYWALL PAINT | Plumbing Fixture Cnt: | 11 | | Roof Slope: | 8" IN 12" | Roof Structure/Cover: | CJ ASPHALT |
|
| | Type | Description | Class CD | Sub Class CD | Year Built | Area |
| | BAS | BASE/MAIN FLOOR | 3 | 0 | 2009 | 1736.5 |
| | OP4 | OPEN PORCH W/CEILING-ROOF | 3 | 0 | 2009 | 34.0 |
| | AGR | ATTACHED GARAGE | 3 | 0 | 2009 | 507.0 |
| | OWP | OPEN WOOD PORCH W/STEPS | 3 | 0 | 2009 | 273.0 |
Sketch
Property Image
Land
| 1 | 14 | SQ (08001-12000) | 0.0000 | 0.00 | 0.00 | 0.00 | 1.00 | $220,000 | $0 |
Roll Value History
| 2026 | N/A | N/A | N/A | N/A | N/A |
| 2025 | $362,384 | $220,000 | $0 | $582,384 | $582,384 |
| 2024 | $365,429 | $220,000 | $0 | $585,429 | $585,429 |
| 2023 | $368,677 | $230,000 | $0 | $598,677 | $598,677 |
| 2022 | $330,891 | $200,000 | $0 | $530,891 | $530,891 |
| 2021 | $285,343 | $120,000 | $0 | $405,343 | $405,343 |
| 2020 | $276,996 | $120,000 | $0 | $396,996 | $396,996 |
| 2019 | $203,926 | $180,000 | $0 | $383,926 | $383,926 |
| 2018 | $204,485 | $150,000 | $0 | $354,485 | $354,485 |
| 2017 | $205,562 | $100,000 | $0 | $305,562 | $305,562 |
| 2016 | $207,796 | $90,000 | $0 | $297,796 | $297,796 |
| 2015 | $196,781 | $65,000 | $0 | $261,781 | $261,781 |
| 2014 | $198,895 | $65,000 | $0 | $263,895 | $263,895 |
| 2013 | $201,011 | $41,600 | $0 | $242,611 | $242,611 |
| 2012 | $203,127 | $41,600 | $0 | $244,727 | $244,727 |
| 2011 | $205,242 | $52,000 | $0 | $257,242 | $257,242 |
| 2010 | $210,780 | $52,000 | $0 | $262,780 | $262,780 |
| 2009 | $223,607 | $50,000 | $0 | $273,607 | $273,607 |
| 2008 | $37,127 | $61,000 | $0 | $98,127 | $98,127 |
| 2007 | $37,127 | $61,000 | $0 | $98,127 | $98,127 |
Deed and Sales History
| 1 | 06/11/2018 | WD | Warranty Deed | CULP, ROGER D | HILDEN, LINDA | | | $400,000.00 | 34581 | 4446416 |
| 2 | 07/21/2009 | WD | Warranty Deed | RAY, JAMES L | CULP, ROGER D | | | $260,000.00 | 91655 | 4256932 |
| 3 | 05/10/2005 | WD | Warranty Deed | IMMER, HARRY L | RAY, JAMES L | | | $59,950.00 | 52333 | 4135363 |
| 4 | 04/28/2005 | SEG | DNU - Segregation | IMMER, HARRY L | IMMER, HARRY L | | | $0.00 | 70530 | 0 |
| 5 | 04/01/1988 | WD | Warranty Deed | FRITH, WINFIELD S | IMMER, HARRY L | | | $2,500.00 | 81260 | 88004783 |
| 6 | 01/01/1900 | OTHER | Other - Misc. Documents | Unknown | FRITH, WINFIELD S | | | $0.00 | 0 | 0 |
Payout Agreement
| No payout information available.. |