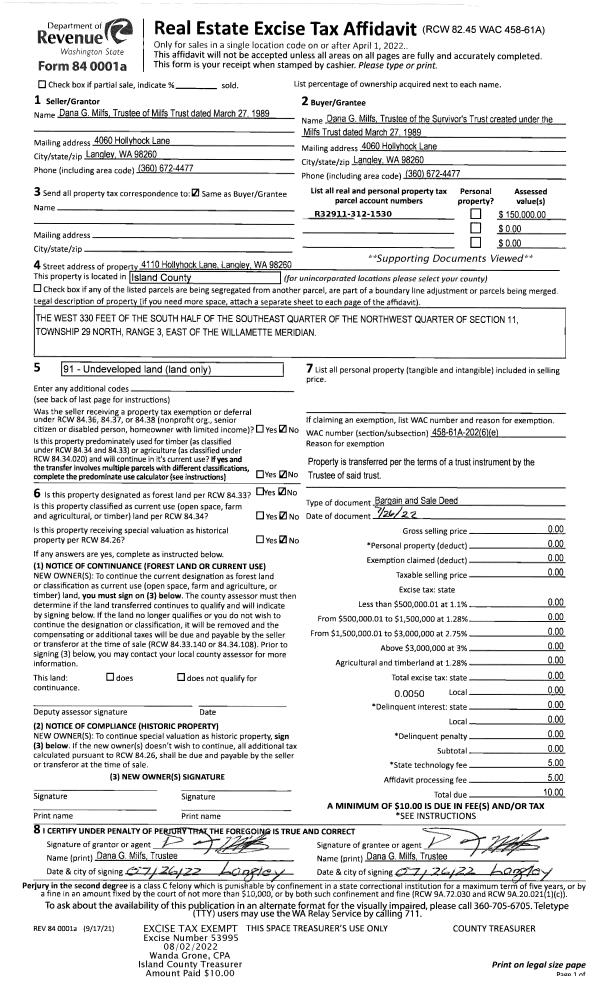
Property
Account |
| Property ID: | 245425 | Abbreviated Legal Description: | DOUBLE VU LOTS 54, 55 & 56 |
| Geographic ID: | S6495-00-00056-0 | Agent Code: | |
| Type: | Real | | |
| Tax Area: | 510 - APPRAISER-Stan/Cam Schl Dist, improved & 1 acre or less | Land Use Code | 11 |
| Open Space: | N | DFL | N |
| Historic Property: | N | Remodel Property: | N |
| Multi-Family Redevelopment: | N | | |
| Township: | | Section: | |
| Range: | |
Location |
| Address: | | Mapsco: | |
| Neighborhood: | Cycle 5 | Map ID: | 458 |
| Neighborhood CD: | 5 |
Owner |
| Name: | FIRMAN, WAYNE A | Owner ID: | 193396 |
| Mailing Address: | NICKI S FIRMAN 936 DOUBLE VIEW DR CAMANO ISLAND, WA 98282-8586 | % Ownership: | 100.0000000000% |
| | | Exemptions: | |
Taxes and Assessment Details
Values
| (+) Improvement Homesite Value: | + | $0 | |
| (+) Improvement Non-Homesite Value: | + | $282,411 | |
| (+) Land Homesite Value: | + | $0 | |
| (+) Land Non-Homesite Value: | + | $220,000 | |
| (+) Curr Use (HS): | + | $0 | $0 |
| (+) Curr Use (NHS): | + | $0 | $0 |
| | | -------------------------- | |
| (=) Market Value: | = | $502,411 | |
| (–) Productivity Loss: | – | $0 | |
| | | -------------------------- | |
| (=) Subtotal: | = | $502,411 | |
| (+) Senior Appraised Value: | + | $0 | |
| (+) Non-Senior Appraised Value: | + | $502,411 | |
| | | -------------------------- | |
| (=) Total Appraised Value: | = | $502,411 | |
| (–) Senior Exemption Loss: | – | $0 | |
| (–) Exemption Loss: | – | $0 | |
| | | -------------------------- | |
| (=) Taxable Value: | = | $502,411 | |
Taxing Jurisdiction
| Owner: | FIRMAN, WAYNE A | | |
| % Ownership: | 100.0000000000% | | |
| Total Value: | $502,411 | | |
| Tax Area: | 510 - APPRAISER-Stan/Cam Schl Dist, improved & 1 acre or less |
| CF | Conservation Futures | 0.0316035091 | $502,411 | $502,411 | $15.88 | | |
| EMS1 | Fire & Rescue Dist #1 Camano GEN (EMS) | 0.3677864386 | $502,411 | $502,411 | $184.78 | | |
| FIRE1 | Fire & Rescue Dist #1 Camano GEN | 1.2502910536 | $502,411 | $502,411 | $628.16 | | |
| FIRE1BOND | Fire & Rescue Dist #1 Camano BOND | 0.1570001679 | $502,411 | $502,411 | $78.88 | | |
| CE | County Current Expense | 0.3708482477 | $502,411 | $502,411 | $186.32 | | |
| CR | County Roads | 0.4584763726 | $502,411 | $502,411 | $230.34 | | |
| LCIB | Library Sno-Isle BOND (Camano Island) | 0.0396325772 | $502,411 | $502,411 | $19.91 | | |
| LIB | Library Sno-Isle GEN | 0.3153421757 | $502,411 | $502,411 | $158.43 | | |
| SCH205_401 | School 205-401 Enrichment | 1.2698420524 | $502,411 | $502,411 | $637.98 | | |
| SCH205BOND | School 205-401 BOND | 0.9396497583 | $502,411 | $502,411 | $472.09 | | |
| ST | State School | 1.3035497053 | $502,411 | $502,411 | $654.92 | | |
| ST2 | State School Part 2 | 0.8169543533 | $502,411 | $502,411 | $410.45 | | |
| | Total Tax Rate: | 7.3209764117 | | | | | |
| | | | | Taxes w/Current Exemptions: | $3,678.14 | | |
| | | | | Taxes w/o Exemptions: | $3,678.14 | | |
Improvement / Building
| Improvement #1: | RESIDENTIAL | State Code: | Y | 1390.0 sqft | Value: | $282,411 |
| Bathrooms: | 2 | Bedrooms: | 3 | | Ceiling: | DRYWALL PAINTED | Exterior Wall/Cover: | PLY/HARDBOARD T-111 | | Floor Covering: | HARDWOOD/CARP 20-80 | Floor Structure: | WOOD W/SUBFLOOR | | Foundation: | CONCRETE | Heating: | WALL HEAT ELECTRIC | | Interior Finish: | DRYWALL PAINT | Plumbing Fixture Cnt: | 10 | | Roof Slope: | 4" IN 12" | Roof Structure/Cover: | CJ ASPHALT |
|
| | Type | Description | Class CD | Sub Class CD | Year Built | Area |
| | BAS | BASE/MAIN FLOOR | 3 | 0 | 1993 | 1390.0 |
| | AGR | ATTACHED GARAGE | 3 | 0 | 1993 | 400.0 |
| | OWP | OPEN WOOD PORCH W/STEPS | 3 | 0 | 1993 | 144.0 |
| | OWP | OPEN WOOD PORCH W/STEPS | 3 | 0 | 1993 | 288.0 |
| | OWC | OPEN WOOD PORCH W/STEPS/ROOF/C | 3 | 0 | 1993 | 144.0 |
Sketch
Property Image
Land
| 1 | 16 | AC (00.51-01.00) | 0.5900 | 25700.40 | 0.00 | 0.00 | 1.00 | $220,000 | $0 |
Roll Value History
| 2026 | N/A | N/A | N/A | N/A | N/A |
| 2025 | $282,411 | $220,000 | $0 | $502,411 | $502,411 |
| 2024 | $285,647 | $220,000 | $0 | $505,647 | $505,647 |
| 2023 | $288,882 | $230,000 | $0 | $518,882 | $518,882 |
| 2022 | $263,786 | $210,000 | $0 | $473,786 | $473,786 |
| 2021 | $214,715 | $140,000 | $0 | $354,715 | $354,715 |
| 2020 | $208,806 | $140,000 | $0 | $348,806 | $348,806 |
| 2019 | $149,592 | $200,000 | $0 | $349,592 | $349,592 |
| 2018 | $150,026 | $200,000 | $0 | $350,026 | $350,026 |
| 2017 | $150,893 | $100,000 | $0 | $250,893 | $250,893 |
| 2016 | $152,627 | $100,000 | $0 | $252,627 | $252,627 |
| 2015 | $137,619 | $65,000 | $0 | $202,619 | $202,619 |
| 2014 | $139,350 | $65,000 | $0 | $204,350 | $204,350 |
| 2013 | $141,079 | $41,600 | $0 | $182,679 | $182,679 |
| 2012 | $142,810 | $41,600 | $0 | $184,410 | $184,410 |
| 2011 | $144,541 | $52,000 | $0 | $196,541 | $196,541 |
| 2010 | $153,485 | $52,000 | $0 | $205,485 | $205,485 |
| 2009 | $150,377 | $90,000 | $0 | $240,377 | $240,377 |
| 2008 | $152,170 | $99,000 | $0 | $251,170 | $251,170 |
| 2007 | $153,964 | $99,000 | $0 | $252,964 | $252,964 |
Deed and Sales History
| 1 | 09/22/2004 | WD | Warranty Deed | SATHER, BEVERLY J | FIRMAN, WAYNE A | | | $199,950.00 | 44546 | 4114081 |
| 2 | 08/10/2000 | BLA | DNU - Boundary Line Adjustment | SATHER, BEVERLY J | SATHER, BEVERLY J | | | $0.00 | 68733 | 20005026 |
| 3 | 03/01/1994 | OTHER | Other - Misc. Documents | KOCH, RICHARD M | KOCH, RICHARD M | | | $0.00 | 65814 | 94006233 |
| 4 | 03/01/1994 | WD | Warranty Deed | KOCH, RICHARD M | SATHER, BEVERLY J | | | $119,000.00 | 41211 | 94007665 |
| 5 | 04/01/1993 | WD | Warranty Deed | MUNDAY, CHERYL M | KOCH, RICHARD M | | | $17,000.00 | 31803 | 93009441 |
| 6 | 03/01/1992 | OTHER | Other - Misc. Documents | ELLINGSON, MYRON | MUNDAY, CHERYL M | | | $0.00 | 64722 | 0 |
| 7 | 01/01/1900 | OTHER | Other - Misc. Documents | Unknown | ELLINGSON, MYRON | | | $0.00 | 0 | 0 |
Payout Agreement
| No payout information available.. |