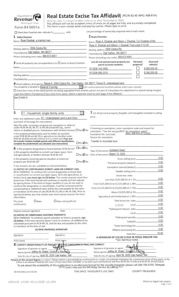
Property
Account |
| Property ID: | 24547 | Abbreviated Legal Description: | 16 - W264.87' OF E429.87' GL5 NLY RD |
| Geographic ID: | R13222-235-3670 | Agent Code: | |
| Type: | Real | | |
| Tax Area: | 112 - APPRAISER-OH Schl Dist, outside OH, improved, greater than 1 acre | Land Use Code | 11 |
| Open Space: | N | DFL | N |
| Historic Property: | N | Remodel Property: | N |
| Multi-Family Redevelopment: | N | | |
| Township: | 32 | Section: | 22 |
| Range: | R1 |
Location |
| Address: | 859 SCENIC HEIGHTS RD OAK HARBOR, WA 98277 | Mapsco: | |
| Neighborhood: | Cycle 2 | Map ID: | 154 |
| Neighborhood CD: | 2 |
Owner |
| Name: | MUZZALL, RONALD E | Owner ID: | 71230 |
| Mailing Address: | SHELLY L MUZZALL 938 SCENIC HEIGHTS RD OAK HARBOR, WA 98277-7639 | % Ownership: | 100.0000000000% |
| | | Exemptions: | |
Taxes and Assessment Details
Values
| (+) Improvement Homesite Value: | + | $0 | |
| (+) Improvement Non-Homesite Value: | + | $233,000 | |
| (+) Land Homesite Value: | + | $0 | |
| (+) Land Non-Homesite Value: | + | $325,713 | |
| (+) Curr Use (HS): | + | $0 | $0 |
| (+) Curr Use (NHS): | + | $0 | $0 |
| | | -------------------------- | |
| (=) Market Value: | = | $558,713 | |
| (–) Productivity Loss: | – | $0 | |
| | | -------------------------- | |
| (=) Subtotal: | = | $558,713 | |
| (+) Senior Appraised Value: | + | $0 | |
| (+) Non-Senior Appraised Value: | + | $558,713 | |
| | | -------------------------- | |
| (=) Total Appraised Value: | = | $558,713 | |
| (–) Senior Exemption Loss: | – | $0 | |
| (–) Exemption Loss: | – | $0 | |
| | | -------------------------- | |
| (=) Taxable Value: | = | $558,713 | |
Taxing Jurisdiction
| Owner: | MUZZALL, RONALD E | | |
| % Ownership: | 100.0000000000% | | |
| Total Value: | $558,713 | | |
| Tax Area: | 112 - APPRAISER-OH Schl Dist, outside OH, improved, greater than 1 acre |
| CF | Conservation Futures | 0.0316035091 | $558,713 | $558,713 | $17.66 | | |
| CEM1 | Cemetery #1 | 0.0040320932 | $558,713 | $558,713 | $2.25 | | |
| FIRE2 | Fire & Rescue Dist #2 N Whidbey GEN | 0.5475949600 | $558,713 | $558,713 | $305.95 | | |
| HOBOND | Hospital BOND | 0.1910887512 | $558,713 | $558,713 | $106.76 | | |
| HOGEN | Hospital GEN | 0.3902502903 | $558,713 | $558,713 | $218.04 | | |
| CE | County Current Expense | 0.3708482477 | $558,713 | $558,713 | $207.20 | | |
| CR | County Roads | 0.4584763726 | $558,713 | $558,713 | $256.16 | | |
| ISLANDEMS | Hospital GEN (EMS) | 0.5000000000 | $558,713 | $558,713 | $279.36 | | |
| LIB | Library Sno-Isle GEN | 0.3153421757 | $558,713 | $558,713 | $176.19 | | |
| NWHIDPRMT | P & R N Whidbey GEN | 0.2004466701 | $558,713 | $558,713 | $111.99 | | |
| SCH201MO | School 201 Enrichment | 1.8559231640 | $558,713 | $558,713 | $1,036.93 | | |
| ST | State School | 1.3035497053 | $558,713 | $558,713 | $728.31 | | |
| ST2 | State School Part 2 | 0.8169543533 | $558,713 | $558,713 | $456.44 | | |
| | Total Tax Rate: | 6.9861102925 | | | | | |
| | | | | Taxes w/Current Exemptions: | $3,903.24 | | |
| | | | | Taxes w/o Exemptions: | $3,903.24 | | |
Improvement / Building
| Improvement #1: | RESIDENTIAL | State Code: | Y | 1560.0 sqft | Value: | $233,000 |
| Bathrooms: | 2 | Bedrooms: | 4 | | Ceiling: | DRYWALL PAINTED | Exterior Wall/Cover: | WOOD SIDING | | Floor Covering: | CARPET/VINYL 80-20 | Floor Structure: | WOOD W/SUBFLOOR | | Foundation: | CONCRETE BLOCKS | Heating: | BASEBOARD ELECTRIC | | Interior Finish: | DRYWALL PAINT | Plumbing Fixture Cnt: | 9 | | Roof Slope: | 4" IN 12" | Roof Structure/Cover: | CJ ALUMINIUM HEAVY |
|
| | Type | Description | Class CD | Sub Class CD | Year Built | Area |
| | BAS | BASE/MAIN FLOOR | 3 | 0 | 1973 | 1560.0 |
| | OWP | OPEN WOOD PORCH W/STEPS | 3 | 0 | 1973 | 200.0 |
| | UTY | STORAGE/UTILITY | 3 | 0 | 1973 | 1440.0 |
| | DGR | DETACHED GARAGE | 3 | 0 | 1973 | 768.0 |
| | CPD | OPEN CARPORT DIRT FLOOR | 3 | 0 | 1973 | 744.0 |
Sketch
| No sketches available for this property. |
Property Image
Land
| 1 | HS | HOMESITE | 1.0000 | 43560.00 | 0.00 | 0.00 | 1.00 | $270,000 | $0 |
| 2 | 91 | UNDEVELOPED LAND-METES AND BOUNDS | 3.0000 | 130680.00 | 0.00 | 0.00 | 1.00 | $55,713 | $0 |
Roll Value History
| 2026 | N/A | N/A | N/A | N/A | N/A |
| 2025 | $233,000 | $325,713 | $0 | $558,713 | $558,713 |
| 2024 | $218,871 | $320,000 | $0 | $538,871 | $538,871 |
| 2023 | $222,445 | $310,000 | $0 | $532,445 | $532,445 |
| 2022 | $204,658 | $290,000 | $0 | $494,658 | $494,658 |
| 2021 | $180,784 | $220,000 | $0 | $400,784 | $400,784 |
| 2020 | $176,860 | $200,000 | $0 | $376,860 | $376,860 |
| 2019 | $128,332 | $250,000 | $0 | $378,332 | $378,332 |
| 2018 | $121,901 | $210,000 | $0 | $331,901 | $331,901 |
| 2017 | $122,818 | $210,000 | $0 | $332,818 | $332,818 |
| 2016 | $124,655 | $200,000 | $0 | $324,655 | $324,655 |
| 2015 | $126,489 | $150,000 | $0 | $276,489 | $276,489 |
| 2014 | $128,326 | $150,000 | $0 | $278,326 | $278,326 |
| 2013 | $130,161 | $133,200 | $0 | $263,361 | $263,361 |
| 2012 | $143,183 | $133,200 | $0 | $276,383 | $276,383 |
| 2011 | $144,796 | $148,000 | $0 | $292,796 | $292,796 |
| 2010 | $147,398 | $148,000 | $0 | $295,398 | $295,398 |
| 2009 | $153,156 | $180,000 | $0 | $333,156 | $333,156 |
| 2008 | $160,303 | $213,840 | $0 | $374,143 | $374,143 |
| 2007 | $162,716 | $194,400 | $0 | $357,116 | $357,116 |
Deed and Sales History
| 1 | 07/30/2007 | WD | Warranty Deed | MCINTYRE, JAMES R | MUZZALL, RONALD E | | | $375,000.00 | 72620 | 4208632 |
| 2 | 09/01/1985 | PACD | Purchaser's Assignment | STREET, WILLIAM D | MCINTYRE, JAMES R | | | $87,000.00 | 52797 | 85011064 |
| 3 | 03/01/1981 | REC | Real Estate Contract | NELSON, RICHARD J | STREET, WILLIAM D | | | $55,000.00 | 10889 | 381061 |
| 4 | 01/01/1900 | OTHER | Other - Misc. Documents | Unknown | NELSON, RICHARD J | | | $0.00 | 0 | 0 |
Payout Agreement
| No payout information available.. |