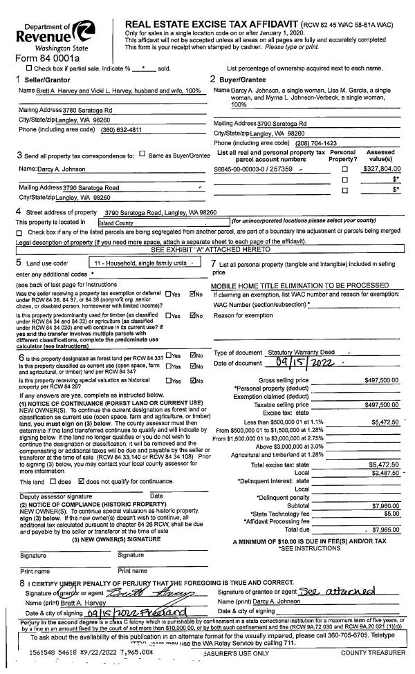
Property
Account |
| Property ID: | 245540 | Abbreviated Legal Description: | DOUBLE VU LOTS 68 & 69 |
| Geographic ID: | S6495-00-00068-0 | Agent Code: | |
| Type: | Real | | |
| Tax Area: | 510 - APPRAISER-Stan/Cam Schl Dist, improved & 1 acre or less | Land Use Code | 11 |
| Open Space: | N | DFL | N |
| Historic Property: | N | Remodel Property: | N |
| Multi-Family Redevelopment: | N | | |
| Township: | | Section: | |
| Range: | |
Location |
| Address: | 958 DOLPHIN ST CAMANO ISLAND, WA 98282 | Mapsco: | |
| Neighborhood: | Cycle 5 | Map ID: | 458 |
| Neighborhood CD: | 5 |
Owner |
| Name: | RAINS, RONALD S | Owner ID: | 310112 |
| Mailing Address: | ERNESTINE P ALEXANDER 958 DOLPHIN ST CAMANO ISLAND, WA 98282 | % Ownership: | 100.0000000000% |
| | | Exemptions: | |
Taxes and Assessment Details
Values
| (+) Improvement Homesite Value: | + | $0 | |
| (+) Improvement Non-Homesite Value: | + | $610,693 | |
| (+) Land Homesite Value: | + | $0 | |
| (+) Land Non-Homesite Value: | + | $220,000 | |
| (+) Curr Use (HS): | + | $0 | $0 |
| (+) Curr Use (NHS): | + | $0 | $0 |
| | | -------------------------- | |
| (=) Market Value: | = | $830,693 | |
| (–) Productivity Loss: | – | $0 | |
| | | -------------------------- | |
| (=) Subtotal: | = | $830,693 | |
| (+) Senior Appraised Value: | + | $0 | |
| (+) Non-Senior Appraised Value: | + | $830,693 | |
| | | -------------------------- | |
| (=) Total Appraised Value: | = | $830,693 | |
| (–) Senior Exemption Loss: | – | $0 | |
| (–) Exemption Loss: | – | $0 | |
| | | -------------------------- | |
| (=) Taxable Value: | = | $830,693 | |
Taxing Jurisdiction
| Owner: | RAINS, RONALD S | | |
| % Ownership: | 100.0000000000% | | |
| Total Value: | $830,693 | | |
| Tax Area: | 510 - APPRAISER-Stan/Cam Schl Dist, improved & 1 acre or less |
| CF | Conservation Futures | 0.0316035091 | $830,693 | $830,693 | $26.25 | | |
| EMS1 | Fire & Rescue Dist #1 Camano GEN (EMS) | 0.3677864386 | $830,693 | $830,693 | $305.52 | | |
| FIRE1 | Fire & Rescue Dist #1 Camano GEN | 1.2502910536 | $830,693 | $830,693 | $1,038.61 | | |
| FIRE1BOND | Fire & Rescue Dist #1 Camano BOND | 0.1570001679 | $830,693 | $830,693 | $130.42 | | |
| CE | County Current Expense | 0.3708482477 | $830,693 | $830,693 | $308.06 | | |
| CR | County Roads | 0.4584763726 | $830,693 | $830,693 | $380.85 | | |
| LCIB | Library Sno-Isle BOND (Camano Island) | 0.0396325772 | $830,693 | $830,693 | $32.92 | | |
| LIB | Library Sno-Isle GEN | 0.3153421757 | $830,693 | $830,693 | $261.95 | | |
| SCH205_401 | School 205-401 Enrichment | 1.2698420524 | $830,693 | $830,693 | $1,054.85 | | |
| SCH205BOND | School 205-401 BOND | 0.9396497583 | $830,693 | $830,693 | $780.56 | | |
| ST | State School | 1.3035497053 | $830,693 | $830,693 | $1,082.85 | | |
| ST2 | State School Part 2 | 0.8169543533 | $830,693 | $830,693 | $678.64 | | |
| | Total Tax Rate: | 7.3209764117 | | | | | |
| | | | | Taxes w/Current Exemptions: | $6,081.48 | | |
| | | | | Taxes w/o Exemptions: | $6,081.48 | | |
Improvement / Building
| Improvement #1: | RESIDENTIAL | State Code: | Y | 2462.1 sqft | Value: | $610,693 |
| Bathrooms: | 3.5 | Bedrooms: | 3 | | Ceiling: | DRYWALL PAINTED | Cooling: | HEAT PUMP/CONV/V | | Exterior Wall/Cover: | CEMENT FIBER | Floor Covering: | HARDWOOD/CARP 60-40 | | Floor Structure: | WOOD W/SUBFLOOR | Foundation: | CONCRETE | | Interior Finish: | DRYWALL PAINT | Plumbing Fixture Cnt: | 18 | | Roof Slope: | 8" IN 12" | Roof Structure/Cover: | CJ ASPHALT |
|
| | Type | Description | Class CD | Sub Class CD | Year Built | Area |
| | BAS | BASE/MAIN FLOOR | 4 | 0 | 2007 | 1203.0 |
| | OP4 | OPEN PORCH W/CEILING-ROOF | 4 | 0 | 2007 | 42.0 |
| | AGR | ATTACHED GARAGE | 4 | 0 | 2007 | 402.0 |
| | BIG | BUILT IN GARAGE | 4 | 0 | 2007 | 399.0 |
| | UPS | UPPER STORY | 4 | 0 | 2007 | 1259.1 |
| | OWP | OPEN WOOD PORCH W/STEPS | 4 | 0 | 2007 | 68.3 |
| | OWC | OPEN WOOD PORCH W/STEPS/ROOF/C | 4 | 0 | 2007 | 89.3 |
Sketch
Property Image
Land
| 1 | 16 | AC (00.51-01.00) | 0.0000 | 0.00 | 0.00 | 0.00 | 1.00 | $220,000 | $0 |
Roll Value History
| 2026 | N/A | N/A | N/A | N/A | N/A |
| 2025 | $610,693 | $220,000 | $0 | $830,693 | $830,693 |
| 2024 | $615,401 | $220,000 | $0 | $835,401 | $835,401 |
| 2023 | $620,444 | $230,000 | $0 | $850,444 | $850,444 |
| 2022 | $566,388 | $210,000 | $0 | $776,388 | $776,388 |
| 2021 | $467,286 | $140,000 | $0 | $607,286 | $607,286 |
| 2020 | $452,857 | $140,000 | $0 | $592,857 | $592,857 |
| 2019 | $337,189 | $200,000 | $0 | $537,189 | $537,189 |
| 2018 | $338,114 | $200,000 | $0 | $538,114 | $538,114 |
| 2017 | $338,469 | $100,000 | $0 | $438,469 | $438,469 |
| 2016 | $342,147 | $100,000 | $0 | $442,147 | $442,147 |
| 2015 | $321,744 | $65,000 | $0 | $386,744 | $386,744 |
| 2014 | $325,246 | $65,000 | $0 | $390,246 | $390,246 |
| 2013 | $328,749 | $41,600 | $0 | $370,349 | $370,349 |
| 2012 | $332,252 | $41,600 | $0 | $373,852 | $373,852 |
| 2011 | $335,753 | $52,000 | $0 | $387,753 | $387,753 |
| 2010 | $347,212 | $52,000 | $0 | $399,212 | $399,212 |
| 2009 | $343,457 | $90,000 | $0 | $433,457 | $433,457 |
| 2008 | $343,613 | $99,000 | $0 | $442,613 | $442,613 |
| 2007 | $0 | $82,080 | $0 | $82,080 | $82,080 |
Deed and Sales History
| 1 | 06/23/2023 | WD | Warranty Deed | RAINS JTWROS, RONALD S | RAINS, RONALD S | | | $0.00 | 58018 | 4564868 |
| 2 | 06/20/2018 | WD | Warranty Deed | SWANSON, ALAN C | RAINS JTWROS, RONALD S | | | $535,000.00 | 34643 | 4446672 |
| 3 | 03/23/2006 | BLA | DNU - Boundary Line Adjustment | SWANSON, ALAN C | SWANSON, ALAN C | | | $0.00 | 70865 | 4115229 |
| 4 | 09/20/2004 | WD | Warranty Deed | MOSS, A R | SWANSON, ALAN C | | | $70,000.00 | 44658 | 4114543 |
| 5 | 09/20/2004 | ESTSEPPROP | Establish Separate Property | MOSS, A R | MOSS, A R | | | $0.00 | 44657 | 4114542 |
| 6 | 01/01/1900 | OTHER | Other - Misc. Documents | Unknown | MOSS, A R | | | $0.00 | 0 | 0 |
Payout Agreement
| No payout information available.. |