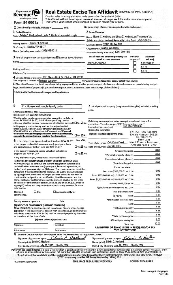
Property
Account |
| Property ID: | 24556 | Abbreviated Legal Description: | 5 - GL1 LY NLY OF CO RD & E165'OF GL5 LY NLY OF CO RD TGW AGRICULTURAL EZ AF#4345173/4350570 |
| Geographic ID: | R13222-241-4470 | Agent Code: | |
| Type: | Real | | |
| Tax Area: | 112 - APPRAISER-OH Schl Dist, outside OH, improved, greater than 1 acre | Land Use Code | 83 |
| Open Space: | Y | DFL | N |
| Historic Property: | N | Remodel Property: | N |
| Multi-Family Redevelopment: | N | | |
| Township: | 32 | Section: | 22 |
| Range: | R1 |
Location |
| Address: | 875 SCENIC HEIGHTS RD OAK HARBOR, WA 98277 | Mapsco: | |
| Neighborhood: | Cycle 2 | Map ID: | 154 |
| Neighborhood CD: | 2 |
Owner |
| Name: | MUZZALL, RONALD E | Owner ID: | 196673 |
| Mailing Address: | SHELLY L MUZZALL 938 SCENIC HEIGHTS RD OAK HARBOR, WA 98277-7639 | % Ownership: | 100.0000000000% |
| | | Exemptions: | |
Taxes and Assessment Details
Values
| (+) Improvement Homesite Value: | + | $0 | |
| (+) Improvement Non-Homesite Value: | + | $185,688 | |
| (+) Land Homesite Value: | + | $0 | |
| (+) Land Non-Homesite Value: | + | $3,000 | |
| (+) Curr Use (HS): | + | $0 | $0 |
| (+) Curr Use (NHS): | + | $43,320 | $8,821 |
| | | -------------------------- | |
| (=) Market Value: | = | $232,008 | |
| (–) Productivity Loss: | – | $34,499 | |
| | | -------------------------- | |
| (=) Subtotal: | = | $197,509 | |
| (+) Senior Appraised Value: | + | $0 | |
| (+) Non-Senior Appraised Value: | + | $197,509 | |
| | | -------------------------- | |
| (=) Total Appraised Value: | = | $197,509 | |
| (–) Senior Exemption Loss: | – | $0 | |
| (–) Exemption Loss: | – | $0 | |
| | | -------------------------- | |
| (=) Taxable Value: | = | $197,509 | |
Taxing Jurisdiction
| Owner: | MUZZALL, RONALD E | | |
| % Ownership: | 100.0000000000% | | |
| Total Value: | $232,008 | | |
| Tax Area: | 112 - APPRAISER-OH Schl Dist, outside OH, improved, greater than 1 acre |
| CF | Conservation Futures | 0.0316035091 | $197,509 | $197,509 | $6.24 | | |
| CEM1 | Cemetery #1 | 0.0040320932 | $197,509 | $197,509 | $0.80 | | |
| FIRE2 | Fire & Rescue Dist #2 N Whidbey GEN | 0.5475949600 | $197,509 | $197,509 | $108.15 | | |
| HOBOND | Hospital BOND | 0.1910887512 | $197,509 | $197,509 | $37.74 | | |
| HOGEN | Hospital GEN | 0.3902502903 | $197,509 | $197,509 | $77.08 | | |
| CE | County Current Expense | 0.3708482477 | $197,509 | $197,509 | $73.25 | | |
| CR | County Roads | 0.4584763726 | $197,509 | $197,509 | $90.55 | | |
| ISLANDEMS | Hospital GEN (EMS) | 0.5000000000 | $197,509 | $197,509 | $98.75 | | |
| LIB | Library Sno-Isle GEN | 0.3153421757 | $197,509 | $197,509 | $62.28 | | |
| NWHIDPRMT | P & R N Whidbey GEN | 0.2004466701 | $197,509 | $197,509 | $39.59 | | |
| SCH201MO | School 201 Enrichment | 1.8559231640 | $197,509 | $197,509 | $366.56 | | |
| ST | State School | 1.3035497053 | $197,509 | $197,509 | $257.46 | | |
| ST2 | State School Part 2 | 0.8169543533 | $197,509 | $197,509 | $161.36 | | |
| | Total Tax Rate: | 6.9861102925 | | | | | |
| | | | | Taxes w/Current Exemptions: | $1,379.81 | | |
| | | | | Taxes w/o Exemptions: | $1,379.81 | | |
Improvement / Building
| Improvement #1: | RESIDENTIAL | State Code: | Y | 0.0 sqft | Value: | $185,688 |
| | Type | Description | Class CD | Sub Class CD | Year Built | Area |
| | oEQU | EQUIP SHED | 2 | 0 | 1942 | 2080.0 |
| | oCB1 | CABIN UNFI | 2 | 0 | 1942 | 640.0 |
| | oEQU | EQUIP SHED | 2 | 0 | 1942 | 2100.0 |
| | oEQU | EQUIP SHED | 2 | 0 | 1942 | 660.0 |
| | oBAR | BARN | 2 | 0 | 1942 | 5096.0 |
| | oLFS | LOAF SHED | 2 | 0 | 1942 | 4284.0 |
| | oLFS | LOAF SHED | 2 | 0 | 1942 | 4256.0 |
| | oHAY | HAY SHED | 2 | 0 | 1942 | 4800.0 |
| | oHAY | HAY SHED | 2 | 0 | 1942 | 4800.0 |
| | oEQU | EQUIP SHED | 2 | 0 | 1942 | 3800.0 |
| | oLFS | LOAF SHED | 2 | 0 | 1942 | 1920.0 |
| | oUTI | UTILITY | 2 | 0 | 1942 | 252.0 |
| | oCB1 | CABIN UNFI | 2 | 0 | 1942 | 431.0 |
| | oEQU | EQUIP SHED | 2 | 0 | 1942 | 480.0 |
| | oEQU | EQUIP SHED | 2 | 0 | 1942 | 448.0 |
Sketch
| No sketches available for this property. |
Property Image
Land
| 1 | 83 | OPEN AGRICULTURE | 14.4400 | 629006.40 | 0.00 | 0.00 | 1.00 | $43,320 | $8,821 |
| 2 | 81 | AGRICULTURE (NOT CLASSIFIED UNDER CURRENT USE) | 1.0000 | 43560.00 | 0.00 | 0.00 | 1.00 | $3,000 | $0 |
Roll Value History
| 2026 | N/A | N/A | N/A | N/A | N/A |
| 2025 | $185,688 | $46,320 | $8,821 | $197,509 | $197,509 |
| 2024 | $179,865 | $46,320 | $8,821 | $191,686 | $191,686 |
| 2023 | $198,955 | $46,320 | $8,821 | $210,776 | $210,776 |
| 2022 | $197,149 | $46,320 | $8,821 | $208,970 | $208,970 |
| 2021 | $194,896 | $46,320 | $8,821 | $206,717 | $206,717 |
| 2020 | $194,973 | $46,320 | $8,821 | $206,794 | $206,794 |
| 2019 | $190,940 | $46,320 | $8,821 | $202,761 | $202,761 |
| 2018 | $193,837 | $46,320 | $8,821 | $205,658 | $205,658 |
| 2017 | $194,052 | $77,200 | $8,821 | $207,873 | $207,873 |
| 2016 | $194,482 | $77,200 | $8,821 | $208,303 | $208,303 |
| 2015 | $194,912 | $84,920 | $8,821 | $209,233 | $209,233 |
| 2014 | $195,341 | $84,920 | $8,821 | $209,662 | $209,662 |
| 2013 | $195,772 | $196,860 | $8,821 | $217,343 | $217,343 |
| 2012 | $196,047 | $196,860 | $8,821 | $217,618 | $217,618 |
| 2011 | $0 | $187,720 | $8,821 | $8,821 | $8,821 |
| 2010 | $0 | $187,720 | $8,821 | $8,821 | $8,821 |
| 2009 | $0 | $216,600 | $8,821 | $8,821 | $8,821 |
| 2008 | $0 | $303,240 | $8,821 | $8,821 | $8,821 |
| 2007 | $91,400 | $146,295 | $9,196 | $228,499 | $228,499 |
Deed and Sales History
| 1 | 07/05/2013 | EZ | Easement | MUZZALL, RONALD E | MUZZALL, RONALD E | | | $920,000.00 | 12190 | 4345173 |
|   | |
| 2 | 01/01/2006 | WD | Warranty Deed | MUZZALL, ROBERT H | MUZZALL, RONALD E | | | $0.00 | 61711 | 4168142 |
| 3 | 12/01/1997 | WD | Warranty Deed | MUZZALL, ROBERT H | MUZZALL, ROBERT H | | | $0.00 | 80164 | 98000765 |
| 4 | 12/01/1997 | WD | Warranty Deed | MUZZALL, ROBERT H | MUZZALL, ROBERT H | | | $0.00 | 80165 | 98000766 |
| 5 | 12/01/1997 | WD | Warranty Deed | MUZZALL, ROBERT H | MUZZALL, ROBERT H | | | $0.00 | 80166 | 98000767 |
| 6 | 12/01/1997 | WD | Warranty Deed | MUZZALL, ROBERT H | MUZZALL, ROBERT H | | | $0.00 | 80167 | 98000768 |
| 7 | 12/01/1996 | WD | Warranty Deed | MUZZALL, ROBERT H | MUZZALL, ROBERT H | | | $0.00 | 64546 | 96022033 |
| 8 | 12/01/1996 | WD | Warranty Deed | MUZZALL, ROBERT H | MUZZALL, ROBERT H | | | $0.00 | 64547 | 96022032 |
| 9 | 12/01/1996 | WD | Warranty Deed | MUZZALL, ROBERT H | MUZZALL, ROBERT H | | | $0.00 | 64548 | 96022031 |
| 10 | 12/01/1996 | WD | Warranty Deed | MUZZALL, ROBERT H | MUZZALL, ROBERT H | | | $0.00 | 64549 | 96022030 |
| 11 | 01/01/1996 | WD | Warranty Deed | MUZZALL, ROBERT H | MUZZALL, ROBERT H | | | $0.00 | 60014 | 96000075 |
| 12 | 01/01/1996 | WD | Warranty Deed | MUZZALL, ROBERT H | MUZZALL, ROBERT H | | | $0.00 | 60015 | 96000076 |
| 13 | 01/01/1996 | WD | Warranty Deed | MUZZALL, ROBERT H | MUZZALL, ROBERT H | | | $0.00 | 60016 | 96000077 |
| 14 | 12/01/1995 | WD | Warranty Deed | MUZZALL, ROBERT H | MUZZALL, ROBERT H | | | $0.00 | 60013 | 96000074 |
| 15 | 12/01/1994 | WD | Warranty Deed | MUZZALL, ROBERT H | MUZZALL, ROBERT H | | | $0.00 | 45164 | 94026230 |
| 16 | 12/01/1994 | WD | Warranty Deed | MUZZALL, ROBERT H | MUZZALL, ROBERT H | | | $0.00 | 45169 | 94026231 |
| 17 | 12/01/1994 | WD | Warranty Deed | MUZZALL, ROBERT H | MUZZALL, ROBERT H | | | $0.00 | 45170 | 94026232 |
| 18 | 12/01/1994 | WD | Warranty Deed | MUZZALL, ROBERT H | MUZZALL, ROBERT H | | | $0.00 | 45171 | 94026233 |
| 19 | 12/01/1993 | WD | Warranty Deed | MUZZALL, ROBERT H | MUZZALL, ROBERT H | | | $0.00 | 45159 | 94026226 |
| 20 | 12/01/1993 | WD | Warranty Deed | MUZZALL, ROBERT H | MUZZALL, ROBERT H | | | $0.00 | 45161 | 94026227 |
| 21 | 12/01/1993 | WD | Warranty Deed | MUZZALL, ROBERT H | MUZZALL, ROBERT H | | | $0.00 | 45162 | 94026228 |
| 22 | 12/01/1993 | WD | Warranty Deed | MUZZALL, ROBERT H | MUZZALL, ROBERT H | | | $0.00 | 45163 | 94026229 |
| 23 | 01/01/1993 | WD | Warranty Deed | MUZZALL, ROBERT H | MUZZALL, ROBERT H | | | $0.00 | 30192 | 93001335 |
| 24 | 01/01/1993 | WD | Warranty Deed | MUZZALL, ROBERT H | MUZZALL, ROBERT H | | | $0.00 | 30194 | 93001336 |
| 25 | 01/01/1993 | WD | Warranty Deed | MUZZALL, ROBERT H | MUZZALL, ROBERT H | | | $0.00 | 30195 | 93001337 |
| 26 | 01/01/1993 | WD | Warranty Deed | MUZZALL, ROBERT H | MUZZALL, ROBERT H | | | $0.00 | 30196 | 93001338 |
| 27 | 01/01/1992 | WD | Warranty Deed | MUZZALL, ROBERT H | MUZZALL, ROBERT H | | | $0.00 | 20051 | 92000156 |
| 28 | 12/01/1991 | WD | Warranty Deed | MUZZALL, ROBERT H | MUZZALL, ROBERT H | | | $0.00 | 20050 | 92000155 |
| 29 | 03/01/1991 | WD | Warranty Deed | MUZZALL, ROBERT H | MUZZALL, ROBERT H | | | $0.00 | 10784 | 91003493 |
| 30 | 03/01/1991 | WD | Warranty Deed | MUZZALL, ROBERT H | MUZZALL, ROBERT H | | | $0.00 | 10785 | 91003494 |
| 31 | 03/01/1991 | WD | Warranty Deed | Unknown | MUZZALL, ROBERT H | | | $0.00 | 10786 | 91003495 |
Payout Agreement
| No payout information available.. |