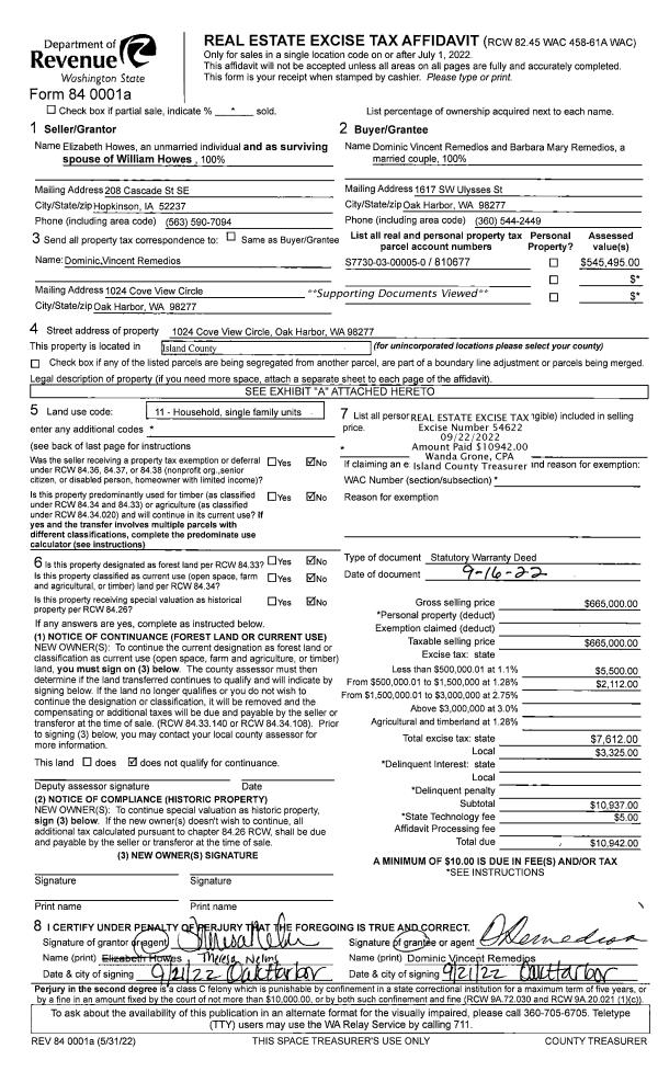
Property
Account |
| Property ID: | 245577 | Abbreviated Legal Description: | DOUBLE VU LOTS 71 & 72 COMB 3/93 |
| Geographic ID: | S6495-00-00071-0 | Agent Code: | |
| Type: | Real | | |
| Tax Area: | 510 - APPRAISER-Stan/Cam Schl Dist, improved & 1 acre or less | Land Use Code | 11 |
| Open Space: | N | DFL | N |
| Historic Property: | N | Remodel Property: | N |
| Multi-Family Redevelopment: | N | | |
| Township: | | Section: | |
| Range: | |
Location |
| Address: | 938 DOLPHIN ST CAMANO ISLAND, WA 98282 | Mapsco: | |
| Neighborhood: | Cycle 5 | Map ID: | 458 |
| Neighborhood CD: | 5 |
Owner |
| Name: | O'BOYLE, PAUL B | Owner ID: | 64359 |
| Mailing Address: | 938 DOLPHIN ST CAMANO ISLAND, WA 98282-8569 | % Ownership: | 100.0000000000% |
| | | Exemptions: | |
Taxes and Assessment Details
Values
| (+) Improvement Homesite Value: | + | $0 | |
| (+) Improvement Non-Homesite Value: | + | $220,438 | |
| (+) Land Homesite Value: | + | $0 | |
| (+) Land Non-Homesite Value: | + | $220,000 | |
| (+) Curr Use (HS): | + | $0 | $0 |
| (+) Curr Use (NHS): | + | $0 | $0 |
| | | -------------------------- | |
| (=) Market Value: | = | $440,438 | |
| (–) Productivity Loss: | – | $0 | |
| | | -------------------------- | |
| (=) Subtotal: | = | $440,438 | |
| (+) Senior Appraised Value: | + | $0 | |
| (+) Non-Senior Appraised Value: | + | $440,438 | |
| | | -------------------------- | |
| (=) Total Appraised Value: | = | $440,438 | |
| (–) Senior Exemption Loss: | – | $0 | |
| (–) Exemption Loss: | – | $0 | |
| | | -------------------------- | |
| (=) Taxable Value: | = | $440,438 | |
Taxing Jurisdiction
| Owner: | O'BOYLE, PAUL B | | |
| % Ownership: | 100.0000000000% | | |
| Total Value: | $440,438 | | |
| Tax Area: | 510 - APPRAISER-Stan/Cam Schl Dist, improved & 1 acre or less |
| CF | Conservation Futures | 0.0316035091 | $440,438 | $440,438 | $13.92 | | |
| EMS1 | Fire & Rescue Dist #1 Camano GEN (EMS) | 0.3677864386 | $440,438 | $440,438 | $161.99 | | |
| FIRE1 | Fire & Rescue Dist #1 Camano GEN | 1.2502910536 | $440,438 | $440,438 | $550.68 | | |
| FIRE1BOND | Fire & Rescue Dist #1 Camano BOND | 0.1570001679 | $440,438 | $440,438 | $69.15 | | |
| CE | County Current Expense | 0.3708482477 | $440,438 | $440,438 | $163.34 | | |
| CR | County Roads | 0.4584763726 | $440,438 | $440,438 | $201.93 | | |
| LCIB | Library Sno-Isle BOND (Camano Island) | 0.0396325772 | $440,438 | $440,438 | $17.46 | | |
| LIB | Library Sno-Isle GEN | 0.3153421757 | $440,438 | $440,438 | $138.89 | | |
| SCH205_401 | School 205-401 Enrichment | 1.2698420524 | $440,438 | $440,438 | $559.29 | | |
| SCH205BOND | School 205-401 BOND | 0.9396497583 | $440,438 | $440,438 | $413.86 | | |
| ST | State School | 1.3035497053 | $440,438 | $440,438 | $574.13 | | |
| ST2 | State School Part 2 | 0.8169543533 | $440,438 | $440,438 | $359.82 | | |
| | Total Tax Rate: | 7.3209764117 | | | | | |
| | | | | Taxes w/Current Exemptions: | $3,224.46 | | |
| | | | | Taxes w/o Exemptions: | $3,224.46 | | |
Improvement / Building
| Improvement #1: | RESIDENTIAL | State Code: | Y | 1265.1 sqft | Value: | $220,438 |
| Bathrooms: | 1.5 | Bedrooms: | 2 | | Exterior Wall/Cover: | PLY/HARDBOARD T-111 | Floor Covering: | HARDWOOD/CARP 60-40 | | Floor Structure: | WOOD W/SUBFLOOR | Foundation: | CONCRETE | | Heating: | WALL HEAT ELECTRIC | Interior Finish: | DRYWALL PAINT | | Plumbing Fixture Cnt: | 9 | Roof Slope: | 8" IN 12" | | Roof Structure/Cover: | CJ ASPHALT |   |   |
|
| | Type | Description | Class CD | Sub Class CD | Year Built | Area |
| | BAS | BASE/MAIN FLOOR | 3 | 0 | 1993 | 823.1 |
| | DGR | DETACHED GARAGE | 3 | 0 | 1993 | 484.0 |
| | UPS | UPPER STORY | 3 | 0 | 1993 | 442.0 |
| | OWP | OPEN WOOD PORCH W/STEPS | 3 | 0 | 1993 | 573.2 |
| | OWR | OPEN WOOD PORCH W/STEPS/ROOF | 3 | 0 | 1993 | 264.0 |
Sketch
Property Image
Land
| 1 | 15 | SQ (12001-21780) | 0.4000 | 17424.00 | 0.00 | 0.00 | 1.00 | $220,000 | $0 |
Roll Value History
| 2026 | N/A | N/A | N/A | N/A | N/A |
| 2025 | $220,438 | $220,000 | $0 | $440,438 | $440,438 |
| 2024 | $223,576 | $220,000 | $0 | $443,576 | $443,576 |
| 2023 | $226,714 | $230,000 | $0 | $456,714 | $456,714 |
| 2022 | $208,128 | $210,000 | $0 | $418,128 | $418,128 |
| 2021 | $183,451 | $140,000 | $0 | $323,451 | $323,451 |
| 2020 | $178,737 | $140,000 | $0 | $318,737 | $318,737 |
| 2019 | $127,820 | $200,000 | $0 | $327,820 | $327,820 |
| 2018 | $128,239 | $200,000 | $0 | $328,239 | $328,239 |
| 2017 | $129,077 | $100,000 | $0 | $229,077 | $229,077 |
| 2016 | $130,755 | $90,000 | $0 | $220,755 | $220,755 |
| 2015 | $130,752 | $65,000 | $0 | $195,752 | $195,752 |
| 2014 | $132,395 | $65,000 | $0 | $197,395 | $197,395 |
| 2013 | $134,037 | $41,600 | $0 | $175,637 | $175,637 |
| 2012 | $135,679 | $41,600 | $0 | $177,279 | $177,279 |
| 2011 | $137,322 | $52,000 | $0 | $189,322 | $189,322 |
| 2010 | $143,268 | $52,000 | $0 | $195,268 | $195,268 |
| 2009 | $145,963 | $90,000 | $0 | $235,963 | $235,963 |
| 2008 | $147,911 | $66,000 | $0 | $213,911 | $213,911 |
| 2007 | $150,003 | $66,000 | $0 | $216,003 | $216,003 |
Deed and Sales History
| 1 | 07/27/1998 | WD | Warranty Deed | MCLACHLAN, BRENDA P | O'BOYLE, PAUL B | | | $141,500.00 | 82964 | 98015558 |
| 2 | 04/01/1993 | WD | Warranty Deed | WELLS, LIZZIE | MCLACHLAN, BRENDA P | | | $15,000.00 | 31245 | 93006574 |
| 3 | 03/01/1993 | OTHER | Other - Misc. Documents | WELLS, LIZZIE | WELLS, LIZZIE | | | $0.00 | 65263 | 93003073 |
| 4 | 01/01/1992 | QCD | Quit Claim Deed | WELLS, LIZZIE | WELLS, LIZZIE | | | $0.00 | 20368 | 92001704 |
| 5 | 01/01/1900 | OTHER | Other - Misc. Documents | Unknown | O'BOYLE, PAUL B | | | $0.00 | 82964 | 98015558 |
| 6 | 01/01/1900 | OTHER | Other - Misc. Documents | O'BOYLE, PAUL B | WELLS, LIZZIE | | | $0.00 | 0 | 0 |
Payout Agreement
| No payout information available.. |