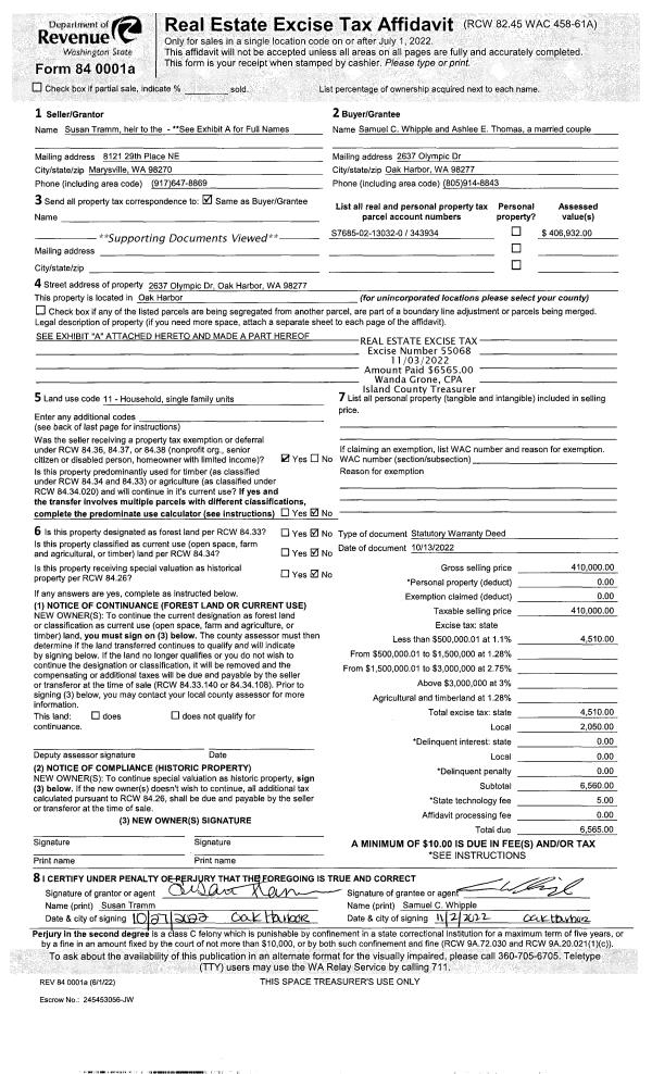
Property
Account |
| Property ID: | 245960 | Abbreviated Legal Description: | DRIFTWOOD HTS 1 LOT 12 |
| Geographic ID: | S6505-00-00012-0 | Agent Code: | |
| Type: | Real | | |
| Tax Area: | 510 - APPRAISER-Stan/Cam Schl Dist, improved & 1 acre or less | Land Use Code | 11 |
| Open Space: | N | DFL | N |
| Historic Property: | N | Remodel Property: | N |
| Multi-Family Redevelopment: | N | | |
| Township: | | Section: | |
| Range: | |
Location |
| Address: | 741 LEHMAN DR CAMANO ISLAND, WA 98282 | Mapsco: | |
| Neighborhood: | Cycle 5 | Map ID: | 922 |
| Neighborhood CD: | 5 |
Owner |
| Name: | SALDIN, RONALD L | Owner ID: | 257721 |
| Mailing Address: | KIM R DAVIS 741 LEHMAN DR CAMANO ISLAND, WA 98282-8446 | % Ownership: | 100.0000000000% |
| | | Exemptions: | |
Taxes and Assessment Details
Values
| (+) Improvement Homesite Value: | + | $0 | |
| (+) Improvement Non-Homesite Value: | + | $342,593 | |
| (+) Land Homesite Value: | + | $0 | |
| (+) Land Non-Homesite Value: | + | $275,000 | |
| (+) Curr Use (HS): | + | $0 | $0 |
| (+) Curr Use (NHS): | + | $0 | $0 |
| | | -------------------------- | |
| (=) Market Value: | = | $617,593 | |
| (–) Productivity Loss: | – | $0 | |
| | | -------------------------- | |
| (=) Subtotal: | = | $617,593 | |
| (+) Senior Appraised Value: | + | $0 | |
| (+) Non-Senior Appraised Value: | + | $617,593 | |
| | | -------------------------- | |
| (=) Total Appraised Value: | = | $617,593 | |
| (–) Senior Exemption Loss: | – | $0 | |
| (–) Exemption Loss: | – | $0 | |
| | | -------------------------- | |
| (=) Taxable Value: | = | $617,593 | |
Taxing Jurisdiction
| Owner: | SALDIN, RONALD L | | |
| % Ownership: | 100.0000000000% | | |
| Total Value: | $617,593 | | |
| Tax Area: | 510 - APPRAISER-Stan/Cam Schl Dist, improved & 1 acre or less |
| CF | Conservation Futures | 0.0316035091 | $617,593 | $617,593 | $19.52 | | |
| EMS1 | Fire & Rescue Dist #1 Camano GEN (EMS) | 0.3677864386 | $617,593 | $617,593 | $227.14 | | |
| FIRE1 | Fire & Rescue Dist #1 Camano GEN | 1.2502910536 | $617,593 | $617,593 | $772.17 | | |
| FIRE1BOND | Fire & Rescue Dist #1 Camano BOND | 0.1570001679 | $617,593 | $617,593 | $96.96 | | |
| CE | County Current Expense | 0.3708482477 | $617,593 | $617,593 | $229.03 | | |
| CR | County Roads | 0.4584763726 | $617,593 | $617,593 | $283.15 | | |
| LCIB | Library Sno-Isle BOND (Camano Island) | 0.0396325772 | $617,593 | $617,593 | $24.48 | | |
| LIB | Library Sno-Isle GEN | 0.3153421757 | $617,593 | $617,593 | $194.75 | | |
| SCH205_401 | School 205-401 Enrichment | 1.2698420524 | $617,593 | $617,593 | $784.25 | | |
| SCH205BOND | School 205-401 BOND | 0.9396497583 | $617,593 | $617,593 | $580.32 | | |
| ST | State School | 1.3035497053 | $617,593 | $617,593 | $805.06 | | |
| ST2 | State School Part 2 | 0.8169543533 | $617,593 | $617,593 | $504.55 | | |
| | Total Tax Rate: | 7.3209764117 | | | | | |
| | | | | Taxes w/Current Exemptions: | $4,521.38 | | |
| | | | | Taxes w/o Exemptions: | $4,521.38 | | |
Improvement / Building
| Improvement #1: | RESIDENTIAL | State Code: | Y | 3567.8 sqft | Value: | $342,593 |
| Bathrooms: | 3.25 | Bedrooms: | 3 | | Ceiling: | DRY WALL SPRAYED | Exterior Wall/Cover: | STUCCO | | Floor Covering: | CARPET/VINYL 80-20 | Floor Structure: | WOOD W/SUBFLOOR | | Foundation: | CONCRETE | Heating: | FHA ELECTRIC | | Interior Finish: | DRYWALL PAINT | Plumbing Fixture Cnt: | 12 | | Roof Slope: | 5" IN 12" | Roof Structure/Cover: | BEAM CONCRETE TILE |
|
| | Type | Description | Class CD | Sub Class CD | Year Built | Area |
| | BAS | BASE/MAIN FLOOR | 3 | 0 | 1975 | 2078.8 |
| | DWN | DOWNSTAIRS LIVING AREA | 3 | 0 | 1975 | 1489.0 |
| | AGR | ATTACHED GARAGE | 3 | 0 | 1975 | 528.0 |
| | OWP | OPEN WOOD PORCH W/STEPS | 3 | 0 | 1975 | 482.0 |
Sketch
Property Image
Land
| 1 | HB | HIGH BLUFF | 0.0000 | 0.00 | 0.00 | 0.00 | 1.00 | $275,000 | $0 |
Roll Value History
| 2026 | N/A | N/A | N/A | N/A | N/A |
| 2025 | $342,593 | $275,000 | $0 | $617,593 | $617,593 |
| 2024 | $347,843 | $275,000 | $0 | $622,843 | $622,843 |
| 2023 | $353,094 | $275,000 | $0 | $628,094 | $628,094 |
| 2022 | $324,473 | $250,000 | $0 | $574,473 | $574,473 |
| 2021 | $283,566 | $150,000 | $0 | $433,566 | $433,566 |
| 2020 | $278,092 | $150,000 | $0 | $428,092 | $428,092 |
| 2019 | $231,293 | $150,000 | $0 | $381,293 | $381,293 |
| 2018 | $232,127 | $137,500 | $0 | $369,627 | $369,627 |
| 2017 | $233,796 | $75,000 | $0 | $308,796 | $308,796 |
| 2016 | $237,137 | $75,000 | $0 | $312,137 | $312,137 |
| 2015 | $195,924 | $80,000 | $0 | $275,924 | $275,924 |
| 2014 | $199,127 | $80,000 | $0 | $279,127 | $279,127 |
| 2013 | $202,328 | $83,200 | $0 | $285,528 | $285,528 |
| 2012 | $205,531 | $83,200 | $0 | $288,731 | $288,731 |
| 2011 | $208,732 | $130,000 | $0 | $338,732 | $338,732 |
| 2010 | $224,932 | $130,000 | $0 | $354,932 | $354,932 |
| 2009 | $227,349 | $90,000 | $0 | $317,349 | $317,349 |
| 2008 | $230,523 | $175,000 | $0 | $405,523 | $405,523 |
| 2007 | $233,697 | $175,000 | $0 | $408,697 | $408,697 |
Deed and Sales History
| 1 | 05/22/2012 | WD | Warranty Deed | HAUG, MARTHA | SALDIN, RONALD L | | | $338,000.00 | 7765 | 4316016 |
|   | |
| 2 | 12/05/2011 | QCD | Quit Claim Deed | HAUG, FRAIN B | HAUG, MARTHA | | | $0.00 | 6371 | 4306340 |
| 3 | 01/01/1900 | OTHER | Other - Misc. Documents | Unknown | HAUG, FRAIN B | | | $0.00 | 0 | 0 |
Payout Agreement
| No payout information available.. |