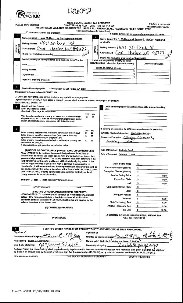
Property
Account |
| Property ID: | 246086 | Abbreviated Legal Description: | DRIFTWOOD HTS 2 LOT 7 |
| Geographic ID: | S6505-02-00007-0 | Agent Code: | |
| Type: | Real | | |
| Tax Area: | 510 - APPRAISER-Stan/Cam Schl Dist, improved & 1 acre or less | Land Use Code | 11 |
| Open Space: | N | DFL | N |
| Historic Property: | N | Remodel Property: | N |
| Multi-Family Redevelopment: | N | | |
| Township: | | Section: | |
| Range: | |
Location |
| Address: | 839 PATRICIA ANN DR CAMANO ISLAND, WA 98282 | Mapsco: | |
| Neighborhood: | Cycle 5 | Map ID: | 928 |
| Neighborhood CD: | 5 |
Owner |
| Name: | TAYLOR, KENT R | Owner ID: | 282884 |
| Mailing Address: | EMILY A TAYLOR 2209 YEARLING DR SPRING HILL, TN 37174 | % Ownership: | 100.0000000000% |
| | | Exemptions: | |
Taxes and Assessment Details
Values
| (+) Improvement Homesite Value: | + | $0 | |
| (+) Improvement Non-Homesite Value: | + | $313,582 | |
| (+) Land Homesite Value: | + | $0 | |
| (+) Land Non-Homesite Value: | + | $230,000 | |
| (+) Curr Use (HS): | + | $0 | $0 |
| (+) Curr Use (NHS): | + | $0 | $0 |
| | | -------------------------- | |
| (=) Market Value: | = | $543,582 | |
| (–) Productivity Loss: | – | $0 | |
| | | -------------------------- | |
| (=) Subtotal: | = | $543,582 | |
| (+) Senior Appraised Value: | + | $0 | |
| (+) Non-Senior Appraised Value: | + | $543,582 | |
| | | -------------------------- | |
| (=) Total Appraised Value: | = | $543,582 | |
| (–) Senior Exemption Loss: | – | $0 | |
| (–) Exemption Loss: | – | $0 | |
| | | -------------------------- | |
| (=) Taxable Value: | = | $543,582 | |
Taxing Jurisdiction
| Owner: | TAYLOR, KENT R | | |
| % Ownership: | 100.0000000000% | | |
| Total Value: | $543,582 | | |
| Tax Area: | 510 - APPRAISER-Stan/Cam Schl Dist, improved & 1 acre or less |
| CF | Conservation Futures | 0.0316035091 | $543,582 | $543,582 | $17.18 | | |
| EMS1 | Fire & Rescue Dist #1 Camano GEN (EMS) | 0.3677864386 | $543,582 | $543,582 | $199.92 | | |
| FIRE1 | Fire & Rescue Dist #1 Camano GEN | 1.2502910536 | $543,582 | $543,582 | $679.64 | | |
| FIRE1BOND | Fire & Rescue Dist #1 Camano BOND | 0.1570001679 | $543,582 | $543,582 | $85.34 | | |
| CE | County Current Expense | 0.3708482477 | $543,582 | $543,582 | $201.59 | | |
| CR | County Roads | 0.4584763726 | $543,582 | $543,582 | $249.22 | | |
| LCIB | Library Sno-Isle BOND (Camano Island) | 0.0396325772 | $543,582 | $543,582 | $21.54 | | |
| LIB | Library Sno-Isle GEN | 0.3153421757 | $543,582 | $543,582 | $171.41 | | |
| SCH205_401 | School 205-401 Enrichment | 1.2698420524 | $543,582 | $543,582 | $690.26 | | |
| SCH205BOND | School 205-401 BOND | 0.9396497583 | $543,582 | $543,582 | $510.78 | | |
| ST | State School | 1.3035497053 | $543,582 | $543,582 | $708.59 | | |
| ST2 | State School Part 2 | 0.8169543533 | $543,582 | $543,582 | $444.08 | | |
| | Total Tax Rate: | 7.3209764117 | | | | | |
| | | | | Taxes w/Current Exemptions: | $3,979.55 | | |
| | | | | Taxes w/o Exemptions: | $3,979.55 | | |
Improvement / Building
| Improvement #1: | RESIDENTIAL | State Code: | Y | 1664.0 sqft | Value: | $313,582 |
| Bathrooms: | 2.25 | Bedrooms: | 3 | | Ceiling: | DRYWALL PAINTED | Cooling: | HEAT PUMP/CONV/V | | Exterior Wall/Cover: | CEMENT FIBER | Floor Covering: | CARPET/VINYL 60-40 | | Floor Structure: | WOOD W/SUBFLOOR | Foundation: | CONCRETE | | Interior Finish: | DRYWALL PAINT | Plumbing Fixture Cnt: | 10 | | Roof Slope: | 6" IN 12" | Roof Structure/Cover: | CJ ASPHALT |
|
| | Type | Description | Class CD | Sub Class CD | Year Built | Area |
| | BAS | BASE/MAIN FLOOR | 3 | 0 | 2017 | 676.0 |
| | UPS | UPPER STORY | 3 | 0 | 2017 | 988.0 |
| | BIG | BUILT IN GARAGE | 3 | 0 | 2017 | 312.0 |
| | OWP | OPEN WOOD PORCH W/STEPS | 3 | 0 | 2017 | 120.0 |
Sketch
Property Image
Land
| 1 | 15 | SQ (12001-21780) | 0.0000 | 0.00 | 0.00 | 0.00 | 1.00 | $230,000 | $0 |
Roll Value History
| 2026 | N/A | N/A | N/A | N/A | N/A |
| 2025 | $313,582 | $230,000 | $0 | $543,582 | $543,582 |
| 2024 | $316,089 | $210,000 | $0 | $526,089 | $526,089 |
| 2023 | $318,598 | $230,000 | $0 | $548,598 | $548,598 |
| 2022 | $291,515 | $200,000 | $0 | $491,515 | $491,515 |
| 2021 | $248,880 | $140,000 | $0 | $388,880 | $388,880 |
| 2020 | $241,509 | $120,000 | $0 | $361,509 | $361,509 |
| 2019 | $180,157 | $155,000 | $0 | $335,157 | $335,157 |
| 2018 | $180,615 | $140,000 | $0 | $320,615 | $320,615 |
| 2017 | $183,366 | $90,000 | $0 | $273,366 | $273,366 |
| 2016 | $4,000 | $65,000 | $0 | $69,000 | $69,000 |
| 2015 | $4,464 | $50,000 | $0 | $54,464 | $54,464 |
| 2014 | $4,464 | $50,000 | $0 | $54,464 | $54,464 |
| 2013 | $4,464 | $52,000 | $0 | $56,464 | $56,464 |
| 2012 | $4,464 | $52,000 | $0 | $56,464 | $56,464 |
| 2011 | $4,464 | $84,000 | $0 | $88,464 | $88,464 |
| 2010 | $4,464 | $84,000 | $0 | $88,464 | $88,464 |
| 2009 | $4,464 | $90,000 | $0 | $94,464 | $94,464 |
| 2008 | $4,464 | $112,000 | $0 | $116,464 | $116,464 |
| 2007 | $4,464 | $112,000 | $0 | $116,464 | $116,464 |
Deed and Sales History
| 1 | 11/06/2017 | WD | Warranty Deed | HOSKINS, JEREMY | TAYLOR, KENT R | | | $289,900.00 | 31890 | 4434040 |
| 2 | 11/02/2016 | WD | Warranty Deed | MATTINGLEY, CLAYTON J | HOSKINS, JEREMY | | | $45,000.00 | 26842 | 4411140 |
| 3 | 10/01/1990 | QCD | Quit Claim Deed | MATTINGLEY, CLAYTON J | MATTINGLEY, CLAYTON J | | | $0.00 | 5928 | 90020090 |
| 4 | 07/01/1990 | WD | Warranty Deed | VIGLIATURE, DANIEL A | MATTINGLEY, CLAYTON J | | | $20,000.00 | 4316 | 90014255 |
Payout Agreement
| No payout information available.. |