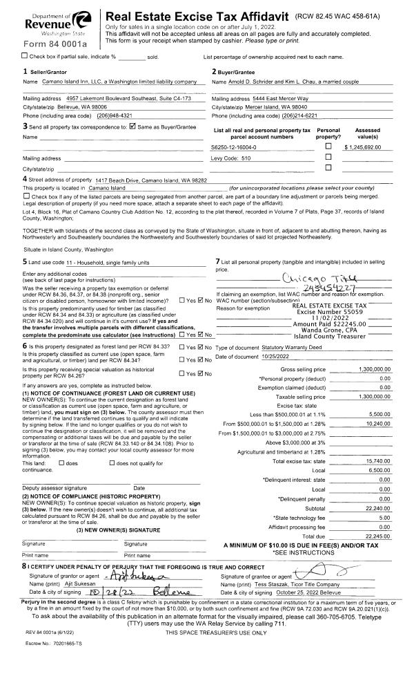
Property
Account |
| Property ID: | 246228 | Abbreviated Legal Description: | DRIFTWOOD HTS 2 LOT 22 TGW & SUB TO EZ |
| Geographic ID: | S6505-02-00022-0 | Agent Code: | |
| Type: | Real | | |
| Tax Area: | 510 - APPRAISER-Stan/Cam Schl Dist, improved & 1 acre or less | Land Use Code | 11 |
| Open Space: | N | DFL | N |
| Historic Property: | N | Remodel Property: | N |
| Multi-Family Redevelopment: | N | | |
| Township: | | Section: | |
| Range: | |
Location |
| Address: | 854 PATRICIA ANN DR CAMANO ISLAND, WA 98282 | Mapsco: | |
| Neighborhood: | Cycle 5 | Map ID: | 928 |
| Neighborhood CD: | 5 |
Owner |
| Name: | WEYHING, CHARLES R | Owner ID: | 184809 |
| Mailing Address: | VICKY L WEYHING 854 PATRICIA ANN DR CAMANO ISLAND, WA 98282-6525 | % Ownership: | 100.0000000000% |
| | | Exemptions: | |
Taxes and Assessment Details
Values
| (+) Improvement Homesite Value: | + | $0 | |
| (+) Improvement Non-Homesite Value: | + | $74,260 | |
| (+) Land Homesite Value: | + | $0 | |
| (+) Land Non-Homesite Value: | + | $230,000 | |
| (+) Curr Use (HS): | + | $0 | $0 |
| (+) Curr Use (NHS): | + | $0 | $0 |
| | | -------------------------- | |
| (=) Market Value: | = | $304,260 | |
| (–) Productivity Loss: | – | $0 | |
| | | -------------------------- | |
| (=) Subtotal: | = | $304,260 | |
| (+) Senior Appraised Value: | + | $0 | |
| (+) Non-Senior Appraised Value: | + | $304,260 | |
| | | -------------------------- | |
| (=) Total Appraised Value: | = | $304,260 | |
| (–) Senior Exemption Loss: | – | $0 | |
| (–) Exemption Loss: | – | $0 | |
| | | -------------------------- | |
| (=) Taxable Value: | = | $304,260 | |
Taxing Jurisdiction
| Owner: | WEYHING, CHARLES R | | |
| % Ownership: | 100.0000000000% | | |
| Total Value: | $304,260 | | |
| Tax Area: | 510 - APPRAISER-Stan/Cam Schl Dist, improved & 1 acre or less |
| CF | Conservation Futures | 0.0316035091 | $304,260 | $304,260 | $9.62 | | |
| EMS1 | Fire & Rescue Dist #1 Camano GEN (EMS) | 0.3677864386 | $304,260 | $304,260 | $111.90 | | |
| FIRE1 | Fire & Rescue Dist #1 Camano GEN | 1.2502910536 | $304,260 | $304,260 | $380.41 | | |
| FIRE1BOND | Fire & Rescue Dist #1 Camano BOND | 0.1570001679 | $304,260 | $304,260 | $47.77 | | |
| CE | County Current Expense | 0.3708482477 | $304,260 | $304,260 | $112.83 | | |
| CR | County Roads | 0.4584763726 | $304,260 | $304,260 | $139.50 | | |
| LCIB | Library Sno-Isle BOND (Camano Island) | 0.0396325772 | $304,260 | $304,260 | $12.06 | | |
| LIB | Library Sno-Isle GEN | 0.3153421757 | $304,260 | $304,260 | $95.95 | | |
| SCH205_401 | School 205-401 Enrichment | 1.2698420524 | $304,260 | $304,260 | $386.36 | | |
| SCH205BOND | School 205-401 BOND | 0.9396497583 | $304,260 | $304,260 | $285.90 | | |
| ST | State School | 1.3035497053 | $304,260 | $304,260 | $396.62 | | |
| ST2 | State School Part 2 | 0.8169543533 | $304,260 | $304,260 | $248.57 | | |
| | Total Tax Rate: | 7.3209764117 | | | | | |
| | | | | Taxes w/Current Exemptions: | $2,227.49 | | |
| | | | | Taxes w/o Exemptions: | $2,227.49 | | |
Improvement / Building
| Improvement #1: | MANUFACTURED HOME | State Code: | Y | 1152.0 sqft | Value: | $74,260 |
| Bathrooms: | 0 | Bedrooms: | 0 | | Ceiling: | PLASTER PAINTED | Cooling: | EVAP NO DUCT | | Exterior Wall/Cover: | VINYL | Floor Covering: | CARPET 100% | | Floor Structure: | SLAB ON GRADE | Foundation: | SLAB | | Heating: | FHA ELECTRIC | Interior Finish: | PLASTER | | Plumbing Fixture Cnt: | 1 | Roof Slope: | FLAT | | Roof Structure/Cover: | CJ ALUMINIUM HEAVY |   |   |
|
| | Type | Description | Class CD | Sub Class CD | Year Built | Area |
| | BAS | BASE/MAIN FLOOR | 4 | 0 | 1978 | 1152.0 |
| | OWP | OPEN WOOD PORCH W/STEPS | 4 | 0 | 1978 | 133.8 |
| | OWP | OPEN WOOD PORCH W/STEPS | 4 | 0 | 1978 | 216.0 |
| | DGR | DETACHED GARAGE | 4 | 0 | 1978 | 574.0 |
Sketch
Property Image
Land
| 1 | 15 | SQ (12001-21780) | 0.0000 | 0.00 | 0.00 | 0.00 | 1.00 | $230,000 | $0 |
Roll Value History
| 2026 | N/A | N/A | N/A | N/A | N/A |
| 2025 | $74,260 | $230,000 | $0 | $304,260 | $304,260 |
| 2024 | $77,795 | $210,000 | $0 | $287,795 | $287,795 |
| 2023 | $70,727 | $230,000 | $0 | $300,727 | $300,727 |
| 2022 | $66,820 | $200,000 | $0 | $266,820 | $266,820 |
| 2021 | $53,289 | $140,000 | $0 | $193,289 | $193,289 |
| 2020 | $53,978 | $120,000 | $0 | $173,978 | $173,978 |
| 2019 | $45,183 | $155,000 | $0 | $200,183 | $200,183 |
| 2018 | $46,954 | $140,000 | $0 | $186,954 | $186,954 |
| 2017 | $48,728 | $90,000 | $0 | $138,728 | $138,728 |
| 2016 | $50,498 | $65,000 | $0 | $115,498 | $115,498 |
| 2015 | $42,873 | $50,000 | $0 | $92,873 | $92,873 |
| 2014 | $44,156 | $50,000 | $0 | $94,156 | $94,156 |
| 2013 | $46,079 | $52,000 | $0 | $98,079 | $98,079 |
| 2012 | $47,361 | $52,000 | $0 | $99,361 | $99,361 |
| 2011 | $48,643 | $84,000 | $0 | $132,643 | $132,643 |
| 2010 | $50,813 | $84,000 | $0 | $134,813 | $134,813 |
| 2009 | $53,824 | $90,000 | $0 | $143,824 | $143,824 |
| 2008 | $55,822 | $112,000 | $0 | $167,822 | $167,822 |
| 2007 | $57,894 | $112,000 | $0 | $169,894 | $169,894 |
Deed and Sales History
| 1 | 09/29/2005 | WD | Warranty Deed | HINCHY, MILDRED | WEYHING, CHARLES R | | | $144,000.00 | 55071 | 4150065 |
| 2 | 11/16/2004 | WD | Warranty Deed | HUTCHINSON, SCOTT D | HINCHY, MILDRED | | | $128,000.00 | 45517 | 4118976 |
| 3 | 02/05/2001 | WD | Warranty Deed | BAKER, RONALD W | HUTCHINSON, SCOTT D | | | $113,000.00 | 10398 | 20025025 |
| 4 | 06/04/1999 | OTHER | Other - Misc. Documents | BAKER, RONALD W | BAKER, RONALD W | | | $17,500.00 | 92207 | 0 |
| 5 | 06/04/1999 | WD | Warranty Deed | GARRIS, CORRINE M | BAKER, RONALD W | | | $68,500.00 | 92206 | 99013713 |
| 6 | 01/01/1990 | OTHER | Other - Misc. Documents | GARRIS, CORRINE M | GARRIS, CORRINE M | | | $24,597.00 | 190 | 0 |
| 7 | 12/01/1989 | WD | Warranty Deed | CROOK, ROBERT A | GARRIS, CORRINE M | | | $27,403.00 | 26 | 90000076 |
| 8 | 11/01/1987 | DECREE | Divorce Decree/Legal Separation | CROOK, ROBERT A | CROOK, ROBERT A | | | $0.00 | 73708 | 87016135 |
| 9 | 12/01/1985 | OTHER | Other - Misc. Documents | CROOK, ROBERT A | CROOK, ROBERT A | | | $26,623.00 | 60740 | 0 |
| 10 | 12/01/1985 | WD | Warranty Deed | BEEBE, BRADLEY D | CROOK, ROBERT A | | | $36,500.00 | 53613 | 85014444 |
| 11 | 08/01/1982 | TRUSTEED | Trustee's Deed | HUTCHINSON, SCOTT D | BEEBE, BRADLEY D | | | $13,500.00 | 21979 | 399611 |
| 12 | 01/01/1900 | OTHER | Other - Misc. Documents | OLDFIELD, RICHARD C | HUTCHINSON, SCOTT D | | | $0.00 | 0 | 0 |
| 13 | 01/01/1900 | OTHER | Other - Misc. Documents | Unknown | HUTCHINSON, SCOTT D | | | $0.00 | 0 | 0 |
| 14 | 01/01/1900 | OTHER | Other - Misc. Documents | CANDLER, FRED | OLDFIELD, RICHARD C | | | $0.00 | 0 | 0 |
| 15 | 01/01/1900 | OTHER | Other - Misc. Documents | HUTCHINSON, SCOTT D | CANDLER, FRED | | | $0.00 | 0 | 0 |
Payout Agreement
| No payout information available.. |