Property
Account |
| Property ID: | 246255 | Abbreviated Legal Description: | DRIFTWOOD HTS 2 LOT 25 |
| Geographic ID: | S6505-02-00025-0 | Agent Code: | |
| Type: | Real | | |
| Tax Area: | 510 - APPRAISER-Stan/Cam Schl Dist, improved & 1 acre or less | Land Use Code | 11 |
| Open Space: | N | DFL | N |
| Historic Property: | N | Remodel Property: | N |
| Multi-Family Redevelopment: | N | | |
| Township: | | Section: | |
| Range: | |
Location |
| Address: | 30 TERRY ANN DR CAMANO ISLAND, WA 98282 | Mapsco: | |
| Neighborhood: | Cycle 5 | Map ID: | 928 |
| Neighborhood CD: | 5 |
Owner |
| Name: | WEBB TTEE, ERIC W | Owner ID: | 295523 |
| Mailing Address: | 30 TERRY ANN DR CAMANO ISLAND, WA 98282 | % Ownership: | 100.0000000000% |
| | | Exemptions: | |
Taxes and Assessment Details
Values
| (+) Improvement Homesite Value: | + | $0 | |
| (+) Improvement Non-Homesite Value: | + | $127,393 | |
| (+) Land Homesite Value: | + | $0 | |
| (+) Land Non-Homesite Value: | + | $230,000 | |
| (+) Curr Use (HS): | + | $0 | $0 |
| (+) Curr Use (NHS): | + | $0 | $0 |
| | | -------------------------- | |
| (=) Market Value: | = | $357,393 | |
| (–) Productivity Loss: | – | $0 | |
| | | -------------------------- | |
| (=) Subtotal: | = | $357,393 | |
| (+) Senior Appraised Value: | + | $0 | |
| (+) Non-Senior Appraised Value: | + | $357,393 | |
| | | -------------------------- | |
| (=) Total Appraised Value: | = | $357,393 | |
| (–) Senior Exemption Loss: | – | $0 | |
| (–) Exemption Loss: | – | $0 | |
| | | -------------------------- | |
| (=) Taxable Value: | = | $357,393 | |
Taxing Jurisdiction
| Owner: | WEBB TTEE, ERIC W | | |
| % Ownership: | 100.0000000000% | | |
| Total Value: | $357,393 | | |
| Tax Area: | 510 - APPRAISER-Stan/Cam Schl Dist, improved & 1 acre or less |
| CF | Conservation Futures | 0.0316035091 | $357,393 | $357,393 | $11.29 | | |
| EMS1 | Fire & Rescue Dist #1 Camano GEN (EMS) | 0.3677864386 | $357,393 | $357,393 | $131.44 | | |
| FIRE1 | Fire & Rescue Dist #1 Camano GEN | 1.2502910536 | $357,393 | $357,393 | $446.85 | | |
| FIRE1BOND | Fire & Rescue Dist #1 Camano BOND | 0.1570001679 | $357,393 | $357,393 | $56.11 | | |
| CE | County Current Expense | 0.3708482477 | $357,393 | $357,393 | $132.54 | | |
| CR | County Roads | 0.4584763726 | $357,393 | $357,393 | $163.86 | | |
| LCIB | Library Sno-Isle BOND (Camano Island) | 0.0396325772 | $357,393 | $357,393 | $14.16 | | |
| LIB | Library Sno-Isle GEN | 0.3153421757 | $357,393 | $357,393 | $112.70 | | |
| SCH205_401 | School 205-401 Enrichment | 1.2698420524 | $357,393 | $357,393 | $453.83 | | |
| SCH205BOND | School 205-401 BOND | 0.9396497583 | $357,393 | $357,393 | $335.82 | | |
| ST | State School | 1.3035497053 | $357,393 | $357,393 | $465.88 | | |
| ST2 | State School Part 2 | 0.8169543533 | $357,393 | $357,393 | $291.97 | | |
| | Total Tax Rate: | 7.3209764117 | | | | | |
| | | | | Taxes w/Current Exemptions: | $2,616.45 | | |
| | | | | Taxes w/o Exemptions: | $2,616.45 | | |
Improvement / Building
| Improvement #1: | MANUFACTURED HOME | State Code: | Y | 1782.0 sqft | Value: | $127,393 |
| Bathrooms: | 2 | Bedrooms: | 2 | | Ceiling: | PLASTER PAINTED | Cooling: | EVAP NO DUCT | | Exterior Wall/Cover: | VINYL | Floor Covering: | CARPET 100% | | Floor Structure: | SLAB ON GRADE | Foundation: | SLAB | | Heating: | FHA ELECTRIC | Interior Finish: | PLASTER | | Plumbing Fixture Cnt: | 1 | Roof Slope: | FLAT | | Roof Structure/Cover: | CJ ALUMINIUM HEAVY |   |   |
|
Sketch
Property Image
Land
| 1 | 15 | SQ (12001-21780) | 0.0000 | 0.00 | 0.00 | 0.00 | 1.00 | $230,000 | $0 |
Roll Value History
| 2026 | N/A | N/A | N/A | N/A | N/A |
| 2025 | $127,393 | $230,000 | $0 | $357,393 | $357,393 |
| 2024 | $131,139 | $210,000 | $0 | $341,139 | $341,139 |
| 2023 | $117,283 | $230,000 | $0 | $347,283 | $347,283 |
| 2022 | $107,685 | $200,000 | $0 | $307,685 | $307,685 |
| 2021 | $73,113 | $140,000 | $0 | $213,113 | $213,113 |
| 2020 | $74,716 | $120,000 | $0 | $194,716 | $194,716 |
| 2019 | $60,810 | $155,000 | $0 | $215,810 | $215,810 |
| 2018 | $0 | $140,000 | $0 | $140,000 | $140,000 |
| 2017 | $69,023 | $90,000 | $0 | $159,023 | $70,925 |
| 2016 | $71,115 | $65,000 | $0 | $136,115 | $70,925 |
| 2015 | $68,139 | $50,000 | $0 | $118,139 | $47,256 |
| 2014 | $70,925 | $50,000 | $0 | $120,925 | $48,370 |
| 2013 | $72,782 | $52,000 | $0 | $124,782 | $124,782 |
| 2012 | $74,640 | $52,000 | $0 | $126,640 | $126,640 |
| 2011 | $76,497 | $84,000 | $0 | $160,497 | $160,497 |
| 2010 | $71,591 | $84,000 | $0 | $155,591 | $155,591 |
| 2009 | $73,565 | $90,000 | $0 | $163,565 | $163,565 |
| 2008 | $75,673 | $112,000 | $0 | $187,673 | $187,673 |
| 2007 | $77,782 | $112,000 | $0 | $189,782 | $189,782 |
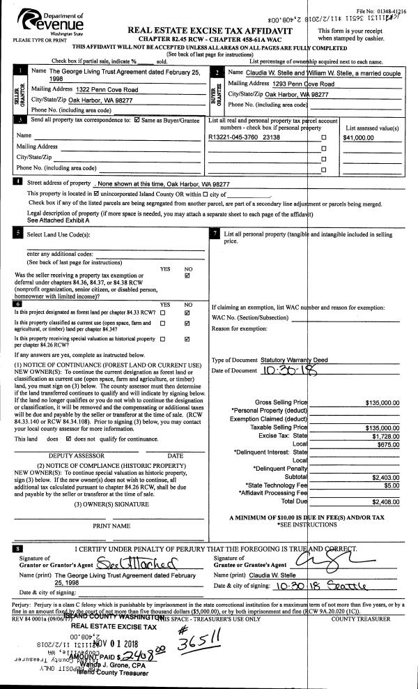
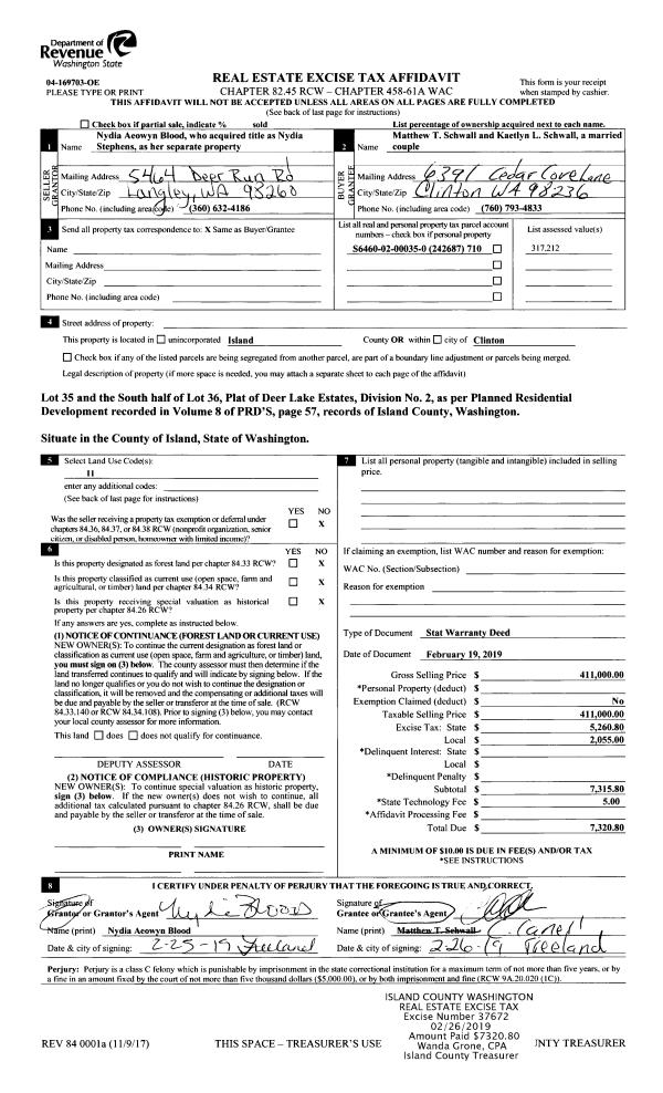
Deed and Sales History
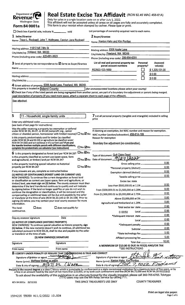
| 1 | 07/28/2020 | QCD | Quit Claim Deed | WEBB, ERIC | WEBB TTEE, ERIC W | | | $0.00 | 44118 | 4493167 |
| 2 | 02/20/2019 | WD | Warranty Deed | MORGAN, MATTHEW | WEBB, ERIC | | | $287,500.00 | 37711 | 4459795 |
| 3 | 10/05/2018 | WD | Warranty Deed | SVARC TTEE, KATHERINE L | MORGAN, MATTHEW | | | $130,000.00 | 36266 | 4453324 |
| 4 | 07/10/2018 | QCD | Quit Claim Deed | JETER, RANDY | SVARC TTEE, KATHERINE L | | | $0.00 | 35121 | 4448526 |
| 5 | 12/04/2004 | REC | Real Estate Contract | SVARC TRUSTEE, STANLEY S | JETER, RANDY | | | $55,000.00 | 46005 | 4121825 |
| 6 | 11/04/2003 | WD | Warranty Deed | STALEY, TODD | SVARC TRUSTEE, STANLEY S | | | $55,000.00 | 35076 | 4082299 |
| 7 | 06/01/1992 | WD | Warranty Deed | BROWN, ELMER J | STALEY, TODD | | | $35,000.00 | 22345 | 92011359 |
| 8 | 01/01/1900 | OTHER | Other - Misc. Documents | Unknown | BROWN, ELMER J | | | $0.00 | 0 | 0 |
Payout Agreement
| No payout information available.. |