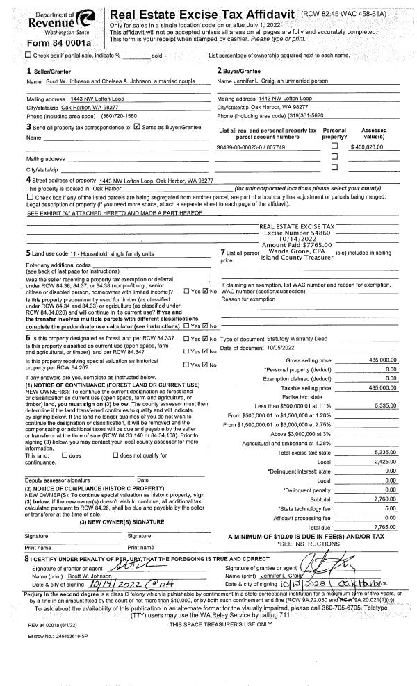
Property
Account |
| Property ID: | 246317 | Abbreviated Legal Description: | DRIFTWOOD HTS 2 LOT 31 |
| Geographic ID: | S6505-02-00031-0 | Agent Code: | |
| Type: | Real | | |
| Tax Area: | 510 - APPRAISER-Stan/Cam Schl Dist, improved & 1 acre or less | Land Use Code | 11 |
| Open Space: | N | DFL | N |
| Historic Property: | N | Remodel Property: | N |
| Multi-Family Redevelopment: | N | | |
| Township: | | Section: | |
| Range: | |
Location |
| Address: | 869 MARGIE ANN DR CAMANO ISLAND, WA 98282 | Mapsco: | |
| Neighborhood: | Cycle 5 | Map ID: | 928 |
| Neighborhood CD: | 5 |
Owner |
| Name: | ELLIOTT JTWROS, JOSH R | Owner ID: | 303430 |
| Mailing Address: | MICHELLE A ELLIOTT JTWROS 869 MARGIE ANN DRIVE CAMANO ISLAND, WA 98282 | % Ownership: | 100.0000000000% |
| | | Exemptions: | SNR/DSBL |
Taxes and Assessment Details
Values
| (+) Improvement Homesite Value: | + | $189,404 | |
| (+) Improvement Non-Homesite Value: | + | $0 | |
| (+) Land Homesite Value: | + | $230,000 | |
| (+) Land Non-Homesite Value: | + | $0 | |
| (+) Curr Use (HS): | + | $0 | $0 |
| (+) Curr Use (NHS): | + | $0 | $0 |
| | | -------------------------- | |
| (=) Market Value: | = | $419,404 | |
| (–) Productivity Loss: | – | $0 | |
| | | -------------------------- | |
| (=) Subtotal: | = | $419,404 | |
| (+) Senior Appraised Value: | + | $401,922 | |
| (+) Non-Senior Appraised Value: | + | $0 | |
| | | -------------------------- | |
| (=) Total Appraised Value: | = | $401,922 | |
| (–) Senior Exemption Loss: | – | $0 | |
| (–) Exemption Loss: | – | $0 | |
| | | -------------------------- | |
| (=) Taxable Value: | = | $401,922 | |
Taxing Jurisdiction
| Owner: | ELLIOTT JTWROS, JOSH R | | |
| % Ownership: | 100.0000000000% | | |
| Total Value: | $419,404 | | |
| Tax Area: | 510 - APPRAISER-Stan/Cam Schl Dist, improved & 1 acre or less |
| CF | Conservation Futures | 0.0316035091 | $419,404 | $401,922 | $12.70 | | |
| EMS1 | Fire & Rescue Dist #1 Camano GEN (EMS) | 0.3677864386 | $419,404 | $401,922 | $147.82 | | |
| FIRE1 | Fire & Rescue Dist #1 Camano GEN | 1.2502910536 | $419,404 | $401,922 | $502.52 | | |
| FIRE1BOND | Fire & Rescue Dist #1 Camano BOND | 0.0000000000 | $419,404 | $0 | $0.00 | | |
| CE | County Current Expense | 0.3708482477 | $419,404 | $401,922 | $149.05 | | |
| CR | County Roads | 0.4584763726 | $419,404 | $401,922 | $184.27 | | |
| LCIB | Library Sno-Isle BOND (Camano Island) | 0.0000000000 | $419,404 | $0 | $0.00 | | |
| LIB | Library Sno-Isle GEN | 0.3153421757 | $419,404 | $401,922 | $126.74 | | |
| SCH205_401 | School 205-401 Enrichment | 0.0000000000 | $419,404 | $0 | $0.00 | | |
| SCH205BOND | School 205-401 BOND | 0.0000000000 | $419,404 | $0 | $0.00 | | |
| ST | State School | 1.3035497053 | $419,404 | $401,922 | $523.93 | | |
| ST2 | State School Part 2 | 0.0000000000 | $419,404 | $0 | $0.00 | | |
| | Total Tax Rate: | 4.0978975026 | | | | | |
| | | | | Taxes w/Current Exemptions: | $1,647.03 | | |
| | | | | Taxes w/o Exemptions: | $3,070.45 | | |
Improvement / Building
| Improvement #1: | RESIDENTIAL | State Code: | Y | 816.0 sqft | Value: | $189,404 |
| Bathrooms: | 1 | Bedrooms: | 1 | | Ceiling: | DRYWALL PAINTED | Exterior Wall/Cover: | PLY/HARDBOARD T-111 | | Floor Covering: | SOFTWOOD 100% | Floor Structure: | WOOD W/SUBFLOOR | | Foundation: | CONCRETE | Heating: | FHA ELECTRIC | | Interior Finish: | DRYWALL PAINT | Plumbing Fixture Cnt: | 6 | | Roof Slope: | 3" IN 12" | Roof Structure/Cover: | CJ ASPHALT |
|
| | Type | Description | Class CD | Sub Class CD | Year Built | Area |
| | BAS | BASE/MAIN FLOOR | 3 | 0 | 1976 | 480.0 |
| | UTY | STORAGE/UTILITY | 3 | 0 | 1976 | 120.0 |
| | UPS | UPPER STORY | 3 | 0 | 1976 | 336.0 |
| | OWP | OPEN WOOD PORCH W/STEPS | 3 | 0 | 1976 | 284.0 |
| | OWP | OPEN WOOD PORCH W/STEPS | 3 | 0 | 1976 | 200.0 |
| | OWR | OPEN WOOD PORCH W/STEPS/ROOF | 3 | 0 | 1976 | 60.0 |
| | DGR | DETACHED GARAGE | 3 | 0 | 1976 | 676.0 |
Sketch
Property Image
Land
| 1 | 15 | SQ (12001-21780) | 0.0000 | 0.00 | 0.00 | 0.00 | 1.00 | $230,000 | $0 |
Roll Value History
| 2026 | N/A | N/A | N/A | N/A | N/A |
| 2025 | $189,404 | $230,000 | $0 | $419,404 | $401,922 |
| 2024 | $191,922 | $210,000 | $0 | $401,922 | $401,922 |
| 2023 | $194,437 | $230,000 | $0 | $424,437 | $424,437 |
| 2022 | $178,338 | $200,000 | $0 | $378,338 | $378,338 |
| 2021 | $149,137 | $140,000 | $0 | $289,137 | $289,137 |
| 2020 | $145,274 | $120,000 | $0 | $265,274 | $265,274 |
| 2019 | $102,849 | $155,000 | $0 | $257,849 | $257,849 |
| 2018 | $103,180 | $140,000 | $0 | $243,180 | $243,180 |
| 2017 | $103,847 | $90,000 | $0 | $193,847 | $193,847 |
| 2016 | $105,179 | $65,000 | $0 | $170,179 | $170,179 |
| 2015 | $83,963 | $50,000 | $0 | $133,963 | $133,963 |
| 2014 | $84,974 | $50,000 | $0 | $134,974 | $134,974 |
| 2013 | $85,984 | $52,000 | $0 | $137,984 | $137,984 |
| 2012 | $86,995 | $52,000 | $0 | $138,995 | $138,995 |
| 2011 | $88,007 | $84,000 | $0 | $172,007 | $172,007 |
| 2010 | $93,101 | $84,000 | $0 | $177,101 | $177,101 |
| 2009 | $91,727 | $90,000 | $0 | $181,727 | $181,727 |
| 2008 | $93,332 | $112,000 | $0 | $205,332 | $205,332 |
| 2007 | $94,958 | $112,000 | $0 | $206,958 | $206,958 |
Deed and Sales History
| 1 | 02/17/2022 | QCD | Quit Claim Deed | ELLIOTT, JOSH R | ELLIOTT JTWROS, JOSH R | | | $0.00 | 52296 | 4541478 |
| 2 | 07/01/1992 | WD | Warranty Deed | HOLEMAN, WILLIAM E | ELLIOTT, JOSH R | | | $84,500.00 | 22900 | 92014081 |
| 3 | 01/01/1900 | OTHER | Other - Misc. Documents | Unknown | HOLEMAN, WILLIAM E | | | $0.00 | 0 | 0 |
Payout Agreement
| No payout information available.. |