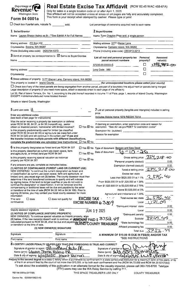
Property
Account |
| Property ID: | 2464 | Abbreviated Legal Description: | 34 - E100' OF W739.24' OF NE NW LY S OF HWY (E100' OF W200' OF TR B RHODODENDRON PARK HOMESITES AF#159208) |
| Geographic ID: | R13102-414-2010 | Agent Code: | |
| Type: | Real | | |
| Tax Area: | 310 - APPRAISER-Cpvl Schl Dist, outside Cpvl, improved & 1 acre or less | Land Use Code | 11 |
| Open Space: | N | DFL | N |
| Historic Property: | N | Remodel Property: | N |
| Multi-Family Redevelopment: | N | | |
| Township: | 31 | Section: | 02 |
| Range: | R1 |
Location |
| Address: | 20141 SR20 COUPEVILLE, WA 98239 | Mapsco: | |
| Neighborhood: | Cycle 2 | Map ID: | 23 |
| Neighborhood CD: | 2 |
Owner |
| Name: | OVIATT, FRANK E / SANDRA L | Owner ID: | 201433 |
| Mailing Address: | PO BOX 1424 COUPEVILLE, WA 98239 | % Ownership: | 100.0000000000% |
| | | Exemptions: | |
Taxes and Assessment Details
Values
| (+) Improvement Homesite Value: | + | $0 | |
| (+) Improvement Non-Homesite Value: | + | $188,321 | |
| (+) Land Homesite Value: | + | $0 | |
| (+) Land Non-Homesite Value: | + | $110,000 | |
| (+) Curr Use (HS): | + | $0 | $0 |
| (+) Curr Use (NHS): | + | $0 | $0 |
| | | -------------------------- | |
| (=) Market Value: | = | $298,321 | |
| (–) Productivity Loss: | – | $0 | |
| | | -------------------------- | |
| (=) Subtotal: | = | $298,321 | |
| (+) Senior Appraised Value: | + | $0 | |
| (+) Non-Senior Appraised Value: | + | $298,321 | |
| | | -------------------------- | |
| (=) Total Appraised Value: | = | $298,321 | |
| (–) Senior Exemption Loss: | – | $0 | |
| (–) Exemption Loss: | – | $0 | |
| | | -------------------------- | |
| (=) Taxable Value: | = | $298,321 | |
Taxing Jurisdiction
| Owner: | OVIATT, FRANK E / SANDRA L | | |
| % Ownership: | 100.0000000000% | | |
| Total Value: | $298,321 | | |
| Tax Area: | 310 - APPRAISER-Cpvl Schl Dist, outside Cpvl, improved & 1 acre or less |
| CF | Conservation Futures | 0.0316035091 | $298,321 | $298,321 | $9.43 | | |
| CEM2 | Cemetery #2 | 0.0095056933 | $298,321 | $298,321 | $2.84 | | |
| FIRE5 | Fire & Rescue Dist #5 C Whidbey GEN | 1.2008080668 | $298,321 | $298,321 | $358.23 | | |
| FIRE5BOND | Fire & Rescue Dist #5 C Whidbey BOND | 0.1400090713 | $298,321 | $298,321 | $41.77 | | |
| HOBOND | Hospital BOND | 0.1910887512 | $298,321 | $298,321 | $57.01 | | |
| HOGEN | Hospital GEN | 0.3902502903 | $298,321 | $298,321 | $116.42 | | |
| CE | County Current Expense | 0.3708482477 | $298,321 | $298,321 | $110.63 | | |
| CR | County Roads | 0.4584763726 | $298,321 | $298,321 | $136.77 | | |
| ISLANDEMS | Hospital GEN (EMS) | 0.5000000000 | $298,321 | $298,321 | $149.16 | | |
| LIB | Library Sno-Isle GEN | 0.3153421757 | $298,321 | $298,321 | $94.07 | | |
| LIBCAP | Library Sno-Isle BOND (Cap Fac Imp Area) | 0.0543427938 | $298,321 | $298,321 | $16.21 | | |
| POCOUP | Port of Coupeville GEN | 0.1093371703 | $298,321 | $298,321 | $32.62 | | |
| POCOUPIDD | Port of Coupeville IDD | 0.3409740022 | $298,321 | $298,321 | $101.72 | | |
| COUPSDTECH | School 204 CP (TECH) | 0.7545480007 | $298,321 | $298,321 | $225.10 | | |
| SCH204MO | School 204 Enrichment | 0.6716186034 | $298,321 | $298,321 | $200.36 | | |
| ST | State School | 1.3035497053 | $298,321 | $298,321 | $388.88 | | |
| ST2 | State School Part 2 | 0.8169543533 | $298,321 | $298,321 | $243.71 | | |
| | Total Tax Rate: | 7.6592568070 | | | | | |
| | | | | Taxes w/Current Exemptions: | $2,284.93 | | |
| | | | | Taxes w/o Exemptions: | $2,284.93 | | |
Improvement / Building
| Improvement #1: | RESIDENTIAL | State Code: | Y | 1200.0 sqft | Value: | $188,321 |
| Bathrooms: | 1 | Bedrooms: | 2 | | Ceiling: | DRYWALL PAINTED | Cooling: | HEAT PUMP/CONV/V | | Exterior Wall/Cover: | PLY/HARDBOARD T-111 | Floor Covering: | VINYL 100% | | Floor Structure: | WOOD W/SUBFLOOR | Foundation: | CONCRETE | | Interior Finish: | DRYWALL PAINT | Plumbing Fixture Cnt: | 6 | | Roof Slope: | 6" IN 12" | Roof Structure/Cover: | CJ ASPHALT |
|
| | Type | Description | Class CD | Sub Class CD | Year Built | Area |
| | BAS | BASE/MAIN FLOOR | 3 | 0 | 1984 | 1200.0 |
| | OWP | OPEN WOOD PORCH W/STEPS | 3 | 0 | 1984 | 222.5 |
| | OWP | OPEN WOOD PORCH W/STEPS | 3 | 0 | 1984 | 256.0 |
| | OWP | OPEN WOOD PORCH W/STEPS | 3 | 0 | 1984 | 160.0 |
| | OWR | OPEN WOOD PORCH W/STEPS/ROOF | 3 | 0 | 1984 | 144.0 |
| | UTY | STORAGE/UTILITY | 3 | 0 | 1984 | 576.0 |
Sketch
Property Image
Land
| 1 | HS | HOMESITE | 0.8500 | 37026.00 | 0.00 | 0.00 | 1.00 | $110,000 | $0 |
Roll Value History
| 2026 | N/A | N/A | N/A | N/A | N/A |
| 2025 | $188,321 | $110,000 | $0 | $298,321 | $298,321 |
| 2024 | $187,027 | $105,000 | $0 | $292,027 | $292,027 |
| 2023 | $186,354 | $100,000 | $0 | $286,354 | $286,354 |
| 2022 | $174,589 | $100,000 | $0 | $274,589 | $274,589 |
| 2021 | $153,978 | $60,000 | $0 | $213,978 | $213,978 |
| 2020 | $150,485 | $60,000 | $0 | $210,485 | $210,485 |
| 2019 | $107,892 | $100,000 | $0 | $207,892 | $207,892 |
| 2018 | $97,692 | $75,000 | $0 | $172,692 | $172,692 |
| 2017 | $97,692 | $65,000 | $0 | $162,692 | $162,692 |
| 2016 | $99,001 | $60,000 | $0 | $159,001 | $159,001 |
| 2015 | $100,311 | $44,625 | $0 | $144,936 | $144,936 |
| 2014 | $101,620 | $44,625 | $0 | $146,245 | $146,245 |
| 2013 | $102,930 | $44,625 | $0 | $147,555 | $147,555 |
| 2012 | $104,000 | $44,625 | $0 | $148,625 | $148,625 |
| 2011 | $105,310 | $52,500 | $0 | $157,810 | $157,810 |
| 2010 | $112,624 | $52,500 | $0 | $165,124 | $165,124 |
| 2009 | $116,987 | $65,805 | $0 | $182,792 | $182,792 |
| 2008 | $119,920 | $65,000 | $0 | $184,920 | $184,920 |
| 2007 | $122,048 | $65,000 | $0 | $187,048 | $187,048 |
Deed and Sales History
| 1 | 08/01/1995 | WD | Warranty Deed | BUCKNER, MARK A | OVIATT, FRANK E | | | $101,440.00 | 52846 | 95013165 |
| 2 | 12/01/1989 | WD | Warranty Deed | OLSEN, CARL C | BUCKNER, MARK A | | | $65,900.00 | 95861 | 89018802 |
| 3 | 11/01/1982 | REC | Real Estate Contract | LINN, LLOYD R | OLSEN, CARL C | | | $12,000.00 | 22811 | 402932 |
| 4 | 08/01/1980 | QCD | Quit Claim Deed | KOEPPLIN, WALTER W | LINN, LLOYD R | | | $7,500.00 | 2640 | 372149 |
| 5 | 08/01/1978 | OTHER | Other - Misc. Documents | Unknown | KOEPPLIN, WALTER W | | | $3,500.00 | 83639 | 337164 |
Payout Agreement
| No payout information available.. |