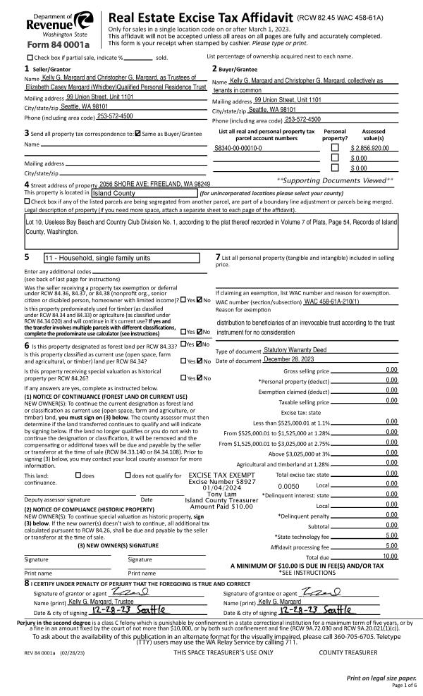
Property
Account |
| Property ID: | 246585 | Abbreviated Legal Description: | DRIFTWOOD HTS 4 LOT 3 FMLY TL 22 7-31-3E |
| Geographic ID: | S6505-04-00003-0 | Agent Code: | |
| Type: | Real | | |
| Tax Area: | 510 - APPRAISER-Stan/Cam Schl Dist, improved & 1 acre or less | Land Use Code | 11 |
| Open Space: | N | DFL | N |
| Historic Property: | N | Remodel Property: | N |
| Multi-Family Redevelopment: | N | | |
| Township: | | Section: | |
| Range: | |
Location |
| Address: | 771 VESPER WAY CAMANO ISLAND, WA 98282 | Mapsco: | |
| Neighborhood: | Cycle 5 | Map ID: | 922 |
| Neighborhood CD: | 5 |
Owner |
| Name: | TAYLOR, CALLIE | Owner ID: | 309882 |
| Mailing Address: | MATTHEW BLACK 771 VESPER WAY CAMANO ISLAND, WA 98282 | % Ownership: | 100.0000000000% |
| | | Exemptions: | |
Taxes and Assessment Details
Values
| (+) Improvement Homesite Value: | + | $0 | |
| (+) Improvement Non-Homesite Value: | + | $235,047 | |
| (+) Land Homesite Value: | + | $0 | |
| (+) Land Non-Homesite Value: | + | $280,000 | |
| (+) Curr Use (HS): | + | $0 | $0 |
| (+) Curr Use (NHS): | + | $0 | $0 |
| | | -------------------------- | |
| (=) Market Value: | = | $515,047 | |
| (–) Productivity Loss: | – | $0 | |
| | | -------------------------- | |
| (=) Subtotal: | = | $515,047 | |
| (+) Senior Appraised Value: | + | $0 | |
| (+) Non-Senior Appraised Value: | + | $515,047 | |
| | | -------------------------- | |
| (=) Total Appraised Value: | = | $515,047 | |
| (–) Senior Exemption Loss: | – | $0 | |
| (–) Exemption Loss: | – | $0 | |
| | | -------------------------- | |
| (=) Taxable Value: | = | $515,047 | |
Taxing Jurisdiction
| Owner: | TAYLOR, CALLIE | | |
| % Ownership: | 100.0000000000% | | |
| Total Value: | $515,047 | | |
| Tax Area: | 510 - APPRAISER-Stan/Cam Schl Dist, improved & 1 acre or less |
| CF | Conservation Futures | 0.0316035091 | $515,047 | $515,047 | $16.28 | | |
| EMS1 | Fire & Rescue Dist #1 Camano GEN (EMS) | 0.3677864386 | $515,047 | $515,047 | $189.43 | | |
| FIRE1 | Fire & Rescue Dist #1 Camano GEN | 1.2502910536 | $515,047 | $515,047 | $643.96 | | |
| FIRE1BOND | Fire & Rescue Dist #1 Camano BOND | 0.1570001679 | $515,047 | $515,047 | $80.86 | | |
| CE | County Current Expense | 0.3708482477 | $515,047 | $515,047 | $191.00 | | |
| CR | County Roads | 0.4584763726 | $515,047 | $515,047 | $236.14 | | |
| LCIB | Library Sno-Isle BOND (Camano Island) | 0.0396325772 | $515,047 | $515,047 | $20.41 | | |
| LIB | Library Sno-Isle GEN | 0.3153421757 | $515,047 | $515,047 | $162.42 | | |
| SCH205_401 | School 205-401 Enrichment | 1.2698420524 | $515,047 | $515,047 | $654.03 | | |
| SCH205BOND | School 205-401 BOND | 0.9396497583 | $515,047 | $515,047 | $483.96 | | |
| ST | State School | 1.3035497053 | $515,047 | $515,047 | $671.39 | | |
| ST2 | State School Part 2 | 0.8169543533 | $515,047 | $515,047 | $420.77 | | |
| | Total Tax Rate: | 7.3209764117 | | | | | |
| | | | | Taxes w/Current Exemptions: | $3,770.65 | | |
| | | | | Taxes w/o Exemptions: | $3,770.65 | | |
Improvement / Building
| Improvement #1: | RESIDENTIAL | State Code: | Y | 1900.0 sqft | Value: | $235,047 |
| Bathrooms: | 2 | Bedrooms: | 4 | | Ceiling: | DRYWALL PAINTED | Cooling: | HEAT PUMP/CONV/V | | Exterior Wall/Cover: | PLY/HARDBOARD T-111 | Floor Covering: | VINYL/HARDWOOD 60-40 | | Floor Structure: | WOOD W/SUBFLOOR | Foundation: | CONCRETE | | Interior Finish: | DRYWALL PAINT | Plumbing Fixture Cnt: | 9 | | Roof Slope: | 4" IN 12" | Roof Structure/Cover: | CJ ASPHALT |
|
| | Type | Description | Class CD | Sub Class CD | Year Built | Area |
| | BAS | BASE/MAIN FLOOR | 3 | 0 | 1974 | 950.0 |
| | UPS | UPPER STORY | 3 | 0 | 1974 | 950.0 |
| | OWP | OPEN WOOD PORCH W/STEPS | 3 | 0 | 1974 | 60.0 |
| | OWP | OPEN WOOD PORCH W/STEPS | 3 | 0 | 1974 | 200.0 |
| | OWP | OPEN WOOD PORCH W/STEPS | 3 | 0 | 1974 | 250.0 |
| | OWR | OPEN WOOD PORCH W/STEPS/ROOF | 3 | 0 | 1974 | 18.0 |
Sketch
Property Image
Land
| 1 | 15 | SQ (12001-21780) | 0.0000 | 0.00 | 0.00 | 0.00 | 1.00 | $280,000 | $0 |
Roll Value History
| 2026 | N/A | N/A | N/A | N/A | N/A |
| 2025 | $235,047 | $280,000 | $0 | $515,047 | $515,047 |
| 2024 | $238,255 | $250,000 | $0 | $488,255 | $488,255 |
| 2023 | $228,628 | $250,000 | $0 | $478,628 | $478,628 |
| 2022 | $206,244 | $220,000 | $0 | $426,244 | $426,244 |
| 2021 | $171,897 | $145,000 | $0 | $316,897 | $316,897 |
| 2020 | $168,149 | $125,000 | $0 | $293,149 | $293,149 |
| 2019 | $126,256 | $160,000 | $0 | $286,256 | $286,256 |
| 2018 | $126,700 | $145,000 | $0 | $271,700 | $271,700 |
| 2017 | $127,586 | $120,000 | $0 | $247,586 | $247,586 |
| 2016 | $129,358 | $90,000 | $0 | $219,358 | $219,358 |
| 2015 | $95,604 | $80,000 | $0 | $175,604 | $175,604 |
| 2014 | $97,165 | $80,000 | $0 | $177,165 | $177,165 |
| 2013 | $98,727 | $83,200 | $0 | $181,927 | $181,927 |
| 2012 | $100,286 | $83,200 | $0 | $183,486 | $183,486 |
| 2011 | $101,848 | $111,000 | $0 | $212,848 | $212,848 |
| 2010 | $109,672 | $111,000 | $0 | $220,672 | $220,672 |
| 2009 | $110,419 | $90,000 | $0 | $200,419 | $200,419 |
| 2008 | $112,045 | $150,000 | $0 | $262,045 | $262,045 |
| 2007 | $113,683 | $150,000 | $0 | $263,683 | $263,683 |
Deed and Sales History
| 1 | 08/26/2023 | WD | Warranty Deed | COLLINS, CHRISTINA C | TAYLOR, CALLIE | | | $535,000.00 | 57830 | 4564168 |
| 2 | 03/27/2001 | OTHER | Other - Misc. Documents | Unknown | NICHOLAS, RONALD J | | | $0.00 | 0 | 0 |
| 3 | 02/06/2001 | WD | Warranty Deed | NICHOLAS, RONALD J | COLLINS, CHRISTINA C | | | $169,000.00 | 10588 | 20026066 |
Payout Agreement
| No payout information available.. |