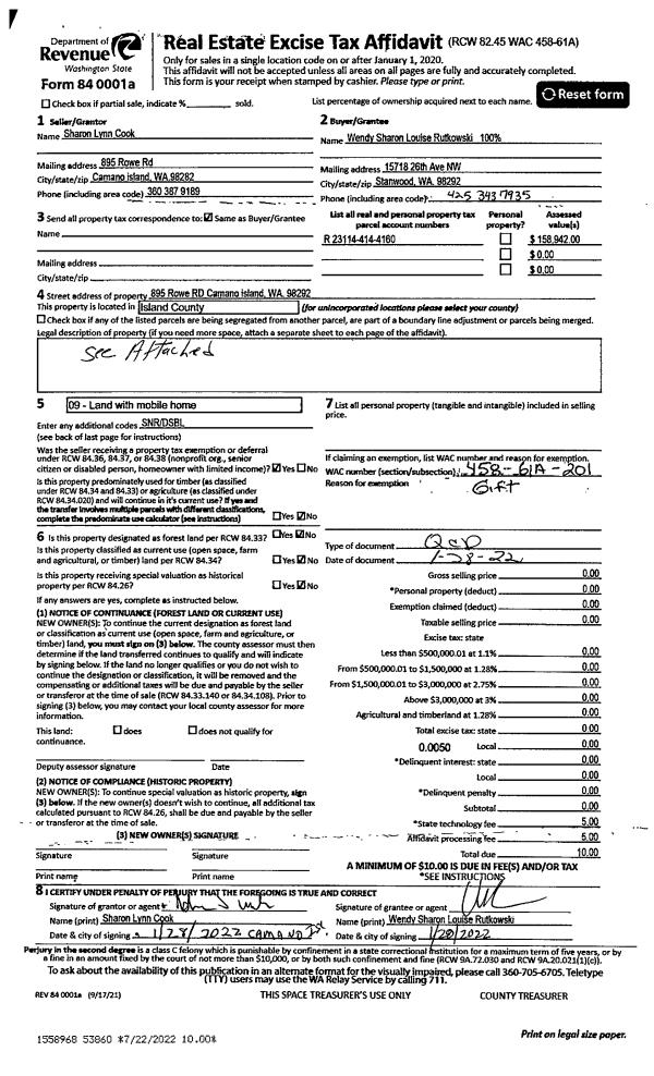
Property
Account |
| Property ID: | 246656 | Abbreviated Legal Description: | DRIFTWOOD HTS #4 LOTS 10 & 11 FMLY TL 175 7-31-3E |
| Geographic ID: | S6505-04-00010-0 | Agent Code: | |
| Type: | Real | | |
| Tax Area: | 510 - APPRAISER-Stan/Cam Schl Dist, improved & 1 acre or less | Land Use Code | 11 |
| Open Space: | N | DFL | N |
| Historic Property: | N | Remodel Property: | N |
| Multi-Family Redevelopment: | N | | |
| Township: | | Section: | |
| Range: | |
Location |
| Address: | 715 VESPER WAY CAMANO ISLAND, WA 98282 | Mapsco: | |
| Neighborhood: | Cycle 5 | Map ID: | 922 |
| Neighborhood CD: | 5 |
Owner |
| Name: | SARINANA, MARIO | Owner ID: | 179884 |
| Mailing Address: | MARIAN SARINANA 715 VESPER WAY CAMANO ISLAND, WA 98282-6523 | % Ownership: | 100.0000000000% |
| | | Exemptions: | |
Taxes and Assessment Details
Values
| (+) Improvement Homesite Value: | + | $0 | |
| (+) Improvement Non-Homesite Value: | + | $50,991 | |
| (+) Land Homesite Value: | + | $0 | |
| (+) Land Non-Homesite Value: | + | $280,000 | |
| (+) Curr Use (HS): | + | $0 | $0 |
| (+) Curr Use (NHS): | + | $0 | $0 |
| | | -------------------------- | |
| (=) Market Value: | = | $330,991 | |
| (–) Productivity Loss: | – | $0 | |
| | | -------------------------- | |
| (=) Subtotal: | = | $330,991 | |
| (+) Senior Appraised Value: | + | $0 | |
| (+) Non-Senior Appraised Value: | + | $330,991 | |
| | | -------------------------- | |
| (=) Total Appraised Value: | = | $330,991 | |
| (–) Senior Exemption Loss: | – | $0 | |
| (–) Exemption Loss: | – | $0 | |
| | | -------------------------- | |
| (=) Taxable Value: | = | $330,991 | |
Taxing Jurisdiction
| Owner: | SARINANA, MARIO | | |
| % Ownership: | 100.0000000000% | | |
| Total Value: | $330,991 | | |
| Tax Area: | 510 - APPRAISER-Stan/Cam Schl Dist, improved & 1 acre or less |
| CF | Conservation Futures | 0.0316035091 | $330,991 | $330,991 | $10.46 | | |
| EMS1 | Fire & Rescue Dist #1 Camano GEN (EMS) | 0.3677864386 | $330,991 | $330,991 | $121.73 | | |
| FIRE1 | Fire & Rescue Dist #1 Camano GEN | 1.2502910536 | $330,991 | $330,991 | $413.84 | | |
| FIRE1BOND | Fire & Rescue Dist #1 Camano BOND | 0.1570001679 | $330,991 | $330,991 | $51.97 | | |
| CE | County Current Expense | 0.3708482477 | $330,991 | $330,991 | $122.75 | | |
| CR | County Roads | 0.4584763726 | $330,991 | $330,991 | $151.75 | | |
| LCIB | Library Sno-Isle BOND (Camano Island) | 0.0396325772 | $330,991 | $330,991 | $13.12 | | |
| LIB | Library Sno-Isle GEN | 0.3153421757 | $330,991 | $330,991 | $104.38 | | |
| SCH205_401 | School 205-401 Enrichment | 1.2698420524 | $330,991 | $330,991 | $420.31 | | |
| SCH205BOND | School 205-401 BOND | 0.9396497583 | $330,991 | $330,991 | $311.02 | | |
| ST | State School | 1.3035497053 | $330,991 | $330,991 | $431.46 | | |
| ST2 | State School Part 2 | 0.8169543533 | $330,991 | $330,991 | $270.40 | | |
| | Total Tax Rate: | 7.3209764117 | | | | | |
| | | | | Taxes w/Current Exemptions: | $2,423.19 | | |
| | | | | Taxes w/o Exemptions: | $2,423.19 | | |
Improvement / Building
| Improvement #1: | MANUFACTURED HOME | State Code: | Y | 1344.0 sqft | Value: | $50,991 |
| Bathrooms: | 2 | Bedrooms: | 2 | | Ceiling: | PLASTER PAINTED | Cooling: | EVAP NO DUCT | | Exterior Wall/Cover: | VINYL | Floor Covering: | CARPET 100% | | Floor Structure: | SLAB ON GRADE | Foundation: | SLAB | | Heating: | FHA ELECTRIC | Interior Finish: | PLASTER | | Plumbing Fixture Cnt: | 1 | Roof Slope: | FLAT | | Roof Structure/Cover: | CJ ALUMINIUM HEAVY |   |   |
|
| | Type | Description | Class CD | Sub Class CD | Year Built | Area |
| | BAS | BASE/MAIN FLOOR | 3 | 0 | 1974 | 1344.0 |
| | DGR | DETACHED GARAGE | 3 | 0 | 1974 | 720.0 |
Sketch
Property Image
Land
| 1 | 15 | SQ (12001-21780) | 0.0000 | 0.00 | 0.00 | 0.00 | 1.00 | $280,000 | $0 |
Roll Value History
| 2026 | N/A | N/A | N/A | N/A | N/A |
| 2025 | $50,991 | $280,000 | $0 | $330,991 | $330,991 |
| 2024 | $54,081 | $250,000 | $0 | $304,081 | $304,081 |
| 2023 | $58,717 | $250,000 | $0 | $308,717 | $308,717 |
| 2022 | $55,966 | $220,000 | $0 | $275,966 | $275,966 |
| 2021 | $46,230 | $145,000 | $0 | $191,230 | $191,230 |
| 2020 | $47,244 | $125,000 | $0 | $172,244 | $172,244 |
| 2019 | $39,075 | $160,000 | $0 | $199,075 | $199,075 |
| 2018 | $40,936 | $145,000 | $0 | $185,936 | $185,936 |
| 2017 | $42,796 | $120,000 | $0 | $162,796 | $162,796 |
| 2016 | $44,657 | $90,000 | $0 | $134,657 | $134,657 |
| 2015 | $43,176 | $80,000 | $0 | $123,176 | $123,176 |
| 2014 | $43,850 | $80,000 | $0 | $123,850 | $123,850 |
| 2013 | $45,198 | $83,200 | $0 | $128,398 | $128,398 |
| 2012 | $45,871 | $83,200 | $0 | $129,071 | $129,071 |
| 2011 | $47,219 | $111,000 | $0 | $158,219 | $158,219 |
| 2010 | $53,109 | $111,000 | $0 | $164,109 | $164,109 |
| 2009 | $54,479 | $90,000 | $0 | $144,479 | $144,479 |
| 2008 | $54,988 | $150,000 | $0 | $204,988 | $204,988 |
| 2007 | $56,145 | $150,000 | $0 | $206,145 | $206,145 |
Deed and Sales History
| 1 | 11/21/2003 | WD | Warranty Deed | STRAATMAN, JAMES B | SARINANA, MARIO | | | $128,267.00 | 35268 | 4083888 |
| 2 | 05/29/2001 | WD | Warranty Deed | LINEHAN ET AL, VICTORIA | STRAATMAN, JAMES B | | | $115,000.00 | 11977 | 20033626 |
| 3 | 12/23/1998 | OTHER | Other - Misc. Documents | WELLS FARGO BANK N A, | LINEHAN, VICTORIA | | | $0.00 | 91939 | 0 |
| 4 | 12/23/1998 | WD | Warranty Deed | LINEHAN, VICTORIA | LINEHAN ET AL, VICTORIA | | | $0.00 | 91587 | 99010180 |
| 5 | 12/10/1998 | OTHER | Other - Misc. Documents | FIRST, INTERSTATE B | WELLS FARGO BANK N A, | | | $0.00 | 68102 | 0 |
| 6 | 08/01/1993 | OTHER | Other - Misc. Documents | FIRST, INTERSTATE B | FIRST, INTERSTATE B | | | $0.00 | 32994 | 0 |
| 7 | 05/01/1993 | QCD | Quit Claim Deed | TROKEY, MINNIE E | FIRST, INTERSTATE B | | | $0.00 | 32993 | 93015448 |
| 8 | 04/01/1993 | OTHER | Other - Misc. Documents | TROKEY, MINNIE E | TROKEY, MINNIE E | | | $0.00 | 0 | 0 |
| 9 | 02/01/1993 | OTHER | Other - Misc. Documents | TROKEY, JAMES P | TROKEY, MINNIE E | | | $0.00 | 65246 | 93002805 |
| 10 | 07/01/1986 | OTHER | Other - Misc. Documents | TROKEY, JAMES P | TROKEY, JAMES P | | | $0.00 | 61735 | 86005483 |
| 11 | 01/01/1900 | OTHER | Other - Misc. Documents | Unknown | TROKEY, JAMES P | | | $0.00 | 0 | 0 |
| 12 | 01/01/1900 | OTHER | Other - Misc. Documents | TROKEY, JAMES P | TROKEY, JAMES P | | | $0.00 | 0 | 0 |
Payout Agreement
| No payout information available.. |